Chat with us, powered by LiveChat Zwartewaalsestraat 41, 3114 XV SCHIEDAM - WoonSchuijt Makelaars

Schiedam

Zwartewaalsestraat  41

€ 280.000,- k.k.

Omschrijving

Comfortabel en compleet wonen in de Gorzen In één van de gezelligste straatjes van De Gorzen ligt deze goed onderhouden 4-kamer eengezinswoning. Een huis dat met zorg is bewoond en waar je direct merkt dat het netjes is afgewerkt. Met drie slaapkamers, een moderne keuken, een verzorgde badkamer en volledige isolerende beglazing heb je hier een comfortabele basis. De…

Comfortabel en compleet wonen in de Gorzen

In één van de gezelligste straatjes van De Gorzen ligt deze goed onderhouden 4-kamer eengezinswoning. Een huis dat met zorg is bewoond en waar je direct merkt dat het netjes is afgewerkt. Met drie slaapkamers, een moderne keuken, een verzorgde badkamer en volledige isolerende beglazing heb je hier een comfortabele basis.

De ligging is daarbij een groot pluspunt. Diverse winkels en scholen bevinden zich op loopafstand en ook het openbaar vervoer is dichtbij. Met de auto zit je binnen enkele minuten op de A20. Rustig wonen in een fijne wijk, met alle dagelijkse voorzieningen om de hoek.

LICHTE WOONKAMER MET FIJNE INDELING
Via de entree kom je in de hal met trapopgang naar de eerste verdieping. De woonkamer is praktisch ingedeeld en biedt voldoende ruimte voor zowel een gezellige zithoek als een eethoek. De nette laminaatvloer en het glasvezelbehang zorgen voor een verzorgde uitstraling. Dankzij de raampartijen komt er prettig daglicht binnen. Extra handig is de trapkast, ideaal voor provisie of extra bergruimte. Hier woon je comfortabel, met een indeling die logisch en prettig aanvoelt.

DEGELIJKE KEUKEN EN BADKAMER
Aan de achterzijde van het huis bevindt zich de verzorgde keuken. Deze is uitgevoerd met een 5-pits gaskookplaat, RVS afzuigkap, combi-oven, koel-/vriescombinatie en diverse onder- en bovenkasten. Alles wat je nodig hebt om uitgebreid te koken of gewoon snel iets klaar te maken na een werkdag.
Via de tussenhal bereik je het gedeeltelijk betegelde toilet met hangend closet. De badkamer is volledig betegeld en netjes afgewerkt met een dubbele wastafel, douchecabine met thermostaatkraan, designradiator en een strakke epoxyvloer. Een moderne en praktische ruimte waar je iedere dag comfortabel start.
Vanuit de badkamer heb je toegang tot de inpandige berging met wasmachine- en drogeraansluiting en de opstelplaats van de C.V.-ketel. Ook bereik je hier de binnenplaats met achterom.

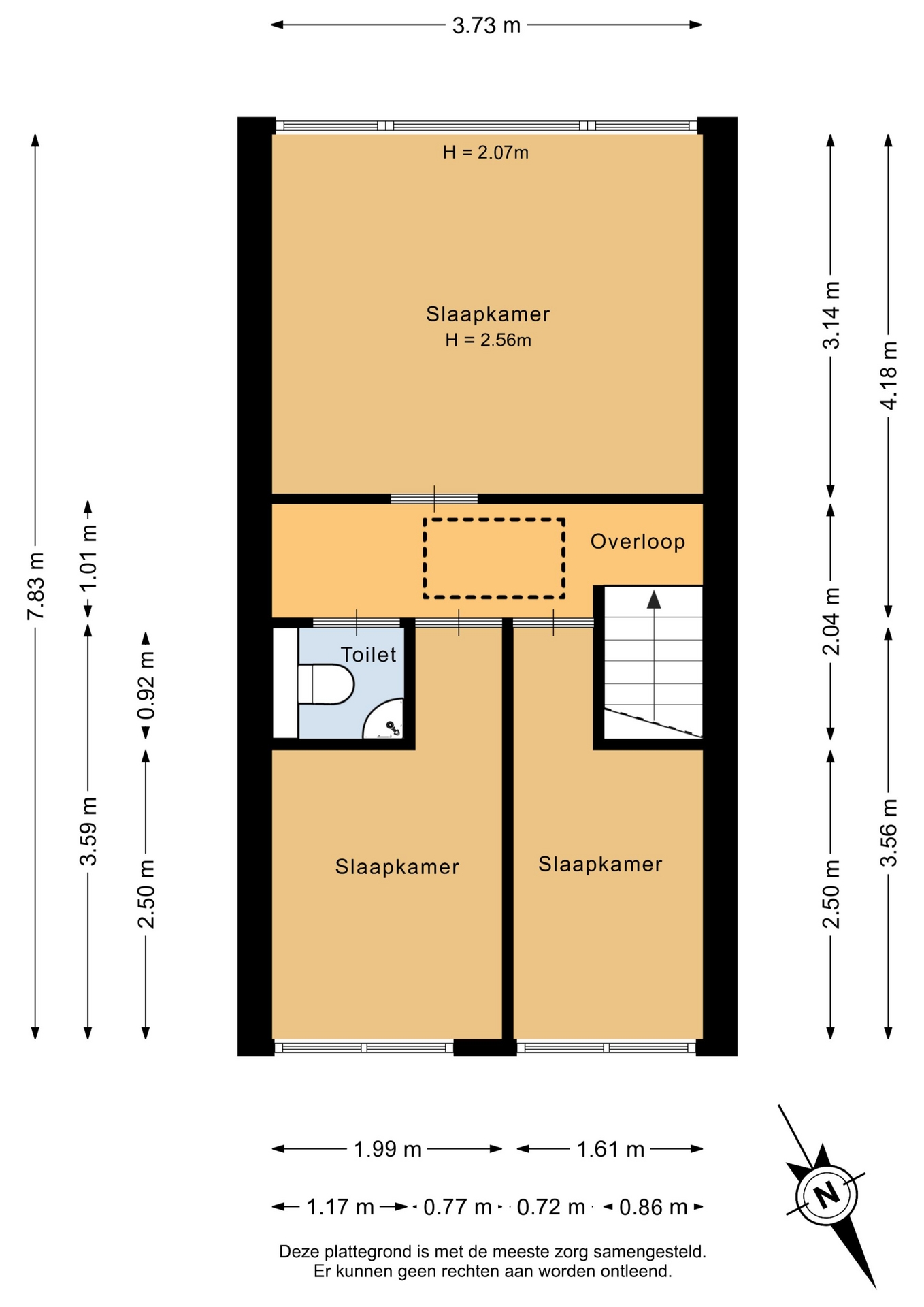
DRIE SLAAPKAMERS EN EXTRA COMFORT
Op de eerste verdieping bevinden zich drie slaapkamers. Aan de voorzijde liggen twee kamers, beide voorzien van een dakkapel en een nette laminaatvloer. Ideaal als kinder-, werk- of logeerkamer.
De ruime slaapkamer aan de achterzijde beschikt over een airco-unit. Dat zorgt voor aangename temperaturen tijdens warme zomerdagen.
Op de overloop vind je een tweede, gedeeltelijk betegeld toilet. Daarnaast is er toegang tot de bergvliering, perfect voor het opbergen van seizoensspullen of koffers.

WONEN IN EEN LEVENDIGE EN GEZELLIGE WIJK
De Gorzen staat bekend om zijn karakteristieke straten en fijne woonomgeving. Hier woon je in een buurt met een dorps gevoel, terwijl je toch dichtbij het centrum van Schiedam en Rotterdam zit. Winkels, basisscholen en sportvoorzieningen liggen op korte afstand en ook het openbaar vervoer is goed geregeld.
Een verzorgd en compleet huis op een centrale locatie, ideaal voor wie comfortabel wil wonen in een gezellige wijk.

KENMERKEN
-Eigen grond
-Bouwjaar 1915
-Woonoppervlakte circa 75 m²
-Centrale locatie met alle voorzieningen op loopafstand;
-Recent gemoderniseerd en gestoffeerd en daarmee instapklaar!
-Dichtbij groen en water wandelroutes
-Airco unit in de slaapkamer (uitbreiding mogelijk)
-Ruimte om een (ruim) dakterras te realiseren (vergunning vereist)
-Verwarming en warm water middels cv-combiketel
-Ouderdomsclausule van toepassing
-Oplevering in overleg

INTERESSE? MAAK DAN SNEL EEN AFSPRAAK!
Ons advies is om bij het kopen van jouw nieuwe woning jouw eigen NVM makelaar mee te nemen.

TOELICHTINGSCLAUSULE NEN2580
De Meetinstructie is gebaseerd op de NEN2580. De Meetinstructie is bedoeld om een meer eenduidige manier van meten toe te passen voor het geven van een indicatie van de gebruiksoppervlakte. De Meetinstructie sluit verschillen in meetuitkomsten niet volledig uit, door bijvoorbeeld interpretatieverschillen, afrondingen of beperkingen bij het uitvoeren van de meting.

KOOPOVEREENKOMST PAS RECHTSGELDIG NA ONDERTEKENING
Een mondelinge overeenstemming tussen de particuliere verkoper en de particuliere koper is niet rechtsgeldig. Met andere woorden: er is geen koop. Er is pas sprake van een rechtsgeldige koop als de particuliere verkoper en de particuliere koper de koopovereenkomst hebben ondertekend. Dit vloeit voort uit artikel 7:2 Burgerlijk Wetboek. Een bevestiging van de mondelinge overeenstemming per e-mail of een toegestuurd concept van de koopovereenkomst wordt overigens niet gezien als een 'ondertekende koopovereenkomst'

“Deze informatie is door ons met de nodige zorgvuldigheid samengesteld. Onzerzijds wordt echter geen enkele aansprakelijkheid aanvaard voor enige onvolledigheid, onjuistheid of anderszins, dan wel de gevolgen daarvan. Alle opgegeven maten en oppervlakten zijn indicatief.”

Kenmerken

Basiskenmerken

  • Status Beschikbaar
  • Koopsom € 280.000 k.k.
  • Woonoppervlakte ca. 75 m2
  • Aantal slaapkamers 3
  • Bouwjaar 1915

Overdracht

  • Aanvaarding In overleg

Bouwvorm & onderhoud

  • Soort object Tussenwoning
  • Soort woning Eengezinswoning
  • Bouwjaar 1915
  • Soort bouw woonhuis
  • Ligging Aan rustige weg, in woonwijk

Oppervlakte & inhoud

  • Gebruiksoppervlakte 75m2
  • Perceeloppervlakte 60m2
  • Inhoud 274m3
  • Aantal kamers 4
  • Aantal slaapkamers 3
  • Aantal woonlagen 2 woonlagen

Energie & installatie

  • Energielabel E
  • Isolatie Dubbel glas
  • Verwarming Cv ketel
  • Warm water Cv ketel
  • C.v.-ketel type GAS
  • Energie einddatum 03-02-2036

Bergruimte

  • Schuur / berging Box

Parkeergelegenheid

  • Parkeerfaciliteiten Openbaar parkeren
  • Garage Geen garage

Dak

  • Soort dak Zadeldak

Overig

  • Onderhoud binnen Goed
  • Onderhoud buiten Goed
  • Bijzonderheden Gedeeltelijk gestoffeerd
  • Permanente bewoning Ja
  • Huidig gebruik Woonruimte
  • Huidige bestemming Woonruimte

Voorzieningen

  • Voorzieningen Tv kabel, natuurlijke ventilatie

Buitenruimte

  • Hoofdtuin PATIO_ATRIUM
  • Oppervlakte hoofdtuin 6m2
  • Ligging hoofdtuin ZUIDOOST
  • Kwaliteit tuin Normaal

Kadastrale gegevens

  • Perceelnummer 2330
  • Perceeloppervlakte 60 m2
Meer kenmerken
Ontdek online wat jouw huis waard is

Met de online waardecheck ontdek je in een paar minuten de geschatte waarde van jouw huis!

Gratis waardecheck

In de buurt

Geïnteresseerd?

Bel met WoonSchuijt Makelaars

shape

Stuur een bericht

* Maximaal 255 tekens
privacyverklaring