Chat with us, powered by LiveChat van Strijenstraat 46, 2801 TG GOUDA - WoonSchuijt Makelaars

Gouda

van Strijenstraat  46

€ 325.000,- k.k.

Omschrijving

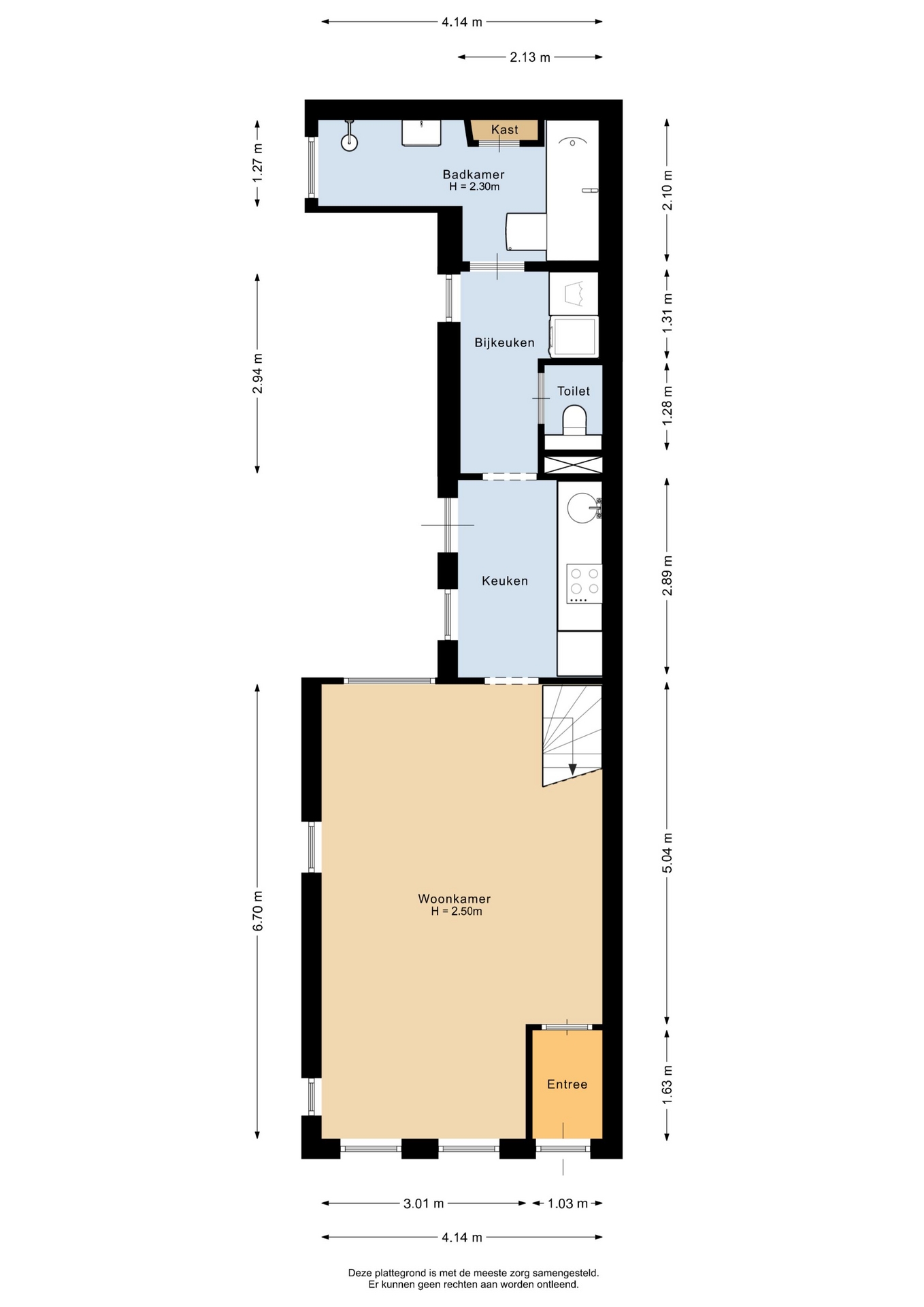
SFEERVOLLE WONING MET KARAKTER Welkom bij deze charmante en verrassende woning, waar je je snel thuis zult voelen. De afwerking is verzorgd en heel sfeervol, waardoor de woning een moderne, maar ook warme uitstraling heeft. De woonkamer is licht door de zijramen en staat in verbinding met de keuken. De keuken heeft een eigentijdse uitstraling dankzij de groene kasten. De…

SFEERVOLLE WONING MET KARAKTER
Welkom bij deze charmante en verrassende woning, waar je je snel thuis zult voelen. De afwerking is verzorgd en heel sfeervol, waardoor de woning een moderne, maar ook warme uitstraling heeft. De woonkamer is licht door de zijramen en staat in verbinding met de keuken. De keuken heeft een eigentijdse uitstraling dankzij de groene kasten. De praktische indeling zorgt voor voldoende werk- en opbergruimte. Achter de keuken is een fijne bijkeuken met wasruimte. De moderne badkamer heeft een ligbad, wastafelmeubel, handdoekradiator én inloopdouche. Boven zijn er twee slaapkamers, in de hoofdslaapkamer is een wastafel en vaste kastruimte. Benieuwd wat er achter deze mooie gevel schuilt? Maak snel een afspraak voor een bezichtiging!

VERKOPER AAN HET WOORD
...

FIJNE TUIN ÉN BALKON
Buiten is het ook volop genieten: de beschutte patio/tuin is een heerlijke plek om te zitten. Dankzij de overkapping en het groen is dit een intieme en sfeervolle ruimte. Een fijne plek voor een kop koffie of een gezellige barbecue. Er is ook een balkon, ideaal om even buiten te kunnen zitten of de was te laten drogen.

PERFECTE LIGGING
De woning is gelegen in een rustige straat aan de rand van het historische centrum van Gouda. Hier woon je op loopafstand van alle voorzieningen. Haal vers brood bij de ambachtelijke bakker, struin over de markt of dineer bij een van de gezellige restaurants. Het treinstation en de uitvalswegen zijn ook op korte afstand gelegen. Er zijn goede verbindingen naar steden zoals Rotterdam en Utrecht. Aan het einde van de straat is het stadspark ''Het van Bergen IJzendoornpark’’ te vinden.

BIJZONDERHEDEN
- Energielabel D;
- Tuin/patio én balkon;
- De voorgevel is in 2011 volledig gerestaureerd;
- Gewilde locatie dichtbij het centrum;
- Oplevering in overleg.

INTERESSE? MAAK DAN SNEL EEN AFSPRAAK!
Ons advies is om bij het kopen van je nieuwe huis je eigen NVM-makelaar mee te nemen.

TOELICHTINGSCLAUSULE NEN2580
De Meetinstructie is gebaseerd op de NEN2580. De Meetinstructie is bedoeld om een meer eenduidige manier van meten toe te passen voor het geven van een indicatie van de gebruiksoppervlakte. De Meetinstructie sluit verschillen in meetuitkomsten niet volledig uit, door bijvoorbeeld interpretatieverschillen, afrondingen of beperkingen bij het uitvoeren van de meting.
“Deze informatie is door ons met de nodige zorgvuldigheid samengesteld. Onzerzijds wordt echter geen enkele aansprakelijkheid aanvaard voor enige onvolledigheid, onjuistheid of anderszins, dan wel de gevolgen daarvan. Alle opgegeven maten en oppervlakten zijn indicatief.”

KOOPOVEREENKOMST PAS RECHTSGELDIG NA ONDERTEKENING
Een mondelinge overeenstemming tussen de particuliere verkoper en de particuliere koper is niet rechtsgeldig. Met andere woorden: er is geen koop. Er is pas sprake van een rechtsgeldige koop als de particuliere verkoper en de particuliere koper de koopovereenkomst hebben ondertekend. Dit vloeit voort uit artikel 7:2 Burgerlijk Wetboek. Een bevestiging van de mondelinge overeenstemming per e-mail of een toegestuurd concept van de koopovereenkomst wordt overigens niet gezien als een 'ondertekende koopovereenkomst'

Kenmerken

Basiskenmerken

  • Status Verkocht onder voorbehoud
  • Koopsom € 325.000 k.k.
  • Woonoppervlakte ca. 70 m2
  • Aantal slaapkamers 2
  • Bouwjaar 1881

Overdracht

  • Aanvaarding In overleg

Bouwvorm & onderhoud

  • Soort object Eindwoning
  • Soort woning Eengezinswoning
  • Bouwjaar 1881
  • Soort bouw woonhuis
  • Ligging Aan rustige weg, in woonwijk

Oppervlakte & inhoud

  • Gebruiksoppervlakte 70m2
  • Perceeloppervlakte 72m2
  • Inhoud 253m3
  • Aantal kamers 5
  • Aantal slaapkamers 2
  • Aantal woonlagen 2 woonlagen

Energie & installatie

  • Energielabel D
  • Isolatie Dakisolatie, gedeeltelijk dubbel glas
  • Verwarming Cv ketel
  • Warm water Cv ketel
  • C.v.-ketel type GAS
  • C.v.-ketel bouwjaar 2014
  • Energie einddatum 19-10-2026

Parkeergelegenheid

  • Parkeerfaciliteiten Openbaar parkeren, parkeervergunningen
  • Garage Geen garage

Dak

  • Soort dak Samengesteld dak

Overig

  • Onderhoud binnen Goed
  • Onderhoud buiten Goed
  • Permanente bewoning Ja
  • Huidig gebruik Woonruimte
  • Huidige bestemming Woonruimte

Voorzieningen

  • Voorzieningen Glasvezel kabel

Buitenruimte

  • Hoofdtuin ACHTERTUIN
  • Oppervlakte hoofdtuin 17m2
  • Ligging hoofdtuin NOORDOOST
  • Kwaliteit tuin Normaal

Kadastrale gegevens

  • Perceelnummer 3926
  • Perceeloppervlakte 72 m2
Meer kenmerken
Ontdek online wat jouw huis waard is

Met de online waardecheck ontdek je in een paar minuten de geschatte waarde van jouw huis!

Gratis waardecheck

In de buurt