Chat with us, powered by LiveChat Van Mieropstraat 23, 3411 ET LOPIK - WoonSchuijt Makelaars

Lopik

Van Mieropstraat  23

€ 750.000,- k.k.

Omschrijving

LANDELIJK WONEN MET FANTASTISCH UITZICHT OVER DE POLDER Rust, ruimte en comfort in Cabauw Op zoek naar een goed onderhouden huis waar je zo in kunt? Dan is deze nette twee-onder-een-kapwoning aan de Van Mieropstraat 23 in Cabauw precies wat je zoekt. Met een zonnige tuin op het oosten, drie ruime slaapkamers, een grote zolder met uitbreidingsmogelijkheden, een eigen…

LANDELIJK WONEN MET FANTASTISCH UITZICHT OVER DE POLDER

Rust, ruimte en comfort in Cabauw
Op zoek naar een goed onderhouden huis waar je zo in kunt? Dan is deze nette twee-onder-een-kapwoning aan de Van Mieropstraat 23 in Cabauw precies wat je zoekt. Met een zonnige tuin op het oosten, drie ruime slaapkamers, een grote zolder met uitbreidingsmogelijkheden, een eigen oprit en een garage, is dit huis ideaal voor doorstromers die comfortabel willen wonen in een landelijke omgeving. En dat vrije uitzicht over de uitgestrekte weilanden? Dat krijg je er gewoon bij.

Lichte leefruimte met moderne afwerking
De woonkamer voelt direct ruim en aangenaam aan. Grote ramen zorgen voor veel lichtinval en een mooi uitzicht op zowel de straatzijde als de tuin. De laminaatvloer met de uitstraling van een zwarte plavuizenvloer geeft de ruimte een moderne, maar warme uitstraling. De zithoek en eethoek lopen vloeiend in elkaar over, waardoor je gemakkelijk contact houdt met je gezelschap. De halfopen keuken aan de voorzijde is praktisch ingedeeld en biedt alles wat je nodig hebt.

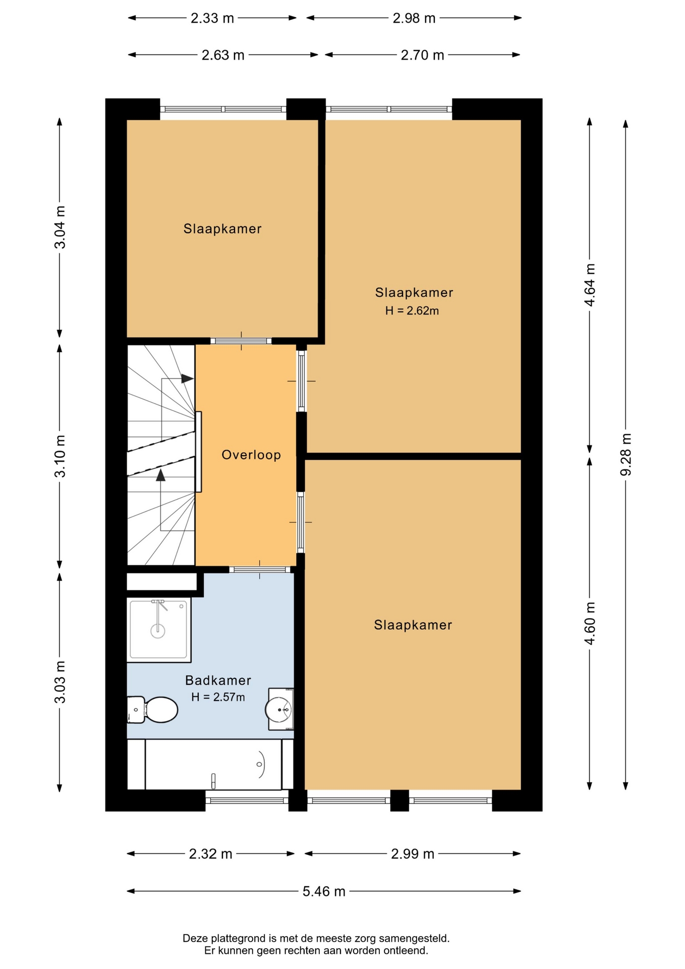
Drie slaapkamers en volop potentie op zolder
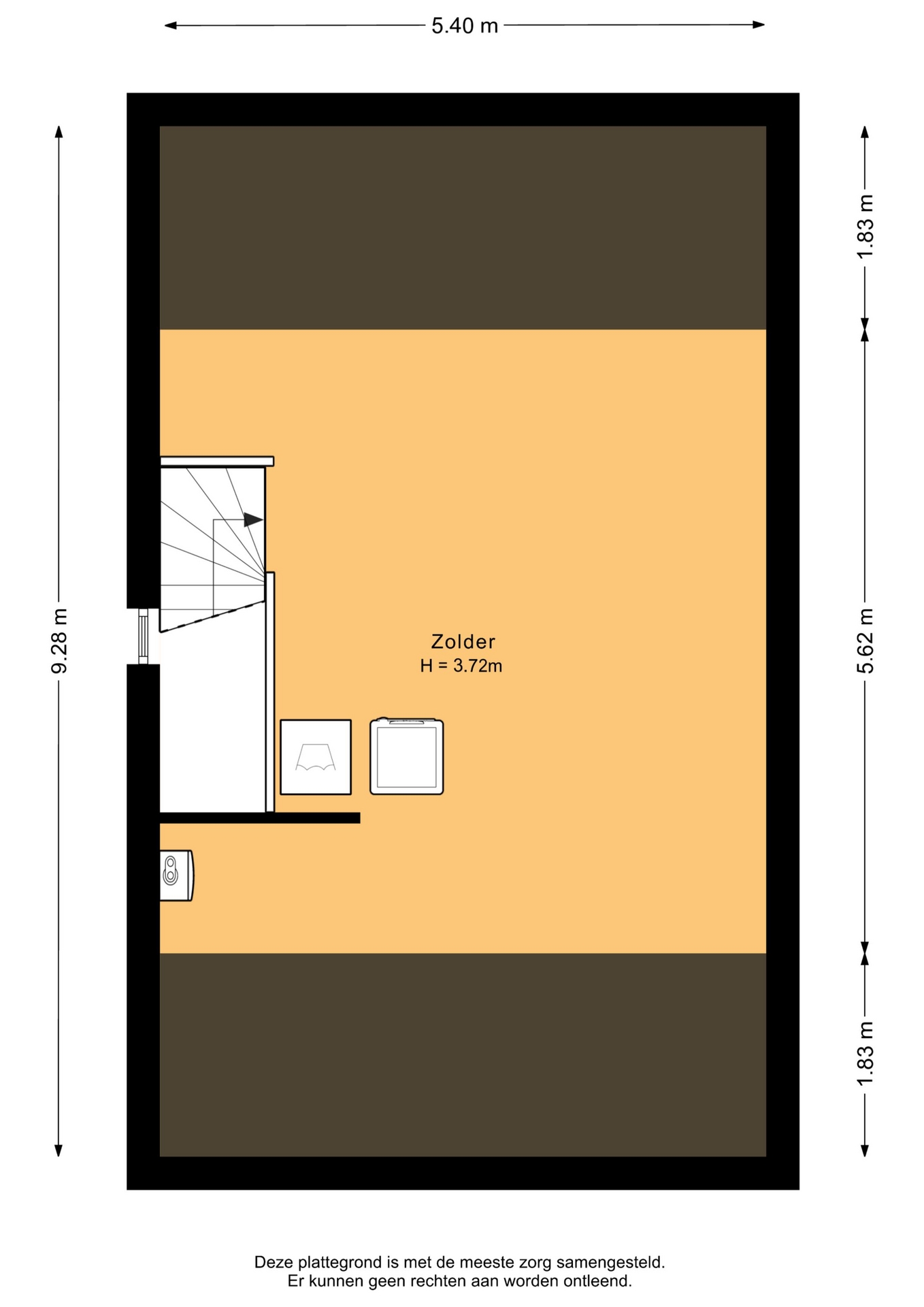
Op de eerste verdieping zijn drie volwaardige slaapkamers te vinden, waaronder een royale ouderslaapkamer met ruimte voor een groot bed en kastenwand. De andere twee kamers zijn ideaal als kinderkamer, werkkamer of logeerkamer. De badkamer is netjes en compleet, voorzien van een douche, wastafel, toilet en ligbad. De vaste trap naar zolder opent de deur naar nog meer ruimte: hier is eenvoudig een extra slaapkamer of werkruimte te realiseren. Dankzij het schuine dak behoort een dakkapel of dakraam ook tot de mogelijkheden.

Genieten van buiten én van privacy
De achtertuin ligt op het oosten, waardoor je hier 's ochtends al heerlijk in de zon kunt zitten – perfect voor een rustig ontbijt buiten. De tuin is overzichtelijk aangelegd met zowel bestrating als gras en heeft genoeg plek voor een eettafel, een loungeset of speelruimte voor kinderen. De ligging aan de rand van het dorp zorgt voor veel privacy en een weids uitzicht over de weilanden. Aan de voorkant van het huis beschik je over een eigen oprit én een aangebouwde stenen garage met extra berging – ideaal voor opslag, de auto of als hobbyruimte. De extra bergruimte is volledig geïsoleerd en aangesloten op het riool, waardoor het mogelijk is om op de begane grond een slaapkamer en badkamer te realiseren.

Wonen in Cabauw: landelijk en toch centraal
Cabauw is een rustig en gemoedelijk dorp dat hoort bij de gemeente Lopik. Hier woon je in een landelijke omgeving met volop ruimte en groen om je heen. Denk aan wandelroutes door het open landschap, fietsritten langs het water en volop speelruimte voor kinderen. Ondanks de landelijke ligging ben je zo in de omliggende plaatsen zoals Schoonhoven, IJsselstein en Nieuwegein. Ook zijn er basisscholen, sportverenigingen en winkels in de buurt. Openbaar vervoer is beperkt, maar met de auto ben je binnen no-time op de N210 of A2. Een ideale plek voor wie landelijk wil wonen zonder het contact met de stad te verliezen.

Belangrijkste kenmerken
- Ligging: aan rustige weg, in dorp, landelijk
- Tuinligging: oost
- Woonoppervlakte: 148 m²
- Perceeloppervlakte: 315 m²
- Bouwjaar: 2012
- Aantal verdiepingen: 3
- Aantal kamers: 5
- Aantal slaapkamers: 3 (mogelijkheid voor meer op zolder)
- Energielabel: A
- Oplevering: in overleg, kan snel

TOELICHTINGSCLAUSULE NEN2580
De Meetinstructie is gebaseerd op de NEN2580. De Meetinstructie is bedoeld om een meer eenduidige manier van meten toe te passen voor het geven van een indicatie van de gebruiksoppervlakte. De Meetinstructie sluit verschillen in meetuitkomsten niet volledig uit, door bijvoorbeeld interpretatieverschillen, afrondingen of beperkingen bij het uitvoeren van de meting.

KOOPOVEREENKOMST PAS RECHTSGELDIG NA ONDERTEKENING
Een mondelinge overeenstemming tussen de particuliere verkoper en de particuliere koper is niet rechtsgeldig. Met andere woorden: er is geen koop. Er is pas sprake van een rechtsgeldige koop als de particuliere verkoper en de particuliere koper de koopovereenkomst hebben ondertekend. Dit vloeit voort uit artikel 7:2 Burgerlijk Wetboek. Een bevestiging van de mondelinge overeenstemming per e-mail of een toegestuurd concept van de koopovereenkomst wordt overigens niet gezien als een 'ondertekende koopovereenkomst'

“Deze informatie is door ons met de nodige zorgvuldigheid samengesteld. Onzerzijds wordt echter geen enkele aansprakelijkheid aanvaard voor enige onvolledigheid, onjuistheid of anderszins, dan wel de gevolgen daarvan. Alle opgegeven maten en oppervlakten zijn indicatief.”

Kenmerken

Basiskenmerken

  • Status Beschikbaar
  • Koopsom € 750.000 k.k.
  • Woonoppervlakte ca. 148 m2
  • Aantal slaapkamers 3
  • Bouwjaar 2012

Overdracht

  • Aanvaarding In overleg

Bouwvorm & onderhoud

  • Soort object Twee onder een kapwoning
  • Soort woning Eengezinswoning
  • Bouwjaar 2012
  • Soort bouw woonhuis
  • Ligging Aan water, aan rustige weg, in woonwijk

Oppervlakte & inhoud

  • Gebruiksoppervlakte 148m2
  • Perceeloppervlakte 315m2
  • Inhoud 659m3
  • Aantal kamers 5
  • Aantal slaapkamers 3
  • Aantal woonlagen 3 woonlagen
  • Overige inpandige ruimte 33m2

Energie & installatie

  • Energielabel A
  • Isolatie Dakisolatie, muurisolatie, dubbel glas
  • Verwarming Cv ketel
  • Warm water Cv ketel
  • C.v.-ketel type GAS
  • Energie einddatum 24-05-2027

Bergruimte

  • Schuur / berging Aangebouwd steen
  • Voorzieningen Voorzien van elektra, voorzien van water

Parkeergelegenheid

  • Parkeerfaciliteiten Openbaar parkeren, op eigen terrein
  • Garage Aangebouwd steen

Dak

  • Soort dak Zadeldak

Overig

  • Onderhoud binnen Goed
  • Onderhoud buiten Goed
  • Bijzonderheden Gedeeltelijk gestoffeerd
  • Permanente bewoning Ja
  • Huidig gebruik Woonruimte
  • Huidige bestemming Woonruimte

Voorzieningen

  • Voorzieningen Mechanische ventilatie, natuurlijke ventilatie

Buitenruimte

  • Hoofdtuin ACHTERTUIN
  • Oppervlakte hoofdtuin 119m2
  • Ligging hoofdtuin OOST
  • Kwaliteit tuin Normaal

Kadastrale gegevens

  • Perceelnummer 2076
  • Perceeloppervlakte 315 m2
Meer kenmerken
Ontdek online wat jouw huis waard is

Met de online waardecheck ontdek je in een paar minuten de geschatte waarde van jouw huis!

Gratis waardecheck

In de buurt

Geïnteresseerd?

Bel met WoonSchuijt Makelaars

shape

Stuur een bericht

* Maximaal 255 tekens
privacyverklaring