Chat with us, powered by LiveChat Pondstraat 19, 2645 GZ DELFGAUW - WoonSchuijt Makelaars

Delfgauw

Pondstraat  19

€ 545.000,- k.k.

Omschrijving

Moderne 5-kamer eengezinswoning met vrij uitzicht en dakterras Moderne 5-kamer eengezinswoning met een fantastisch vrij uitzicht over een grote groenvoorziening, gelegen in een autoluwe straat. De woning is goed onderhouden en beschikt over een ruime tuin, zonnig dakterras, 4 slaapkamers, een lichte woonkamer en een moderne badkamer en keuken met diverse…

Moderne 5-kamer eengezinswoning met vrij uitzicht en dakterras

Moderne 5-kamer eengezinswoning met een fantastisch vrij uitzicht over een grote groenvoorziening, gelegen in een autoluwe straat. De woning is goed onderhouden en beschikt over een ruime tuin, zonnig dakterras, 4 slaapkamers, een lichte woonkamer en een moderne badkamer en keuken met diverse inbouwapparatuur. De woning is daarnaast volledig voorzien van kunststof kozijnen, wat bijdraagt aan een lage onderhoudsbehoefte en goede isolatie.

De woning ligt in het hart van een kindvriendelijke wijk, gekenmerkt door de ruime opzet, veel groenvoorzieningen, speeltuinen, winkels, scholen en sportfaciliteiten. Het populaire recreatiegebied “Delftse Hout” ligt op loopafstand. Daarnaast zijn steden als Delft, Den Haag en Rotterdam binnen enkele minuten bereikbaar via de uitvalswegen naar de A13, A4 en A12.

Indeling
Begane grond
Ruime entreehal met garderobe, meterkast en toiletruimte voorzien van closet en fonteintje. De lichte woonkamer beschikt over een trapkast, open keuken en een grote kunststof schuifpui die toegang geeft tot de achtertuin en zorgt voor veel natuurlijke lichtinval.
De open keuken aan de voorzijde is uitgevoerd in een hoekopstelling en voorzien van diverse inbouwapparatuur, waaronder een vaatwasser, combi-oven, inductiekookplaat, afzuigkap, koelkast en een aparte vriezer.

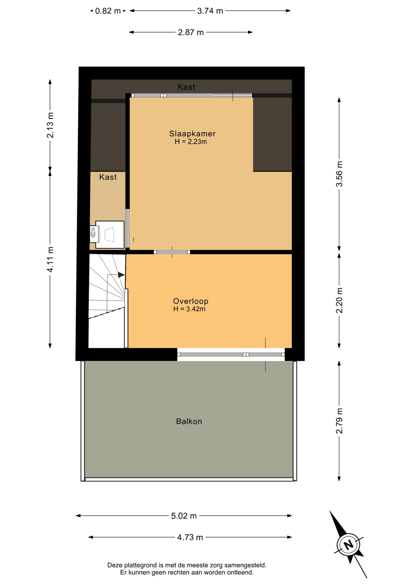
1e verdieping
Overloop met ruime hoofdslaapkamer aan de voorzijde van de woning. Moderne, vernieuwde badkamer (2022) voorzien van een inloopdouche, wastafel met meubel en spiegel en een tweede toilet.
Aan de achterzijde bevinden zich de tweede en derde slaapkamer. Op de overloop is tevens een bergkast aanwezig.

2e verdieping
Ruime overloop met toegang tot het zonnige dakterras aan de voorzijde, met vrij uitzicht over de groenvoorzieningen en speeltuinen. De vierde slaapkamer is voorzien van een dakkapel aan de achterzijde en toegang tot een bergkast met de opstelplaats voor de cv-combiketel, mechanische ventilatie, wasmachine en droger.
Op het dakterras is, middels vergunning, een uitbouw met extra kamer mogelijk.

Bijzonderheden
• Eigen grond
• Vrije ligging aan de voorzijde
• Moderne badkamer (2022)
• Dakterras met extra uitbouwmogelijkheid
• Energielabel A
• Volledig voorzien van kunststof kozijnen
• Verwarming middels cv-combiketel
• Gunstige ligging nabij diverse voorzieningen
• Op loopafstand van winkels, sportvoorzieningen en scholen
• Gelegen in de kindvriendelijke wijk Emerald, nabij uitvalswegen
• Verkoopvoorwaarden Ruseler & Van Herk Makelaars van toepassing
• Oplevering in overleg

Alle verstrekte informatie moet beschouwd worden als een uitnodiging tot het doen van een bod of om in onderhandeling te treden. Wij behartigen de belangen van de verkopende partij. Neem uw eigen NVM-aankoopmakelaar mee.

"Deze informatie is door ons met de nodige zorgvuldigheid samengesteld. Onzerzijds wordt echter geen enkele aansprakelijkheid aanvaard voor enige onvolledigheid, onjuistheid of anderszins, dan wel de gevolgen daarvan. Alle opgegeven maten en oppervlakten zijn indicatief. Van toepassing zijn de NVM voorwaarden".

Gebruiksoppervlakte woningen
De Meetinstructie is gebaseerd op de NEN2580. De Meetinstructie is bedoeld om een meer eenduidige manier van meten toe te passen voor het geven van een indicatie van de gebruiksoppervlakte. De Meetinstructie sluit verschillen in meetuitkomsten niet volledig uit, door bijvoorbeeld interpretatieverschillen, afrondingen of beperkingen bij het uitvoeren van de meting.

Kenmerken

Basiskenmerken

  • Status Beschikbaar
  • Koopsom € 545.000 k.k.
  • Woonoppervlakte ca. 112 m2
  • Aantal slaapkamers 4
  • Bouwjaar 1998

Overdracht

  • Aanvaarding In overleg

Bouwvorm & onderhoud

  • Soort object Tussenwoning
  • Soort woning Eengezinswoning
  • Bouwjaar 1998
  • Soort bouw woonhuis
  • Ligging Aan rustige weg, in woonwijk, vrij uitzicht

Oppervlakte & inhoud

  • Gebruiksoppervlakte 112m2
  • Perceeloppervlakte 109m2
  • Inhoud 383m3
  • Aantal kamers 5
  • Aantal slaapkamers 4
  • Aantal woonlagen 3 woonlagen

Energie & installatie

  • Energielabel A
  • Isolatie Dakisolatie, muurisolatie, vloerisolatie, dubbel glas, hr glas
  • Verwarming Cv ketel
  • Warm water Cv ketel
  • C.v.-ketel type GAS
  • C.v.-ketel bouwjaar 2011
  • Energie einddatum 28-01-2036

Bergruimte

  • Schuur / berging Vrijstaand hout
  • Voorzieningen Voorzien van elektra

Parkeergelegenheid

  • Parkeerfaciliteiten Openbaar parkeren
  • Garage Geen garage

Dak

  • Soort dak Lessenaardak

Overig

  • Onderhoud binnen Goed
  • Onderhoud buiten Goed
  • Bijzonderheden Gedeeltelijk gestoffeerd
  • Permanente bewoning Ja
  • Huidig gebruik Woonruimte
  • Huidige bestemming Woonruimte

Voorzieningen

  • Voorzieningen Mechanische ventilatie, tv kabel, glasvezel kabel

Buitenruimte

  • Hoofdtuin ACHTERTUIN
  • Oppervlakte hoofdtuin 48m2
  • Ligging hoofdtuin NOORDOOST
  • Kwaliteit tuin Normaal

Kadastrale gegevens

  • Perceelnummer 3236
  • Perceeloppervlakte 109 m2
Meer kenmerken
Ontdek online wat jouw huis waard is

Met de online waardecheck ontdek je in een paar minuten de geschatte waarde van jouw huis!

Gratis waardecheck

In de buurt

Geïnteresseerd?

Bel met WoonSchuijt Makelaars

shape

Stuur een bericht

* Maximaal 255 tekens
privacyverklaring