Chat with us, powered by LiveChat Peperdonk 10, 3206 CB SPIJKENISSE - WoonSchuijt Makelaars

Spijkenisse

Peperdonk  10

€ 395.000,- k.k.

Omschrijving

OPVALLEND VEEL RUIMTE EN EEN ZONNIGE TUIN Ben je op zoek naar een ruim huis met vier-/vijf slaapkamers, een zonnige tuin op het zuiden en een rustige ligging? Dan zit je hier goed. Dit huis aan de Peperdonk combineert een praktische indeling met verrassend veel leefruimte, verdeeld over drie woonlagen (woonoppervlakte 131m²). De lichte woonkamer en de fijne achtertuin…

OPVALLEND VEEL RUIMTE EN EEN ZONNIGE TUIN
Ben je op zoek naar een ruim huis met vier-/vijf slaapkamers, een zonnige tuin op het zuiden en een rustige ligging? Dan zit je hier goed. Dit huis aan de Peperdonk combineert een praktische indeling met verrassend veel leefruimte, verdeeld over drie woonlagen (woonoppervlakte 131m²). De lichte woonkamer en de fijne achtertuin zorgen voor een prettige basis voor dagelijks wonen én ontspannen. Met vier volwaardige slaapkamers is er ruimte genoeg voor een gezin, thuiswerken of hobby’s. De ligging aan het park geeft een vrij en groen gevoel, terwijl alle voorzieningen dichtbij zijn. Een huis waar je direct je eigen plek van maakt en nog jarenlang comfortabel woont.

RUIMTE EN LICHT DOOR HELE HUIS
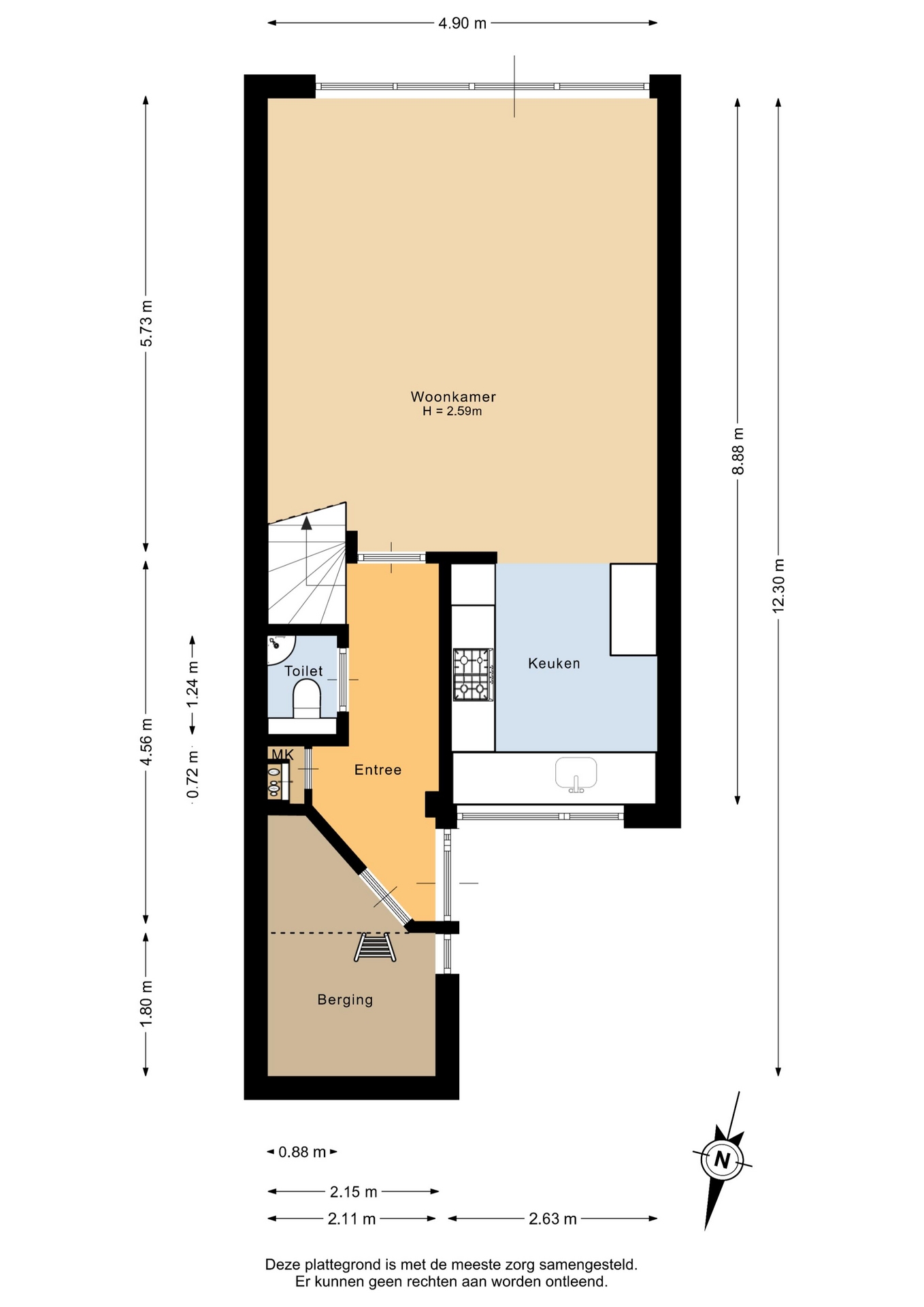
Wat direct opvalt bij dit huis is de fijne breedte en de hoeveelheid licht. De woonkamer aan de achterzijde is ruim opgezet en biedt met circa 28 m² alle ruimte voor een comfortabele zithoek en een grote eettafel. Dankzij de brede pui naar de tuin valt het daglicht hier rijkelijk naar binnen, wat zorgt voor een prettige en open sfeer.

De keuken bevindt zich aan de voorzijde en is praktisch ingedeeld in een hoekopstelling. Hier heb je voldoende werkruimte en kastruimte, terwijl je tegelijkertijd leuk contact houdt met de straatzijde. De indeling van de begane grond is logisch en efficiënt, met daarnaast een hal, toilet en een handige inpandige berging aan de voorzijde.

Wat extra prettig is: de aangebouwde berging biedt volop ruimte voor fietsen, voorraad of gereedschap. Ideaal voor dagelijks gebruik en zorgt ervoor dat het huis netjes en opgeruimd blijft.

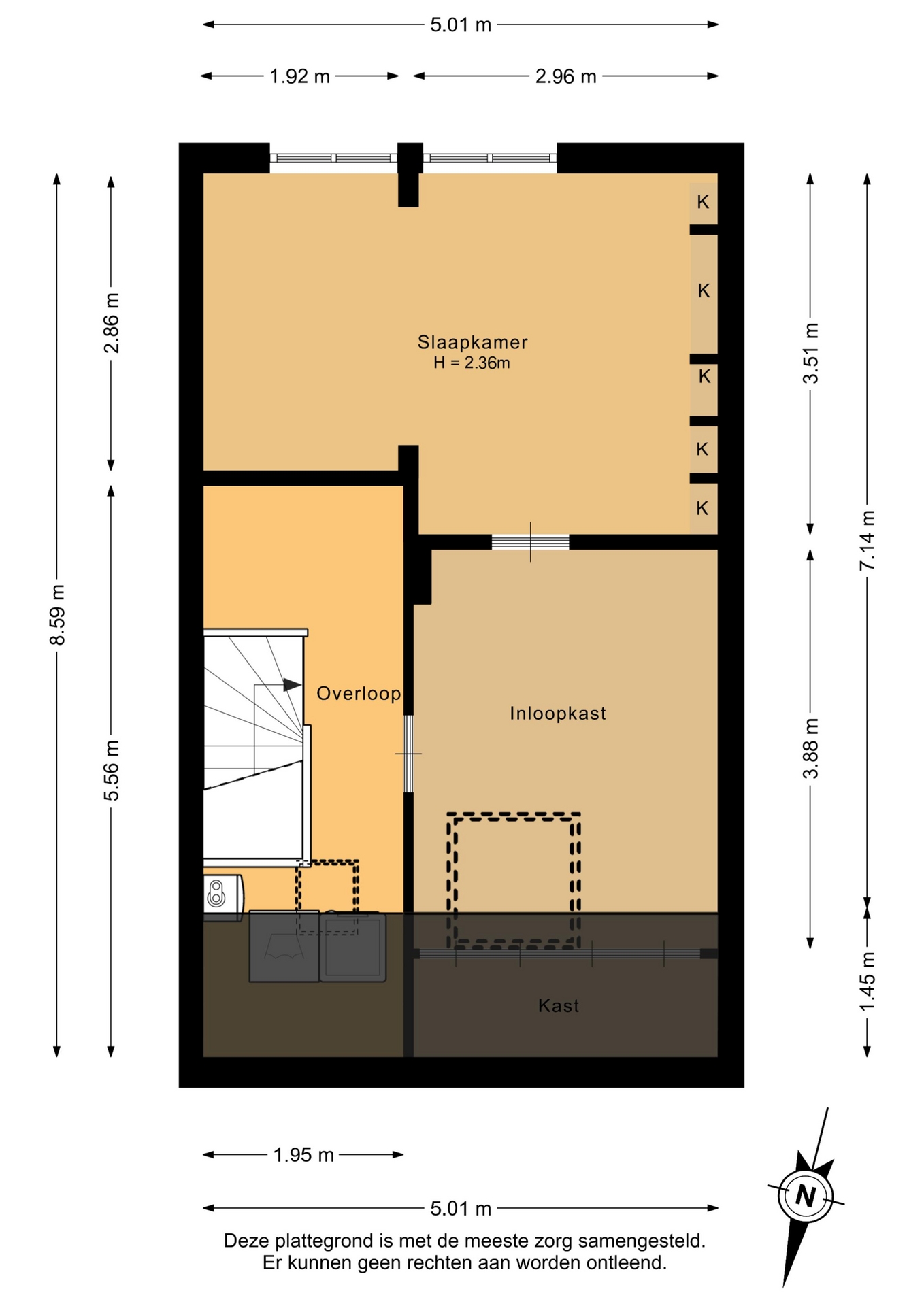
VIER-/ VIJF SLAAPKAMERS EN MODERNE BADKAMER
Op de eerste verdieping vind je drie goed bemeten slaapkamers. De grootste slaapkamer springt er direct uit door de fijne afmetingen en het prettige licht. Deze kamer biedt meer dan voldoende ruimte voor een groot bed en een kledingkast. De overige kamers zijn perfect als kinderkamer, werkkamer of hobbyruimte.

De badkamer is modern uitgevoerd en voorzien van een inloopdouche, wastafelmeubel en een toilet. De afwerking is strak en tijdloos, waardoor je hier weinig omkijken naar hebt.

De tweede verdieping maakt het geheel compleet. Hier bevindt zich een vierde slaapkamer en een ruime overloop met extra bergruimte en een inloopkast. Ook de wasruimte en de opstelling van de cv-ketel (Intergas, 2021) zijn hier gesitueerd. Deze verdieping is multifunctioneel en biedt volop mogelijkheden voor bijvoorbeeld een thuiswerkplek of logeerkamer.

ONDERHOUDSVRIENDELIJK EN ENERGIEZUINIG
Dit huis is gebouwd in 1983 en door de jaren heen goed onderhouden. Het geheel is voorzien van dak-, muur- en vloerisolatie en beschikt over HR++ glas. Dit zorgt voor een comfortabel binnenklimaat, zowel in de winter als in de zomer.

Daarnaast zijn er zonnepanelen aanwezig, wat bijdraagt aan lagere energielasten. Met energielabel B zit je hier al goed en heb je een solide basis voor de toekomst.

De combinatie van onderhoudsvriendelijke materialen en duurzame voorzieningen maakt dit een huis waar je zonder grote zorgen in kunt trekken.

ZONNIGE TUIN OP HET ZUIDEN
De achtertuin is een fijne plek om te ontspannen. Met een ligging op het zuiden geniet je hier optimaal van de zon gedurende de dag. De tuin is verzorgd aangelegd en biedt voldoende ruimte voor een gezellige zithoek, eettafel en eventueel speelruimte.

Achterin de tuin bevinden zich een extra houten schuur, ideaal voor extra opslag. Daarnaast is er een handige achterom aanwezig.

De voortuin zorgt voor extra afstand tot de straat en draagt bij aan een prettig gevoel van privacy en ruimte bij binnenkomst.

RUSTIG WONEN EN EEN VRIJE LIGGING AAN DE ACHTERZIJDE
De ligging van dit huis is absoluut een pluspunt. Je woont hier aan een rustige weg, vrije ligging aan de achterzijde. Dit zorgt voor een open en groene woonomgeving waar je dagelijks van geniet.

De wijk is kindvriendelijk en voorzien van diverse speelplekken, scholen en winkels in de directe omgeving. Ook sportfaciliteiten en openbaar vervoer zijn goed bereikbaar. Binnen korte tijd ben je onderweg richting Rotterdam en omliggende plaatsen.

Kortom: een fijne plek voor starters en jonge doorstromers die op zoek zijn naar ruimte, rust en een praktische indeling.

BELANGRIJKSTE KENMERKEN OP EEN RIJ:
- Woonoppervlakte: 131 m²
- Perceeloppervlakte: 113 m²
- Bouwjaar: 1983
- Energielabel: B
- 10 zonnepanelen
- Volledig v.v. kunststof kozijnen met HR++ glas
- Dubbel openslaande deuren naar zonnige tuin
- Tuin op het Zuiden met elektrische zonwering
- Moderne badkamer
- Rechte gevels aan de achterzijde over drie verdiepingen
- Aanvaarding: In overleg (richtlijn augustus 2026)

Toelichtingsclausule NEN2580:
De Meetinstructie is gebaseerd op de NEN2580. De Meetinstructie is bedoeld om een meer eenduidige manier van meten toe te passen voor het geven van een indicatie van de gebruiksoppervlakte. De Meetinstructie sluit verschillen in meetuitkomsten niet volledig uit, door bijvoorbeeld interpretatieverschillen, afrondingen of beperkingen bij het uitvoeren van de meting.

“Deze informatie is door ons met de nodige zorgvuldigheid samengesteld. Onzerzijds wordt echter geen enkele aansprakelijkheid aanvaard voor enige onvolledigheid, onjuistheid of anderszins, dan wel de gevolgen daarvan. Alle opgegeven maten en oppervlakten zijn indicatief.”

Koopovereenkomst pas rechtsgeldig na ondertekening:
Een mondelinge overeenstemming tussen de particuliere verkoper en de particuliere koper is niet rechtsgeldig. Met andere woorden: er is geen koop. Er is pas sprake van een rechtsgeldige koop als de particuliere verkoper en de particuliere koper de koopovereenkomst hebben ondertekend. Dit vloeit voort uit artikel 7:2 Burgerlijk Wetboek. Een bevestiging van de mondelinge overeenstemming per e-mail of een toegestuurd concept van de koopovereenkomst wordt overigens niet gezien als een 'ondertekende koopovereenkomst'.

Kenmerken

Basiskenmerken

  • Status Beschikbaar
  • Koopsom € 395.000 k.k.
  • Woonoppervlakte ca. 131 m2
  • Aantal slaapkamers 4
  • Bouwjaar 1983

Overdracht

  • Aanvaarding In overleg

Bouwvorm & onderhoud

  • Soort object Tussenwoning
  • Soort woning Eengezinswoning
  • Bouwjaar 1983
  • Soort bouw woonhuis
  • Ligging Aan park, aan rustige weg, in woonwijk, vrij uitzicht, open ligging

Oppervlakte & inhoud

  • Gebruiksoppervlakte 131m2
  • Perceeloppervlakte 113m2
  • Inhoud 442m3
  • Aantal kamers 6
  • Aantal slaapkamers 4
  • Aantal woonlagen 3 woonlagen
  • Overige inpandige ruimte 2m2

Energie & installatie

  • Energielabel B
  • Isolatie Dakisolatie, muurisolatie, vloerisolatie
  • Verwarming Cv ketel
  • Warm water Cv ketel
  • C.v.-ketel type GAS
  • C.v.-ketel bouwjaar 2021
  • Energie einddatum 26-11-2030

Bergruimte

  • Schuur / berging Aangebouwd steen
  • Voorzieningen Voorzien van elektra

Parkeergelegenheid

  • Parkeerfaciliteiten Openbaar parkeren
  • Garage Geen garage

Dak

  • Soort dak Samengesteld dak

Overig

  • Onderhoud binnen Goed
  • Onderhoud buiten Goed
  • Bijzonderheden Gedeeltelijk gestoffeerd
  • Permanente bewoning Ja
  • Huidig gebruik Woonruimte
  • Huidige bestemming Woonruimte

Voorzieningen

  • Voorzieningen Mechanische ventilatie, tv kabel, buitenzonwering, dakraam, glasvezel kabel, zonnepanelen, natuurlijke ventilatie

Buitenruimte

  • Hoofdtuin ACHTERTUIN
  • Oppervlakte hoofdtuin 49m2
  • Ligging hoofdtuin ZUID
  • Kwaliteit tuin Verzorgd

Kadastrale gegevens

  • Perceelnummer 5474
  • Perceeloppervlakte 113 m2
Meer kenmerken
Ontdek online wat jouw huis waard is

Met de online waardecheck ontdek je in een paar minuten de geschatte waarde van jouw huis!

Gratis waardecheck

In de buurt

Geïnteresseerd?

Bel met WoonSchuijt Makelaars

shape

Stuur een bericht

* Maximaal 255 tekens
privacyverklaring