Chat with us, powered by LiveChat Overschiesestraat 48 A, 3112 HG SCHIEDAM - WoonSchuijt Makelaars

Schiedam

Overschiesestraat  48 A

€ 348.000,- k.k.

Omschrijving

Ruime bovenwoning met uitzicht over het water, twee balkons en 5 slaapkamers! Aan de gezellige Overschiesestraat in Schiedam, direct aan de wandelpromenade, vind je deze ruime bovenwoning met een vrij uitzicht over het water. De woning beschikt over een eigen entree vanaf de straat en strekt zich uit over twee volledige woonverdiepingen én een zolderverdieping. Het…

Ruime bovenwoning met uitzicht over het water, twee balkons en 5 slaapkamers!

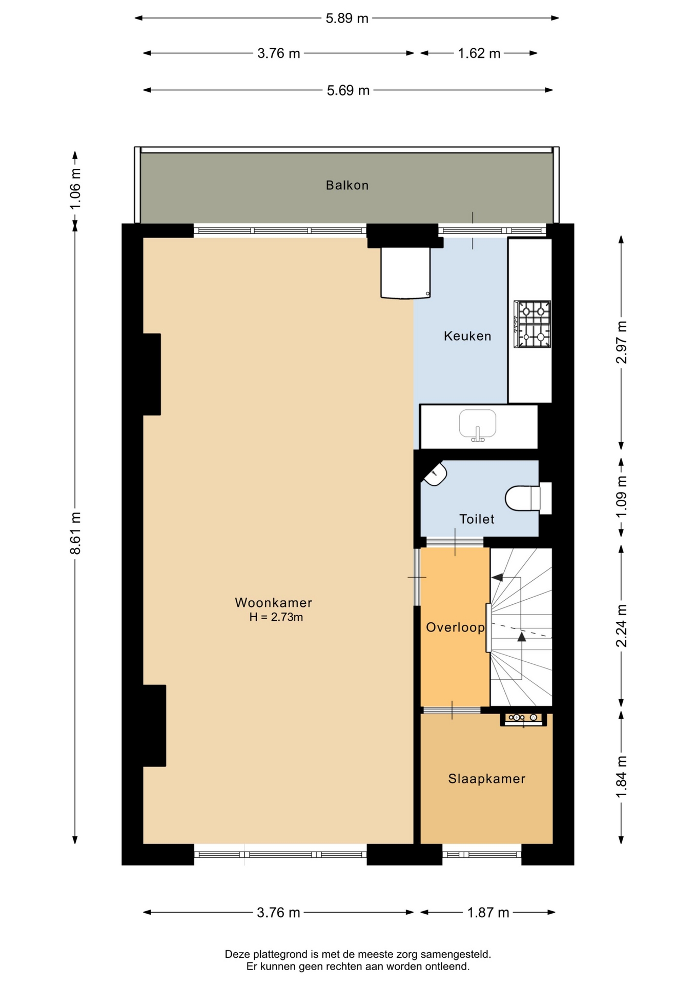
Aan de gezellige Overschiesestraat in Schiedam, direct aan de wandelpromenade, vind je deze ruime bovenwoning met een vrij uitzicht over het water. De woning beschikt over een eigen entree vanaf de straat en strekt zich uit over twee volledige woonverdiepingen én een zolderverdieping. Het totaal biedt een verrassende hoeveelheid ruimte en mogelijkheden, ideaal voor starters of doorstromers die nét dat beetje extra zoeken.

De eerste verdieping vormt het hart van de woning. Hier vind je de royale doorzon woonkamer, met grote raampartijen en een prachtig uitzicht aan de voorzijde. Aan de achterzijde heb je toegang tot een balkon over de volle breedte van het huis, een fijne plek om buiten te zitten. De functionele keuken ligt aan de achterzijde en is praktisch ingericht. Verder beschikt deze verdieping over een apart toilet en een extra kamer aan de voorzijde. Deze is perfect in te zetten als werkkamer, hobbyruimte of compacte logeerkamer.

RIANTE SLAAPKAMERS EN EEN TERRAS
Op de tweede verdieping bevinden zich twee ruime slaapkamers, gelegen aan de voor- en achterzijde. De kamer aan de achterzijde geeft toegang tot een royaal terras, ideaal voor een ontspannen koffiemoment in de zon of om de dag af te sluiten met een borrel. Daarnaast is er nog een derde kamer aan de voorzijde, handig als kinderkamer, werkkamer of inloopkast. De badkamer ligt centraal en beschikt over een douchecabine, wastafel en toilet, praktisch en netjes.

Een vaste trap brengt je naar de zolderverdieping. Deze verdieping is momenteel in gebruik als wasruimte én heeft nog een slaapkamer, die goed zou kunnen dienen als bijvoorbeeld een werkplek, logeerruimte of master bedroom.

CENTRAAL GELEGEN EN TOCH RUSTIG
De ligging aan de Overschiesestraat is absoluut een pluspunt. Aan de voorzijde kijk je uit over het water en de vernieuwde wandelpromenade, een fijne plek voor een wandeling of om even op een bankje van het uitzicht te genieten. Schiedam heeft een charmant stadscentrum met een mix van historische panden, hippe horecazaken, kleine winkels en cultuur. Via het nabijgelegen openbaar vervoer of de uitvalswegen ben je zó in Rotterdam of andere steden in de regio. Voor dagelijkse boodschappen, scholen en sportclubs hoef je de wijk nauwelijks uit. Kortom: een heerlijke plek om te wonen, of je nu starter bent, wilt doorstromen of gewoon graag ruim en centraal wilt wonen.

KENMERKEN
- Eigen grond
- Bouwjaar 1938
- Woonoppervlakte ca. 102 M²
- Energielabel C
- 5 Ruime slaapkamers
- 2 Balkons op het oosten
- 3 Volwaardige woonlagen
- Uitzicht over het water aan de voorzijde
- Centraal gelegen met voorzieningen als winkels, horeca en openbaar vervoer nabij
- Verwarming en warm water via CV-ketel (2009)
- Actieve VvE, maandelijkse bijdrage van ca. € 230,- per maand
- Ouderdomsclausule van toepassing
- Oplevering in overleg

INTERESSE? MAAK DAN SNEL EEN AFSPRAAK!
Ons advies is om bij het kopen van jouw nieuwe huis altijd jouw eigen NVM makelaar mee te nemen.

TOELICHTINGSCLAUSULE NEN2580
De Meetinstructie is gebaseerd op de NEN2580. De Meetinstructie is bedoeld om een meer eenduidige manier van meten toe te passen voor het geven van een indicatie van de gebruiksoppervlakte. De Meetinstructie sluit verschillen in meetuitkomsten niet volledig uit, door bijvoorbeeld interpretatieverschillen, afrondingen of beperkingen bij het uitvoeren van de meting.

KOOPOVEREENKOMST PAS RECHTSGELDIG NA ONDERTEKENING
Een mondelinge overeenstemming tussen de particuliere verkoper en de particuliere koper is niet rechtsgeldig. Met andere woorden: er is geen koop. Er is pas sprake van een rechtsgeldige koop als de particuliere verkoper en de particuliere koper de koopovereenkomst hebben ondertekend. Dit vloeit voort uit artikel 7:2 Burgerlijk Wetboek. Een bevestiging van de mondelinge overeenstemming per e-mail of een toegestuurd concept van de koopovereenkomst wordt overigens niet gezien als een 'ondertekende koopovereenkomst'

“Deze informatie is door ons met de nodige zorgvuldigheid samengesteld. Onzerzijds wordt echter geen enkele aansprakelijkheid aanvaard voor enige onvolledigheid, onjuistheid of anderszins, dan wel de gevolgen daarvan. Alle opgegeven maten en oppervlakten zijn indicatief.”

Kenmerken

Basiskenmerken

  • Status Verkocht onder voorbehoud
  • Koopsom € 348.000 k.k.
  • Woonoppervlakte ca. 102 m2
  • Aantal slaapkamers 5
  • Bouwjaar 1938

Overdracht

  • Aanvaarding In overleg

Bouwvorm & onderhoud

  • Bouwjaar 1938
  • Soort bouw woonhuis
  • Ligging Aan water, in centrum, vrij uitzicht

Oppervlakte & inhoud

  • Gebruiksoppervlakte 102m2
  • Inhoud 353m3
  • Aantal kamers 6
  • Aantal slaapkamers 5
  • Aantal woonlagen 3 woonlagen

Energie & installatie

  • Energielabel C
  • Isolatie Dakisolatie, dubbel glas
  • Verwarming Cv ketel
  • Warm water Cv ketel
  • C.v.-ketel type GAS
  • C.v.-ketel bouwjaar 2009
  • Energie einddatum 19-01-2036

Bergruimte

  • Schuur / berging Vrijstaand hout

Parkeergelegenheid

  • Parkeerfaciliteiten Openbaar parkeren, betaald parkeren, parkeervergunningen
  • Garage Geen garage

Dak

  • Soort dak Zadeldak

Overig

  • Onderhoud binnen Goed
  • Onderhoud buiten Goed
  • Permanente bewoning Ja
  • Huidig gebruik Woonruimte
  • Huidige bestemming Woonruimte

Voorzieningen

  • Voorzieningen Mechanische ventilatie, tv kabel, glasvezel kabel, natuurlijke ventilatie

Kadastrale gegevens

  • Perceelnummer 5594
Meer kenmerken
Ontdek online wat jouw huis waard is

Met de online waardecheck ontdek je in een paar minuten de geschatte waarde van jouw huis!

Gratis waardecheck

In de buurt