Chat with us, powered by LiveChat Nieuwe Binnenweg 287 B 01, 3021 GG ROTTERDAM - WoonSchuijt Makelaars

Rotterdam

Nieuwe Binnenweg  287 B 01

€ 465.000,- k.k.

Omschrijving

Stijlvol gerenoveerd 4-kamerappartement met luxe open keuken, moderne badkamer en balkon aan de Nieuwe Binnenweg Aan de levendige Nieuwe Binnenweg bevindt zich dit hoogwaardig gerenoveerde 4-kamerappartement, gelegen in een karakteristiek pand uit 1895. De woning is in 2025/2026 volledig vernieuwd en biedt een uitgebalanceerde combinatie van comfort, indeling en…

Stijlvol gerenoveerd 4-kamerappartement met luxe open keuken, moderne badkamer en balkon aan de Nieuwe Binnenweg

Aan de levendige Nieuwe Binnenweg bevindt zich dit hoogwaardig gerenoveerde 4-kamerappartement, gelegen in een karakteristiek pand uit 1895. De woning is in 2025/2026 volledig vernieuwd en biedt een uitgebalanceerde combinatie van comfort, indeling en afwerking op niveau.

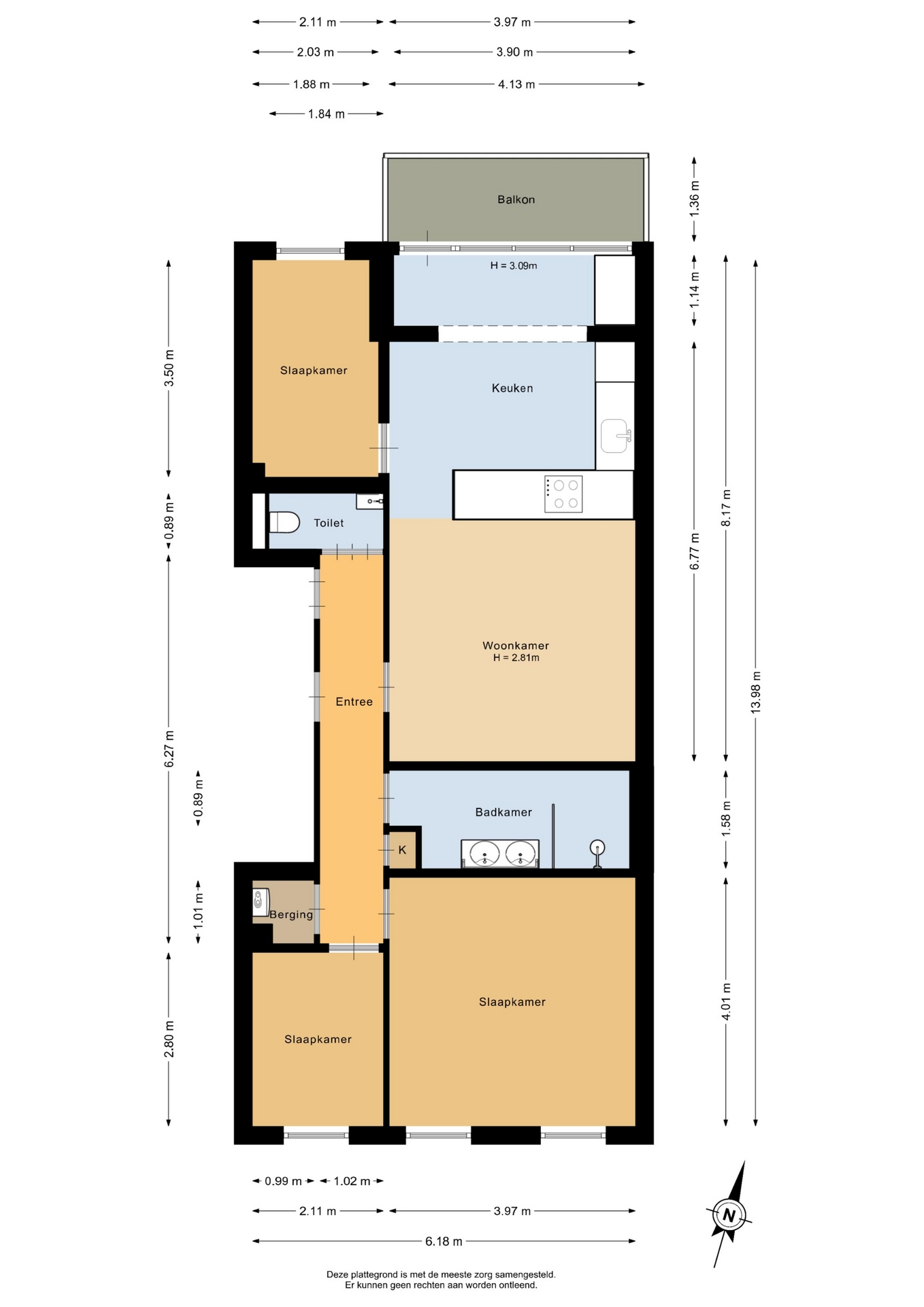
Met een lichte woonkamer, open keuken met baropstelling, drie slaapkamers, een moderne badkamer en een balkon aan de achterzijde is dit een woning waar kwaliteit en rust samenkomen.

HOOGWAARDIGE LEEFKEUKEN ALS CENTRAAL PUNT VAN DE WONING
De keuken vormt het hart van de woning. Uitgevoerd met een royaal werkblad dat tevens fungeert als bar, waardoor koken en samenzijn moeiteloos samenkomen.
De keuken is voorzien van een Quooker, kookplaat met geïntegreerde afzuiging en hoogwaardige inbouwapparatuur. De strakke belijning en rustige kleurstelling sluiten naadloos aan bij de warme visgraatvloer en het lichte interieur. De directe verbinding met het balkon aan de achterzijde zorgt voor extra lichtinval en een prettige ruimtelijke beleving.

LUXE BADKAMER MET HOTELUITSTRALING
De badkamer is modern afgewerkt en voorzien van een ruime inloopdouche, dubbele wastafel met meubel en verlichte spiegels.
De combinatie van warme wandafwerking, natuursteenlook tegels en zwarte accenten zorgt voor een rustige, moderne uitstraling. Een ruimte die comfort en design moeiteloos combineert.

EFFICIËNTE INDELING MET TWEE VOLWAARDIGE SLAAPKAMERS
De woning beschikt over een logische en overzichtelijke plattegrond. De woonkamer bevindt zich centraal in de woning en biedt voldoende ruimte voor een comfortabele zithoek.
Aan zowel de voor- als achterzijde bevinden zich kamers, flexibel in te richten als hoofdslaapkamer, werkkamer of logeerkamer.
De hal verbindt alle ruimtes op een rustige en praktische manier.

BALKON EN CENTRALE LIGGING
Het balkon aan de achterzijde biedt een prettige buitenruimte in stedelijke omgeving.
De Nieuwe Binnenweg staat bekend om haar levendigheid en diversiteit. Horeca, speciaalzaken, supermarkten en openbaar vervoer bevinden zich op loopafstand. Het centrum en Rotterdam Centraal zijn snel bereikbaar.
Hier woont u centraal, maar met comfort en kwaliteit als basis.

KENMERKEN
- Gelegen op eigen grond
- Woonoppervlakte ca. 81 m²
- Energielabel A
- Bouwjaar 1895
- Volledig gerenoveerd in 2025/2026
- Luxe open keuken met baropstelling voorzien van Quooker en kookplaat met geïntegreerde afzuiging
- Moderne badkamer met dubbele wastafel
- Nieuwe vloeren door de gehele woning
- Nieuwe C.V.-installatie
- HR++ beglazing
- Balkon aan de achterzijde
- VvE wordt geactiveerd
- Ouderdomsclausule en niet-zelfbewoningsclausule van toepassing
- Oplevering in overleg, kan snel

INTERESSE? MAAK DAN SNEL EEN AFSPRAAK!
Ons advies is om bij het kopen van jouw nieuwe huis altijd jouw eigen NVM makelaar mee te nemen.

TOELICHTINGSCLAUSULE NEN2580
De Meetinstructie is gebaseerd op de NEN2580. De Meetinstructie is bedoeld om een meer eenduidige manier van meten toe te passen voor het geven van een indicatie van de gebruiksoppervlakte. De Meetinstructie sluit verschillen in meetuitkomsten niet volledig uit, door bijvoorbeeld interpretatieverschillen, afrondingen of beperkingen bij het uitvoeren van de meting.

KOOPOVEREENKOMST PAS RECHTSGELDIG NA ONDERTEKENING
Een mondelinge overeenstemming tussen de particuliere verkoper en de particuliere koper is niet rechtsgeldig. Met andere woorden: er is geen koop. Er is pas sprake van een rechtsgeldige koop als de particuliere verkoper en de particuliere koper de koopovereenkomst hebben ondertekend. Dit vloeit voort uit artikel 7:2 Burgerlijk Wetboek. Een bevestiging van de mondelinge overeenstemming per e-mail of een toegestuurd concept van de koopovereenkomst wordt overigens niet gezien als een 'ondertekende koopovereenkomst'

“Deze informatie is door ons met de nodige zorgvuldigheid samengesteld. Onzerzijds wordt echter geen enkele aansprakelijkheid aanvaard voor enige onvolledigheid, onjuistheid of anderszins, dan wel de gevolgen daarvan. Alle opgegeven maten en oppervlakten zijn indicatief.”

Kenmerken

Basiskenmerken

  • Status Onder bod
  • Koopsom € 465.000 k.k.
  • Woonoppervlakte ca. 81 m2
  • Aantal slaapkamers 3
  • Bouwjaar 1895

Overdracht

  • Aanvaarding In overleg

Bouwvorm & onderhoud

  • Bouwjaar 1895
  • Soort bouw woonhuis
  • Ligging In centrum, vrij uitzicht

Oppervlakte & inhoud

  • Gebruiksoppervlakte 81m2
  • Inhoud 277m3
  • Aantal kamers 4
  • Aantal slaapkamers 3
  • Aantal woonlagen 1 woonlagen

Energie & installatie

  • Energielabel A
  • Isolatie Dakisolatie, muurisolatie, vloerisolatie, dubbel glas
  • Verwarming Cv ketel
  • Warm water Cv ketel
  • C.v.-ketel type GAS
  • C.v.-ketel bouwjaar 2026
  • Energie einddatum 20-02-2036

Parkeergelegenheid

  • Parkeerfaciliteiten Betaald parkeren, parkeervergunningen
  • Garage Geen garage

Dak

  • Soort dak Zadeldak

Overig

  • Onderhoud binnen Goed tot uitstekend
  • Onderhoud buiten Goed
  • Bijzonderheden Gedeeltelijk gestoffeerd
  • Permanente bewoning Ja
  • Huidig gebruik Woonruimte
  • Huidige bestemming Woonruimte

Voorzieningen

  • Voorzieningen Mechanische ventilatie, glasvezel kabel

Kadastrale gegevens

  • Perceelnummer 6046
Meer kenmerken
Ontdek online wat jouw huis waard is

Met de online waardecheck ontdek je in een paar minuten de geschatte waarde van jouw huis!

Gratis waardecheck

Media

In de buurt

Geïnteresseerd?

Bel met WoonSchuijt Makelaars

shape

Stuur een bericht

* Maximaal 255 tekens
privacyverklaring