Chat with us, powered by LiveChat Lohmanpark 84, 2982 VV RIDDERKERK - WoonSchuijt Makelaars

Ridderkerk

Lohmanpark  84

€ 450.000,- k.k.

Omschrijving

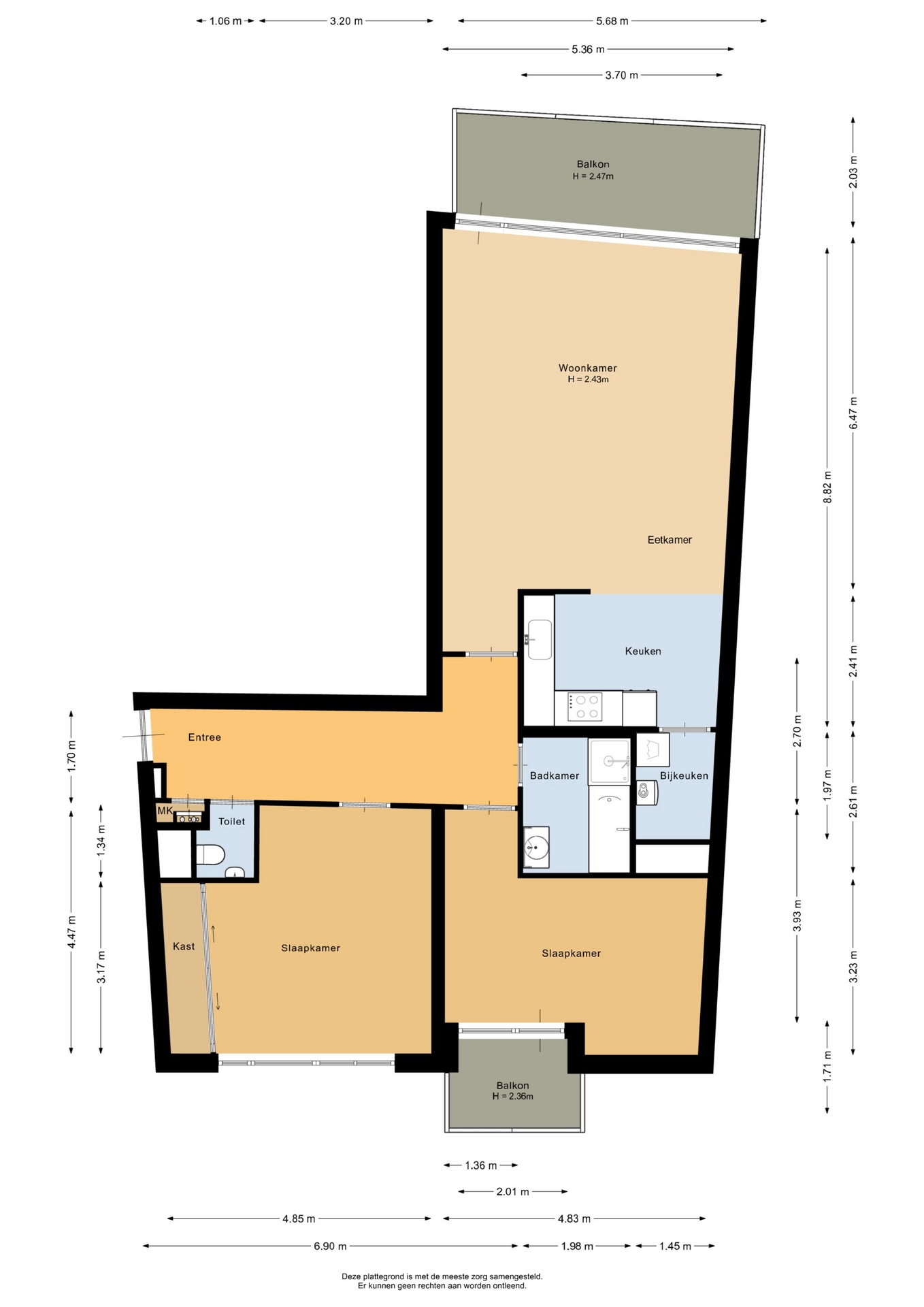
Lohmanpark 84 – Ridderkerk Ruim 3-kamerappartement met twee balkons, lift, eigen parkeerterrein én vrij uitzicht op het park Wonen met rust, ruimte en groen, maar toch midden in het centrum? Dit royale en lichte 3-kamerappartement op de 5e verdieping combineert het allemaal. Met een prachtig vrij uitzicht over het park, een ruim balkon op het westen, een tweede balkon…

Lohmanpark 84 – Ridderkerk

Ruim 3-kamerappartement met twee balkons, lift, eigen parkeerterrein én vrij uitzicht op het park

Wonen met rust, ruimte en groen, maar toch midden in het centrum? Dit royale en lichte 3-kamerappartement op de 5e verdieping combineert het allemaal. Met een prachtig vrij uitzicht over het park, een ruim balkon op het westen, een tweede balkon op het oosten is dit een unieke kans in hartje Ridderkerk.

Het goed onderhouden complex (bouwjaar 1997) is voorzien van een lift, videofooninstallatie en een afgesloten parkeerterrein aan de achterzijde. Hier woon je heerlijk rustig, terwijl het winkelcentrum, supermarkten, weekmarkt, horeca en openbaar vervoer letterlijk om de hoek liggen.
________________________________________
Licht, ruimte en comfort

De ruime woonkamer is een heerlijke leefruimte met grote raampartijen en directe toegang tot het royale balkon op het westen. Hier geniet je volop van de middag- en avondzon met een weids uitzicht over het park – een uniek gevoel van vrijheid midden in de stad.

De open keuken is opgesteld in een praktische hoekopstelling en voorzien van inbouwapparatuur van Siemens. Aansluitend bevindt zich de bijkeuken/wasruimte met de Remeha CV-combiketel (2022) en de mechanische ventilatie.

Twee comfortabele slaapkamers

De ruime ouderslaapkamer heeft een ruime kast. De tweede kamer is ideaal als slaapkamer, werkruimte of hobbykamer.

Badkamer & toilet

De geheel betegelde badkamer beschikt over een douchecabine, een ligbad en een wastafelmeubel. Het toilet is separaat en eveneens volledig betegeld met een fonteintje.

Perfecte ligging

De locatie is werkelijk ideaal. Je loopt zó naar:
• supermarkten en wijkwinkels
• het bruisende centrum van Ridderkerk met horeca rond het Koningsplein
• de weekmarkt
• bushaltes en uitvalswegen richting Rotterdam en Dordrecht
Rustig wonen, met alle voorzieningen binnen handbereik!

Kenmerken
• Bouwjaar: 1997
• Woonoppervlak: ca. 105 m²
• Energielabel: C
• Verwarming en warm water via Remeha CV-combiketel (2022)
• Mechanische ventilatie
• Hardhouten kozijnen met isolerende beglazing
• Videofooninstallatie
• Groot balkon op het westen
• Tweede balkon op het oosten
• Elektrische zonwering
• Lift en afgesloten parkeerterrein
• Kelderbox in de onderbouw

Een royaal, licht en comfortabel appartement met vrij uitzicht op groen, twee balkons en een zeer centrale ligging – dit is wonen op niveau in Ridderkerk.
Maak snel een afspraak en ervaar zelf de ruimte, rust en het prachtige uitzicht!

Van der Giessen & Van Herk Makelaars behartigt de belangen van de verkopende partij. Neem uw eigen NVM aankoopmakelaar mee.

Alle verstrekte informatie moet beschouwd worden als een uitnodiging tot het doen van een bod of om in onderhandeling te treden.

Deze informatie is door ons met de nodige zorgvuldigheid samengesteld. Onzerzijds wordt echter geen enkele aansprakelijkheid aanvaard voor enige onvolledigheid, onjuistheid of anderszins, dan wel de gevolgen daarvan. Alle opgegeven maten en oppervlakten zijn indicatief. Van toepassing zijn de NVM voorwaarden.

Koopovereenkomst pas rechtsgeldig na ondertekening:
Een mondelinge overeenstemming tussen de particuliere verkoper en de particuliere koper is niet rechtsgeldig. Met andere woorden: er is geen koop. Er is pas sprake van een rechtsgeldige koop als de particuliere verkoper en de particuliere koper de koopovereenkomst hebben ondertekend. Dit vloeit voort uit artikel 7:2 Burgerlijk Wetboek. Een bevestiging van de mondelinge overeenstemming per e-mail of een toegestuurd concept van de koopovereenkomst wordt overigens niet gezien als een 'ondertekende koopovereenkomst'.

Toelichtingsclausule NEN2580:
De Meetinstructie is gebaseerd op de NEN2580. De meetinstructie is bedoeld om een meer eenduidige manier van meten toe te passen voor het geven van een indicatie van de gebruiksoppervlakte. De meetinstructie sluit verschillen in meetuitkomsten niet volledig uit, door bijvoorbeeld interpretatieverschillen, afrondingen of beperkingen bij het uitvoeren van de meting.

Kenmerken

Basiskenmerken

  • Status Verkocht onder voorbehoud
  • Koopsom € 450.000 k.k.
  • Woonoppervlakte ca. 106 m2
  • Aantal slaapkamers 2
  • Bouwjaar 1997

Overdracht

  • Aanvaarding In overleg

Bouwvorm & onderhoud

  • Bouwjaar 1997
  • Soort bouw woonhuis
  • Ligging In woonwijk

Oppervlakte & inhoud

  • Gebruiksoppervlakte 106m2
  • Inhoud 324m3
  • Aantal kamers 3
  • Aantal slaapkamers 2
  • Aantal woonlagen 1 woonlagen

Energie & installatie

  • Energielabel C
  • Verwarming Cv ketel
  • Warm water Cv ketel
  • C.v.-ketel type GAS
  • C.v.-ketel bouwjaar 2022
  • Energie einddatum 27-11-2030

Bergruimte

  • Schuur / berging Box

Parkeergelegenheid

  • Parkeerfaciliteiten Openbaar parkeren
  • Garage Geen garage

Dak

  • Soort dak Plat dak

Overig

  • Onderhoud binnen Goed
  • Onderhoud buiten Goed
  • Permanente bewoning Ja
  • Huidig gebruik Woonruimte
  • Huidige bestemming Woonruimte

Voorzieningen

  • Voorzieningen Tv kabel, buitenzonwering

Kadastrale gegevens

  • Perceelnummer 3262
Meer kenmerken
Ontdek online wat jouw huis waard is

Met de online waardecheck ontdek je in een paar minuten de geschatte waarde van jouw huis!

Gratis waardecheck

In de buurt