Chat with us, powered by LiveChat Lippedal 1, 2904 CL CAPELLE AAN DEN IJSSEL - WoonSchuijt Makelaars

Capelle Aan Den Ijssel

Lippedal  1

€ 540.000,- k.k.

Omschrijving

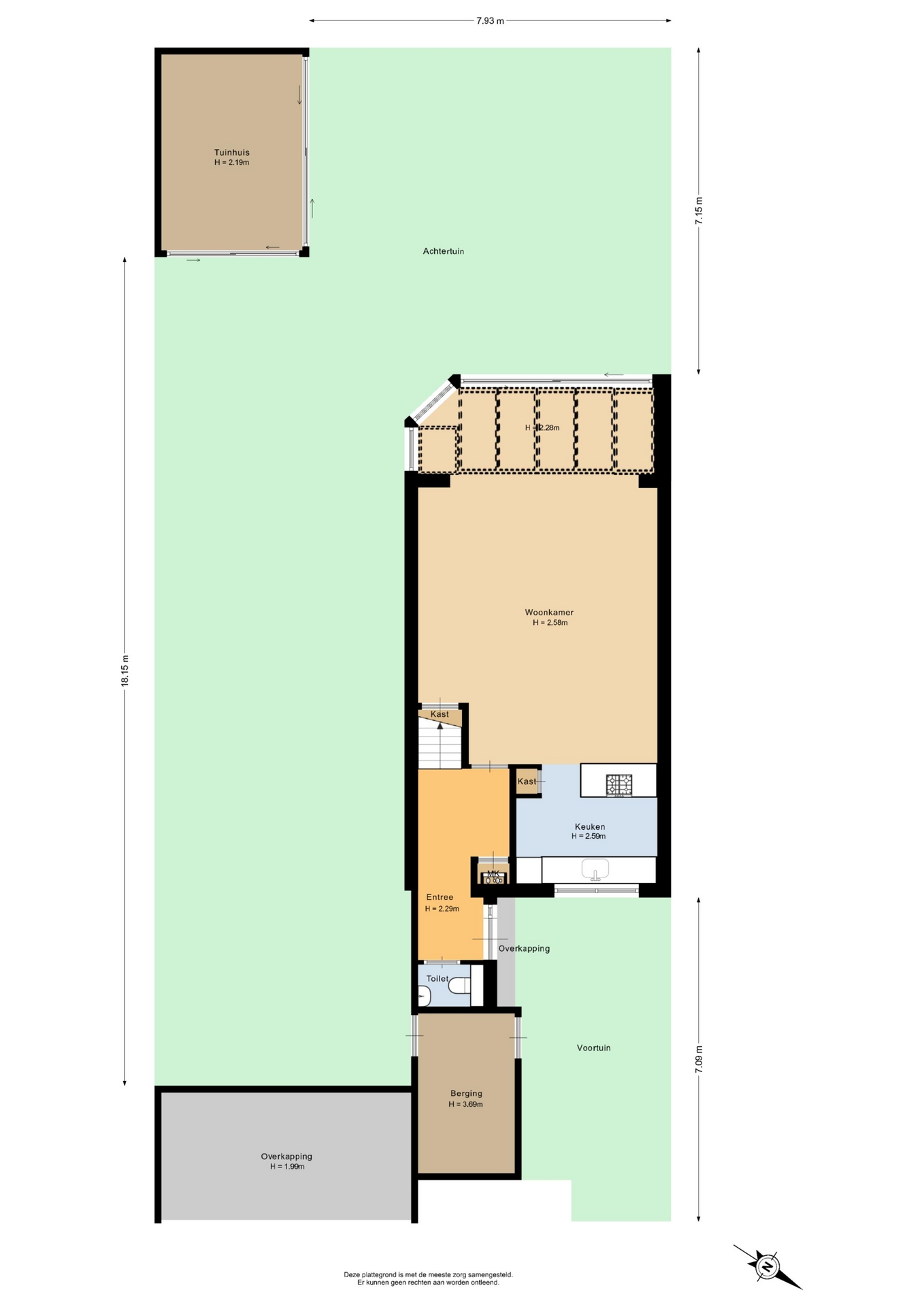
RUIME GEZINSWONING MET VEEL LEEFRUIMTE Dit huis aan het Lippedal biedt precies wat veel gezinnen zoeken: ruimte, licht en een praktische indeling. Met een woonoppervlakte van maar liefst 138 m² is er volop plek om comfortabel te wonen. De woonkamer vormt het hart van het huis. Hier valt meteen op hoe ruim en licht de leefruimte is. Grote raampartijen en de openslaande…

RUIME GEZINSWONING MET VEEL LEEFRUIMTE
Dit huis aan het Lippedal biedt precies wat veel gezinnen zoeken: ruimte, licht en een praktische indeling. Met een woonoppervlakte van maar liefst 138 m² is er volop plek om comfortabel te wonen.

De woonkamer vormt het hart van het huis. Hier valt meteen op hoe ruim en licht de leefruimte is. Grote raampartijen en de openslaande deuren naar de tuin zorgen voor een fijne verbinding tussen binnen en buiten. Hierdoor voelt de woonkamer niet alleen ruim, maar ook heerlijk licht gedurende de dag.
Er is voldoende plek voor een royale zithoek waar je samen kunt ontspannen, terwijl aan de andere zijde ruimte is voor een grote eettafel. Dat maakt dit een fijne plek voor lange diners, spelletjesavonden met het gezin of een gezellige borrel met vrienden.
Door de praktische indeling is de leefruimte goed in te richten en past deze zich gemakkelijk aan aan de wensen van een gezin. Aan de voorzijde van de woning is de keuken gesitueerd met kookeiland en alle benodigde apparatuur.

GROTE ACHTER- EN ZIJTUIN OP HET ZUIDWESTEN
Een van de grote pluspunten van dit huis is zonder twijfel de zeer ruime tuin. Dankzij het royale perceel van 275 m² beschikt het huis niet alleen over een ruime achtertuin, maar ook over een extra zijtuin. Hierdoor ontstaat een heerlijke buitenruimte rondom het huis.
De achtertuin ligt gunstig op het zuidwesten, waardoor je hier vrijwel de hele dag van de zon kunt genieten. De tuin is ruim genoeg voor meerdere zitplekken, zodat je altijd een plek in de zon of juist in de schaduw kunt vinden. De hardhptuen overkapping mét heater is de ideale plek om het gehele jaar door te genieten van de tuin. Daarnaast zorgt de zijtuin voor extra ruimte en privacy. Hierdoor voelt het perceel nog groter aan en ontstaat een vrij gevoel rondom het huis. In een woonwijk waar ruimte soms schaars is, is dit een bijzonder fijne toevoeging.

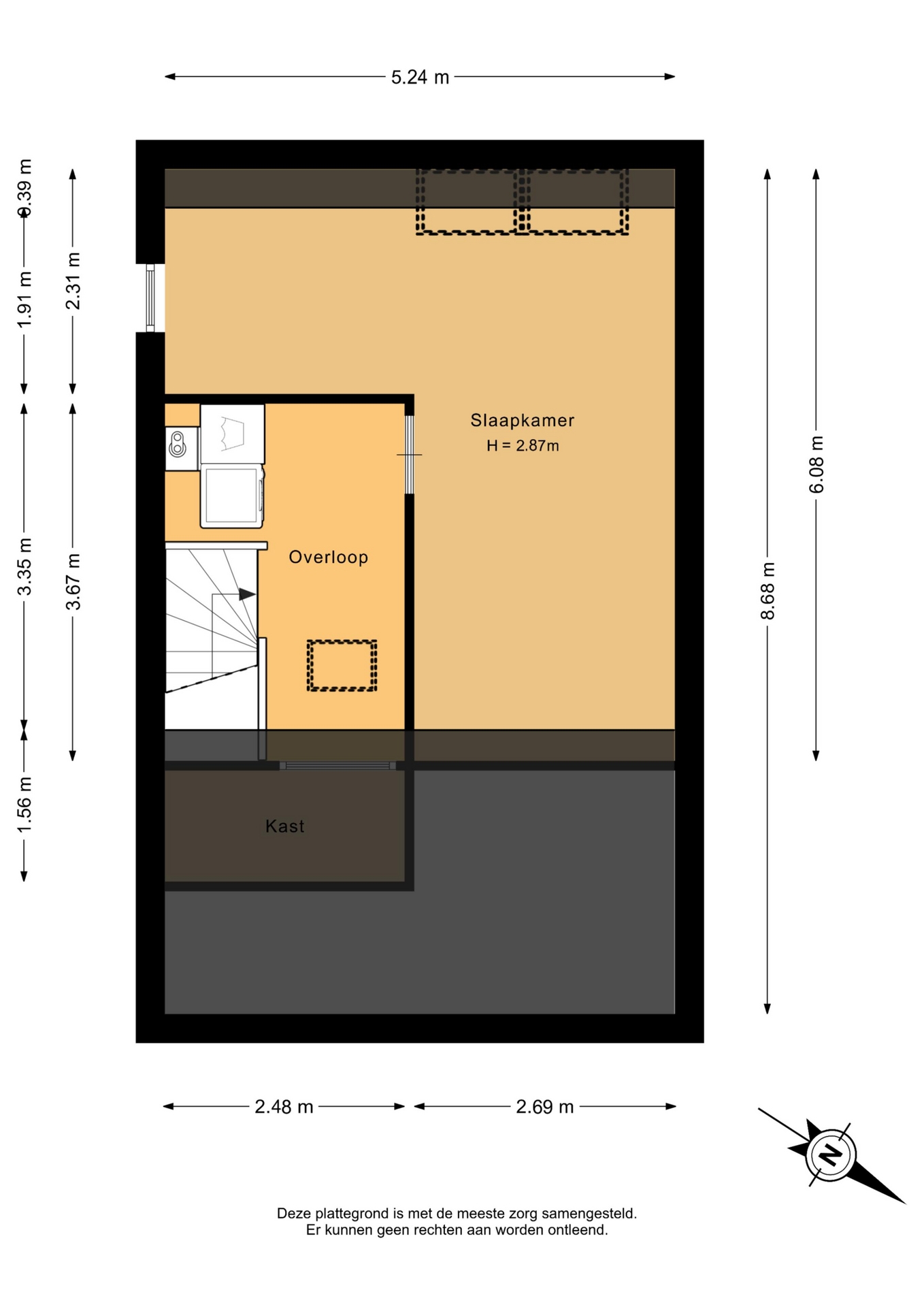
DRIE SLAAPKAMERS EN MODERNE BADKAMER
Het huis beschikt over drie slaapkamers, verdeeld over de verdiepingen. De kamers zijn stuk voor stuk goed van formaat en daardoor flexibel in gebruik.
De grootste slaapkamer biedt volop ruimte voor een groot bed en een kledingkast. De andere slaapkamers zijn ideaal als kinderkamer, logeerkamer of werkruimte. Hierdoor is het huis uitstekend geschikt voor gezinnen die behoefte hebben aan meerdere kamers.
De badkamer is recent gerenoveerd en heeft een moderne en verzorgde uitstraling. Hier vind je een ligbad, een ruime douche en een stijlvol wastafelmeubel met dubbele wastafel. De combinatie van moderne tegels, strakke afwerking en praktische indeling zorgt ervoor dat deze ruimte zowel comfortabel als eigentijds aanvoelt. Met drie woonlagen biedt het huis bovendien voldoende mogelijkheden om de ruimtes naar eigen wens in te delen.

FIJNE EN KINDVRIENDELIJKE WOONOMGEVING
Het Lippedal ligt in een rustige en kindvriendelijke wijk in Capelle aan den IJssel. Dit is een omgeving waar veel gezinnen zich thuis voelen. De wijk kenmerkt zich door ruime straten, groen in de omgeving en diverse speelplekken voor kinderen. Voor dagelijkse voorzieningen zit je hier goed. Supermarkten, winkels en scholen zijn eenvoudig bereikbaar, net als sportverenigingen en andere voorzieningen voor het hele gezin. Hierdoor is alles wat je nodig hebt dichtbij. Ook de bereikbaarheid is prettig. Met het openbaar vervoer en de uitvalswegen ben je snel onderweg richting Rotterdam en omliggende steden. Dat maakt deze locatie aantrekkelijk voor wie rustig wil wonen, maar toch dichtbij de stad wil zijn. Daarnaast zijn er in de omgeving diverse parken en groene plekken waar je kunt wandelen, sporten of gewoon even kunt ontspannen. Hierdoor combineert deze locatie het gemak van de stad met een fijne woonomgeving voor gezinnen.

BIJZONDERHEDEN:
- Bouwjaar 1976;
- Circa 138m² woonoppervlakte;
- Gelegen op 275m² eigen grond;
- 3 (4 kamers mogelijk) slaapkamers op de verdiepingen;
- Badkamer gerenoveerd in 2020;
- Verwarming en warm water middels CV-ketel;
- Airconditioning in woonkamer en masterbedroom (2024);
- Toilet benedenverdieping vernieuwd in 2021;
- Buitenschilderwerk in 2025 gedaan;
- Kunststof gevelbekleding voorzijde;
- Voldoende gratis parkeergelegenheid in de straat aanwezig;
- Energielabel C;
- Let op, er wordt een ouderdomsclausule opgenomen in de koopakte;
- Oplevering: in overleg, kan snel.

INTERESSE? MAAK DAN SNEL EEN AFSPRAAK!
Ons advies is om bij het kopen van je nieuwe huis je eigen NVM-makelaar mee te nemen.

TOELICHTINGSCLAUSULE NEN2580
De Meetinstructie is gebaseerd op de NEN2580. De Meetinstructie is bedoeld om een meer eenduidige manier van meten toe te passen voor het geven van een indicatie van de gebruiksoppervlakte. De Meetinstructie sluit verschillen in meetuitkomsten niet volledig uit, door bijvoorbeeld interpretatieverschillen, afrondingen of beperkingen bij het uitvoeren van de meting.

KOOPOVEREENKOMST PAS RECHTSGELDIG NA ONDERTEKENING
Een mondelinge overeenstemming tussen de particuliere verkoper en de particuliere koper is niet rechtsgeldig. Met andere woorden: er is geen koop. Er is pas sprake van een rechtsgeldige koop als de particuliere verkoper en de particuliere koper de koopovereenkomst hebben ondertekend. Dit vloeit voort uit artikel 7:2 Burgerlijk Wetboek. Een bevestiging van de mondelinge overeenstemming per e-mail of een toegestuurd concept van de koopovereenkomst wordt overigens niet gezien als een 'ondertekende koopovereenkomst'

“Deze informatie is door ons met de nodige zorgvuldigheid samengesteld. Onzerzijds wordt echter geen enkele aansprakelijkheid aanvaard voor enige onvolledigheid, onjuistheid of anderszins, dan wel de gevolgen daarvan. Alle opgegeven maten en oppervlakten zijn indicatief.”

Kenmerken

Basiskenmerken

  • Status Verkocht onder voorbehoud
  • Koopsom € 540.000 k.k.
  • Woonoppervlakte ca. 138 m2
  • Aantal slaapkamers 3
  • Bouwjaar 1976

Overdracht

  • Aanvaarding In overleg

Bouwvorm & onderhoud

  • Soort object Hoekwoning
  • Soort woning Eengezinswoning
  • Bouwjaar 1976
  • Soort bouw woonhuis
  • Ligging Aan rustige weg, in woonwijk, vrij uitzicht, open ligging

Oppervlakte & inhoud

  • Gebruiksoppervlakte 138m2
  • Perceeloppervlakte 275m2
  • Inhoud 523m3
  • Aantal kamers 4
  • Aantal slaapkamers 3
  • Aantal woonlagen 3 woonlagen
  • Overige inpandige ruimte 7m2

Energie & installatie

  • Energielabel C
  • Isolatie Dubbel glas, volledig geisoleerd
  • Verwarming Cv ketel
  • Warm water Cv ketel
  • C.v.-ketel type GAS
  • C.v.-ketel bouwjaar 2021
  • Energie einddatum 13-03-2036

Bergruimte

  • Schuur / berging Aangebouwd steen
  • Voorzieningen Voorzien van elektra

Parkeergelegenheid

  • Parkeerfaciliteiten Openbaar parkeren
  • Garage Geen garage

Dak

  • Soort dak Zadeldak

Overig

  • Onderhoud binnen Redelijk tot goed
  • Onderhoud buiten Goed
  • Bijzonderheden Gedeeltelijk gestoffeerd
  • Permanente bewoning Ja
  • Huidig gebruik Woonruimte
  • Huidige bestemming Woonruimte

Voorzieningen

  • Voorzieningen Mechanische ventilatie, tv kabel, airconditioning, schuifpui, dakraam, glasvezel kabel, natuurlijke ventilatie

Buitenruimte

  • Hoofdtuin ACHTERTUIN
  • Ligging hoofdtuin ZUIDWEST
  • Kwaliteit tuin Normaal

Kadastrale gegevens

  • Perceelnummer 4758
  • Perceeloppervlakte 275 m2
Meer kenmerken
Ontdek online wat jouw huis waard is

Met de online waardecheck ontdek je in een paar minuten de geschatte waarde van jouw huis!

Gratis waardecheck

In de buurt