Chat with us, powered by LiveChat Kortlandpad 94, 2729 DP ZOETERMEER - WoonSchuijt Makelaars

Zoetermeer

Kortlandpad  94

€ 450.000,- k.k.

Omschrijving

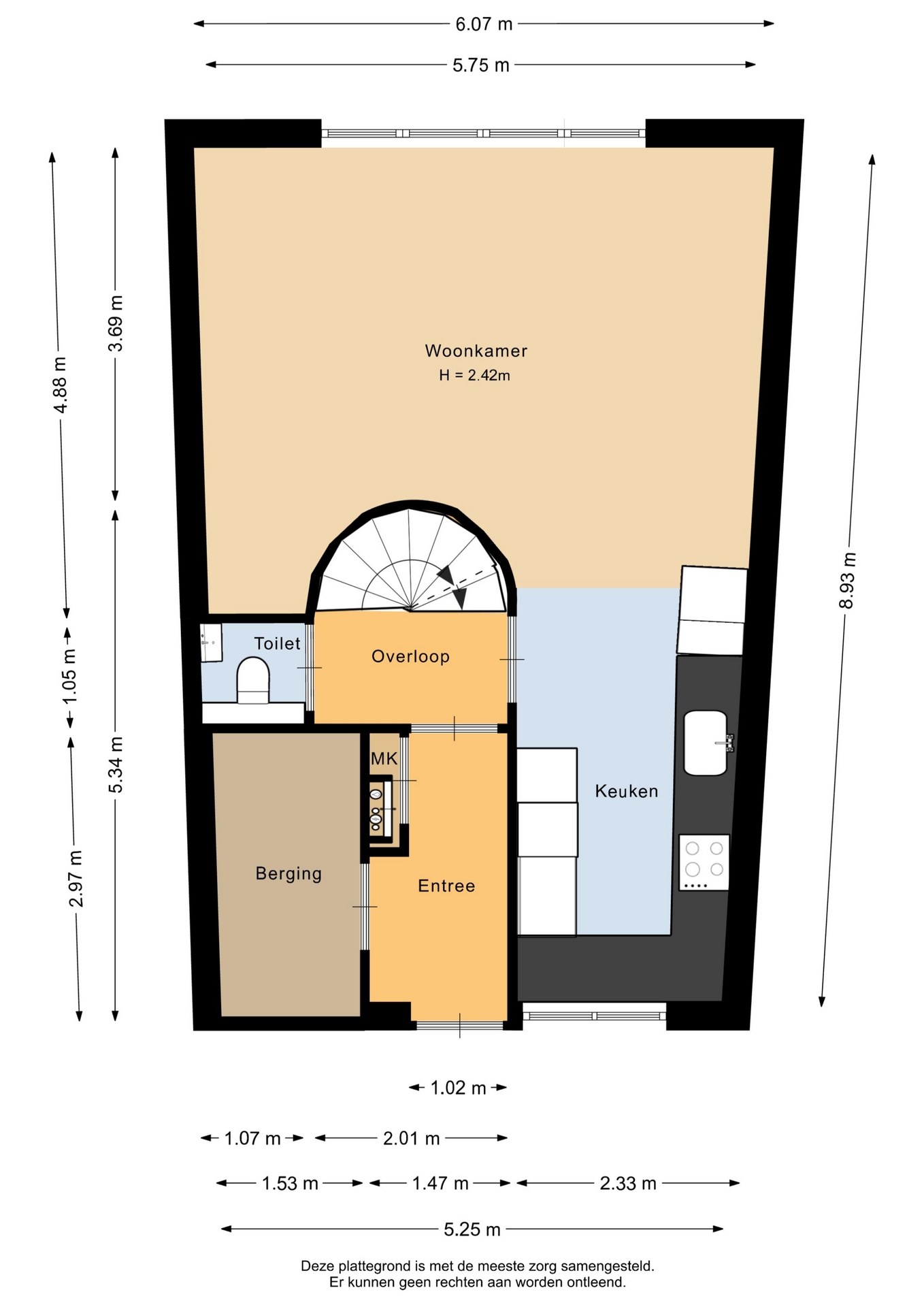
MODERN EN LICHT TOP-MAISONETTE MET DAKTERRAS Welkom op het Kortlandpad 94, een verrassend ruime maisonette verdeeld over twee woonlagen, gelegen in de populaire wijk Oosterheem in Zoetermeer. Hier woon je niet alleen comfortabel en stijlvol, maar ook op een plek waar werkelijk alles dichtbij is. Het huis is perfect voor wie op zoek is naar een moderne woning met nét even…

MODERN EN LICHT TOP-MAISONETTE MET DAKTERRAS
Welkom op het Kortlandpad 94, een verrassend ruime maisonette verdeeld over twee woonlagen, gelegen in de populaire wijk Oosterheem in Zoetermeer. Hier woon je niet alleen comfortabel en stijlvol, maar ook op een plek waar werkelijk alles dichtbij is. Het huis is perfect voor wie op zoek is naar een moderne woning met nét even wat extra’s: denk aan een hoog afwerkingsniveau, een zonnig dakterras en een eigen parkeerplaats in een afgesloten garage. Kortom, een ideale plek voor starters én afbouwers die waarde hechten aan gemak, ruimte en sfeer.

LICHTE WOONKAMER EN MODERNE KEUKEN
Op de bovenste verdieping vind je de ruime en lichte woonkamer met grote raampartijen die zorgen voor een prettige hoeveelheid daglicht. De warme vloer en strakke afwerking geven de ruimte een rustige en verzorgde uitstraling. De open verbinding met de keuken maakt het een fijne plek om samen te komen, te koken en te ontspannen. Vanuit het grote raampartij in de woonkamer heeft u overigens een prachtig zicht op de zonsondergang

De keuken is uitgevoerd in een klassieke stijl met witte fronten en donker werkblad en is van alle gemakken voorzien. Dankzij het slimme ontwerp heb je hier veel werk- en opbergruimte. Vanuit de entree van de woning loop je via een trap door naar het ruime dakterras. Dit zonnige terras biedt de hele dag zon en is groot genoeg voor een loungeset – een heerlijke plek om buiten te eten of gewoon te genieten van de rust.

DRIE SLAAPKAMERS EN EIGEN PARKEERPLEK
Op woonlaag onder de woonkamer bevinden zich drie slaapkamers, waarvan de grootste royaal is opgezet en ruimte biedt voor een tweepersoonsbed en een grote kast. De andere twee kamers zijn ideaal als kinderkamer, werkkamer of logeerruimte. De speelse indeling zorgt ervoor dat alle kamers goed tot hun recht komen en functioneel ingedeeld zijn.

De badkamer is neutraal en fris afgewerkt en beschikt over een bad met douche, wastafel, toilet en wasmachine en droger opstelling.

Extra fijn: je auto parkeer je op je eigen plek in de afgesloten parkeergarage. Nooit meer zoeken naar een parkeerplek!

WONEN IN OOSTERHEEM
De wijk Oosterheem is één van de jongste en meest geliefde wijken van Zoetermeer. Hier woon je in een rustige, kindvriendelijke omgeving met volop groen en waterpartijen, terwijl je toch alle voorzieningen bij de hand hebt. Op loopafstand vind je scholen, supermarkten, sportfaciliteiten en het winkelcentrum Oosterheem met een uitgebreid aanbod aan winkels. Ook het openbaar vervoer is uitstekend geregeld, met een RandstadRail-halte op korte afstand en goede verbindingen richting Den Haag, Rotterdam en Utrecht. De uitvalswegen A12 en N470 zijn snel bereikbaar, wat het huis ook aantrekkelijk maakt voor forenzen.

Kortom: Kortlandpad 94 biedt je een zorgeloos en comfortabel thuis op een fijne locatie. Verhuizen zonder te klussen, in een woning die met zorg is afgewerkt en waar je je direct thuis voelt.

BELANGRIJKSTE KENMERKEN:

* Vraagprijs: €450.000 k.k.
* Gelegen in de gewilde wijk Oosterheem, nabij winkels, scholen en openbaar vervoer
* Zonnig dakterras met ligging op de zonzijde (gehele dag zon)
* Eigen parkeerplaats in afgesloten parkeergarage
* VvE € 202,95,- per maand
* Woonoppervlakte: 103 m²
* Bouwjaar: 2003
* Twee woonlagen
* Vier kamers, waarvan drie slaapkamers
* Energielabel A
* Oplevering in overleg

INTERESSE? MAAK DAN SNEL EEN AFSPRAAK!
Ons advies is om bij het kopen van uw nieuwe woning uw eigen NVM-makelaar mee te nemen.

TOELICHTINGSCLAUSULE NEN2580
De Meetinstructie is gebaseerd op de NEN2580. De Meetinstructie is bedoeld om een meer eenduidige manier van meten toe te passen voor het geven van een indicatie van de gebruiksoppervlakte. De Meetinstructie sluit verschillen in meetuitkomsten niet volledig uit, door bijvoorbeeld interpretatieverschillen, afrondingen of beperkingen bij het uitvoeren van de meting.

KOOPOVEREENKOMST PAS RECHTSGELDIG NA ONDERTEKENING
Een mondelinge overeenstemming tussen de particuliere verkoper en de particuliere koper is niet rechtsgeldig. Met andere woorden: er is geen koop. Er is pas sprake van een rechtsgeldige koop als de particuliere verkoper en de particuliere koper de koopovereenkomst hebben ondertekend. Dit vloeit voort uit artikel 7:2 Burgerlijk Wetboek. Een bevestiging van de mondelinge overeenstemming per e-mail of een toegestuurd concept van de koopovereenkomst wordt overigens niet gezien als een 'ondertekende koopovereenkomst'

“Deze informatie is door ons met de nodige zorgvuldigheid samengesteld. Onzerzijds wordt echter geen enkele aansprakelijkheid aanvaard voor enige onvolledigheid, onjuistheid of anderszins, dan wel de gevolgen daarvan. Alle opgegeven maten en oppervlakten zijn indicatief.”

Kenmerken

Basiskenmerken

  • Status Verkocht onder voorbehoud
  • Koopsom € 450.000 k.k.
  • Woonoppervlakte ca. 103 m2
  • Aantal slaapkamers 3
  • Bouwjaar 2003

Overdracht

  • Aanvaarding In overleg

Bouwvorm & onderhoud

  • Bouwjaar 2003
  • Soort bouw woonhuis
  • Ligging Aan rustige weg, in woonwijk, vrij uitzicht

Oppervlakte & inhoud

  • Gebruiksoppervlakte 103m2
  • Inhoud 327m3
  • Aantal kamers 4
  • Aantal slaapkamers 3
  • Aantal woonlagen 2 woonlagen

Energie & installatie

  • Energielabel A
  • Isolatie Hr glas
  • Verwarming Stadsverwarming
  • Warm water Stadsverwarming
  • Energie einddatum 04-01-2034

Bergruimte

  • Schuur / berging Inpandig

Parkeergelegenheid

  • Parkeerfaciliteiten Openbaar parkeren, op afgesloten terrein
  • Garage Parkeerkelder, parkeerplaats

Dak

  • Soort dak Plat dak

Overig

  • Onderhoud binnen Goed
  • Onderhoud buiten Goed
  • Bijzonderheden Gedeeltelijk gestoffeerd, toegankelijk voor ouderen
  • Permanente bewoning Ja
  • Huidig gebruik Woonruimte
  • Huidige bestemming Woonruimte

Voorzieningen

  • Voorzieningen Mechanische ventilatie, tv kabel, lift

Kadastrale gegevens

  • Perceelnummer 950
Meer kenmerken
Ontdek online wat jouw huis waard is

Met de online waardecheck ontdek je in een paar minuten de geschatte waarde van jouw huis!

Gratis waardecheck

In de buurt