Chat with us, powered by LiveChat Koestraat 134, 2871 DT SCHOONHOVEN - WoonSchuijt Makelaars

Schoonhoven

Koestraat  134

€ 595.000,- k.k.

Omschrijving

Oude tijden herleven! Wonen in een zorgvuldig en hoogwaardig gerenoveerd Rijksmonument uit 1650. Dat kan aan de Koestraat 134. Hier is het voormalige Heerenlogement verbouwd naar 6 appartementen. Ieder uniek in zijn soort. Koestraat 134, appartement op de begane grond INSTAPKLAAR APPARTEMENT MET KARAKTER EN TUIN Wonen in het centrum van Schoonhoven, maar dan in een…

Oude tijden herleven! Wonen in een zorgvuldig en hoogwaardig gerenoveerd Rijksmonument uit 1650. Dat kan aan de Koestraat 134. Hier is het voormalige Heerenlogement verbouwd naar 6 appartementen. Ieder uniek in zijn soort.

Koestraat 134, appartement op de begane grond

INSTAPKLAAR APPARTEMENT MET KARAKTER EN TUIN
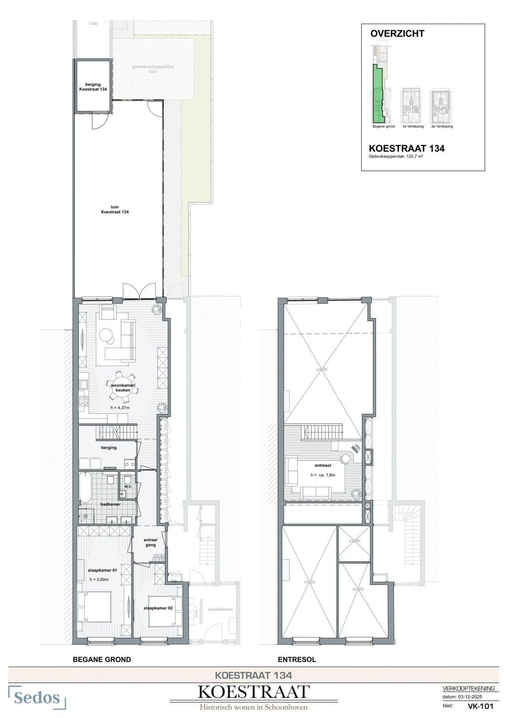
Wonen in het centrum van Schoonhoven, maar dan in een rustige straat én in een recent en hoogwaardig verbouwd 3-kamer-appartement inclusief 2 eigen parkeerplaatsen en eigen berging waar je nog je eigen stempel op kunt drukken? Dat kan hier. Dit appartement maakt deel uit van een kleinschalig complex van zeven appartementen en is met veel aandacht verbouwd, waarbij karakteristieke elementen behouden zijn gebleven. Denk aan houten kozijnen, hoge plafonds en een prettige lichtinval. Tegelijkertijd is alles comfortabel en helemaal van nu, met een uitstekend energielabel A++. Ideaal als je centraal wilt wonen en het leuk vindt om de afwerking en keuken zelf te bepalen.

De leefruimte voelt ruim en open aan en is slim ingedeeld. Grote raampartijen zorgen voor veel daglicht en geven het appartement een rustige en prettige sfeer. De wanden zijn behangklaar opgeleverd, waardoor je snel kunt starten met afwerken en het huis helemaal naar je eigen smaak kunt inrichten.

OPEN LEEFKEUKEN MET VRIJHEID VOOR EIGEN KEUZE
De woonkamer en keuken vormen samen één open leefruimte. De keuken is nog niet geplaatst, maar alle aansluitingen zijn al aanwezig. Dat geeft je de vrijheid om hier zelf een keuken te realiseren die past bij jouw woonstijl en wensen, zonder concessies te doen. Of je nu kiest voor strak en modern of juist warm en sfeervol, hier kan het allemaal.

Via de woonkamer loop je zo de tuin in, gelegen op het westen. Een fijne plek om na werk nog even buiten te zitten, met de zon in de middag en avond. De tuin is strak aangelegd en biedt verrassend veel privacy voor een appartement in het centrum.

TWEE SLAAPKAMERS EN VIDE MET EXTRA RUIMTE
Het appartement beschikt over twee slaapkamers, waarbij de grootste slaapkamer zich perfect leent als comfortabele hoofdslaapkamer. De tweede kamer is ideaal als werkplek, logeerkamer of extra bergruimte. De vide (met 180cm stahoogte) in de woonkamer zorgt voor een speelse indeling en is multifunctioneel te gebruiken, bijvoorbeeld als thuiswerkplek, leeshoek, speelzolder of extra opslag.

De badkamer is modern uitgevoerd en sluit mooi aan bij de rest van het appartement. Alles is recent vernieuwd en praktisch ingericht. Dankzij de goede isolatie, dubbele beglazing en houten kozijnen woon je hier comfortabel én energiezuinig.

WONEN IN HET HART VAN SCHOONHOVEN
De Koestraat ligt midden in het historische centrum van Schoonhoven, bekend als de Zilverstad. Hier woon je op loopafstand van winkels, terrassen en restaurants, terwijl de straat zelf rustig en prettig aanvoelt. Voor dagelijkse voorzieningen hoef je de auto niet te pakken.

Schoonhoven heeft een sfeervolle binnenstad met monumentale panden en ligt direct aan de Lek. Een wandeling langs het water of door de oude straatjes is zo gemaakt. Ook de bereikbaarheid is goed: uitvalswegen richting Gouda, Utrecht en Rotterdam zijn snel te bereiken en het openbaar vervoer is goed geregeld. Een fijne plek voor starters die comfortabel willen wonen op een centrale locatie, met ruimte om het huis echt eigen te maken.

BELANGRIJKSTE KENMERKEN
- Ligging: In het centrum, aan een rustige straat
- Oriëntatie achtertuin: westen
- 2 eigen parkeerplaatsen en eigen houten berging
- Verwarming middels warmtepomp
- Vloerverwarming
- Dubbelglas
- Keuken nog zelf te plaatsen – aansluitingen aanwezig
- Aantal slaapkamers: 2
- VvE in oprichting, per maand is er een VvE-bijdrage verschuldigd
- Energielabel: A++
- Oplevering: uiterlijk binnen 3 maanden na ondertekening
- Projectnotaris

TOELICHTINGSCLAUSULE NEN2580
De Meetinstructie is gebaseerd op de NEN2580. De Meetinstructie is bedoeld om een meer eenduidige manier van meten toe te passen voor het geven van een indicatie van de gebruiksoppervlakte. De Meetinstructie sluit verschillen in meetuitkomsten niet volledig uit, door bijvoorbeeld interpretatieverschillen, afrondingen of beperkingen bij het uitvoeren van de meting.

KOOPOVEREENKOMST PAS RECHTSGELDIG NA ONDERTEKENING
Een mondelinge overeenstemming tussen de particuliere verkoper en de particuliere koper is niet rechtsgeldig. Met andere woorden: er is geen koop. Er is pas sprake van een rechtsgeldige koop als de particuliere verkoper en de particuliere koper de koopovereenkomst hebben ondertekend. Dit vloeit voort uit artikel 7:2 Burgerlijk Wetboek. Een bevestiging van de mondelinge overeenstemming per e-mail of een toegestuurd concept van de koopovereenkomst wordt overigens niet gezien als een 'ondertekende koopovereenkomst'

“Deze informatie is door ons met de nodige zorgvuldigheid samengesteld. Onzerzijds wordt echter geen enkele aansprakelijkheid aanvaard voor enige onvolledigheid, onjuistheid of anderszins, dan wel de gevolgen daarvan. Alle opgegeven maten en oppervlakten zijn indicatief.”

Kenmerken

Basiskenmerken

  • Status Beschikbaar
  • Koopsom € 595.000 k.k.
  • Woonoppervlakte ca. 101 m2
  • Aantal slaapkamers 2
  • Bouwjaar 1650

Overdracht

  • Aanvaarding In overleg

Bouwvorm & onderhoud

  • Bouwjaar 1650
  • Soort bouw woonhuis
  • Ligging Aan rustige weg, in centrum

Oppervlakte & inhoud

  • Gebruiksoppervlakte 101m2
  • Inhoud 488m3
  • Aantal kamers 3
  • Aantal slaapkamers 2
  • Aantal woonlagen 1 woonlagen
  • Overige inpandige ruimte 20m2

Energie & installatie

  • Energielabel A++
  • Isolatie Grotendeels dubbelglas
  • Verwarming Vloerverwarming gedeeltelijk, warmtepomp
  • Energie einddatum 12-01-2030

Bergruimte

  • Schuur / berging Vrijstaand hout

Parkeergelegenheid

  • Parkeerfaciliteiten Op eigen terrein
  • Garage Parkeerplaats

Dak

  • Soort dak Zadeldak

Overig

  • Onderhoud binnen Goed tot uitstekend
  • Onderhoud buiten Goed tot uitstekend
  • Bijzonderheden Monumentaal pand, monument
  • Permanente bewoning Ja
  • Huidig gebruik Woonruimte
  • Huidige bestemming Woonruimte

Voorzieningen

  • Voorzieningen Balansventilatie

Buitenruimte

  • Hoofdtuin ACHTERTUIN
  • Oppervlakte hoofdtuin 64m2
  • Ligging hoofdtuin WEST
  • Kwaliteit tuin Aan te leggen

Kadastrale gegevens

  • Perceelnummer 3127
Meer kenmerken
Ontdek online wat jouw huis waard is

Met de online waardecheck ontdek je in een paar minuten de geschatte waarde van jouw huis!

Gratis waardecheck

Media

In de buurt

Geïnteresseerd?

Bel met WoonSchuijt Makelaars

shape

Stuur een bericht

* Maximaal 255 tekens
privacyverklaring