Chat with us, powered by LiveChat Jan van de Cappellestraat 2, 2923 CS KRIMPEN AAN DEN IJSSEL - WoonSchuijt Makelaars

Krimpen Aan Den Ijssel

Jan van de Cappellestraat  2

€ 450.000,- k.k.

Omschrijving

RUIM HOEKHUIS MET HOUTEN GARAGE EN TUIN RONDOM Op de hoek in een kindvriendelijke woonwijk, staat dit goed onderhouden huis dat verrassend veel ruimte biedt! Door de hoekligging geniet je hier van extra privacy, licht en een royale voor-, zij- en achtertuin. Parkeren kan op eigen terrein en ook buiten is er meer dan genoeg plek om te ontspannen of juist praktisch te…

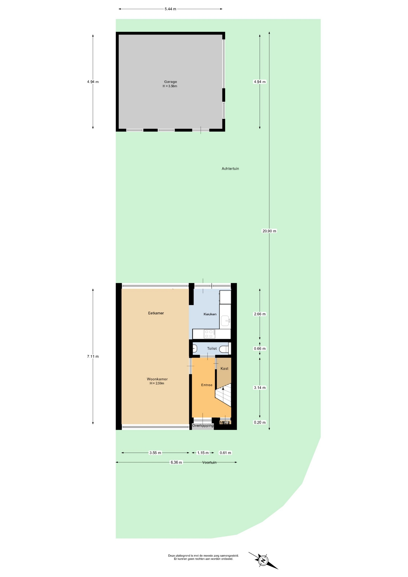
RUIM HOEKHUIS MET HOUTEN GARAGE EN TUIN RONDOM
Op de hoek in een kindvriendelijke woonwijk, staat dit goed onderhouden huis dat verrassend veel ruimte biedt!
Door de hoekligging geniet je hier van extra privacy, licht en een royale voor-, zij- en achtertuin. Parkeren kan op eigen terrein en ook buiten is er meer dan genoeg plek om te ontspannen of juist praktisch te gebruiken. Wat dacht je van die grote houten garage/schuur! Ideaal voor hobby/werk aan huis of gewoon als extra bergruimte.
Dit huis is centraal gelegen in Krimpen aan den IJssel en voelt tegelijk rustig en ruim aan, mede door het vrije zicht aan de voorzijde. Een fijne combinatie voor starters, gezinnen en doorstromers die nét dat beetje extra zoeken.

Het huis is in 2010 volledig verbouwd en sindsdien keurig onderhouden. De basis is goed en verzorgd, met een indeling en afwerking die prettig wonen mogelijk maakt.

LICHTE WOONKAMER MET VRIJ UITZICHT
Bij binnenkomst valt direct de prettige lichtinval op. De woonkamer ligt aan de voorzijde en kijkt vrij de straat in, wat zorgt voor een open en ruimtelijk gevoel. Grote ramen laten veel daglicht binnen en maken dit een fijne plek om thuis te komen. De zithoek is ruim genoeg voor een grote bank en dankzij de hoekligging voelt de woonkamer extra breed aan.

Aan de achterzijde is ruimte voor een eethoek met zicht op de tuin. Op zonnige dagen zorgt het elektrische zonnescherm voor een prettige schaduw en blijft het binnen comfortabel. De afwerking is netjes en verzorgd, waardoor je hier zo kunt intrekken.

NETTE KEUKEN EN PRAKTISCHE INDELING
De keuken sluit prettig aan op de leefruimte en is functioneel ingericht. Alles is aanwezig voor dagelijks gebruik en de ruimte biedt een fijne basis, voldoende werk- en kastruimte en je kijkt uit richting de tuin. De indeling maakt koken overzichtelijk en praktisch, met alles binnen handbereik. Vanuit de keuken loop je zo de achtertuin in, ideaal op mooie dagen of wanneer je buiten wilt eten.

Op de eerste verdieping bevinden zich drie kamers. De grootste kamer is in gebruik als hoofdslaapkamer. Daarnaast is er een tweede slaapkamer die zich goed leent als kinder- of werkkamer. De derde kamer wordt momenteel gebruikt als praktische wasruimte, maar kan desgewenst ook weer als slaapkamer of werkruimte worden ingericht.

De zolderverdieping is, door de dakopbouw uit 2010, een volwaardige extra verdieping met veel ruimte! Hier bestaat de mogelijkheid om extra kamers te realiseren, waardoor het huis eenvoudig kan meegroeien met een groter gezin of veranderende woonwensen.

BUITEN LEVEN MET VEEL RUIMTE
Buiten is dit huis minstens zo aantrekkelijk. Door de hoekligging beschik je over een grote voor-, zij- en achtertuin met volop zon, dankzij de gunstige ligging op het zuidwesten. Er is altijd wel een plek in de zon of juist in de schaduw te vinden. Parkeren op eigen terrein is hier mogelijk en daarnaast is er een grote houten garage/schuur, ideaal voor opslag, hobby’s of fietsen.

Ook op technisch vlak zit het goed. De cv-ketel is vernieuwd in 2025, het buitenschilderwerk is uitgevoerd in 2021 en het binnen schilderwerk in 2023. De spouwmuren aan de hoek- en voorzijde zijn in 2019 geïsoleerd met minerale glaswol, het dak is geïsoleerd en in 2010 zijn nieuwe dakpannen geplaatst die bovendien zijn geïmpregneerd tegen vuilaanwas. Dit alles draagt bij aan het comfortabele woonklimaat en het energielabel C.

KENMERKEN
- Vraagprijs: € 450.000,- k.k.
- Ligging: hoek, vrij uitzicht aan de voorzijde
- Oriëntatie tuin: zuidwest
- Woonoppervlakte: ca. 107 m²
- Perceeloppervlakte: 275 m²
- Bouwjaar: 1961
- Aantal kamers: 5
- Aantal slaapkamers: 4 (mogelijkheid voor meer)
- Energielabel: C
- Volledig verbouwd in 2010
- Parkeren op eigen terrein
- Grote houten garage/schuur
- Oplevering: in overleg

TOELICHTINGSCLAUSULE NEN2580
De Meetinstructie is gebaseerd op de NEN2580. De Meetinstructie is bedoeld om een meer eenduidige manier van meten toe te passen voor het geven van een indicatie van de gebruiksoppervlakte. De Meetinstructie sluit verschillen in meetuitkomsten niet volledig uit, door bijvoorbeeld interpretatieverschillen, afrondingen of beperkingen bij het uitvoeren van de meting.

KOOPOVEREENKOMST PAS RECHTSGELDIG NA ONDERTEKENING
Een mondelinge overeenstemming tussen de particuliere verkoper en de particuliere koper is niet rechtsgeldig. Met andere woorden: er is geen koop. Er is pas sprake van een rechtsgeldige koop als de particuliere verkoper en de particuliere koper de koopovereenkomst hebben ondertekend. Dit vloeit voort uit artikel 7:2 Burgerlijk Wetboek. Een bevestiging van de mondelinge overeenstemming per e-mail of een toegestuurd concept van de koopovereenkomst wordt overigens niet gezien als een 'ondertekende koopovereenkomst'

“Deze informatie is door ons met de nodige zorgvuldigheid samengesteld. Onzerzijds wordt echter geen enkele aansprakelijkheid aanvaard voor enige onvolledigheid, onjuistheid of anderszins, dan wel de gevolgen daarvan. Alle opgegeven maten en oppervlakten zijn indicatief.”

Kenmerken

Basiskenmerken

  • Status Verkocht onder voorbehoud
  • Koopsom € 450.000 k.k.
  • Woonoppervlakte ca. 107 m2
  • Aantal slaapkamers 4
  • Bouwjaar 1961

Overdracht

  • Aanvaarding In overleg

Bouwvorm & onderhoud

  • Soort object Hoekwoning
  • Soort woning Eengezinswoning
  • Bouwjaar 1961
  • Soort bouw woonhuis
  • Ligging In woonwijk, vrij uitzicht

Oppervlakte & inhoud

  • Gebruiksoppervlakte 107m2
  • Perceeloppervlakte 275m2
  • Inhoud 373m3
  • Aantal kamers 5
  • Aantal slaapkamers 4
  • Aantal woonlagen 3 woonlagen

Energie & installatie

  • Energielabel C
  • Isolatie Dakisolatie, muurisolatie, grotendeels dubbelglas
  • Verwarming Cv ketel, vloerverwarming gedeeltelijk
  • Warm water Cv ketel
  • C.v.-ketel type GAS
  • C.v.-ketel bouwjaar 2025
  • Energie einddatum 06-02-2036

Parkeergelegenheid

  • Parkeerfaciliteiten Openbaar parkeren, op eigen terrein
  • Garage Vrijstaand hout

Dak

  • Soort dak Zadeldak

Overig

  • Onderhoud binnen Goed
  • Onderhoud buiten Goed
  • Bijzonderheden Gedeeltelijk gestoffeerd
  • Permanente bewoning Ja
  • Huidig gebruik Woonruimte
  • Huidige bestemming Woonruimte

Voorzieningen

  • Voorzieningen Mechanische ventilatie, alarminstallatie, buitenzonwering, schuifpui, glasvezel kabel, natuurlijke ventilatie

Buitenruimte

  • Hoofdtuin ACHTERTUIN
  • Oppervlakte hoofdtuin 137m2
  • Ligging hoofdtuin ZUIDWEST
  • Kwaliteit tuin Verzorgd

Kadastrale gegevens

  • Perceelnummer 528
  • Perceeloppervlakte 275 m2
Meer kenmerken
Ontdek online wat jouw huis waard is

Met de online waardecheck ontdek je in een paar minuten de geschatte waarde van jouw huis!

Gratis waardecheck

In de buurt