Chat with us, powered by LiveChat Insulindestraat 67 B, 3038 JE ROTTERDAM - WoonSchuijt Makelaars

Rotterdam

Insulindestraat  67 B

€ 348.800,- k.k.

Omschrijving

Sfeervol gerenoveerd appartement met royale tuin op het westen – Insulindestraat 67B, Rotterdam (Bergpolder) Op een fantastische locatie in Rotterdam-Bergpolder, direct tegenover de karakteristieke Hofbogen, ligt dit recent gerenoveerde appartement met een ruime en zonnige achtertuin op het westen. Een modern, instapklaar appartement met een warme sfeer, perfect voor wie…

Sfeervol gerenoveerd appartement met royale tuin op het westen – Insulindestraat 67B, Rotterdam (Bergpolder)

Op een fantastische locatie in Rotterdam-Bergpolder, direct tegenover de karakteristieke Hofbogen, ligt dit recent gerenoveerde appartement met een ruime en zonnige achtertuin op het westen.
Een modern, instapklaar appartement met een warme sfeer, perfect voor wie comfortabel wil wonen op steenworp afstand van het bruisende stadsleven!

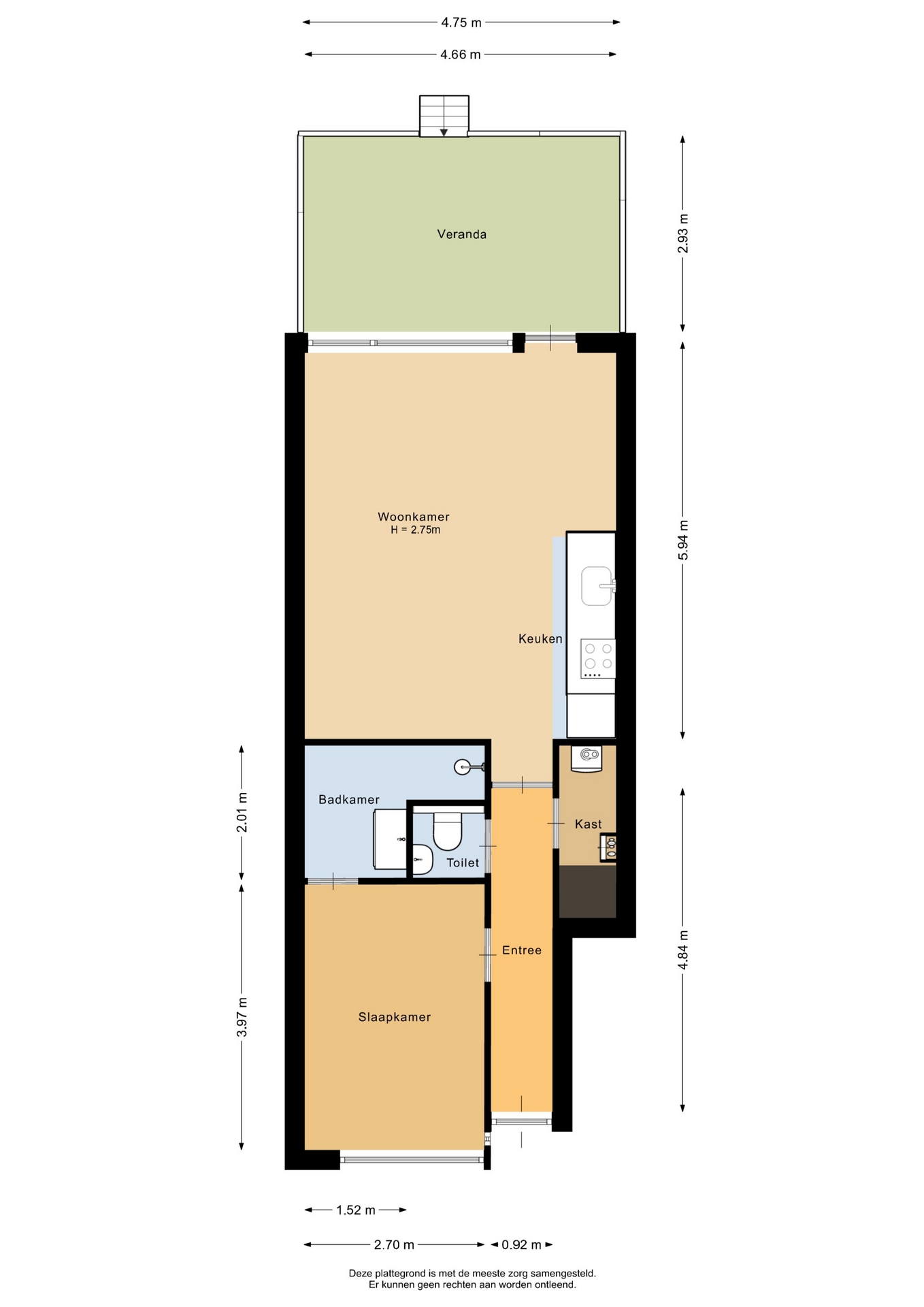
Indeling

Bij binnenkomst via de privé-entree bereik je de hal die toegang biedt tot alle vertrekken.
Aan de achterzijde bevindt zich het lichte en sfeervolle leefgedeelte, voorzien van een moderne stalen deur en grote raampartijen die zorgen voor veel natuurlijk licht.

De open keuken is strak afgewerkt en uitgerust met diverse inbouwapparatuur, waaronder een 4-pits gasfornuis, vaatwasser, magnetron en afzuigkap. Vanuit de woonkamer geven de openslaande deuren toegang tot de diepe, rustig gelegen tuin op het westen – een heerlijke plek om van de middag- en avondzon te genieten.

Aan de voorzijde ligt de slaapkamer.
De moderne badkamer is voorzien van een inloopdouche, wastafel en spiegel, en het toilet bevindt zich separaat tussen de woon- en slaapkamer. In de hal is bovendien een vaste kast met extra bergruimte aanwezig.

Locatie

De Insulindestraat ligt in het geliefde Bergpolder, een wijk met karakter, nabij winkels en uitstekende verbindingen met het openbaar vervoer. Binnen enkele minuten rij je op de A20, en ook het centrum van Rotterdam is snel bereikbaar – ideaal voor starters!

Pluspunten:

- Bouwjaar 1933
- Woonoppervlakte 55 m2
- Eigen tuin 46 m2
- Recent volledig gerenoveerd
- Moderne open keuken met inbouwapparatuur
- Zonnige tuin op het westen
- Sfeervolle stalen deur en moderne afwerking
- Oplevering kan snel

Centrale locatie nabij Hofbogen, A20 en het stadscentrum

Van der Giessen & Van Herk Makelaars behartigt de belangen van de verkopende partij. Neem uw eigen NVM aankoopmakelaar mee.

Alle verstrekte informatie moet beschouwd worden als een uitnodiging tot het doen van een bod of om in onderhandeling te treden.

Deze informatie is door ons met de nodige zorgvuldigheid samengesteld. Onzerzijds wordt echter geen enkele aansprakelijkheid aanvaard voor enige onvolledigheid, onjuistheid of anderszins, dan wel de gevolgen daarvan. Alle opgegeven maten en oppervlakten zijn indicatief. Van toepassing zijn de NVM voorwaarden.

Koopovereenkomst pas rechtsgeldig na ondertekening:
Een mondelinge overeenstemming tussen de particuliere verkoper en de particuliere koper is niet rechtsgeldig. Met andere woorden: er is geen koop. Er is pas sprake van een rechtsgeldige koop als de particuliere verkoper en de particuliere koper de koopovereenkomst hebben ondertekend. Dit vloeit voort uit artikel 7:2 Burgerlijk Wetboek. Een bevestiging van de mondelinge overeenstemming per e-mail of een toegestuurd concept van de koopovereenkomst wordt overigens niet gezien als een 'ondertekende koopovereenkomst'.

Toelichtingsclausule NEN2580:
De Meetinstructie is gebaseerd op de NEN2580. De meetinstructie is bedoeld om een meer eenduidige manier van meten toe te passen voor het geven van een indicatie van de gebruiksoppervlakte. De meetinstructie sluit verschillen in meetuitkomsten niet volledig uit, door bijvoorbeeld interpretatieverschillen, afrondingen of beperkingen bij het uitvoeren van de meting.

Kenmerken

Basiskenmerken

  • Status Beschikbaar
  • Koopsom € 348.800 k.k.
  • Woonoppervlakte ca. 55 m2
  • Aantal slaapkamers 1
  • Bouwjaar 1933

Overdracht

  • Aanvaarding In overleg

Bouwvorm & onderhoud

  • Bouwjaar 1933
  • Soort bouw woonhuis

Oppervlakte & inhoud

  • Gebruiksoppervlakte 55m2
  • Perceeloppervlakte 52m2
  • Inhoud 198m3
  • Aantal kamers 2
  • Aantal slaapkamers 1
  • Aantal woonlagen 1 woonlagen

Energie & installatie

  • Energielabel D
  • Verwarming Cv ketel
  • Warm water Cv ketel
  • C.v.-ketel type GAS
  • Energie einddatum 05-06-2027

Parkeergelegenheid

  • Parkeerfaciliteiten Openbaar parkeren, betaald parkeren, parkeervergunningen
  • Garage Geen garage

Dak

  • Soort dak Plat dak

Overig

  • Onderhoud binnen Goed
  • Onderhoud buiten Goed
  • Permanente bewoning Ja
  • Huidig gebruik Woonruimte
  • Huidige bestemming Woonruimte

Buitenruimte

  • Hoofdtuin ACHTERTUIN
  • Oppervlakte hoofdtuin 46m2
  • Ligging hoofdtuin WEST
  • Kwaliteit tuin Normaal

Kadastrale gegevens

  • Perceelnummer 4739
  • Perceeloppervlakte 52 m2
Meer kenmerken
Ontdek online wat jouw huis waard is

Met de online waardecheck ontdek je in een paar minuten de geschatte waarde van jouw huis!

Gratis waardecheck

In de buurt

Geïnteresseerd?

Bel met WoonSchuijt Makelaars

shape

Stuur een bericht

* Maximaal 255 tekens
privacyverklaring