Chat with us, powered by LiveChat IJsseldijk 336, 2922 BM KRIMPEN AAN DEN IJSSEL - WoonSchuijt Makelaars

Krimpen Aan Den Ijssel

IJsseldijk  336

€ 360.000,- k.k.

Omschrijving

IJsseldijk 336 Krimpen aan den IJssel KARAKTERISTIEKE DIJKWONING AAN HET WATER Wonen op een unieke plek aan het water, met uitzicht en sfeer die je niet snel ergens anders vindt – dat is precies wat deze karakteristieke dijkwoning aan de Ijsseldijk 336 zo bijzonder maakt. Deze charmante hoekwoning uit 1890 is door de jaren heen met liefde onderhouden en ligt heerlijk…

IJsseldijk 336 Krimpen aan den IJssel

KARAKTERISTIEKE DIJKWONING AAN HET WATER
Wonen op een unieke plek aan het water, met uitzicht en sfeer die je niet snel ergens anders vindt – dat is precies wat deze karakteristieke dijkwoning aan de Ijsseldijk 336 zo bijzonder maakt. Deze charmante hoekwoning uit 1890 is door de jaren heen met liefde onderhouden en ligt heerlijk vrij met de singel direct achter het huis. Het authentieke karakter van de gevel gecombineerd met het comfort van nu zorgt voor een fijne mix van sfeer en gemak. Dit is zo’n huis waar je binnenkomt en meteen denkt: ja, hier wil ik wonen.

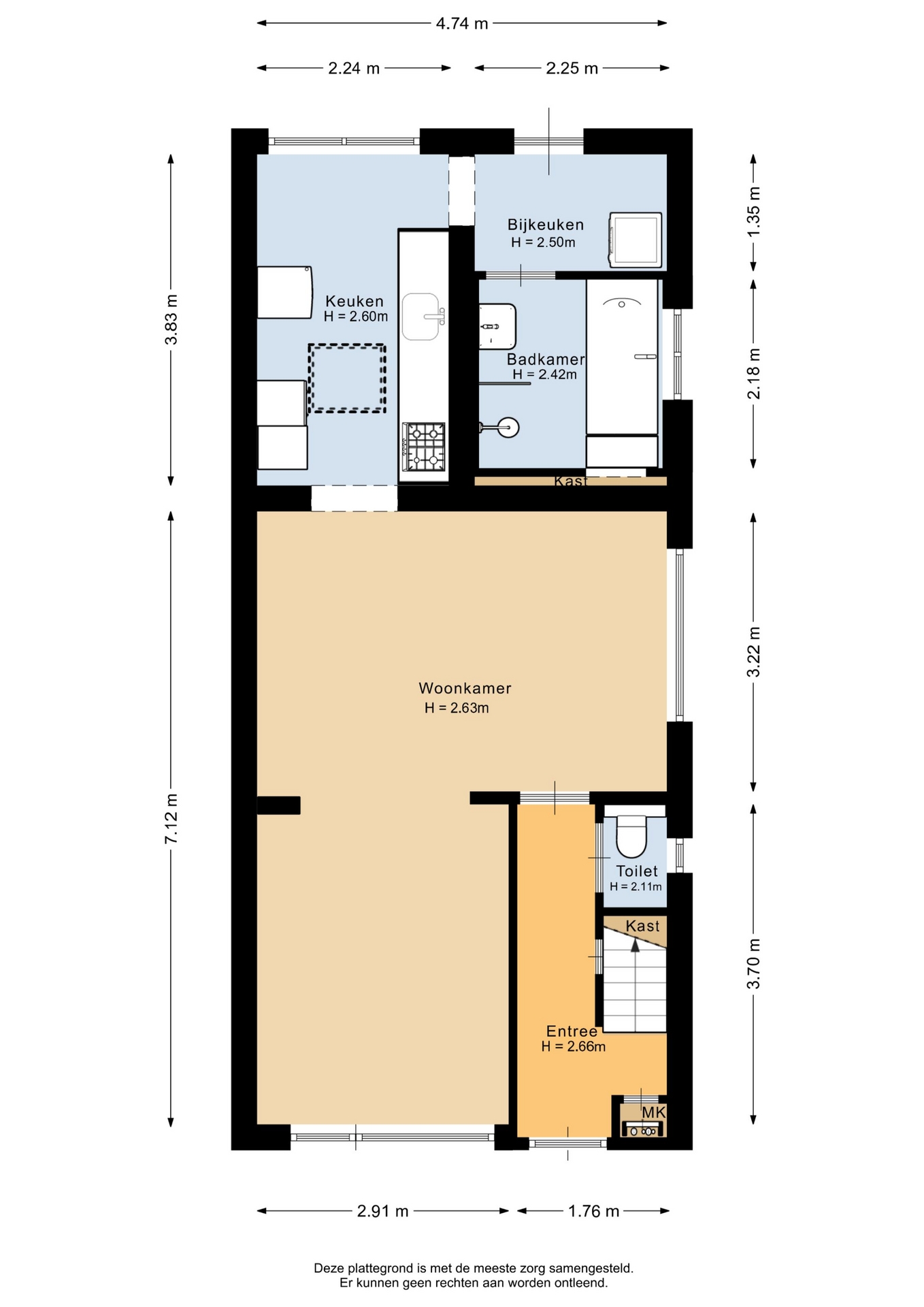
De ligging op de dijk geeft een speelse indeling aan het huis, waarbij je zowel op straatniveau als op tuin-/dijkniveau binnenkomt. Met drie slaapkamers, een sfeervolle woonkamer, zonnige tuin en een zonnig dakterras is dit huis een uitstekende optie voor wie op zoek is naar een instapklare woning met karakter én buitenruimte.

LICHT, SFEER EN EEN HEERLIJKE TUIN
Zodra je de woonkamer binnenstapt, valt het vele daglicht op. De grote ramen zorgen voor een open gevoel, terwijl de originele details je herinneren aan de rijke geschiedenis van het huis. Hier is het ’s avonds heerlijk knus en overdag juist een lichte plek om te ontspannen of te werken. De open keuken sluit mooi aan op de leefruimte, waardoor je hier makkelijk contact houdt met gezelschap terwijl je staat te koken. De badkamer is compact maar praktisch ingedeeld, en uiteraard is er ook een separaat toilet aanwezig.

Via de achterdeur kom je in de verrassend ruime en fraai aangelegde tuin – een echt pluspunt van deze woning. De tuin ligt op het zuiden, dus zon is hier (bij goed weer) gegarandeerd. De combinatie van groen, bestrating, een sfeervol terras én een berging maakt dit tot een tuin waar je het hele voorjaar en zomer met plezier doorbrengt. Achterin is er een knusse zithoek gecreëerd – perfect voor een rustige ochtend met koffie of een barbecue met vrienden.

DRIE SLAAPKAMERS EN EXTRA BERGRUIMTE
Op de bovenverdieping vind je drie slaapkamers. De grootste kamer gelegen aan de voorzijde en 2 slaapkamers achterzijde grenzen aan het ruime dakterras, waar je uitkijkt over de groene omgeving en de singel. Dit is dé plek om in de ochtend rustig wakker te worden of aan het einde van de dag even te ontspannen.

Extra pluspunt: boven de tweede verdieping is nog een vliering aanwezig die je kunt gebruiken als bergzolder – ideaal voor koffers, kerstspullen en alles wat je niet dagelijks nodig hebt.

RUSTIG WONEN MET ALLES DICHTBIJ
De IJsseldijk is een mooie, rustige dijk met een dorps karakter, maar je zit hier toch verrassend centraal. Winkels, scholen en openbaar vervoer zijn allemaal op korte afstand te vinden. Krimpen aan den IJssel zelf is een fijne, groene gemeente met goede verbindingen richting Rotterdam, Capelle en de rest van de regio. Dankzij de ligging aan het water heb je hier bovendien altijd een vrij gevoel – een zeldzame combinatie in deze prijsklasse.

Of je nu starter bent of juist de volgende stap in je wooncarrière zet: dit huis biedt ruimte, karakter én comfort. En dat alles op een plek waar de zon volop schijnt in je tuin en waar je dagelijks kunt genieten van het uitzicht op het water.

KENMERKEN
- 85 m2 woonoppervlakte
- 206 m2 perceeloppervlakte
- Bouwjaar: 1890
- 3 slaapkamers
- Karakteristiek en keurig onderhouden
- Ruime zonnige achtertuin gelegen op het zuiden en aan singel
- i.v.m. bouwjaar is asbest en ouderdomsclausule van toepassing
- Energielabel: E
- Oplevering in overleg

TOELICHTINGSCLAUSULE NEN2580
De Meetinstructie is gebaseerd op de NEN2580. De Meetinstructie is bedoeld om een meer eenduidige manier van meten toe te passen voor het geven van een indicatie van de gebruiksoppervlakte. De Meetinstructie sluit verschillen in meetuitkomsten niet volledig uit, door bijvoorbeeld interpretatieverschillen, afrondingen of beperkingen bij het uitvoeren van de meting.

KOOPOVEREENKOMST PAS RECHTSGELDIG NA ONDERTEKENING
Een mondelinge overeenstemming tussen de particuliere verkoper en de particuliere koper is niet rechtsgeldig. Met andere woorden: er is geen koop. Er is pas sprake van een rechtsgeldige koop als de particuliere verkoper en de particuliere koper de koopovereenkomst hebben ondertekend. Dit vloeit voort uit artikel 7:2 Burgerlijk Wetboek. Een bevestiging van de mondelinge overeenstemming per e-mail of een toegestuurd concept van de koopovereenkomst wordt overigens niet gezien als een 'ondertekende koopovereenkomst'

“Deze informatie is door ons met de nodige zorgvuldigheid samengesteld. Onzerzijds wordt echter geen enkele aansprakelijkheid aanvaard voor enige onvolledigheid, onjuistheid of anderszins, dan wel de gevolgen daarvan. Alle opgegeven maten en oppervlakten zijn indicatief.”

Kenmerken

Basiskenmerken

  • Status Verkocht onder voorbehoud
  • Koopsom € 360.000 k.k.
  • Woonoppervlakte ca. 85 m2
  • Aantal slaapkamers 3
  • Bouwjaar 1912

Overdracht

  • Aanvaarding In overleg

Bouwvorm & onderhoud

  • Soort object Twee onder een kapwoning
  • Soort woning Eengezinswoning
  • Bouwjaar 1912
  • Soort bouw woonhuis
  • Ligging Aan rustige weg, in woonwijk

Oppervlakte & inhoud

  • Gebruiksoppervlakte 85m2
  • Perceeloppervlakte 206m2
  • Inhoud 315m3
  • Aantal kamers 5
  • Aantal slaapkamers 3
  • Aantal woonlagen 2 woonlagen

Energie & installatie

  • Energielabel E
  • Isolatie Dakisolatie, vloerisolatie, dubbel glas
  • Verwarming Cv ketel
  • Warm water Cv ketel
  • C.v.-ketel type GAS
  • C.v.-ketel bouwjaar 2023
  • Energie einddatum 28-07-2030

Bergruimte

  • Schuur / berging Vrijstaand hout
  • Voorzieningen Voorzien van elektra

Parkeergelegenheid

  • Parkeerfaciliteiten Openbaar parkeren
  • Garage Geen garage

Dak

  • Soort dak Zadeldak

Overig

  • Onderhoud binnen Goed
  • Onderhoud buiten Redelijk tot goed
  • Bijzonderheden Gedeeltelijk gestoffeerd
  • Permanente bewoning Ja
  • Huidig gebruik Woonruimte
  • Huidige bestemming Woonruimte

Voorzieningen

  • Voorzieningen Natuurlijke ventilatie

Buitenruimte

  • Hoofdtuin ACHTERTUIN
  • Oppervlakte hoofdtuin 35m2
  • Ligging hoofdtuin ZUID
  • Kwaliteit tuin Normaal

Kadastrale gegevens

  • Perceelnummer 7436
  • Perceeloppervlakte 206 m2
Meer kenmerken
Ontdek online wat jouw huis waard is

Met de online waardecheck ontdek je in een paar minuten de geschatte waarde van jouw huis!

Gratis waardecheck

In de buurt