Chat with us, powered by LiveChat Goereesestraat 57, 3114 BG SCHIEDAM - WoonSchuijt Makelaars

Schiedam

Goereesestraat  57

€ 650.000,- k.k.

Omschrijving

Modern herenhuis met eigen oprit en zonnig terras aan het water in project “De Houthaven” In de waterrijke en rustige woonomgeving van Schiedam-Zuid bevindt zich dit royale en modern vormgegeven herenhuis met eigen oprit, berging en een zonnig terras aan het water. De woning maakt onderdeel uit van het kleinschalige project “De Houthaven” en kenmerkt zich door een…

Modern herenhuis met eigen oprit en zonnig terras aan het water in project “De Houthaven”

In de waterrijke en rustige woonomgeving van Schiedam-Zuid bevindt zich dit royale en modern vormgegeven herenhuis met eigen oprit, berging en een zonnig terras aan het water. De woning maakt onderdeel uit van het kleinschalige project “De Houthaven” en kenmerkt zich door een bijzonder ruimtelijk gevoel dankzij de indrukwekkende plafondhoogte van circa 3,70 meter. Met meerdere royale slaapkamers, een multifunctionele extra leefruimte en een terras op het zuidwesten met vrij uitzicht over het water, biedt deze woning een perfecte combinatie van comfort, ruimte en ligging. Bovendien bevinden openbaar vervoer, winkels, scholen, sportfaciliteiten en diverse parken zich op korte afstand.

WONEN AAN HET WATER MET ZONNIGE TERRAS OP HET ZUIDWESTEN
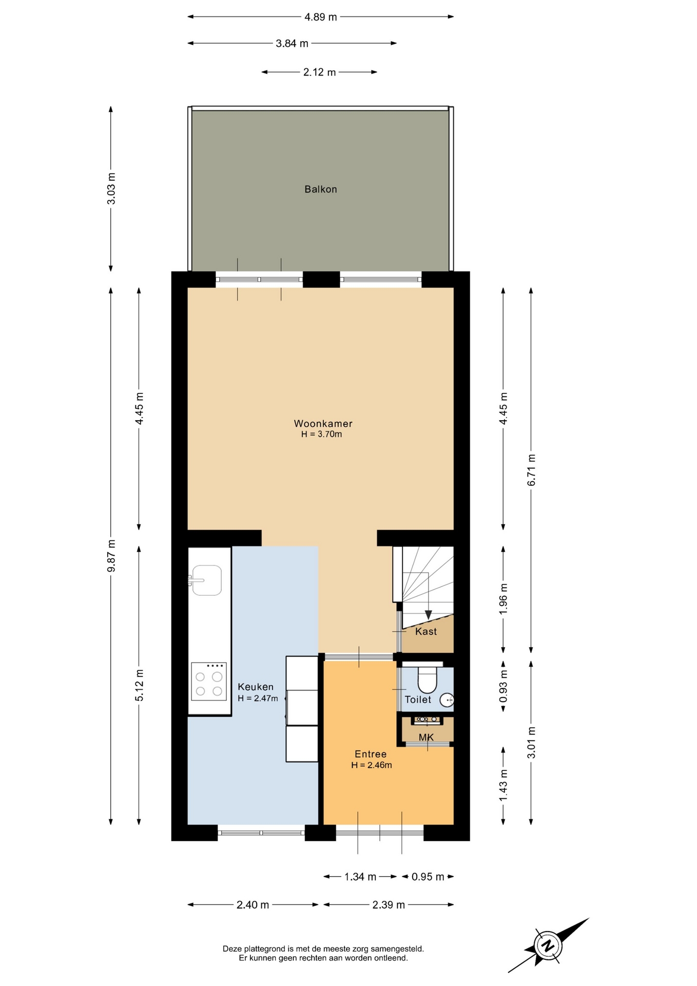
Een van de absolute pluspunten van deze woning is het ruime terras van circa 15 m², gelegen op het zuidwesten en direct aan het water van de Houthaven. Hier geniet u van een prachtig vrij uitzicht over het water terwijl u optimaal profiteert van de middag- en avondzon. Het terras vormt een heerlijke verlenging van de woonkamer en biedt volop ruimte voor een comfortabele lounge- of eethoek. Extra bijzonder is de mogelijkheid om een bootje aan te meren, waardoor u letterlijk vanuit uw eigen woning het water op kunt.

UITZONDERLIJK RUIMTELIJK GEVOEL DOOR PLAFONDHOOGTE
Uitzonderlijk ruimtelijk gevoel door plafondhoogte van 3,70 meter

De woning onderscheidt zich door de imposante plafondhoogte van circa 3,70 meter op zowel de begane grond als de eerste verdieping. Deze hoogte zorgt niet alleen voor een luxe uitstraling, maar ook voor een bijzonder lichte en ruimtelijke woonbeleving. In combinatie met de grote raampartijen ontstaat een open en luchtig karakter dat u direct ervaart zodra u de woning binnenstapt. Het geeft de leefruimtes een unieke uitstraling die in moderne woningen zelden voorkomt.

ROYALE LEEFRUIMTES EN MULTIFUNTIONELE VERDIEPING
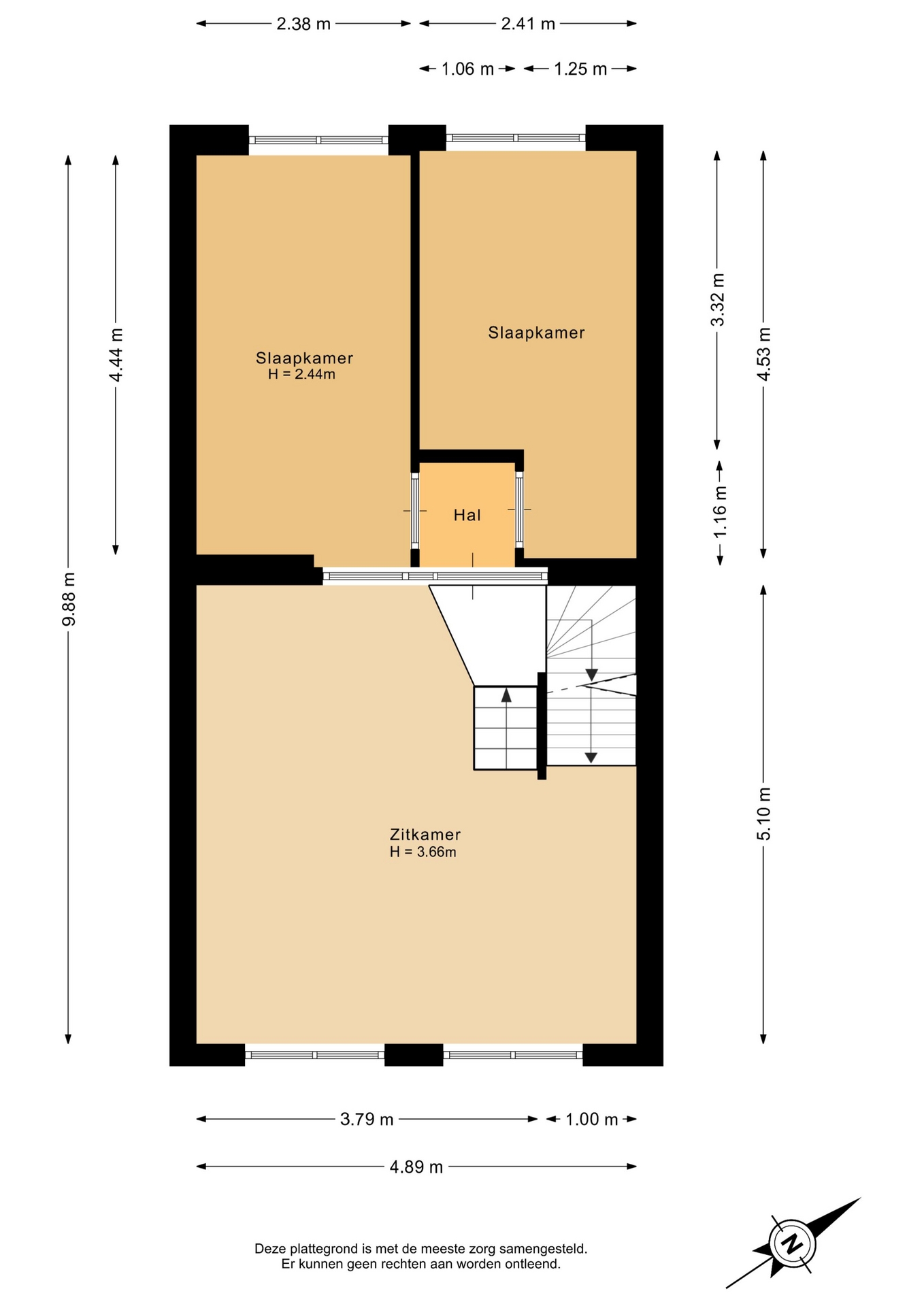
Met meerdere ruime slaapkamers en een extra grote leefruimte op de eerste verdieping biedt deze woning bijzonder veel flexibiliteit. Deze verdieping kan perfect worden ingericht als tweede woonkamer, werkruimte, hobbykamer of speelkamer, afhankelijk van uw woonwensen. Daarnaast beschikt de woning over een zeer ruime master bedroom van circa 23 m² en nog twee grote slaapkamers op de tweede verdieping, waardoor het huis uitermate geschikt is voor gezinnen of voor wie extra ruimte zoekt.

EIGEN OPRIT EN PRAKTISCHE BERGRUIMTE
Naast comfort en ruimte biedt deze woning ook veel praktische voordelen. Zo beschikt het huis over parkeergelegenheid op eigen terrein, waardoor u altijd verzekerd bent van een parkeerplek direct bij de woning. Aan de voorzijde bevindt zich bovendien een ruime berging van circa 7 m², ideaal voor fietsen, gereedschap of extra opslag. Deze combinatie van gemak en functionaliteit draagt bij aan het comfortabele woonkarakter van het huis.

KENMERKEN
- Bouwjaar: 2001
- Terras: ca. 15 m² op het zuidwesten, gelegen aan het water
- Berging: ca. 7 m²
- Parkeren op eigen terrein
- Hardhouten kozijnen (2 jaar geleden de voor- en achterzijde volledig geschilderd)
- Geheel voorzien van dubbel glas
- Cv-ketel uit okt 2025
- Oplevering in overleg

INTERESSE? MAAK DAN SNEL EEN AFSPRAAK!
Ons advies is om bij het kopen van jouw nieuwe huis altijd jouw eigen NVM makelaar mee te nemen.

TOELICHTINGSCLAUSULE NEN2580
De Meetinstructie is gebaseerd op de NEN2580. De Meetinstructie is bedoeld om een meer eenduidige manier van meten toe te passen voor het geven van een indicatie van de gebruiksoppervlakte. De Meetinstructie sluit verschillen in meetuitkomsten niet volledig uit, door bijvoorbeeld interpretatieverschillen, afrondingen of beperkingen bij het uitvoeren van de meting.

KOOPOVEREENKOMST PAS RECHTSGELDIG NA ONDERTEKENING
Een mondelinge overeenstemming tussen de particuliere verkoper en de particuliere koper is niet rechtsgeldig. Met andere woorden: er is geen koop. Er is pas sprake van een rechtsgeldige koop als de particuliere verkoper en de particuliere koper de koopovereenkomst hebben ondertekend. Dit vloeit voort uit artikel 7:2 Burgerlijk Wetboek. Een bevestiging van de mondelinge overeenstemming per e-mail of een toegestuurd concept van de koopovereenkomst wordt overigens niet gezien als een 'ondertekende koopovereenkomst'

“Deze informatie is door ons met de nodige zorgvuldigheid samengesteld. Onzerzijds wordt echter geen enkele aansprakelijkheid aanvaard voor enige onvolledigheid, onjuistheid of anderszins, dan wel de gevolgen daarvan. Alle opgegeven maten en oppervlakten zijn indicatief.”

Kenmerken

Basiskenmerken

  • Status Verkocht onder voorbehoud
  • Koopsom € 650.000 k.k.
  • Woonoppervlakte ca. 137 m2
  • Aantal slaapkamers 4
  • Bouwjaar 2001

Overdracht

  • Aanvaarding In overleg

Bouwvorm & onderhoud

  • Soort object Tussenwoning
  • Soort woning Herenhuis
  • Bouwjaar 2001
  • Soort bouw woonhuis
  • Ligging Aan water, aan rustige weg, vrij uitzicht

Oppervlakte & inhoud

  • Gebruiksoppervlakte 137m2
  • Perceeloppervlakte 90m2
  • Inhoud 511m3
  • Aantal kamers 5
  • Aantal slaapkamers 4
  • Aantal woonlagen 3 woonlagen

Energie & installatie

  • Energielabel A
  • Isolatie Dakisolatie, muurisolatie, vloerisolatie, dubbel glas, volledig geisoleerd
  • Verwarming Cv ketel
  • Warm water Cv ketel
  • C.v.-ketel type GAS
  • C.v.-ketel bouwjaar 2025
  • Energie einddatum 18-08-2027

Bergruimte

  • Schuur / berging Vrijstaand steen

Parkeergelegenheid

  • Parkeerfaciliteiten Openbaar parkeren
  • Garage Geen garage

Dak

  • Soort dak Zadeldak

Overig

  • Onderhoud binnen Goed
  • Onderhoud buiten Goed
  • Bijzonderheden Gedeeltelijk gestoffeerd
  • Permanente bewoning Ja
  • Huidig gebruik Woonruimte
  • Huidige bestemming Woonruimte

Voorzieningen

  • Voorzieningen Mechanische ventilatie, buitenzonwering, glasvezel kabel

Buitenruimte

  • Hoofdtuin ZONNETERRAS
  • Oppervlakte hoofdtuin 15m2
  • Ligging hoofdtuin ZUIDWEST
  • Kwaliteit tuin Normaal

Kadastrale gegevens

  • Perceelnummer 7715
  • Perceeloppervlakte 90 m2
Meer kenmerken
Ontdek online wat jouw huis waard is

Met de online waardecheck ontdek je in een paar minuten de geschatte waarde van jouw huis!

Gratis waardecheck

In de buurt