Chat with us, powered by LiveChat Gerard Scholtenstraat 82, 3035 SP ROTTERDAM - WoonSchuijt Makelaars

Rotterdam

Gerard Scholtenstraat  82

€ 795.000,- k.k.

Omschrijving

Wonen met karakter én comfort: 5 slaapkamers, 2 badkamers, zonnige stadstuin en een heerlijk royale woonkeuken midden in het Oude Noorden. Welkom in het bruisende Oude Noorden, waar levendigheid en rust elkaar perfect aanvullen. Aan de geliefde Gerard Scholtenstraat staat dit indrukwekkende en karakteristieke herenhuis (gebouwd rond 1895), met maar liefst ca. 166 m²…

Wonen met karakter én comfort: 5 slaapkamers, 2 badkamers, zonnige stadstuin en een heerlijk royale woonkeuken midden in het Oude Noorden.

Welkom in het bruisende Oude Noorden, waar levendigheid en rust elkaar perfect aanvullen. Aan de geliefde Gerard Scholtenstraat staat dit indrukwekkende en karakteristieke herenhuis (gebouwd rond 1895), met maar liefst ca. 166 m² woonruimte, een kelder/souterrain van ca. 61 m², 5 slaapkamers, 2 badkamers én een groene, zonnige stadstuin op het zuidwesten. Hier woon je royaal, comfortabel én authentiek.

Dit is zo’n huis waar je direct voelt: hier klopt alles. Hoge plafonds, glas-in-lood, ornamenten en warme houten vloeren lopen naadloos over in modern comfort, een fantastische woonkeuken met kookeiland en luxe afwerking. Alles met liefde en aandacht gerenoveerd, inclusief funderingsherstel en uitbouw.

WOONKEUKEN ALS HART VAN HET HUIS
Aan de voorzijde ligt de prachtige woonkeuken met een groot kookeiland waar iedereen zich verzamelt: koken, borrelen, natafelen: het gebeurt hier samen. De living aan de tuinzijde is ruim, sfeervol en licht dankzij de grote pui met openslaande deuren naar de tuin.
De tuin ligt ideaal op het zuidwesten. Veel groen, veel privacy, en vooral: zon.
Koffie in de ochtend, wijn in de avond en het stadsleven lijkt ineens even ver weg.

VIJF SLAAPKAMERS, TWEE BADKAMERS & EEN SAUNA
Op de eerste verdieping bevindt zich de master bedroom met balkon en een moderne en-suite badkamer. De en-suite deuren met glas-in-lood verbinden deze kamer met de tussenkamer (perfect als babykamer, garderoberuimte of werkplek). Aan de voorzijde ligt nog een ruime derde slaapkamer.

De tweede verdieping verrast met nóg een badkamer (inclusief ligbad!), twee ruime slaapkamers én… een sauna. Het dakterras aan de achterzijde is de plek om de zon te zien zakken.
Dit is wonen met hotelgevoel, maar dan thuis.

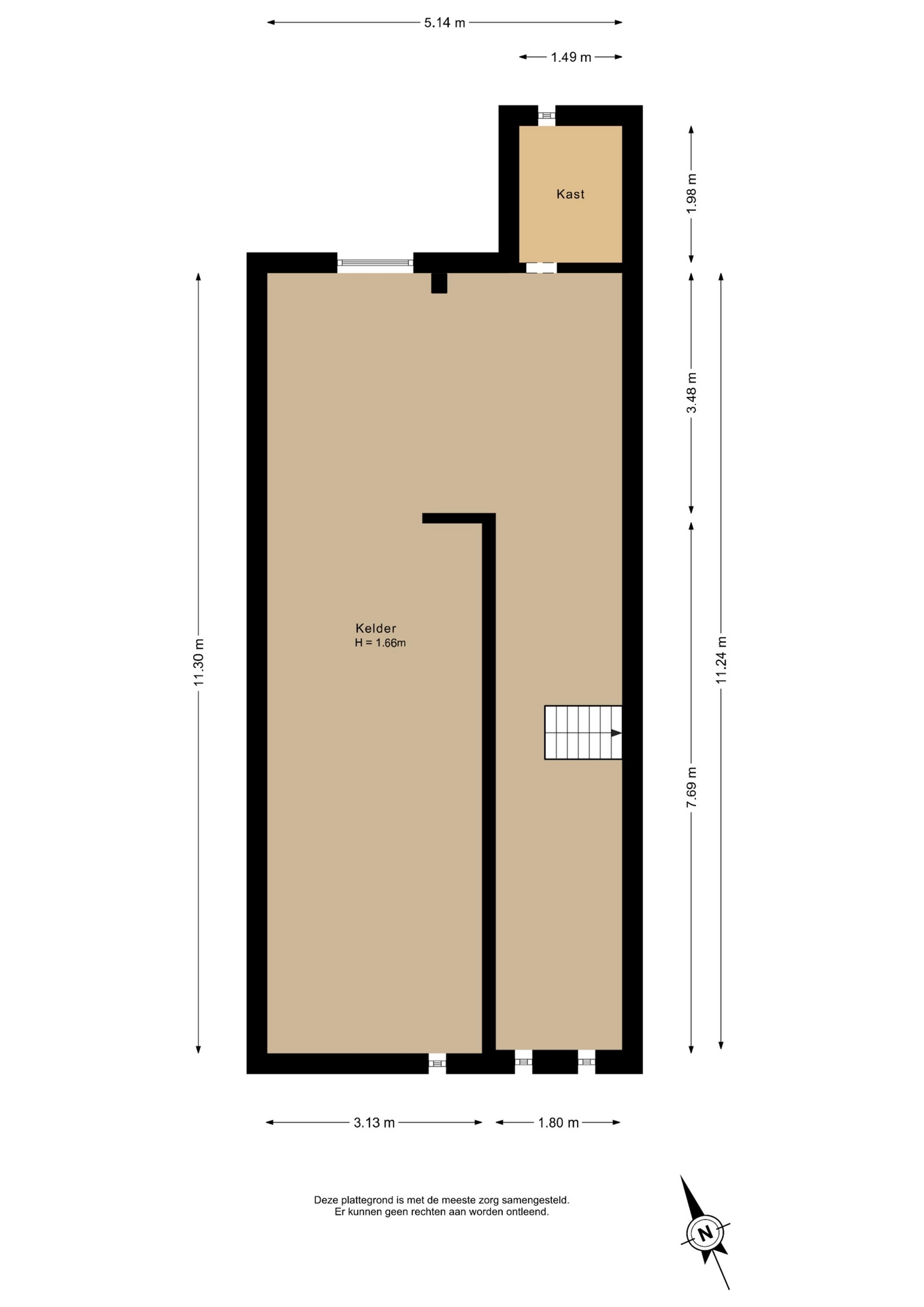
KELDER/SOUTERRAIN: EXTRA WERK-, SPEEL- OF HOBBYRUIMTE
Met ca. 55 m² onder het huis zijn de mogelijkheden eindeloos: werkruimte, atelier, speelruimte, gym, wijnkelder of zelfs een extra woonlaag.
Dit soort extra ruimte vind je niet vaak in de stad.

DE GROENE EN LEVENIGE WIJK: HET OUDE NOORDEN
Een wijk met karakter, creativiteit en gezelligheid. De Gerard Scholtenstraat is een prachtige straat, gelegen achter de levendige winkelstraat Zwart-Janstraat en om de hoek van het Pijnackerplein. De woning bevindt zich midden in een sfeervolle vooroorlogse wijk met karakteristieke bebouwing uit de late 19e en vroege 20e eeuw — een heerlijke plek om te wonen. Het Oude Noorden staat bekend om zijn gezellige cafés en restaurants en is daarmee een van de hipste wijken van Rotterdam. Denk aan hotspots als Café de Bel, Mevrouw Meijer, Tosca, Bar Speck en Hopper Noord. Ook de levendige Zwaanshals en de Zaagmolenkade liggen vlakbij, met een gevarieerd aanbod aan unieke winkels en speciaalzaken. Op het gebied van food, fashion en design vind je hier werkelijk alles. De Zwart-Janstraat en het Noordplein liggen om de hoek, met fijne lokale winkels en de wekelijkse (oogst)markt op het Noordplein. Het Pijnackerplein heeft bovendien een zeer actieve bewonersvereniging, waar je als nieuwe eigenaar ook deel van kunt uitmaken. Dit zorgt voor een betrokken, sociale en kindvriendelijke buurt. De bereikbaarheid is uitstekend. De tramhalte ligt op slechts twee minuten lopen en biedt een snelle verbinding met het centrum van Rotterdam. Ook met de fiets ben je binnen enkele minuten in het centrum. Daarnaast zijn de uitvalswegen (A13 en A20) eenvoudig te bereiken.

KENMERKEN
- Eigen grond
- Bouwjaar 1895
- Woonoppervlakte ca. 166 M² Kelder/souterrain ca. 61 M²
- Verwarming en warm water middels CV-combiketel (Nefit/2013)
- Sfeervol en modern wonen met behoud van originele details (Glas-in-lood, en-suite deuren, marmer, hardsteen, stucwerk)
- Fantastische woonkeuken met kookeiland
- Ruime, lichte living met openslaande deuren naar tuin
- 3 volledige woonlagen met 5 slaapkamers, 2 badkamers en sauna
- Kelder/souterrain van ruim 61 M² (eventueel volledige extra (4e) woonlaag te realiseren)
- Heerlijk veel buitenruimte: tuin, balkon én dakterras (allemaal zuidwest)
- Grote renovaties reeds uitgevoerd (1999 en 2008), waaronder funderingsherstel en uitbouw achterzijde (2008)
(Nieuw dak en dakpannen 2000, Buitenschilderwerk 2018 en 2025, dakgoten in 2025 vernieuwd)
- Rustig gelegen en toch midden in het levendige Oude Noorden
- Oplevering naar voorkeur van verkoper eind augustus 2026

INTERESSE? MAAK DAN SNEL EEN AFSPRAAK!
Ons advies is om bij het kopen van jouw nieuwe woning jouw eigen NVM makelaar mee te nemen.

TOELICHTINGSCLAUSULE NEN2580
De Meetinstructie is gebaseerd op de NEN2580. De Meetinstructie is bedoeld om een meer eenduidige manier van meten toe te passen voor het geven van een indicatie van de gebruiksoppervlakte. De Meetinstructie sluit verschillen in meetuitkomsten niet volledig uit, door bijvoorbeeld interpretatieverschillen, afrondingen of beperkingen bij het uitvoeren van de meting.

KOOPOVEREENKOMST PAS RECHTSGELDIG NA ONDERTEKENING
Een mondelinge overeenstemming tussen de particuliere verkoper en de particuliere koper is niet rechtsgeldig. Met andere woorden: er is geen koop. Er is pas sprake van een rechtsgeldige koop als de particuliere verkoper en de particuliere koper de koopovereenkomst hebben ondertekend. Dit vloeit voort uit artikel 7:2 Burgerlijk Wetboek. Een bevestiging van de mondelinge overeenstemming per e-mail of een toegestuurd concept van de koopovereenkomst wordt overigens niet gezien als een 'ondertekende koopovereenkomst'

“Deze informatie is door ons met de nodige zorgvuldigheid samengesteld. Onzerzijds wordt echter geen enkele aansprakelijkheid aanvaard voor enige onvolledigheid, onjuistheid of anderszins, dan wel de gevolgen daarvan. Alle opgegeven maten en oppervlakten zijn indicatief.”

Kenmerken

Basiskenmerken

  • Status Verkocht onder voorbehoud
  • Koopsom € 795.000 k.k.
  • Woonoppervlakte ca. 166 m2
  • Aantal slaapkamers 4
  • Bouwjaar 1895

Overdracht

  • Aanvaarding In overleg

Bouwvorm & onderhoud

  • Soort object Tussenwoning
  • Soort woning Eengezinswoning
  • Bouwjaar 1895
  • Soort bouw woonhuis
  • Ligging Aan rustige weg, in woonwijk

Oppervlakte & inhoud

  • Gebruiksoppervlakte 166m2
  • Perceeloppervlakte 123m2
  • Inhoud 789m3
  • Aantal kamers 6
  • Aantal slaapkamers 4
  • Aantal woonlagen 4 woonlagen
  • Overige inpandige ruimte 61m2

Energie & installatie

  • Energielabel E
  • Isolatie Dakisolatie, vloerisolatie, dubbel glas
  • Verwarming Cv ketel
  • Warm water Cv ketel
  • C.v.-ketel type GAS
  • C.v.-ketel bouwjaar 2013
  • Energie einddatum 09-01-2029

Parkeergelegenheid

  • Parkeerfaciliteiten Openbaar parkeren, betaald parkeren, parkeervergunningen
  • Garage Geen garage

Dak

  • Soort dak Zadeldak

Overig

  • Onderhoud binnen Goed
  • Onderhoud buiten Goed
  • Bijzonderheden Gedeeltelijk gestoffeerd
  • Permanente bewoning Ja
  • Huidig gebruik Woonruimte
  • Huidige bestemming Woonruimte

Voorzieningen

  • Voorzieningen Mechanische ventilatie, tv kabel, sauna, natuurlijke ventilatie

Buitenruimte

  • Hoofdtuin ACHTERTUIN
  • Oppervlakte hoofdtuin 76m2
  • Ligging hoofdtuin ZUIDWEST
  • Kwaliteit tuin Verzorgd

Kadastrale gegevens

  • Perceelnummer 799
  • Perceeloppervlakte 123 m2
Meer kenmerken
Ontdek online wat jouw huis waard is

Met de online waardecheck ontdek je in een paar minuten de geschatte waarde van jouw huis!

Gratis waardecheck

In de buurt