Chat with us, powered by LiveChat Frans Halsstraat 31, 2902 GE CAPELLE AAN DEN IJSSEL - WoonSchuijt Makelaars

Capelle Aan Den Ijssel

Frans Halsstraat  31

€ 370.000,- k.k.

Omschrijving

*** KLUSSERS OPGELET *** Op zoek naar een kluswoning die je volledig naar eigen smaak kunt inrichten? Kom dan kijken aan de Frans Halsstraat 31 in Capelle. Dankzij de royale uitbouw beschikt de woning over een ruime woonkamer met een open keuken, gericht op de tuin. De achtertuin is gelegen op het zonnige zuidwesten en beschikt over een achterom. Op de verdieping bevinden…

*** KLUSSERS OPGELET ***
Op zoek naar een kluswoning die je volledig naar eigen smaak kunt inrichten? Kom dan kijken aan de Frans Halsstraat 31 in Capelle. Dankzij de royale uitbouw beschikt de woning over een ruime woonkamer met een open keuken, gericht op de tuin. De achtertuin is gelegen op het zonnige zuidwesten en beschikt over een achterom. Op de verdieping bevinden zich drie slaapkamers en een badkamer.

CENTRALE LIGGING:
De woning bevindt zich in de wijk “Middelwatering” met alle voorzieningen, zoals openbaar vervoer (metrostation Slotlaan), uitvalswegen en scholen op loopafstand; voor het gezellige Winkelcentrum Slotplein voor alle dagelijkse boodschappen en restaurants hoeft u alleen maar de straat uit te lopen. Het grotere winkelcentrum De Koperwiek is in de directe omgeving van de woning te vinden. Kortom, een ideale locatie!

INDELING

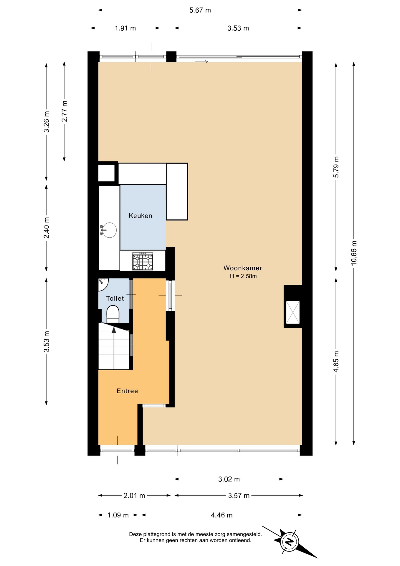
BEGANE GROND
Via de entree bereik je direct de trapopgang naar de eerste verdieping. Daarnaast bevinden zich hier het toilet met fonteintje en de toegang tot de woonkamer.
De woonkamer is ruim opgezet en dankzij de grote raampartijen heerlijk licht. Aan de achterzijde ligt de open keuken.
De zonnige achtertuin, gelegen op het zuidwesten, is bereikbaar via zowel de keukendeur als de schuifpui. In de tuin bevinden zich een stenen berging en een achterom.

EERSTE VERDIEPING
Vanaf de overloop zijn alle vertrekken toegankelijk. De twee slaapkamers aan de voorzijde hebben een oppervlakte van circa 14 m² en 5 m².
De slaapkamer aan de achterzijde beschikt over praktische vaste kasten en is circa 12 m² groot.
De badkamer is eenvoudig uitgevoerd en voorzien van een douche, wastafelmeubel en toilet.

BIJZONDERHEDEN:
- Bouwjaar 1958;
- 106 m² woonoppervlakte;
- 144 m² perceeloppervlakte;
- Zonnige tuin op het zuidwesten;
- 3 slaapkamers;
- Verwarming en warm water middels cv-ketel;
- Ruime voldoende gratis parkeergelegenheid voor de deur;
- Centrale locatie dichtbij voorzieningen;
- Energielabel C, geldig tot 12-07-2034;
- Aangezien de verkoper het object nooit zelf feitelijk heeft bewoond, zal een niet-zelfbewoningsclausule worden opgenomen;
- Projectnotaris: Van Hengstum en Stolp;
- Oplevering kan op korte termijn.

IN DEZE PRESENTATIE IS GEBRUIK GEMAAKT VAN IMPRESSIES. AAN DEZE IMPRESSIES KUNNEN GEEN RECHTEN WORDEN ONTLEEND. DEZE DIENEN PER OM TE LATEN ZIEN WAT ER MOGELIJK IS MET DE WONING.

INTERESSE? MAAK DAN SNEL EEN AFSPRAAK!
Ons advies is om bij het kopen van je nieuwe huis je eigen NVM-makelaar mee te nemen.

Toelichtingsclausule NEN2580:
De Meetinstructie is gebaseerd op de NEN2580. De Meetinstructie is bedoeld om een meer eenduidige manier van meten toe te passen voor het geven van een indicatie van de gebruiksoppervlakte. De Meetinstructie sluit verschillen in meetuitkomsten niet volledig uit, door bijvoorbeeld interpretatieverschillen, afrondingen of beperkingen bij het uitvoeren van de meting.

“Deze informatie is door ons met de nodige zorgvuldigheid samengesteld. Onzerzijds wordt echter geen enkele aansprakelijkheid aanvaard voor enige onvolledigheid, onjuistheid of anderszins, dan wel de gevolgen daarvan. Alle opgegeven maten en oppervlakten zijn indicatief.”

Koopovereenkomst pas rechtsgeldig na ondertekening:
Een mondelinge overeenstemming tussen de particuliere verkoper en de particuliere koper is niet rechtsgeldig. Met andere woorden: er is geen koop. Er is pas sprake van een rechtsgeldige koop als de particuliere verkoper en de particuliere koper de koopovereenkomst hebben ondertekend. Dit vloeit voort uit artikel 7:2 Burgerlijk Wetboek. Een bevestiging van de mondelinge overeenstemming per e-mail of een toegestuurd concept van de koopovereenkomst wordt overigens niet gezien als een 'ondertekende koopovereenkomst'.

Kenmerken

Basiskenmerken

  • Status Beschikbaar
  • Koopsom € 370.000 k.k.
  • Woonoppervlakte ca. 106 m2
  • Aantal slaapkamers 3
  • Bouwjaar 1958

Overdracht

  • Aanvaarding In overleg

Bouwvorm & onderhoud

  • Soort object Tussenwoning
  • Soort woning Eengezinswoning
  • Bouwjaar 1958
  • Soort bouw woonhuis
  • Ligging In woonwijk

Oppervlakte & inhoud

  • Gebruiksoppervlakte 106m2
  • Perceeloppervlakte 144m2
  • Inhoud 364m3
  • Aantal kamers 4
  • Aantal slaapkamers 3
  • Aantal woonlagen 2 woonlagen

Energie & installatie

  • Energielabel C
  • Isolatie Dubbel glas
  • Verwarming Cv ketel
  • Warm water Cv ketel
  • C.v.-ketel type GAS
  • Energie einddatum 12-07-2034

Bergruimte

  • Schuur / berging Vrijstaand steen

Parkeergelegenheid

  • Parkeerfaciliteiten Openbaar parkeren
  • Garage Geen garage

Dak

  • Soort dak Zadeldak

Overig

  • Onderhoud binnen Redelijk
  • Onderhoud buiten Redelijk
  • Bijzonderheden Gedeeltelijk gestoffeerd
  • Permanente bewoning Ja
  • Huidig gebruik Woonruimte
  • Huidige bestemming Woonruimte

Voorzieningen

  • Voorzieningen Mechanische ventilatie, rolluiken, tv kabel, rookkanaal, schuifpui, natuurlijke ventilatie

Buitenruimte

  • Hoofdtuin ACHTERTUIN
  • Oppervlakte hoofdtuin 63m2
  • Ligging hoofdtuin ZUIDWEST
  • Kwaliteit tuin Normaal

Kadastrale gegevens

  • Perceelnummer 6908
  • Perceeloppervlakte 144 m2
Meer kenmerken
Ontdek online wat jouw huis waard is

Met de online waardecheck ontdek je in een paar minuten de geschatte waarde van jouw huis!

Gratis waardecheck

In de buurt

Geïnteresseerd?

Bel met WoonSchuijt Makelaars

shape

Stuur een bericht

* Maximaal 255 tekens
privacyverklaring