Chat with us, powered by LiveChat Ertsstraat 24, 3072 AB ROTTERDAM - WoonSchuijt Makelaars

Rotterdam

Ertsstraat  24

€ 720.000,- k.k.

Omschrijving

Splitlevel wonen met uitzicht op De Maas en de SS Rotterdam! Dit is zo’n huis dat je niet vaak tegenkomt. Gelegen op misschien wel de mooiste plek van Katendrecht, direct aan het Kaappark, met vrij uitzicht op de SS Rotterdam en de bedrijvigheid op de Maas. Hier woon je aan de rand van het centrum, maar toch in alle rust. Geen doorgaand verkeer voor de deur, wel groen en…

Splitlevel wonen met uitzicht op De Maas en de SS Rotterdam!

Dit is zo’n huis dat je niet vaak tegenkomt. Gelegen op misschien wel de mooiste plek van Katendrecht, direct aan het Kaappark, met vrij uitzicht op de SS Rotterdam en de bedrijvigheid op de Maas. Hier woon je aan de rand van het centrum, maar toch in alle rust. Geen doorgaand verkeer voor de deur, wel groen en water als je naar buiten kijkt. De splitlevel indeling zorgt voor een speelse opzet en een verrassend ruimtelijk gevoel. Dankzij de verschillende niveaus en de grote raampartijen voelt de woning licht en open aan. De woning is volledig geïsoleerd en voorzien van dubbele beglazing. De kozijnen zijn in 2021 nog geschilderd en het huis is recent opnieuw in de verf gezet. Aan de voor- en zijgevel zijn houten kozijnen toegepast, terwijl de achtergevel is uitgevoerd met aluminium kozijnen. Deze achtergevel ligt op het zuiden; aluminium is hier bewust gekozen vanwege de duurzaamheid en het beperkte onderhoud bij maximale zonbelasting.

RUIME LEEFKEUKEN EN VIER SLAAPKAMERS
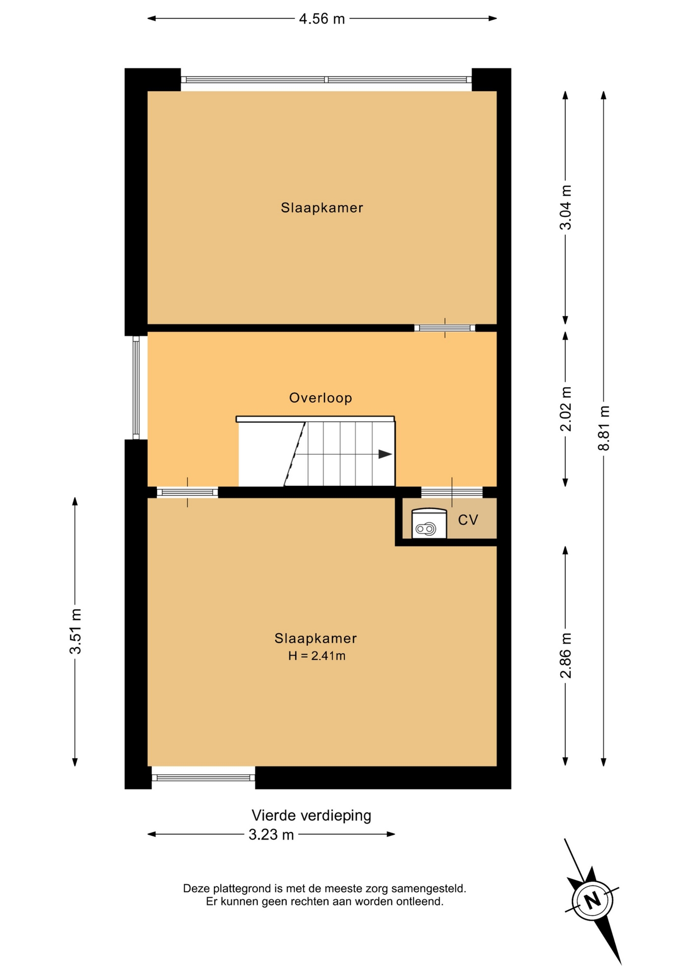
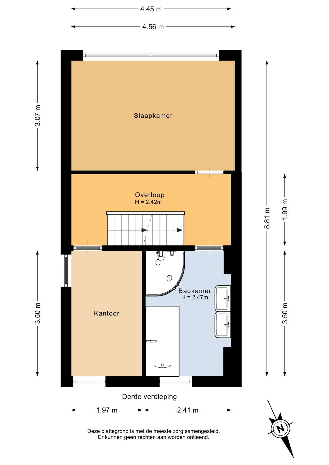
De indeling wijkt net even af van standaard en dat maakt deze woning juist zo aantrekkelijk. De woonkamer bevindt zich op de eerste verdieping en biedt een prettige, lichte leefruimte. Aan de terraskant ligt de woonkeuken. Deze grenst direct aan het terras en vormt daarmee het hart van het huis. De keuken is in 2021 vernieuwd en uitgevoerd in een moderne, rechte opstelling met diverse inbouwapparatuur. Er is volop ruimte voor een grote eettafel, waardoor koken, tafelen en samenzijn hier moeiteloos samenkomen. Op de derde verdieping bevinden zich twee slaapkamers en de ruime badkamer. De grootste slaapkamer op deze verdieping is heerlijk licht en biedt voldoende plek voor een groot bed en kastruimte. De tweede kamer is perfect als kinderkamer, werkplek of logeerkamer. De badkamer is compleet uitgevoerd met een ligbad, douchecabine, dubbele wastafel en een tweede toilet. De bovenste verdieping telt nog eens twee ruime slaapkamers. De grootste kamer op deze etage is bijzonder royaal en kan ook uitstekend dienen als master bedroom. De vierde slaapkamer is eveneens van goed formaat. Op de overloop bevindt zich de cv-ruimte.

Op de begane grond bevindt zich de entree met toilet en meterkast. Daarnaast is er een ruime en multifunctionele bijkeuken. Deze ruimte is voorzien van verwarming, ventilatie en zowel koud als warm stromend water. Ook bevindt zich hier de aansluiting voor de wasmachine. Dankzij de aparte toegangsdeur is deze ruimte ideaal voor fietsen, opslag of als praktische werk- of hobbyruimte.

ZONNIG TERRAS AAN HET PARK
Het terras is gelegen op het zuiden en grenst direct aan het park. Hier geniet je volop van de zon, privacy en het groene uitzicht. Een kop koffie in de ochtendzon of een borrel aan het einde van de dag – dit is echt een verlengstuk van je woonkamer.

HIP KATENDRECHT MET ALLES OM DE HOEK
Katendrecht is de afgelopen jaren uitgegroeid tot een van de populairste wijken van Rotterdam – en dat is niet voor niets. Je woont hier op een schiereiland tussen de Rijnhaven en de Maas, met een unieke mix van historie en moderne stadsontwikkeling. Het Deliplein met gezellige restaurants en terrassen ligt op loopafstand, net als de vernieuwde Fenix Food Factory. Ook een grote supermarkt, scholen, kinderopvang en sportvoorzieningen bevinden zich in de directe omgeving. Voor een wandeling of om te ontspannen hoef je alleen maar de deur uit te lopen richting het Kaappark of langs de kade. Met de fiets sta je binnen enkele minuten in het centrum van Rotterdam en ook het openbaar vervoer is goed geregeld.

KENMERKEN
-Bouwjaar 2001
-Woonoppervlakte ca. 145 m²
-Energielabel A
-Terras op het zuiden, direct aan het park
-5 kamers, vier verdiepingen (splitlevel)
-Gelegen aan het Kaappark met vrij uitzicht op de SS Rotterdam en de Maas
-Keuken vernieuwd in 2021
-Verwarming en warm water via CV-Ketel Vaillaint (2021)
-Erfpacht afgekocht t/m 31-12-2049 (loopt tot 31-12-2098)
-Oplevering in overleg

INTERESSE? MAAK DAN SNEL EEN AFSPRAAK!
Ons advies is om bij het kopen van jouw nieuwe woning jouw eigen NVM makelaar mee te nemen.

TOELICHTINGSCLAUSULE NEN2580
De Meetinstructie is gebaseerd op de NEN2580. De Meetinstructie is bedoeld om een meer eenduidige manier van meten toe te passen voor het geven van een indicatie van de gebruiksoppervlakte. De Meetinstructie sluit verschillen in meetuitkomsten niet volledig uit, door bijvoorbeeld interpretatieverschillen, afrondingen of beperkingen bij het uitvoeren van de meting.

KOOPOVEREENKOMST PAS RECHTSGELDIG NA ONDERTEKENING
Een mondelinge overeenstemming tussen de particuliere verkoper en de particuliere koper is niet rechtsgeldig. Met andere woorden: er is geen koop. Er is pas sprake van een rechtsgeldige koop als de particuliere verkoper en de particuliere koper de koopovereenkomst hebben ondertekend. Dit vloeit voort uit artikel 7:2 Burgerlijk Wetboek. Een bevestiging van de mondelinge overeenstemming per e-mail of een toegestuurd concept van de koopovereenkomst wordt overigens niet gezien als een 'ondertekende koopovereenkomst'

“Deze informatie is door ons met de nodige zorgvuldigheid samengesteld. Onzerzijds wordt echter geen enkele aansprakelijkheid aanvaard voor enige onvolledigheid, onjuistheid of anderszins, dan wel de gevolgen daarvan. Alle opgegeven maten en oppervlakten zijn indicatief.”

Kenmerken

Basiskenmerken

  • Status Verkocht onder voorbehoud
  • Koopsom € 720.000 k.k.
  • Woonoppervlakte ca. 138 m2
  • Aantal slaapkamers 4
  • Bouwjaar 2001

Overdracht

  • Aanvaarding In overleg

Bouwvorm & onderhoud

  • Soort object Hoekwoning
  • Soort woning Eengezinswoning
  • Bouwjaar 2001
  • Soort bouw woonhuis
  • Ligging Aan park, aan rustige weg, in woonwijk, vrij uitzicht

Oppervlakte & inhoud

  • Gebruiksoppervlakte 138m2
  • Perceeloppervlakte 70m2
  • Inhoud 525m3
  • Aantal kamers 7
  • Aantal slaapkamers 4
  • Aantal woonlagen 5 woonlagen
  • Overige inpandige ruimte 13m2

Energie & installatie

  • Energielabel A
  • Isolatie Dubbel glas, volledig geisoleerd, hr glas
  • Verwarming Cv ketel
  • Warm water Cv ketel
  • C.v.-ketel type GAS
  • C.v.-ketel bouwjaar 2021
  • Energie einddatum 09-09-2030

Bergruimte

  • Schuur / berging Inpandig
  • Voorzieningen Voorzien van elektra

Parkeergelegenheid

  • Parkeerfaciliteiten Betaald parkeren, parkeervergunningen
  • Garage Geen garage

Dak

  • Soort dak Plat dak

Overig

  • Onderhoud binnen Goed
  • Onderhoud buiten Goed
  • Bijzonderheden Gedeeltelijk gestoffeerd
  • Permanente bewoning Ja
  • Huidig gebruik Woonruimte
  • Huidige bestemming Woonruimte

Voorzieningen

  • Voorzieningen Mechanische ventilatie, tv kabel

Buitenruimte

  • Hoofdtuin ACHTERTUIN
  • Oppervlakte hoofdtuin 21m2
  • Ligging hoofdtuin ZUID
  • Kwaliteit tuin Verzorgd

Kadastrale gegevens

  • Perceelnummer 2327
  • Perceeloppervlakte 70 m2
Meer kenmerken
Ontdek online wat jouw huis waard is

Met de online waardecheck ontdek je in een paar minuten de geschatte waarde van jouw huis!

Gratis waardecheck

In de buurt