Chat with us, powered by LiveChat Dirkje Goedhartstraat 22, 3065 HH ROTTERDAM - WoonSchuijt Makelaars

Rotterdam

Dirkje Goedhartstraat  22

€ 525.000,- k.k.

Omschrijving

RUSTIG GELEGEN GEZINSHUIS MET FIJNE TUIN In een rustige en groene woonwijk in Rotterdam-Prinsenland ligt dit fijne huis. Met een woonoppervlakte van circa 110 m², vier slaapkamers en een zonnige achtertuin met ochtend- en begin middagzon is dit een plek waar je jarenlang comfortabel kunt wonen. De combinatie van rust, ruimte én de centrale ligging met winkelcentrum…

RUSTIG GELEGEN GEZINSHUIS MET FIJNE TUIN
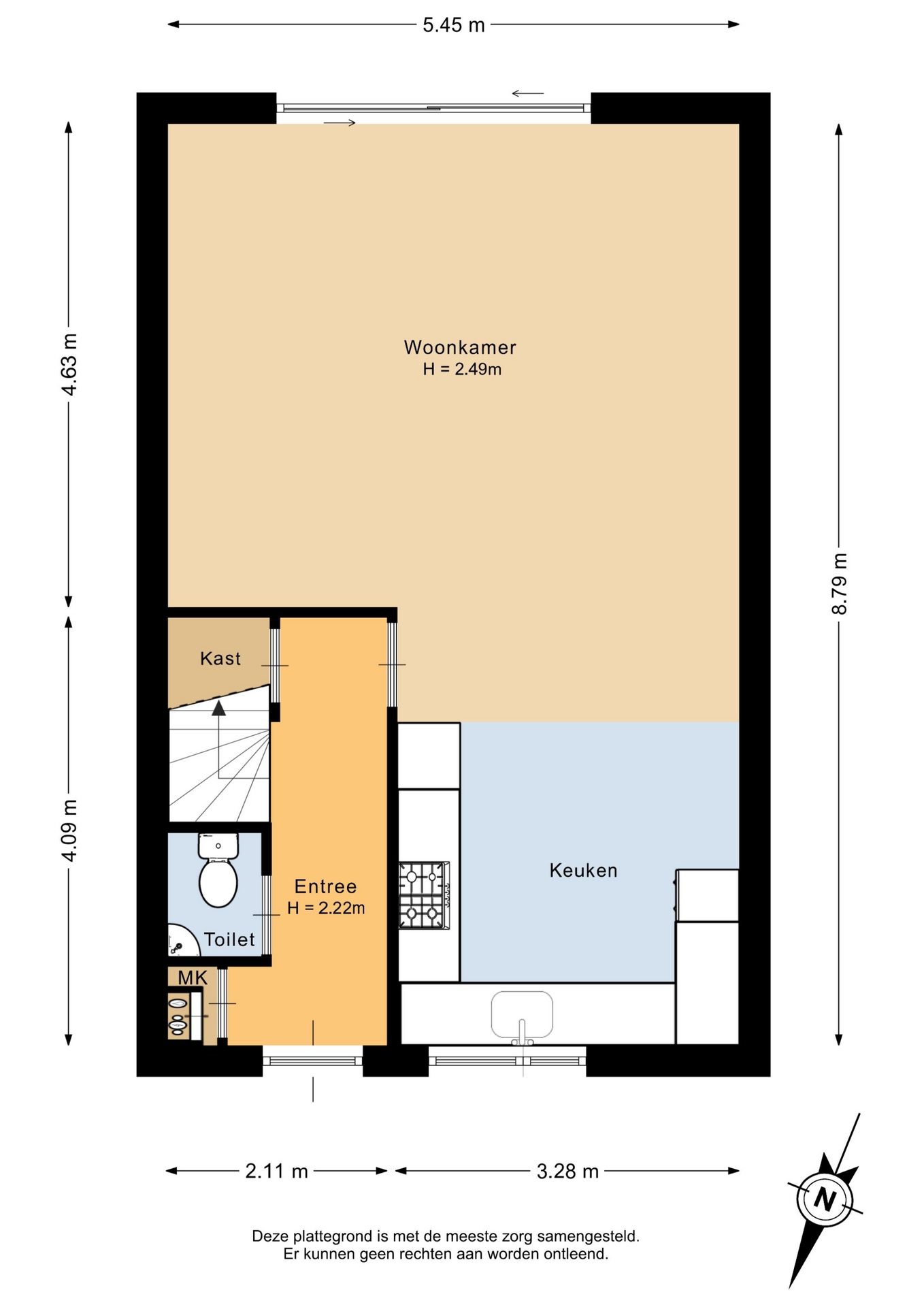
In een rustige en groene woonwijk in Rotterdam-Prinsenland ligt dit fijne huis. Met een woonoppervlakte van circa 110 m², vier slaapkamers en een zonnige achtertuin met ochtend- en begin middagzon is dit een plek waar je jarenlang comfortabel kunt wonen. De combinatie van rust, ruimte én de centrale ligging met winkelcentrum Prinsenland op loopafstand maakt dit huis bijzonder aantrekkelijk.

LICHTE WOONKAMER EN PRAKTISCHE INDELING
Bij binnenkomst valt direct de lichte en ruime woonkamer op. Dankzij de grote raampartijen aan zowel de voor- als achterzijde komt er veel daglicht naar binnen, wat zorgt voor een prettige en open sfeer. De woonkamer is praktisch in te delen met een ruime zithoek aan de tuinzijde en voldoende plek voor een eethoek centraal in de ruimte.

De afwerking is netjes en verzorgd, waardoor je hier direct uit de voeten kunt. Vanuit de woonkamer heb je een fijne verbinding met de tuin, wat het binnen- en buitenleven mooi in elkaar laat overlopen. De indeling is logisch en comfortabel, precies wat je zoekt in een huis waar je elke dag prettig wilt thuiskomen.

NETTE KEUKEN EN FIJNE LEEFKEUKEN
De keuken is uitgevoerd in een neutrale kleurstelling en heeft een praktische U-opstelling, waardoor je beschikt over veel werk- en bergruimte. Hier kun je gemakkelijk koken, terwijl je alles binnen handbereik hebt. De keuken is voorzien van diverse inbouwapparatuur en biedt voldoende plek voor het dagelijks gebruik, maar ook wanneer je uitgebreid wilt koken.

De ruimte voelt licht en prettig aan door het raam, wat zorgt voor natuurlijk daglicht en een fijne connectie met buiten. Het geheel is functioneel en netjes onderhouden, waardoor je hier zonder directe aanpassingen gebruik van kunt maken.

VIER SLAAPKAMERS EN MULTIFUNCTIONEEL TE GEBRUIKEN
Op de verdiepingen vind je in totaal vier slaapkamers, wat dit huis geschikt maakt voor verschillende woonwensen. De grootste slaapkamer biedt volop ruimte voor een tweepersoonsbed en een kastopstelling. De overige kamers zijn ideaal als kinderkamer, werkkamer of hobbyruimte.

Dankzij het aantal kamers kun je hier makkelijk inspelen op veranderingen in je woonsituatie, zoals werken vanuit huis of gezinsuitbreiding. De badkamer is functioneel ingericht en centraal gelegen ten opzichte van de slaapkamers.

De tweede verdieping biedt extra ruimte, bijvoorbeeld voor een vierde slaapkamer of een combinatie van slapen en werken. Ook is hier voldoende plek voor opslag, wat altijd prettig is.

GROENE TUIN MET ZON EN PRIVACY
De achtertuin is een fijne plek om buiten te zijn. De tuin ligt gunstig op de ochtend- en begin middagzon, waardoor je hier al vroeg op de dag van de zon kunt genieten. Het terras direct achter de woning is ideaal voor een kop koffie in de ochtend of een rustige start van de dag.

De tuin is groen aangelegd met beplanting en biedt voldoende privacy. Daarnaast is er ruimte om meerdere zitplekken te creëren of om de tuin verder naar eigen wens in te richten. Een fijne buitenruimte die echt onderdeel is van het dagelijks wooncomfort.

FIJNE EN CENTRALE WOONOMGEVING
De Dirkje Goedhartstraat ligt in de wijk Prinsenland, een rustige en ruim opgezette woonomgeving in Rotterdam. De wijk staat bekend om zijn groene karakter, brede straten en prettige woonklimaat. Hier woon je in alle rust, terwijl je toch alle voorzieningen binnen handbereik hebt.

Winkelcentrum Prinsenland ligt op loopafstand en biedt een ruim aanbod aan winkels voor de dagelijkse boodschappen. Ook scholen, sportvoorzieningen en openbaar vervoer zijn in de directe omgeving aanwezig. Daarnaast ben je binnen korte tijd in het centrum van Rotterdam of op de uitvalswegen richting de rest van de regio.

De combinatie van rust, bereikbaarheid en voorzieningen maakt dit een geliefde plek om te wonen voor wie comfortabel en centraal wil wonen.

VERKOPER AAN HET WOORD:
Ruim 30 jaar woonden we met veel plezier in dit huis. Onze kinderen hadden volop ruimte om te spelen en konden te voet naar school. We gaan nu naar een woning die beter past bij onze levensfase. Gelukkig blijven we wonen in dezelfde fijne, rustige buurt.

BIJZONDERHEDEN:
- Energielabel A;
- Diepe en brede achtertuin met ochtend- en begin middagzon;
- Op loopafstand van winkelcentrum Prinsenland;
- Scholen en andere voorzieningen in de wijk.
- Oplevering in overleg, maar niet eerder dan 1 oktober 2026.

TOELICHTINGSCLAUSULE NEN2580
De Meetinstructie is gebaseerd op de NEN2580. De Meetinstructie is bedoeld om een meer eenduidige manier van meten toe te passen voor het geven van een indicatie van de gebruiksoppervlakte. De Meetinstructie sluit verschillen in meetuitkomsten niet volledig uit, door bijvoorbeeld interpretatieverschillen, afrondingen of beperkingen bij het uitvoeren van de meting.

“Deze informatie is door ons met de nodige zorgvuldigheid samengesteld. Onzerzijds wordt echter geen enkele aansprakelijkheid aanvaard voor enige onvolledigheid, onjuistheid of anderszins, dan wel de gevolgen daarvan. Alle opgegeven maten en oppervlakten zijn indicatief.”

Kenmerken

Basiskenmerken

  • Status Beschikbaar
  • Koopsom € 525.000 k.k.
  • Woonoppervlakte ca. 110 m2
  • Aantal slaapkamers 4
  • Bouwjaar 1991

Overdracht

  • Aanvaarding In overleg

Bouwvorm & onderhoud

  • Soort object Tussenwoning
  • Soort woning Eengezinswoning
  • Bouwjaar 1991
  • Soort bouw woonhuis
  • Ligging In woonwijk

Oppervlakte & inhoud

  • Gebruiksoppervlakte 110m2
  • Perceeloppervlakte 135m2
  • Inhoud 383m3
  • Aantal kamers 5
  • Aantal slaapkamers 4
  • Aantal woonlagen 3 woonlagen

Energie & installatie

  • Energielabel A
  • Isolatie Dakisolatie, muurisolatie, vloerisolatie, dubbel glas, volledig geisoleerd
  • Verwarming Cv ketel
  • Warm water Cv ketel
  • C.v.-ketel type GAS
  • C.v.-ketel bouwjaar 2020
  • Energie einddatum 08-09-2035

Bergruimte

  • Schuur / berging Vrijstaand steen
  • Voorzieningen Voorzien van elektra

Parkeergelegenheid

  • Parkeerfaciliteiten Openbaar parkeren
  • Garage Geen garage

Dak

  • Soort dak Zadeldak

Overig

  • Onderhoud binnen Redelijk
  • Onderhoud buiten Goed
  • Permanente bewoning Ja
  • Huidig gebruik Woonruimte
  • Huidige bestemming Woonruimte

Voorzieningen

  • Voorzieningen Mechanische ventilatie, schuifpui, dakraam

Buitenruimte

  • Hoofdtuin ACHTERTUIN
  • Oppervlakte hoofdtuin 76m2
  • Ligging hoofdtuin ZUIDOOST
  • Kwaliteit tuin Normaal

Kadastrale gegevens

  • Perceelnummer 4174
  • Perceeloppervlakte 135 m2
Meer kenmerken
Ontdek online wat jouw huis waard is

Met de online waardecheck ontdek je in een paar minuten de geschatte waarde van jouw huis!

Gratis waardecheck

In de buurt

Geïnteresseerd?

Bel met WoonSchuijt Makelaars

shape

Stuur een bericht

* Maximaal 255 tekens
privacyverklaring