Chat with us, powered by LiveChat D C Meeslaan 8, 3237 AJ VIERPOLDERS - WoonSchuijt Makelaars

Vierpolders

D C Meeslaan  8

€ 599.000,- k.k.

Omschrijving

D C Meeslaan 8 Vierpolders DUBBELE WONING MET ROYALE TUIN | IDEAAL VOOR MATELZORG, LEVENSLOOPBESTENDIG WONEN EN SAMENGESTELDE (GROTE) GEZINNEN Ben je op zoek naar een woning met extra ruimte, dubbele bewoning of gelijkvloerse voorzieningen? Deze keurig afgewerkte twee-onder-een-kapwoning aan de D.C. Meeslaan 8 biedt met maar liefst 146 m² aan woonruimte, een fraai…

D C Meeslaan 8 Vierpolders

DUBBELE WONING MET ROYALE TUIN | IDEAAL VOOR MATELZORG, LEVENSLOOPBESTENDIG WONEN EN SAMENGESTELDE (GROTE) GEZINNEN
Ben je op zoek naar een woning met extra ruimte, dubbele bewoning of gelijkvloerse voorzieningen? Deze keurig afgewerkte twee-onder-een-kapwoning aan de D.C. Meeslaan 8 biedt met maar liefst 146 m² aan woonruimte, een fraai aangelegde tuin van ruim 15 meter diep en een volledig zelfstandige aanbouw volop mogelijkheden voor mantelzorg, samenwonen met (groot)ouders, thuiswerken of levensloopbestendig wonen. Deze unieke woning heeft een heerlijk en fraai aangelegde achtertuin met grote berging en parkeren op eigen erf voor meerdere auto's! En dat allemaal op een royaal perceel van 446 m² eigen grond!

De woning is gelegen aan een rustige straat in het dorpse en kindvriendelijke Vierpolders, op korte afstand van Brielle, de stranden van Voorne-Putten en de uitvalswegen richting Rotterdam.

INDELING HOOFDWONING
Bij binnenkomst valt meteen op hoe verzorgd en modern deze woning is. Via de hal met keurig en modern toilet v.v. hangend closet en trap naar eerste verdieping kom je in de lichte woonkamer met grote raampartijen en sfeervolle gashaard. De gezellige woonkeuken is aan de achterzijde en geeft uitzicht op de tuin. De moderne keuken (2016) is ruim, voorzien van de benodigde inbouwapparatuur en middels een schuifpui kom je in de achtertuin.

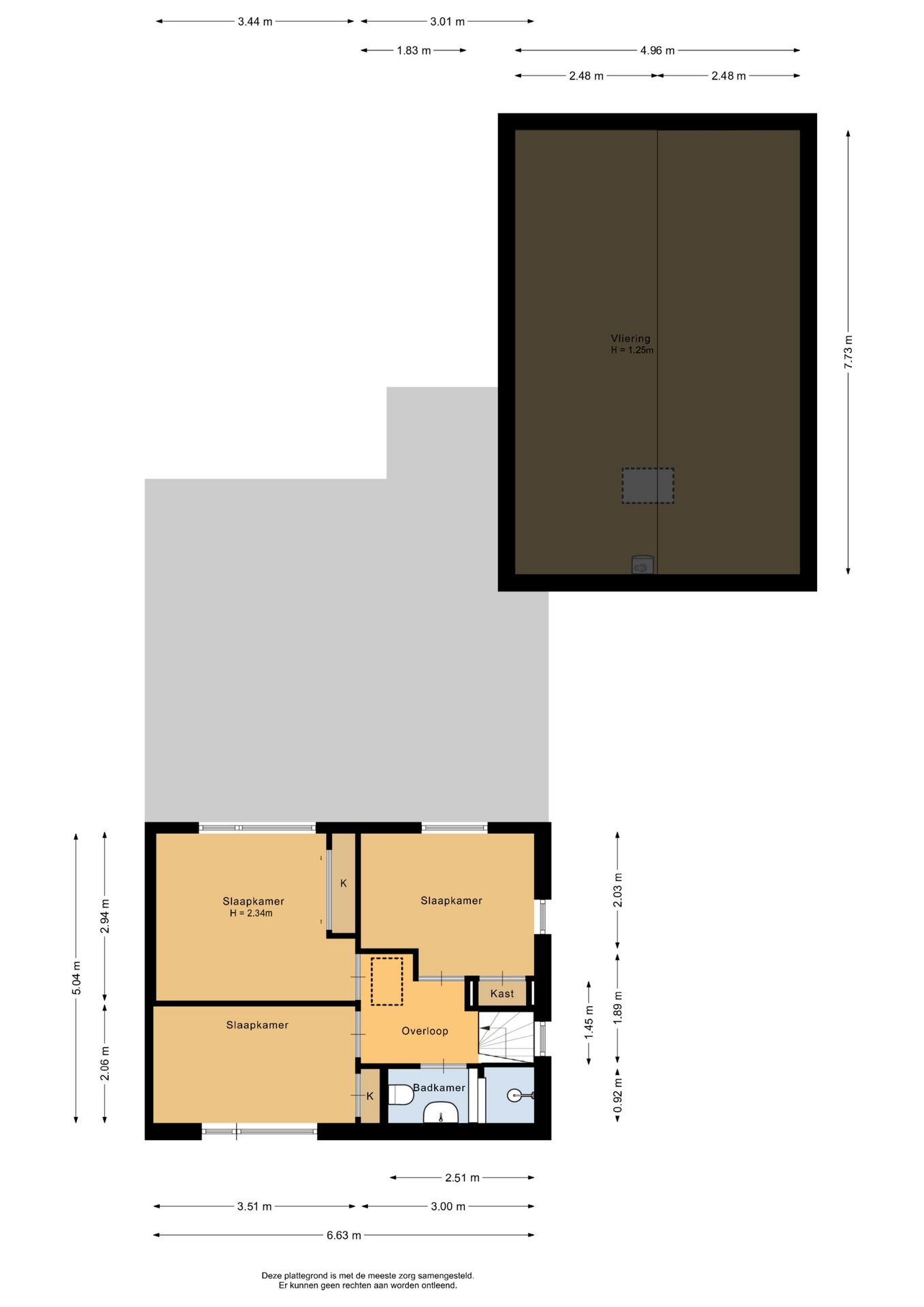
Op de eerste verdieping bevinden zich nog drie slaapkamers, een badkamer met douche, 2de toilet en wastafelmeubel.

TWEEDE WONING | AANBOUW - VOLLEDIG ZELFSTANDIG EN LEVENSLOOPBESTENDIG
Aan de achterzijde van de woning is in 2020 een multifunctionele en volledig zelfstandige woning gerealiseerd, met eigen modern keuken, moderne badkamer, ruime hoofdslaapkamer, tweede slaapkamer én een gezellige living met openslaande deuren naar de riante en verzorgde achtertuin. Een ideale oplossing voor dubbele bewoning, mantelzorg of meergeneratie wonen. Alles is gelijkvloers en rolstoeltoegankelijk.

HEERLIJK VERTOEVEN IN DE GEWELDIGE ACHTERTUIN
De fraai aangelegde achtertuin is gelegen op het noordoosten, heeft een diepte van ruim 15 meter en biedt volop privacy. Gezien de grote van de tuin is er altijd een plek om van de zon te genieten. Je vindt hier een grote houten berging van 22 m², een kippenren, diverse zitplekken en achterom (beperkt te gebruiken voor onderhoud en dergelijke). De voortuin is breed opgezet, en op eigen erf is plek voor meerdere auto's onder de carport van 24 m².

De combinatie van ruimte, privacy, comfort en flexibiliteit maakt deze woning uniek in zijn soort.

OVER DE OMGEVING
Vierpolders is een rustig dorp met een prettige woonomgeving en een actieve dorpsgemeenschap. Je woont hier op korte afstand van Brielle, Hellevoetsluis en de N57 richting Rotterdam. Binnen enkele minuten fietsen sta je midden in het buitengebied of bij recreatiegebied Brielse Meer. Voorzieningen zoals scholen, sportverenigingen en winkels zijn goed bereikbaar.

BELANGRIJKSTE KENMERKEN OP EEN RIJ
- Totale woonoppervlakte ca. 146 m²
- Perceel van maar liefst 446 m² eigen grond
- Grote en fraai aangelegde tuin van 15 meter diep ruim 11 meter breed
- Dubbele woning / kangeroewoning / mantelzorgwoning
- Vrijstaande houten berging van 22 m²
- Carport/overkapping van 24 m² en parkeren op eigen erf
- In totaal 2 woonkamers, 5 slaapkamers en 2 badkamers
- Voorzien van 12 zonnepanelen en grotendeels HR++ beglazing
- Beide woningen v.v. eigen cv combiketel Remeha Tzerra HR (2017 en 2019)
- Energielabel C
- Goed onderhouden en modern afgewerkt
- Aanvaarding in overleg

Toelichtingsclausule NEN2580:
De Meetinstructie is gebaseerd op de NEN2580. De Meetinstructie is bedoeld om een meer eenduidige manier van meten toe te passen voor het geven van een indicatie van de gebruiksoppervlakte. De Meetinstructie sluit verschillen in meetuitkomsten niet volledig uit, door bijvoorbeeld interpretatieverschillen, afrondingen of beperkingen bij het uitvoeren van de meting.

“Deze informatie is door ons met de nodige zorgvuldigheid samengesteld. Onzerzijds wordt echter geen enkele aansprakelijkheid aanvaard voor enige onvolledigheid, onjuistheid of anderszins, dan wel de gevolgen daarvan. Alle opgegeven maten en oppervlakten zijn indicatief.”

Koopovereenkomst pas rechtsgeldig na ondertekening:
Een mondelinge overeenstemming tussen de particuliere verkoper en de particuliere koper is niet rechtsgeldig. Met andere woorden: er is geen koop. Er is pas sprake van een rechtsgeldige koop als de particuliere verkoper en de particuliere koper de koopovereenkomst hebben ondertekend. Dit vloeit voort uit artikel 7:2 Burgerlijk Wetboek. Een bevestiging van de mondelinge overeenstemming per e-mail of een toegestuurd concept van de koopovereenkomst wordt overigens niet gezien als een 'ondertekende koopovereenkomst'.

Kenmerken

Basiskenmerken

  • Status Verkocht onder voorbehoud
  • Koopsom € 599.000 k.k.
  • Woonoppervlakte ca. 146 m2
  • Aantal slaapkamers 5
  • Bouwjaar 1957

Overdracht

  • Aanvaarding In overleg

Bouwvorm & onderhoud

  • Soort object Twee onder een kapwoning
  • Soort woning Eengezinswoning
  • Bouwjaar 1957
  • Soort bouw woonhuis
  • Ligging Aan rustige weg, in woonwijk, open ligging

Oppervlakte & inhoud

  • Gebruiksoppervlakte 146m2
  • Perceeloppervlakte 446m2
  • Inhoud 581m3
  • Aantal kamers 7
  • Aantal slaapkamers 5
  • Aantal woonlagen 3 woonlagen

Energie & installatie

  • Energielabel C
  • Isolatie Dakisolatie, muurisolatie, vloerisolatie, dubbel glas, hr glas
  • Verwarming Cv ketel
  • Warm water Cv ketel
  • C.v.-ketel type GAS
  • C.v.-ketel bouwjaar 2019
  • Energie einddatum 09-12-2030

Bergruimte

  • Schuur / berging Vrijstaand hout
  • Voorzieningen Voorzien van elektra

Parkeergelegenheid

  • Parkeerfaciliteiten Op eigen terrein
  • Garage Carport, parkeerplaats

Dak

  • Soort dak Zadeldak

Overig

  • Onderhoud binnen Goed
  • Onderhoud buiten Goed
  • Bijzonderheden Gedeeltelijk gestoffeerd, dubbele bewoning mogelijk, dubbele bewoning aanwezig, toegankelijk voor ouderen, toegankelijk voor minder validen
  • Permanente bewoning Ja
  • Huidig gebruik Woonruimte
  • Huidige bestemming Woonruimte

Voorzieningen

  • Voorzieningen Tv kabel, airconditioning, rookkanaal, schuifpui, glasvezel kabel, zonnepanelen, natuurlijke ventilatie

Buitenruimte

  • Hoofdtuin ACHTERTUIN
  • Oppervlakte hoofdtuin 178m2
  • Ligging hoofdtuin NOORDOOST
  • Kwaliteit tuin Fraai aangelegd

Kadastrale gegevens

  • Perceelnummer 1770
  • Perceeloppervlakte 446 m2
Meer kenmerken
Ontdek online wat jouw huis waard is

Met de online waardecheck ontdek je in een paar minuten de geschatte waarde van jouw huis!

Gratis waardecheck

In de buurt