Chat with us, powered by LiveChat Brielselaan 28 B, 3081 LB ROTTERDAM - WoonSchuijt Makelaars

Rotterdam

Brielselaan  28 B

€ 475.000,- k.k.

Omschrijving

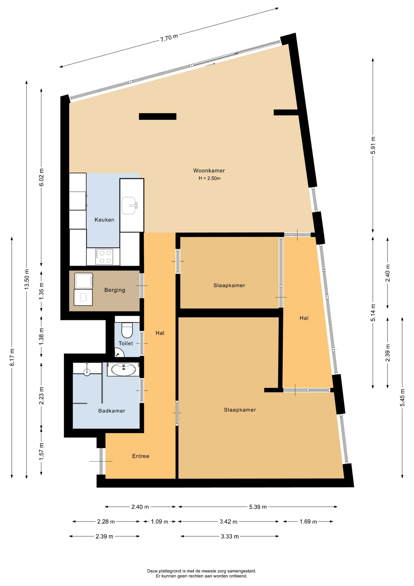
UITZICHT, RUIMTE EN COMFORT OP HOOG NIVEAU Welkom op de 22e verdieping van The Queen of the South: een modern, verzorgd en instapklaar appartement van ca. 112 m² met een werkelijk adembenemend uitzicht over de skyline van Rotterdam. Hier komen ruimte, licht, hoogwaardige afwerking en duurzaamheid perfect samen. Met twee slaapkamers (oorspronkelijk drie), een moderne…

UITZICHT, RUIMTE EN COMFORT OP HOOG NIVEAU

Welkom op de 22e verdieping van The Queen of the South: een modern, verzorgd en instapklaar appartement van ca. 112 m² met een werkelijk adembenemend uitzicht over de skyline van Rotterdam. Hier komen ruimte, licht, hoogwaardige afwerking en duurzaamheid perfect samen. Met twee slaapkamers (oorspronkelijk drie), een moderne keuken (vernieuwd in 2019), luxe sanitair en energielabel A woon je hier hoog, vrij en uiterst comfortabel, midden in het dynamische stadsleven.

LICHTE WOONKAMER MET FENOMENAAL UITZICHT
Bij binnenkomst in de woonkamer wordt je blik direct naar buiten getrokken. Dankzij de hoge ligging en de grote raampartijen geniet je hier van een panoramisch uitzicht over de stad, van zonsopkomst tot een indrukwekkend verlichte skyline in de avond. De woonkamer is ruim, licht en strak afgewerkt en biedt moeiteloos plaats aan een royale zithoek én een comfortabele werkplek. De open verbinding met de keuken versterkt het ruimtelijke gevoel en maakt de indeling zowel praktisch als uitnodigend.

MODERNE KEUKEN MET LUXE DETAILS
De keuken is in 2019 volledig vernieuwd en uitgevoerd in een strakke, tijdloze stijl. De witte kastenwand, het ruime werkblad en de efficiënte indeling maken deze keuken zowel functioneel als elegant. Uiteraard is de keuken voorzien van hoogwaardige inbouwapparatuur, waaronder een inductiekookplaat, oven, combimagnetron, ruime koel-/vriescombinatie én een wijnkoeler. De Quooker 5-in-1 maakt het geheel compleet en biedt direct kokend, warm, koud, gekoeld en bruisend water. Een keuken die comfort en luxe moeiteloos combineert.

TWEE SLAAPKAMERS MET FLEXIBELE INDELING EN MODERNE BADKAMER
De hoofdslaapkamer is royaal opgezet en biedt volop ruimte voor een groot bed, kastenwand en eventueel een werk- of zithoek. De tweede slaapkamer is veelzijdig inzetbaar als logeerkamer, kinderkamer of thuiskantoor. Oorspronkelijk beschikte het appartement over drie slaapkamers; deze indeling is eenvoudig weer terug te brengen voor wie behoefte heeft aan extra kamers.

De badkamer is modern, strak en verzorgd uitgevoerd met een ruime inloopdouche voorzien van regendouche, een eigentijds wastafelmeubel en een sfeervolle tegelafwerking. Ook de separate toiletruimte is in dezelfde stijl afgewerkt, wat zorgt voor een rustig en samenhangend geheel.

BERGING EN EIGEN PARKEERPLAATS
In de onderbouw beschik je over een eigen berging, ideaal voor fietsen en extra opslag. Daarnaast hoort bij het appartement een eigen parkeerplaats in de afgesloten parkeergarage onder het gebouw. Comfortabel, veilig en altijd verzekerd van een plek.

TARWEWIJK – CHARLOIS: STEDENLIJK EN IN VOLLE ONTWIKKELING
De Tarwewijk in Rotterdam-Charlois is een wijk met toekomst. Je woont hier centraal en stedelijk, met het metrostation Maashaven direct voor de deur: zodra je het gebouw uitloopt, sta je praktisch al op het perron. Het centrum van Rotterdam is binnen enkele minuten bereikbaar.

Winkels, scholen, sportvoorzieningen en het vernieuwde Maashavengebied met horeca en creatieve hotspots bevinden zich op loopafstand. De wijk kenmerkt zich door een mix van karakteristieke straten en nieuwe ontwikkelingen en heeft een levendige, diverse uitstraling. Daarnaast wordt gewerkt aan de realisatie van het toekomstige Nelson Mandelapark, een groen stadspark dat de leefkwaliteit in de wijk de komende jaren verder zal versterken. Voor ontspanning en groen liggen ook het Zuiderpark en het Dokhavenpark binnen handbereik.

KENMERKEN
-Bouwjaar 2004
-Woonoppervlakte ca. 112 m²
-Energielabel A
-2 slaapkamers
-Uitzicht over de Skyline van Rotterdam
-Inpandige berging en eigen parkeerplaats in ondergelegen garage
-Verwarming en warm water via stadsverwarming
-Gelegen op erfpachtgrond, afgekocht tot 2051 (loopt tot 2100)
-Actieve VvE met een maandelijkse bijdrage van ca. € 308,- voor de woning
-VvE bijdrage parkeerplaats is ca. € 40,-
-Oplevering in overleg

INTERESSE? MAAK DAN SNEL EEN AFSPRAAK!
Ons advies is om bij het kopen van jouw nieuwe woning jouw eigen NVM-makelaar mee te nemen.

TOELICHTINGSCLAUSULE NEN2580
De Meetinstructie is gebaseerd op de NEN2580. De Meetinstructie is bedoeld om een meer eenduidige manier van meten toe te passen voor het geven van een indicatie van de gebruiksoppervlakte. De Meetinstructie sluit verschillen in meetuitkomsten niet volledig uit, door bijvoorbeeld interpretatieverschillen, afrondingen of beperkingen bij het uitvoeren van de meting.

KOOPOVEREENKOMST PAS RECHTSGELDIG NA ONDERTEKENING
Een mondelinge overeenstemming tussen de particuliere verkoper en de particuliere koper is niet rechtsgeldig. Met andere woorden: er is geen koop. Er is pas sprake van een rechtsgeldige koop als de particuliere verkoper en de particuliere koper de koopovereenkomst hebben ondertekend. Dit vloeit voort uit artikel 7:2 Burgerlijk Wetboek. Een bevestiging van de mondelinge overeenstemming per e-mail of een toegestuurd concept van de koopovereenkomst wordt overigens niet gezien als een 'ondertekende koopovereenkomst'

“Deze informatie is door ons met de nodige zorgvuldigheid samengesteld. Onzerzijds wordt echter geen enkele aansprakelijkheid aanvaard voor enige onvolledigheid, onjuistheid of anderszins, dan wel de gevolgen daarvan. Alle opgegeven maten en oppervlakten zijn indicatief.”

Kenmerken

Basiskenmerken

  • Status Beschikbaar
  • Koopsom € 475.000 k.k.
  • Woonoppervlakte ca. 112 m2
  • Aantal slaapkamers 2
  • Bouwjaar 2004

Overdracht

  • Aanvaarding In overleg

Bouwvorm & onderhoud

  • Bouwjaar 2004
  • Soort bouw woonhuis
  • Ligging Aan drukke weg, in woonwijk, vrij uitzicht

Oppervlakte & inhoud

  • Gebruiksoppervlakte 112m2
  • Inhoud 342m3
  • Aantal kamers 3
  • Aantal slaapkamers 2
  • Aantal woonlagen 1 woonlagen

Energie & installatie

  • Energielabel A
  • Isolatie Dakisolatie, muurisolatie, vloerisolatie, dubbel glas, volledig geisoleerd
  • Verwarming Stadsverwarming
  • Warm water Centrale voorziening
  • Energie einddatum 05-08-2033

Bergruimte

  • Schuur / berging Box
  • Voorzieningen Voorzien van elektra

Parkeergelegenheid

  • Parkeerfaciliteiten Betaald parkeren, parkeergarage, parkeervergunningen, op afgesloten terrein
  • Garage Parkeerkelder, parkeerplaats

Dak

  • Soort dak Plat dak

Overig

  • Onderhoud binnen Goed
  • Onderhoud buiten Goed
  • Bijzonderheden Gedeeltelijk gestoffeerd, toegankelijk voor ouderen
  • Permanente bewoning Ja
  • Huidig gebruik Woonruimte
  • Huidige bestemming Woonruimte

Voorzieningen

  • Voorzieningen Tv kabel, lift, balansventilatie

Kadastrale gegevens

  • Perceelnummer 5520
Meer kenmerken
Ontdek online wat jouw huis waard is

Met de online waardecheck ontdek je in een paar minuten de geschatte waarde van jouw huis!

Gratis waardecheck

In de buurt

Geïnteresseerd?

Bel met WoonSchuijt Makelaars

shape

Stuur een bericht

* Maximaal 255 tekens
privacyverklaring