Chat with us, powered by LiveChat Boogkreek 20, 3206 GC SPIJKENISSE - WoonSchuijt Makelaars

Spijkenisse

Boogkreek  20

€ 375.000,- k.k.

Omschrijving

COMFORTABEL WONEN MET MODERNE AFWERKING Ben je op zoek naar een instapklaar huis met vier slaapkamers, een moderne afwerking en een zonnige tuin? Dan is Boogkreek 20 er één die je zeker wilt bekijken. Deze ruime tussenwoning biedt 114 m² woonoppervlakte, een moderne keuken (2019), een stijlvolle badkamer (2020) en een plavuizenvloer met vloerverwarming op de begane grond…

COMFORTABEL WONEN MET MODERNE AFWERKING
Ben je op zoek naar een instapklaar huis met vier slaapkamers, een moderne afwerking en een zonnige tuin? Dan is Boogkreek 20 er één die je zeker wilt bekijken. Deze ruime tussenwoning biedt 114 m² woonoppervlakte, een moderne keuken (2019), een stijlvolle badkamer (2020) en een plavuizenvloer met vloerverwarming op de begane grond (2022). Hier woon je comfortabel, zonder direct te hoeven klussen.

De woning ligt aan een rustige straat met vrij uitzicht en een open ligging. Een fijne plek voor starters die net wat meer ruimte willen én voor jonge doorstromers die toe zijn aan de volgende stap.

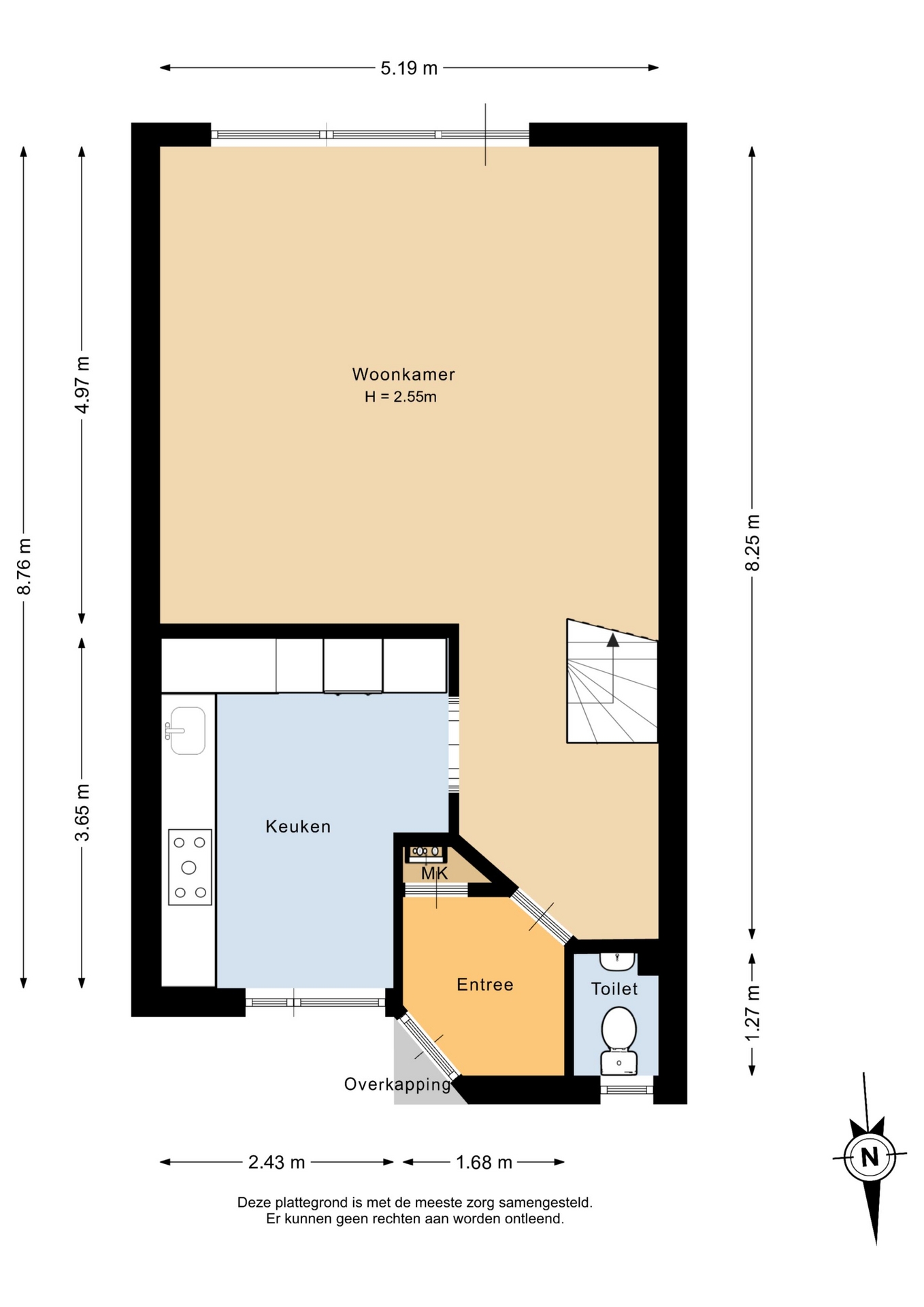
LICHTE WOONKAMER MET VLOERVERWARMING
Via de hal met toilet kom je binnen in de woonkamer. Wat direct opvalt is de strakke plavuizenvloer die in 2022 is gelegd, gecombineerd met vloerverwarming. Dat zorgt niet alleen voor een moderne uitstraling, maar ook voor aangenaam wooncomfort in elk seizoen.

De woonkamer is circa 29 m² groot en biedt volop ruimte voor een royale zithoek aan de achterzijde en een eethoek richting de keuken. De grote raampartij zorgt voor prettig lichtinval en een fijne verbinding met de tuin.

De keuken aan de voorzijde is in 2019 vernieuwd en uitgevoerd in een moderne, lichte kleurstelling. De opstelling is praktisch ingericht met diverse inbouwapparatuur en voldoende werkruimte. Een fijne plek waar je dagelijks comfortabel kunt koken.

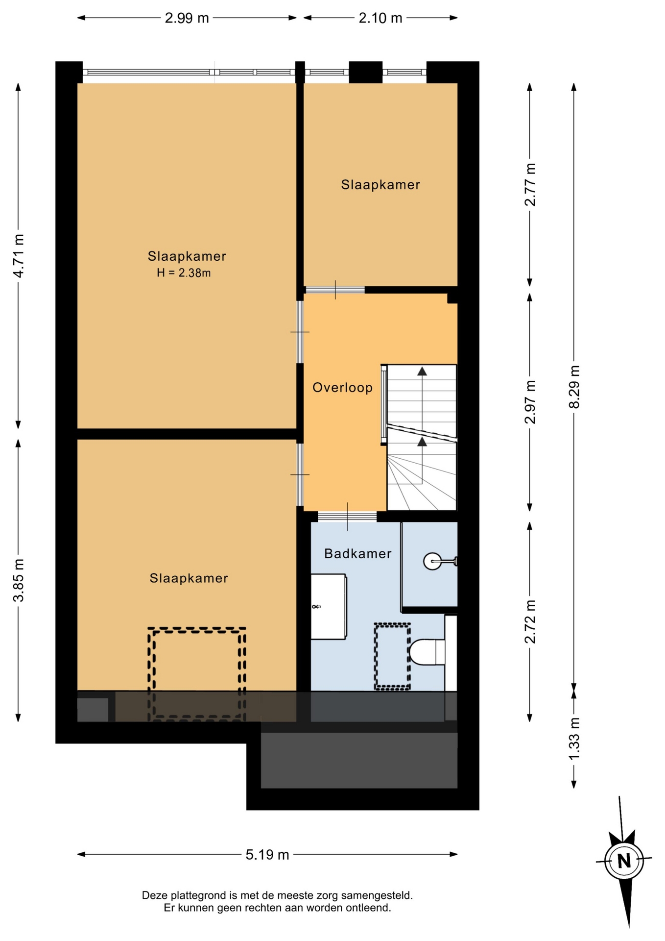
VIER SLAAPKAMERS EN MODERNE BADKAMER
Op de eerste verdieping bevinden zich drie slaapkamers en de badkamer. De grootste slaapkamer ligt aan de achterzijde en biedt ruim plaats aan een tweepersoonsbed en kastenwand. Aan de achter- en aan de voorzijde vind je nog twee slaapkamers, ideaal als kinderkamer, werkplek of hobbyruimte.

De badkamer is in 2020 vernieuwd en strak afgewerkt. De combinatie van lichte tegels met houtaccenten geeft een warme uitstraling. Je beschikt hier over een inloopdouche, wastafelmeubel en een toilet. Ook hier geldt: netjes afgewerkt en direct te gebruiken.

De tweede verdieping is een volwaardige extra woonlaag. Hier vind je de vierde slaapkamer met dakraam, wat zorgt voor prettig daglicht. Daarnaast is er op de overloop voldoende ruimte voor de wasopstelling en de CV-ketel (Nefit HR, 2016). De knieschotten zorgen voor extra bergruimte.

Met in totaal vier slaapkamers is dit huis flexibel in te delen en klaar voor de toekomst.

ZONNIGE TUIN OP HET ZUIDEN
De achtertuin is circa 12 meter diep en ligt op het zuiden. Dat betekent de hele dag zon. Een heerlijke plek om te loungen, te barbecueën of lange zomeravonden door te brengen met vrienden.

De tuin is overzichtelijk aangelegd en beschikt over een vrijstaande stenen berging met elektra. Ideaal voor fietsen en opslag. Daarnaast is er een achterom aanwezig, wat altijd praktisch is.

Door de open ligging aan de achterzijde ervaar je hier extra vrijheid en licht.

RUSTIG WONEN IN GROENE OMGEVING
Boogkreek ligt in een rustige woonwijk in Spijkenisse met veel groen en een prettige opzet. Je woont hier in een kindvriendelijke omgeving met speeltuinen en voorzieningen op korte afstand. Basisscholen, sportverenigingen en winkels zijn eenvoudig bereikbaar.

Ook het openbaar vervoer en uitvalswegen richting Rotterdam zijn goed bereikbaar. Dat maakt deze locatie aantrekkelijk voor forenzen die rustig willen wonen maar wel snel onderweg willen zijn.

Kortom: een complete eengezinswoning met moderne afwerking, vier slaapkamers en een zonnige tuin. Een huis waar je zó in kunt.

BELANGRIJKSTE KENMERKEN
- Woonoppervlakte: 114 m²
- Perceeloppervlakte: 124 m²
- Bouwjaar: 1982
- Moderne keuken (2019)
- Moderne badkamer (2020)
- Moderne plavuizen vloer met vloerverwamring (2022)
- Geheel dubbel glas (m.u.z. van 1 raam)
- Energielabel: C (geldig tot 31-12-2030)
- CV-ketel: Nefit HR (2016, eigendom)
- Aanvaarding: In overleg

Toelichtingsclausule NEN2580:
De Meetinstructie is gebaseerd op de NEN2580. De Meetinstructie is bedoeld om een meer eenduidige manier van meten toe te passen voor het geven van een indicatie van de gebruiksoppervlakte. De Meetinstructie sluit verschillen in meetuitkomsten niet volledig uit, door bijvoorbeeld interpretatieverschillen, afrondingen of beperkingen bij het uitvoeren van de meting.

“Deze informatie is door ons met de nodige zorgvuldigheid samengesteld. Onzerzijds wordt echter geen enkele aansprakelijkheid aanvaard voor enige onvolledigheid, onjuistheid of anderszins, dan wel de gevolgen daarvan. Alle opgegeven maten en oppervlakten zijn indicatief.”

Koopovereenkomst pas rechtsgeldig na ondertekening:
Een mondelinge overeenstemming tussen de particuliere verkoper en de particuliere koper is niet rechtsgeldig. Met andere woorden: er is geen koop. Er is pas sprake van een rechtsgeldige koop als de particuliere verkoper en de particuliere koper de koopovereenkomst hebben ondertekend. Dit vloeit voort uit artikel 7:2 Burgerlijk Wetboek. Een bevestiging van de mondelinge overeenstemming per e-mail of een toegestuurd concept van de koopovereenkomst wordt overigens niet gezien als een 'ondertekende koopovereenkomst'.

Kenmerken

Basiskenmerken

  • Status Beschikbaar
  • Koopsom € 375.000 k.k.
  • Woonoppervlakte ca. 114 m2
  • Aantal slaapkamers 4
  • Bouwjaar 1982

Overdracht

  • Aanvaarding In overleg

Bouwvorm & onderhoud

  • Soort object Tussenwoning
  • Soort woning Eengezinswoning
  • Bouwjaar 1982
  • Soort bouw woonhuis
  • Ligging Aan rustige weg, vrij uitzicht, open ligging

Oppervlakte & inhoud

  • Gebruiksoppervlakte 114m2
  • Perceeloppervlakte 124m2
  • Inhoud 393m3
  • Aantal kamers 5
  • Aantal slaapkamers 4
  • Aantal woonlagen 3 woonlagen

Energie & installatie

  • Energielabel C
  • Isolatie Dakisolatie, muurisolatie, grotendeels dubbelglas
  • Verwarming Cv ketel, vloerverwarming gedeeltelijk
  • Warm water Cv ketel
  • C.v.-ketel type GAS
  • C.v.-ketel bouwjaar 2016
  • Energie einddatum 31-12-2030

Bergruimte

  • Schuur / berging Vrijstaand steen
  • Voorzieningen Voorzien van elektra

Parkeergelegenheid

  • Parkeerfaciliteiten Openbaar parkeren
  • Garage Geen garage

Dak

  • Soort dak Zadeldak

Overig

  • Onderhoud binnen Goed
  • Onderhoud buiten Goed
  • Bijzonderheden Gedeeltelijk gestoffeerd
  • Permanente bewoning Ja
  • Huidig gebruik Woonruimte
  • Huidige bestemming Woonruimte

Voorzieningen

  • Voorzieningen Mechanische ventilatie, tv kabel, dakraam, glasvezel kabel, natuurlijke ventilatie

Buitenruimte

  • Hoofdtuin ACHTERTUIN
  • Oppervlakte hoofdtuin 65m2
  • Ligging hoofdtuin ZUID
  • Kwaliteit tuin Normaal

Kadastrale gegevens

  • Perceelnummer 4169
  • Perceeloppervlakte 124 m2
Meer kenmerken
Ontdek online wat jouw huis waard is

Met de online waardecheck ontdek je in een paar minuten de geschatte waarde van jouw huis!

Gratis waardecheck

In de buurt

Geïnteresseerd?

Bel met WoonSchuijt Makelaars

shape

Stuur een bericht

* Maximaal 255 tekens
privacyverklaring