Chat with us, powered by LiveChat Berglaan 120, 2716 EH ZOETERMEER - WoonSchuijt Makelaars

Zoetermeer

Berglaan  120

€ 475.000,- k.k.

Omschrijving

Zoek je een instapklare woning met energielabel A, 12 zonnepanelen en een zonnige tuin als duurzame basis? Dan is Berglaan 120 precies wat je zoekt. Deze verzorgde 4-kamer eengezinswoning is de afgelopen jaren volledig gerenoveerd en verduurzaamd met onder andere een vernieuwd dak met 12 zonnepanelen, kunststof kozijnen met HR++ glas, een nieuwe CV-ketel uit 2024,…

Zoek je een instapklare woning met energielabel A, 12 zonnepanelen en een zonnige tuin als duurzame basis? Dan is Berglaan 120 precies wat je zoekt. Deze verzorgde 4-kamer eengezinswoning is de afgelopen jaren volledig gerenoveerd en verduurzaamd met onder andere een vernieuwd dak met 12 zonnepanelen, kunststof kozijnen met HR++ glas, een nieuwe CV-ketel uit 2024, energiezuinige warmtepomp airco om te koelen en verwarmen en een nieuwe keuken uit 2022. Gelegen in een rustige, kindvriendelijke wijk vlak bij het Westerpark.

LICHTE WOONKAMER MET COMFORT EN SFEER
Al bij aankomst en zodra je binnenkomt valt op hoe verzorgd en sfeervol deze woning is. Vanuit de hal stap je de woonkamer binnen, waar het daglicht via de grote ramen en de achterpui prettig naar binnen valt. De woonkamer is ruim en biedt volop plek voor een royale zithoek en een gezellige eethoek.

De keramische vloer met energiezuinige vloerverwarming zorgt hier niet alleen voor een strakke uitstraling, maar ook voor een aangename en gelijkmatige comfortabele warmte in de ruimte. In de winter geniet je van een aangenaam warme vloer, terwijl in de zomer de aanwezige airco juist voor verkoeling kan zorgen. De afwerking is modern en warm tegelijk, waardoor je hier gemakkelijk je eigen woonstijl kunt toevoegen.

Aan de achterzijde zorgen de grote ramen en de deur naar de tuin voor een fijne verbinding met buiten. Hierdoor voelt de woonkamer nog ruimer en lichter aan. Dit is een plek waar je na een drukke dag heerlijk neerploft op de bank, terwijl de kinderen spelen of huiswerk maken aan de eettafel.

MODERNE KEUKEN MET UITZICHT OP TUIN
Aan de achterzijde van het huis ligt de keuken, die in 2022 volledig is vernieuwd. De keuken heeft een frisse en moderne uitstraling met lichte kastfronten, een strak werkblad en een opvallende achterwand met hexagon tegels die direct in het oog springen.

De indeling is praktisch en biedt veel werk- en bergruimte. De keuken is voorzien van diverse moderne inbouwapparatuur, zodat je hier met gemak een snelle maaltijd of een uitgebreid diner kunt bereiden. Dankzij het grote raam valt er veel daglicht naar binnen en kijk je tijdens het koken prettig naar buiten. De keuken sluit mooi aan bij de rest van het huis: modern, verzorgd en direct klaar voor gebruik.

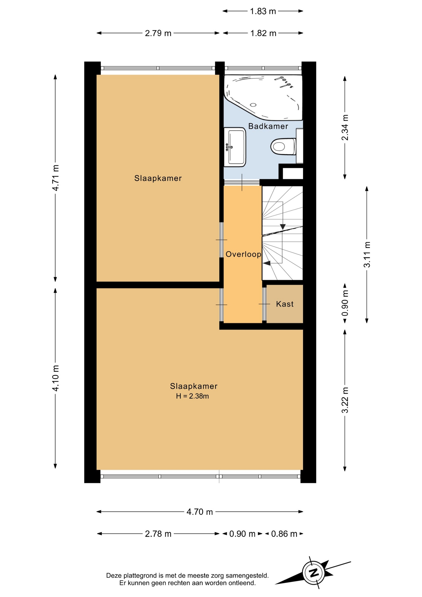
DRIE SLAAPKAMERS EN COMPLETE BADKAMER
Op de eerste verdieping bevinden zich twee ruime slaapkamers. De kamers bieden voldoende ruimte voor een groot bed en een kastenwand. Door de slaapkamer aan de voorzijde te splitsen kan eventueel een extra slaapkamer gerealiseerd worden.

De badkamer is vernieuwd in 2017 en heeft een complete en verzorgde indeling. Hier vind je een ligbad, een toilet en een wastafelmeubel. De neutrale afwerking zorgt ervoor dat de ruimte tijdloos oogt en gemakkelijk naar eigen smaak aan te vullen is.

De tweede verdieping, voorzien van dakkapel en de nodige opbergruimte, biedt nog een zeer ruime slaapkamer.

DIEPE ZONNIGE ACHTERTUIN OP ZUIDOOSTEN
Een van de grote pluspunten van dit huis is zonder twijfel de achtertuin. Deze is opvallend diep en ligt op het zuidoosten, waardoor je hier al vroeg op de dag van de zon kunt genieten.

De tuin is netjes aangelegd met een ruim terras waar je gemakkelijk een grote tuin set kunt plaatsen. Hier zit je heerlijk met een kop koffie in de ochtendzon of met vrienden tijdens een lange zomeravond. Verder is er voldoende ruimte voor groen, speelruimte voor kinderen of bijvoorbeeld een trampoline.

Achter in de tuin staat een vrijstaande stenen berging, ideaal voor fietsen, tuinspullen of gereedschap. Dankzij de diepte van de tuin heb je hier bovendien veel privacy.

DUURZAAM EN GOED ONDERHOUDEN HUIS
Dit huis is de afgelopen jaren niet alleen gemoderniseerd, maar ook verduurzaamd. Het dak is volledig gerenoveerd, alle kozijnen zijn vervangen door kunststof kozijnen met HR++ glas, wat zorgt voor goede isolatie en weinig onderhoud. Daarnaast zijn er 12 zonnepanelen geplaatst en is de CV-ketel in 2024 vernieuwd. Samen met de aanwezige airco en de vloerverwarming in de woonkamer zorgt dit voor een comfortabel en energiezuinig huis met energielabel A. Ook op technisch vlak is de woning aangepakt: de groepenkast is vernieuwd, de elektrische bekabeling is aangepakt en in iedere kamer is vaste internetbekabeling aanwezig. Daarnaast zijn de waterleiding en standleiding vernieuwd tot en met de eerste verdieping.

KINDVRIENDELIJK WONEN NABIJ HET WESTERPARK
De Berglaan ligt in een rustige en kindvriendelijke wijk in Zoetermeer. Het Westerpark ligt letterlijk om de hoek. Dit grote park is een geliefde plek voor een wandeling, hardlooprondje of een middag spelen met de kinderen. Ook de bekende speel- en recreatiegebieden in het park maken dit een fijne plek voor gezinnen.

In de directe omgeving vind je diverse basisscholen, sportverenigingen en speelplekken. Daarnaast zijn er meerdere winkelcentra in de buurt voor de dagelijkse boodschappen. Zo combineer je hier het gemak van alle voorzieningen met een rustige woonomgeving.

Ook qua bereikbaarheid zit je hier goed. Openbaar vervoer, uitvalswegen richting Den Haag, Rotterdam en Utrecht en diverse fietsroutes liggen binnen handbereik. Daarmee woon je hier rustig terwijl je toch overal snel bent.

KENMERKEN
-Vraagprijs: € 475.000,-
-Gelegen in een kindvriendelijke wijk nabij het Westerpark
-Achtertuin op het zuidoosten met vrijstaande stenen berging
-Woonoppervlakte: 106 m²
-Perceeloppervlakte: 134 m²
-Bouwjaar: 1972
-Aantal verdiepingen: 3
-Aantal kamers: 4
-Aantal slaapkamers: 3 (mogelijkheid tot 4)
-Energielabel: A
-12 zonnepanelen aanwezig
-CV-ketel uit 2024
-Energie zuinige warmtepomp airco
-Oplevering: in overleg

Voor een (jong) gezin dat op zoek is naar een instapklare woning met een fijne tuin, een goede ligging en een duurzame basis is Berglaan 120 absoluut een bezichtiging waard.

VERKOPERS AAN HET WOORD:
''Dit huis is voor ons altijd een plek geweest waar wij ons écht thuis voelden. Vanaf het eerste moment hadden wij hier een goed gevoel en dat is in de jaren daarna alleen maar sterker geworden. Het is een huis waar je binnenkomt en meteen voelt dat het klopt. Wij hebben hier ontzettend veel mooie momenten beleefd en altijd genoten van het fijne wonen hier. Juist omdat het zo’n prettig huis is, voelt het ook bijzonder om het straks los te laten. Voor ons breekt een nieuw hoofdstuk aan, maar dit huis zal voor ons altijd een speciale plek blijven. Wij hopen dat de volgende bewoners hier net zo gelukkig zullen wonen als wij al die jaren hebben gedaan.''

INTERESSE? MAAK DAN SNEL EEN AFSPRAAK!
Ons advies is om bij het kopen van uw nieuwe woning uw eigen NVM-makelaar mee te nemen.

TOELICHTINGSCLAUSULE NEN2580
De Meetinstructie is gebaseerd op de NEN2580. De Meetinstructie is bedoeld om een meer eenduidige manier van meten toe te passen voor het geven van een indicatie van de gebruiksoppervlakte. De Meetinstructie sluit verschillen in meetuitkomsten niet volledig uit, door bijvoorbeeld interpretatieverschillen, afrondingen of beperkingen bij het uitvoeren van de meting.

KOOPOVEREENKOMST PAS RECHTSGELDIG NA ONDERTEKENING
Een mondelinge overeenstemming tussen de particuliere verkoper en de particuliere koper is niet rechtsgeldig. Met andere woorden: er is geen koop. Er is pas sprake van een rechtsgeldige koop als de particuliere verkoper en de particuliere koper de koopovereenkomst hebben ondertekend. Dit vloeit voort uit artikel 7:2 Burgerlijk Wetboek. Een bevestiging van de mondelinge overeenstemming per e-mail of een toegestuurd concept van de koopovereenkomst wordt overigens niet gezien als een 'ondertekende koopovereenkomst'

“Deze informatie is door ons met de nodige zorgvuldigheid samengesteld. Onzerzijds wordt echter geen enkele aansprakelijkheid aanvaard voor enige onvolledigheid, onjuistheid of anderszins, dan wel de gevolgen daarvan. Alle opgegeven maten en oppervlakten zijn indicatief.”

Kenmerken

Basiskenmerken

  • Status Verkocht onder voorbehoud
  • Koopsom € 475.000 k.k.
  • Woonoppervlakte ca. 106 m2
  • Aantal slaapkamers 3
  • Bouwjaar 1972

Overdracht

  • Aanvaarding In overleg

Bouwvorm & onderhoud

  • Soort object Tussenwoning
  • Soort woning Eengezinswoning
  • Bouwjaar 1972
  • Soort bouw woonhuis
  • Ligging In woonwijk

Oppervlakte & inhoud

  • Gebruiksoppervlakte 106m2
  • Perceeloppervlakte 134m2
  • Inhoud 359m3
  • Aantal kamers 4
  • Aantal slaapkamers 3
  • Aantal woonlagen 3 woonlagen

Energie & installatie

  • Energielabel A
  • Isolatie Dakisolatie, muurisolatie, dubbel glas, hr glas
  • Verwarming Cv ketel, vloerverwarming gedeeltelijk
  • Warm water Cv ketel, elektrische boiler eigendom
  • C.v.-ketel type GAS
  • C.v.-ketel bouwjaar 2024
  • Energie einddatum 07-11-2035

Bergruimte

  • Schuur / berging Vrijstaand steen
  • Voorzieningen Voorzien van elektra

Parkeergelegenheid

  • Parkeerfaciliteiten Openbaar parkeren
  • Garage Geen garage

Dak

  • Soort dak Zadeldak

Overig

  • Onderhoud binnen Uitstekend
  • Onderhoud buiten Goed tot uitstekend
  • Bijzonderheden Gestoffeerd
  • Permanente bewoning Ja
  • Huidig gebruik Woonruimte
  • Huidige bestemming Woonruimte

Voorzieningen

  • Voorzieningen Mechanische ventilatie, tv kabel, buitenzonwering, airconditioning, dakraam, glasvezel kabel, zonnepanelen

Buitenruimte

  • Hoofdtuin ACHTERTUIN
  • Oppervlakte hoofdtuin 79m2
  • Ligging hoofdtuin ZUIDOOST
  • Kwaliteit tuin Verzorgd

Kadastrale gegevens

  • Perceelnummer 2273
  • Perceeloppervlakte 134 m2
Meer kenmerken
Ontdek online wat jouw huis waard is

Met de online waardecheck ontdek je in een paar minuten de geschatte waarde van jouw huis!

Gratis waardecheck

In de buurt