Chat with us, powered by LiveChat Azaleastraat 10 B, 3051 TE ROTTERDAM - WoonSchuijt Makelaars

Rotterdam

Azaleastraat  10 B

€ 359.000,- k.k.

Omschrijving

Instapklaar 2-laags appartement met 2 slaapkamers en zonnige tuin op het ZUIDEN! In het populaire Kleiwegkwartier vind je dit verrassend ruime en instapklare 2-laags appartement van ca. 68 m². Hier woon je rustig, maar wel met alle voorzieningen en het centrum van Rotterdam binnen handbereik. De woning is de afgelopen jaren aangepakt, met als absoluut hoogtepunt de…

Instapklaar 2-laags appartement met 2 slaapkamers en zonnige tuin op het ZUIDEN!

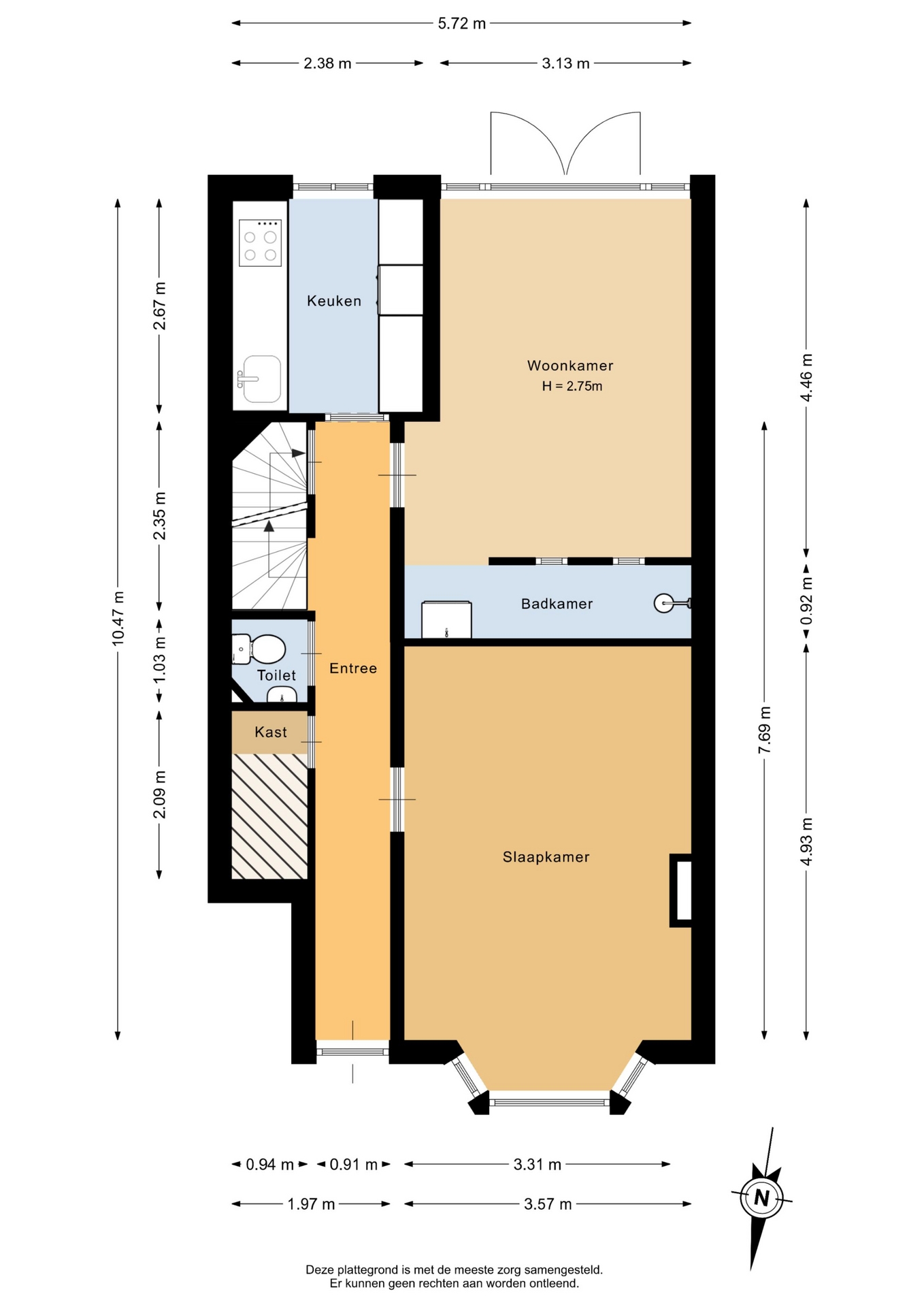
In het populaire Kleiwegkwartier vind je dit verrassend ruime en instapklare 2-laags appartement van ca. 68 m². Hier woon je rustig, maar wel met alle voorzieningen en het centrum van Rotterdam binnen handbereik. De woning is de afgelopen jaren aangepakt, met als absoluut hoogtepunt de nieuwe keuken en het bij de woonkamer betrekken van het balkon in 2025. Het resultaat? Een lichte, comfortabele leefruimte waar je zo in kunt trekken.

LICHTE WOONKAMER MET DIRECT TUINCONTACT
De woonkamer is een fijne plek waar je meteen ziet wat deze woning zo aantrekkelijk maakt. Door de grote raampartijen en de openslaande deuren naar de tuin valt het daglicht rijkelijk naar binnen. Het voormalige balkon is bij de woonkamer gevoegd, wat zorgt voor extra leefruimte en een prettig open gevoel. Hier heb je alle ruimte voor een gezellige zithoek én een eettafel.

De verbinding met buiten is een groot pluspunt. Op zonnige dagen zet je de deuren open en loopt het binnen naadloos over in de tuin. Dat maakt dit huis ideaal voor starters die graag binnen én buiten willen genieten.

MODERNE KEUKEN EN PRAKTISCHE INDELING
De keuken is in 2025 vernieuwd en dat zie je meteen. De combinatie van donker blauwe kastfronten, warme accenten en een speelse tegelwand geeft het geheel een eigentijdse en sfeervolle uitstraling. Tegelijkertijd is de keuken praktisch ingericht, met voldoende werk- en opbergruimte. Hier kook je met plezier, of je nu snel iets maakt of uitgebreid aan de slag gaat.

Op de begane grond vind je daarnaast een ruime slaapkamer. Wat prettig is: de indeling is flexibel. Je kunt er ook voor kiezen om de woonkamer en slaapkamer om te draaien, afhankelijk van jouw woonwensen. De badkamer en het toilet zijn eveneens op deze verdieping aanwezig, waarbij de badkamer bereikbaar is via de slaapkamer (of bereikbaar valt te maken, net aan welke kant je wenst te gaan slapen).

Op de eerste verdieping bevindt zich de tweede slaapkamer. Deze ruimte is ideaal als werkkamer of babykamer. Dankzij de indeling over twee lagen voelt het huis ruim en speels aan.

ZONNIGE TUIN OP HET ZUIDEN
De tuin is absoluut een van de sterke punten van dit huis. Met een oppervlakte van ca. 38 m² en een ligging op het zuiden zit je hier vrijwel de hele dag in de zon. Of je nu wilt ontspannen op de loungeset, buiten wilt eten of vrienden over de vloer hebt: dit is zo’n plek waar je graag tijd doorbrengt.

De tuin is netjes aangelegd en biedt voldoende privacy. Een fijne buitenruimte zoals deze kom je niet vaak tegen bij een appartement, zeker niet op zo’n centrale locatie.

RUSTIG WONEN IN HET KLEIWEGKWARTIER
De ligging maakt het plaatje compleet. Je woont hier in een rustige straat in het geliefde Kleiwegkwartier, een wijk die bekend staat om zijn fijne sfeer en gunstige ligging. Op loopafstand vind je de Kleiweg met diverse winkels, supermarkten zoals Albert Heijn en gezellige koffietentjes en restaurants. Ook de Ceintuurbaan met onder andere een Hoogvliet ligt dichtbij.

Voor ontspanning zit je hier ook goed. De Bergse Plassen liggen op korte afstand, ideaal voor een wandeling of een rondje hardlopen. Daarnaast zijn er goede verbindingen met het openbaar vervoer en zit je zo op de uitvalswegen. Het centrum van Rotterdam is binnen no-time bereikbaar, waardoor je profiteert van het beste van twee werelden: rustig wonen en toch dichtbij de stad.

KENMERKEN:
- Bouwjaar: 1933
- Woonoppervlakte ca. 68 m²
- Tuin op het ZUIDEN van ca. 38 m²
- Gelegen in rustige straat in het Kleiwegkwartier
- Energielabel C
- Dubbel glas / HR++ beglazing
- Nieuwe keuken (2025) met alle nodige inbouwapparatuur en wasmachineaansluiting
- Balkon bij woonkamer/slaapkamer betrokken (2025)
- Kelderruimte met opstelplaats CV-ketel (Intergas, 2024) en ruimte voor wasdroger
- Actieve VvE, bijdrage € 50,- per maand. Onderhoud gebeurt in goed onderling overleg tussen leden
- Ouderdoms- en asbestclausule van toepassing vanwege de leeftijd van het appartement
- Funderingsrapport beschikbaar, uitkomsten zijn goed!
- Oplevering in overleg, kan snel

INTERESSE? MAAK DAN SNEL EEN AFSPRAAK!
Ons advies is om bij het kopen van jouw nieuwe woning jouw eigen NVM makelaar mee te nemen.

TOELICHTINGSCLAUSULE NEN2580
De Meetinstructie is gebaseerd op de NEN2580. De Meetinstructie is bedoeld om een meer eenduidige manier van meten toe te passen voor het geven van een indicatie van de gebruiksoppervlakte. De Meetinstructie sluit verschillen in meetuitkomsten niet volledig uit, door bijvoorbeeld interpretatieverschillen, afrondingen of beperkingen bij het uitvoeren van de meting.

KOOPOVEREENKOMST PAS RECHTSGELDIG NA ONDERTEKENING
Een mondelinge overeenstemming tussen de particuliere verkoper en de particuliere koper is niet rechtsgeldig. Met andere woorden: er is geen koop. Er is pas sprake van een rechtsgeldige koop als de particuliere verkoper en de particuliere koper de koopovereenkomst hebben ondertekend. Dit vloeit voort uit artikel 7:2 Burgerlijk Wetboek. Een bevestiging van de mondelinge overeenstemming per e-mail of een toegestuurd concept van de koopovereenkomst wordt overigens niet gezien als een 'ondertekende koopovereenkomst'

“Deze informatie is door ons met de nodige zorgvuldigheid samengesteld. Onzerzijds wordt echter geen enkele aansprakelijkheid aanvaard voor enige onvolledigheid, onjuistheid of anderszins, dan wel de gevolgen daarvan. Alle opgegeven maten en oppervlakten zijn indicatief.”

Kenmerken

Basiskenmerken

  • Status Beschikbaar
  • Koopsom € 359.000 k.k.
  • Woonoppervlakte ca. 68 m2
  • Aantal slaapkamers 2
  • Bouwjaar 1933

Overdracht

  • Aanvaarding In overleg

Bouwvorm & onderhoud

  • Bouwjaar 1933
  • Soort bouw woonhuis
  • Ligging Aan rustige weg, in woonwijk

Oppervlakte & inhoud

  • Gebruiksoppervlakte 68m2
  • Inhoud 289m3
  • Aantal kamers 3
  • Aantal slaapkamers 2
  • Aantal woonlagen 2 woonlagen
  • Overige inpandige ruimte 10m2

Energie & installatie

  • Energielabel C
  • Isolatie Dubbel glas, hr glas
  • Verwarming Cv ketel
  • Warm water Cv ketel
  • C.v.-ketel type GAS
  • C.v.-ketel bouwjaar 2024
  • Energie einddatum 14-04-2036

Parkeergelegenheid

  • Parkeerfaciliteiten Openbaar parkeren, betaald parkeren, parkeervergunningen
  • Garage Geen garage

Dak

  • Soort dak Zadeldak

Overig

  • Onderhoud binnen Goed
  • Onderhoud buiten Goed
  • Bijzonderheden Gedeeltelijk gestoffeerd
  • Permanente bewoning Ja
  • Huidig gebruik Woonruimte
  • Huidige bestemming Woonruimte

Voorzieningen

  • Voorzieningen Mechanische ventilatie, tv kabel, natuurlijke ventilatie

Buitenruimte

  • Hoofdtuin ACHTERTUIN
  • Oppervlakte hoofdtuin 38m2
  • Ligging hoofdtuin ZUID
  • Kwaliteit tuin Verzorgd

Kadastrale gegevens

  • Perceelnummer 1610
Meer kenmerken
Ontdek online wat jouw huis waard is

Met de online waardecheck ontdek je in een paar minuten de geschatte waarde van jouw huis!

Gratis waardecheck

In de buurt

Geïnteresseerd?

Bel met WoonSchuijt Makelaars

shape

Stuur een bericht

* Maximaal 255 tekens
privacyverklaring