Chat with us, powered by LiveChat Anna van Burenstraat 13, 3411 AH LOPIK - WoonSchuijt Makelaars

Lopik

Anna van Burenstraat  13

€ 465.000,- k.k.

Omschrijving

MODERNE HOEKWONING MET CARPORT OP EEN RUIM PERCEEL Op een rustige hoek in een prettige woonwijk staat dit verrassend verzorgde huis met eigen carport en een ruime tuin. Dit huis is de afgelopen jaren netjes gemoderniseerd en heeft een frisse, eigentijdse uitstraling. Binnen valt direct op hoe licht de ruimtes zijn en hoe strak alles is afgewerkt. Met een fijne woonkamer,…

MODERNE HOEKWONING MET CARPORT OP EEN RUIM PERCEEL
Op een rustige hoek in een prettige woonwijk staat dit verrassend verzorgde huis met eigen carport en een ruime tuin. Dit huis is de afgelopen jaren netjes gemoderniseerd en heeft een frisse, eigentijdse uitstraling. Binnen valt direct op hoe licht de ruimtes zijn en hoe strak alles is afgewerkt. Met een fijne woonkamer, een moderne keuken en drie slaapkamers is dit een huis waar je zo in kunt trekken.

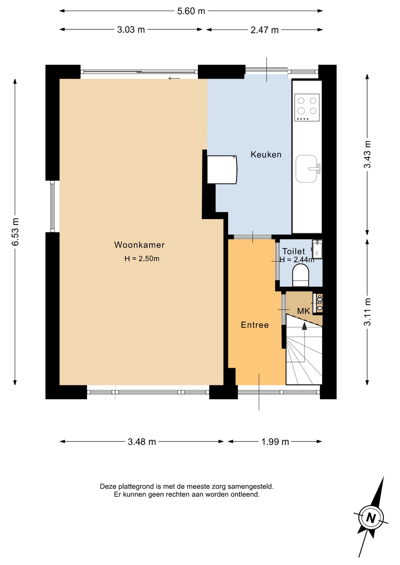
LICHTE WOONKAMER MET FIJNE UITSTRALING
De woonkamer is een prettige leefruimte waar het daglicht rijkelijk naar binnen met onder andere een extra zijraam. De De vloer is voorzien van een moderne PVC vloer met vloerverwarming. De woonkamer biedt voldoende plek voor een comfortabele zithoek.

De afwerking is modern en neutraal, waardoor verschillende woonstijlen hier goed tot hun recht komen. Vanuit de woonkamer heb je een fijne verbinding met de keuken. Hierdoor blijven koken, eten en wonen mooi met elkaar verbonden, wat het dagelijks gebruik extra comfortabel maakt.

MODERNE KEUKEN MET STRAKKE DETAILS
De keuken heeft een moderne uitstraling en heeft een warme en eigentijdse sfeer. De indeling is praktisch opgezet, waardoor je voldoende werkruimte hebt tijdens het koken.

De keuken biedt genoeg opbergruimte in de onder- en bovenkasten en er is plek voor alle dagelijkse apparatuur. Een mooi detail is de glazen deur richting de hal, die zorgt voor een open gevoel terwijl de ruimtes toch gescheiden blijven. Ook hier zie je dat er aandacht is besteed aan de afwerking en uitstraling van het huis.

DRIE SLAAPKAMERS EN PRAKTISCHE INDELING
Op de verdieping bevinden zich drie slaapkamers. De grootste slaapkamer biedt volop ruimte voor een tweepersoonsbed en heeft een inbouwkast. Dankzij de ramen is ook hier weer veel daglicht aanwezig, wat zorgt voor een fijne en rustige sfeer.

De andere twee slaapkamers zijn ideaal als kinderkamer, logeerkamer of werkplek aan huis. Dat maakt het huis flexibel in gebruik en geschikt voor verschillende woonwensen.

De badkamer is praktisch ingedeeld en voorziet in de dagelijkse behoeften. Samen met de drie slaapkamers en de logische indeling van de verdieping zorgt dit voor een comfortabel geheel waar je prettig kunt wonen.

TUIN MET RUIMTE EN PRIVACY
Bij een hoekhuis hoort natuurlijk ook een fijne buitenruimte. De tuin biedt voldoende plek om een terras te maken waar je heerlijk buiten kunt zitten. Door de grootte van het perceel is er meer dan genoeg ruimte voor groen, een speelplek voor kinderen of een gezellige zithoek.

Daarnaast zorgt de hoekligging ervoor dat je net wat meer ruimte en privacy hebt dan bij een tussenwoning. De carport maakt het plaatje compleet: parkeren kan gewoon op eigen terrein en dat is in de praktijk ontzettend prettig.

WONEN IN HET GEZELLIGE LOPIK
Lopik is een dorp waar rust, ruimte en een prettige dorpssfeer samenkomen. Je woont hier midden in het groene hart van Nederland, met veel natuur en polderlandschap in de directe omgeving. Dat betekent volop mogelijkheden om te wandelen, fietsen of gewoon even buiten te zijn.

Tegelijkertijd zijn de dagelijkse voorzieningen dichtbij. In het dorp vind je onder andere supermarkten, winkels, sportverenigingen en scholen. Hierdoor heb je alles wat je nodig hebt gewoon in de buurt.

De ligging is bovendien gunstig ten opzichte van steden als Utrecht, IJsselstein en Nieuwegein. Met de auto of het openbaar vervoer zijn deze plaatsen goed bereikbaar, waardoor Lopik een fijne uitvalsbasis is voor wie rustig wil wonen maar wel verbonden wil blijven met de stad.

KENMERKEN
- Vraagprijs: € 465.000,-;
- Hoekwoning met carport;
- Ligging in rustige woonwijk;
- Tuin op het zuiden;
- Woonoppervlakte: ca. 73 m²;
- Perceeloppervlakte: ca. 202 m²;
- Bouwjaar: 1960;
- Aantal slaapkamers: 3;
- Energielabel: C;
- Oplevering: in overleg.

TOELICHTINGSCLAUSULE NEN2580
De Meetinstructie is gebaseerd op de NEN2580. De Meetinstructie is bedoeld om een meer eenduidige manier van meten toe te passen voor het geven van een indicatie van de gebruiksoppervlakte. De Meetinstructie sluit verschillen in meetuitkomsten niet volledig uit, door bijvoorbeeld interpretatieverschillen, afrondingen of beperkingen bij het uitvoeren van de meting.

KOOPOVEREENKOMST PAS RECHTSGELDIG NA ONDERTEKENING
Een mondelinge overeenstemming tussen de particuliere verkoper en de particuliere koper is niet rechtsgeldig. Met andere woorden: er is geen koop. Er is pas sprake van een rechtsgeldige koop als de particuliere verkoper en de particuliere koper de koopovereenkomst hebben ondertekend. Dit vloeit voort uit artikel 7:2 Burgerlijk Wetboek. Een bevestiging van de mondelinge overeenstemming per e-mail of een toegestuurd concept van de koopovereenkomst wordt overigens niet gezien als een 'ondertekende koopovereenkomst'

“Deze informatie is door ons met de nodige zorgvuldigheid samengesteld. Onzerzijds wordt echter geen enkele aansprakelijkheid aanvaard voor enige onvolledigheid, onjuistheid of anderszins, dan wel de gevolgen daarvan. Alle opgegeven maten en oppervlakten zijn indicatief.”

Kenmerken

Basiskenmerken

  • Status Beschikbaar
  • Koopsom € 465.000 k.k.
  • Woonoppervlakte ca. 73 m2
  • Aantal slaapkamers 3
  • Bouwjaar 1960

Overdracht

  • Aanvaarding In overleg

Bouwvorm & onderhoud

  • Soort object Hoekwoning
  • Soort woning Eengezinswoning
  • Bouwjaar 1960
  • Soort bouw woonhuis

Oppervlakte & inhoud

  • Gebruiksoppervlakte 73m2
  • Perceeloppervlakte 202m2
  • Inhoud 279m3
  • Aantal kamers 4
  • Aantal slaapkamers 3
  • Aantal woonlagen 2 woonlagen

Energie & installatie

  • Energielabel C
  • Isolatie Dakisolatie, vloerisolatie, dubbel glas
  • Verwarming Vloerverwarming gedeeltelijk
  • Warm water Cv ketel
  • Energie einddatum 25-02-2036

Bergruimte

  • Schuur / berging Vrijstaand steen
  • Voorzieningen Voorzien van elektra

Parkeergelegenheid

  • Parkeerfaciliteiten Openbaar parkeren, op eigen terrein
  • Garage Carport

Dak

  • Soort dak Zadeldak

Overig

  • Onderhoud binnen Goed
  • Onderhoud buiten Goed
  • Bijzonderheden Gestoffeerd
  • Permanente bewoning Ja
  • Huidig gebruik Woonruimte
  • Huidige bestemming Woonruimte

Voorzieningen

  • Voorzieningen Tv kabel

Kadastrale gegevens

  • Perceelnummer 1779
  • Perceeloppervlakte 202 m2
Meer kenmerken
Ontdek online wat jouw huis waard is

Met de online waardecheck ontdek je in een paar minuten de geschatte waarde van jouw huis!

Gratis waardecheck

In de buurt

Geïnteresseerd?

Bel met WoonSchuijt Makelaars

shape

Stuur een bericht

* Maximaal 255 tekens
privacyverklaring