Chat with us, powered by LiveChat Woelwijkstraat 54 B, 3035 VT ROTTERDAM - WoonSchuijt Makelaars

Rotterdam

Woelwijkstraat  54 B

€ 450.000,- k.k.

Omschrijving

karakteristiek wonen met modern comfort en 2 slaapkamers! In een van de leukste straten van het Oude Noorden ligt dit karakteristieke appartement uit 1894. Het huis combineert authentieke details met hedendaags wooncomfort en is verdeeld over twee woonlagen met een woonoppervlakte van circa 89 m². De originele sfeer van het pand is nog duidelijk aanwezig. Denk aan de…

karakteristiek wonen met modern comfort en 2 slaapkamers!

In een van de leukste straten van het Oude Noorden ligt dit karakteristieke appartement uit 1894. Het huis combineert authentieke details met hedendaags wooncomfort en is verdeeld over twee woonlagen met een woonoppervlakte van circa 89 m². De originele sfeer van het pand is nog duidelijk aanwezig. Denk aan de fraaie glas-in-lood deuren en bovenramen die zorgen voor karakter én een mooie lichtinval. Tegelijkertijd is het appartement in de loop der jaren goed onderhouden en voorzien van moderne voorzieningen, waaronder een nieuwe Remeha cv-ketel uit 2025 en isolerende beglazing. Het appartement maakt onderdeel uit van een kleinschalige VvE met slechts twee appartementen. De vereniging is actief en de maandelijkse bijdrage bedraagt €150,-. Daarbij woon je hier op eigen grond, midden in een levendige stadswijk met gezellige horeca, winkels en openbaar vervoer om de hoek.

LICHTE WOONKAMER MET AUTHENTIEKE DETAILS
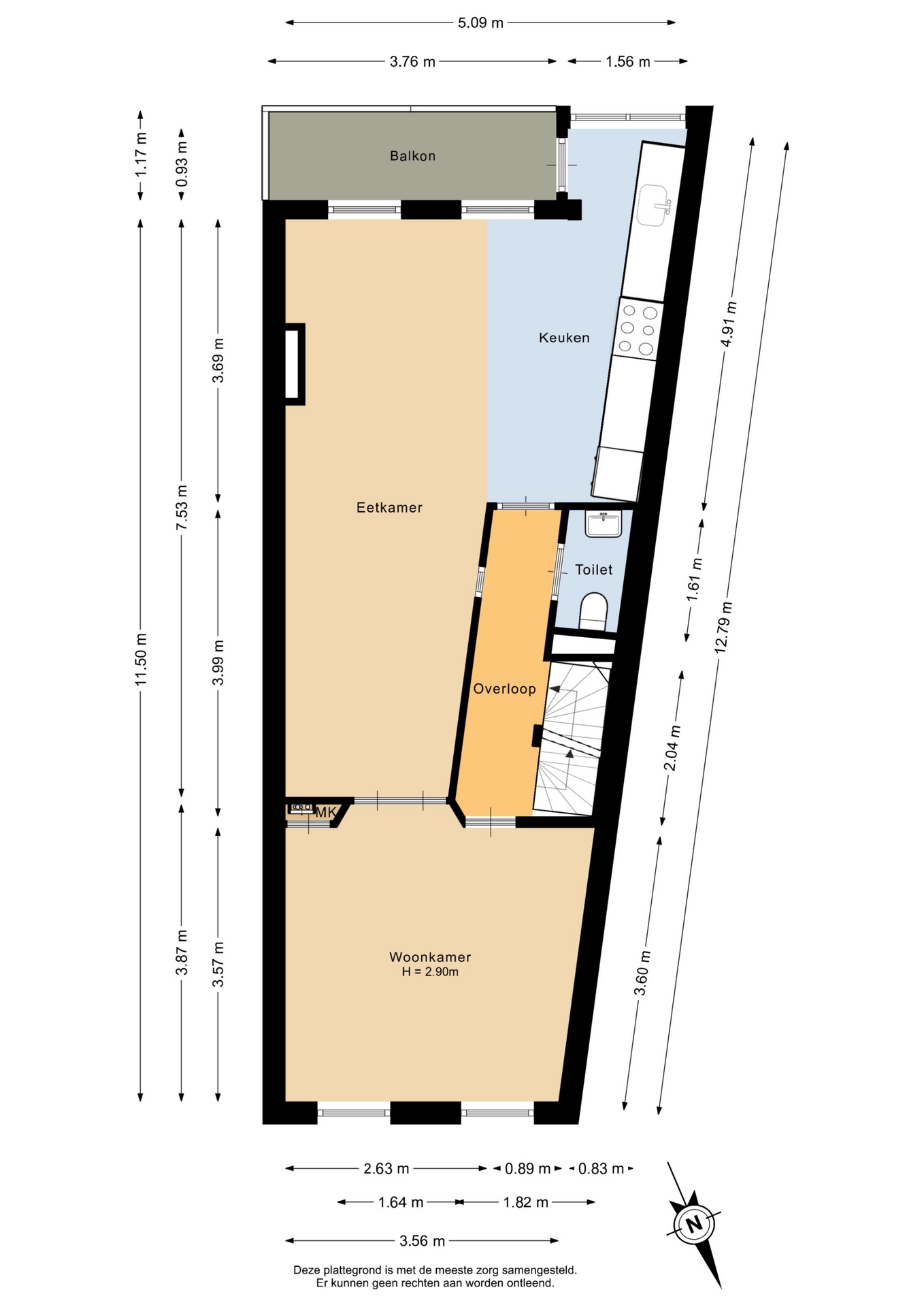
De woonkamer ligt aan de voorzijde van het huis en vormt een fijne plek om te ontspannen. Hier vallen direct de karakteristieke elementen op, zoals de paneeldeuren en het glas-in-lood dat prachtig past bij de bouwperiode van het pand. Via de originele en-suite deuren loop je door naar de eetkamer en keuken aan de achterzijde. Deze indeling zorgt voor een prettige doorzonopstelling waarbij het daglicht van beide kanten binnenvalt. De ruimte biedt voldoende plek voor een comfortabele zithoek én een royale eettafel waar je met vrienden of familie uitgebreid kunt tafelen.

OPEN KEUKEN EN FIJNE EETRUIMTE
Aan de achterzijde bevindt zich de open keuken met aansluitend de eetkamer. Dankzij de grote ramen is dit een heerlijk lichte ruimte waar koken en samen eten vanzelf samenkomen. De keuken heeft een praktische opstelling met veel werkruimte en diverse inbouwapparatuur, waaronder een oven, gaskookplaat en magnetron. Terwijl je kookt heb je zicht op de eettafel en de ramen aan de achterzijde, wat de ruimte een open en gezellige sfeer geeft. Dit is typisch zo’n plek in huis waar de dag begint met een kop koffie en eindigt met een lange avond tafelen.

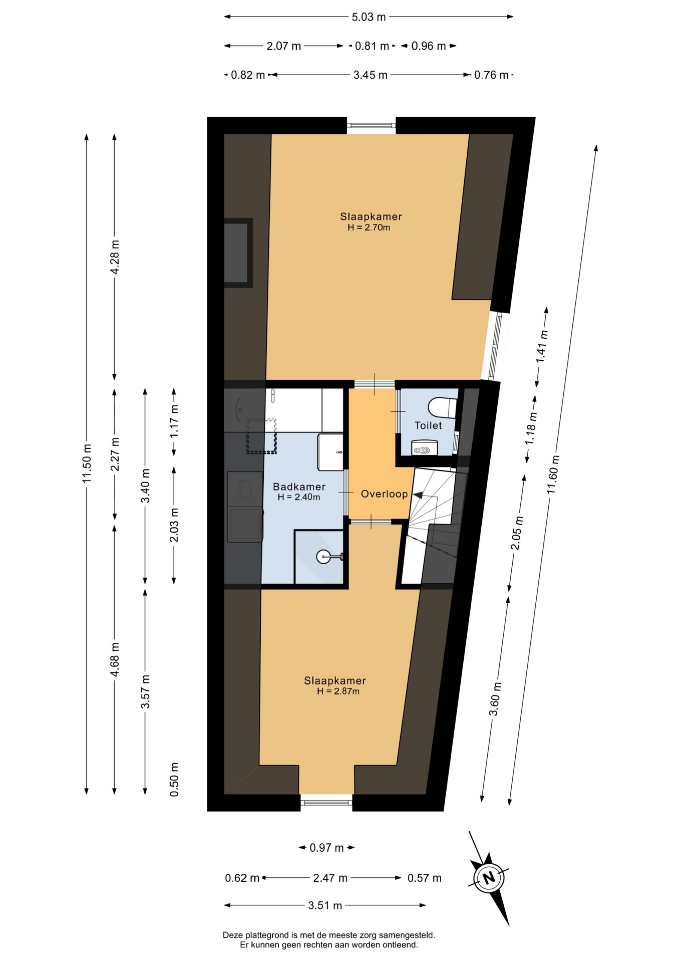
TWEE SLAAPKAMERS EN BADKAMER OP BOVENSTE VERDIEPING
Op de bovenste woonlaag bevinden zich twee slaapkamers. De grootste slaapkamer biedt voldoende ruimte voor een tweepersoonsbed en kastruimte. De tweede kamer is ideaal als werkplek, logeerkamer of kinderkamer. De badkamer is praktisch en compleet ingericht met een ligbad, douche, en wastafel. Het toilet bevindt zicht in een separate ruimte. Daarnaast is er ruimte voor de wasmachine. De schuine kap geeft deze ruimte een speels karakter en zorgt voor een knusse sfeer. In de badkamer is vloerverwarming aanwezig, wat zorgt voor extra comfort.

PRAKTISCHE EXTRA’S EN GOED ONDERHOUDEN
Het appartement beschikt over een eigen berging van circa 5 m² op de begane grond, ideaal voor fietsen of extra opslag. Het dak van het pand is in 2024 grotendeels vernieuwd. Daarbij zijn de nok, één zijde en de voorzijde voorzien van nieuwe dakpannen en dakfolie. De andere zijde van het dak is circa tien jaar geleden gerenoveerd. Verder is er in de straat een funderingsonderzoek uitgevoerd waarbij de fundering als goed is beoordeeld. Dat geeft een prettig uitgangspunt voor de toekomst.

WONEN IN HET GEZELLIGE OUDE NOORDEN
Het Oude Noorden is een van de meest geliefde wijken van Rotterdam. De buurt staat bekend om zijn karakteristieke panden, levendige sfeer en de vele leuke winkels en horecazaken. Op zaterdagochtend is er de gezellige Oogstmarkt op het Noordplein, op slechts twee minuten wandelen. In de directe omgeving vind je daarnaast de levendige Zwaanshals en de Zaagmolenkade, met een gevarieerd aanbod aan winkels, cafés en restaurants. Ook supermarkten en dagelijkse voorzieningen liggen op loopafstand. De bereikbaarheid is uitstekend. Station Rotterdam Noord ligt vlakbij en met de fiets ben je binnen enkele minuten in het centrum van de stad. Daarnaast zijn er diverse tram- en busverbindingen en rijd je via de nabijgelegen uitvalswegen snel richting A20 of A13. Een ideale plek voor wie rustig wil wonen in een karakteristieke buurt, maar toch alle stadse voorzieningen binnen handbereik wil hebben.

KENMERKEN
-Eigen grond
-Bouwjaar 1894
-Woonoppervlakte ca. 89 m²
-Energielabel C
-Ruime woon- en eetkamer met en-suite indeling
-karakteristiek glas-in-lood
-2 slaapkamer en berging
-Verwarming en warm water via Cv-ketel Remeha (2025)
-Actieve VvE met een maandelijkse bijdrage van €150,- per maand
-Ouderdomsclausule van toepassing
-Oplevering in overleg

INTERESSE? MAAK DAN SNEL EEN AFSPRAAK!
Ons advies is om bij het kopen van uw nieuwe woning uw eigen NVM makelaar mee te nemen.

TOELICHTINGSCLAUSULE NEN2580
De Meetinstructie is gebaseerd op de NEN2580. De Meetinstructie is bedoeld om een meer eenduidige manier van meten toe te passen voor het geven van een indicatie van de gebruiksoppervlakte. De Meetinstructie sluit verschillen in meetuitkomsten niet volledig uit, door bijvoorbeeld interpretatieverschillen, afrondingen of beperkingen bij het uitvoeren van de meting.

KOOPOVEREENKOMST PAS RECHTSGELDIG NA ONDERTEKENING
Een mondelinge overeenstemming tussen de particuliere verkoper en de particuliere koper is niet rechtsgeldig. Met andere woorden: er is geen koop. Er is pas sprake van een rechtsgeldige koop als de particuliere verkoper en de particuliere koper de koopovereenkomst hebben ondertekend. Dit vloeit voort uit artikel 7:2 Burgerlijk Wetboek. Een bevestiging van de mondelinge overeenstemming per e-mail of een toegestuurd concept van de koopovereenkomst wordt overigens niet gezien als een 'ondertekende koopovereenkomst'

“Deze informatie is door ons met de nodige zorgvuldigheid samengesteld. Onzerzijds wordt echter geen enkele aansprakelijkheid aanvaard voor enige onvolledigheid, onjuistheid of anderszins, dan wel de gevolgen daarvan. Alle opgegeven maten en oppervlakten zijn indicatief.”

Kenmerken

Basiskenmerken

  • Status Beschikbaar
  • Koopsom € 450.000 k.k.
  • Woonoppervlakte ca. 89 m2
  • Aantal slaapkamers 2
  • Bouwjaar 1894

Overdracht

  • Aanvaarding In overleg

Bouwvorm & onderhoud

  • Bouwjaar 1894
  • Soort bouw woonhuis
  • Ligging Aan rustige weg, in woonwijk

Oppervlakte & inhoud

  • Gebruiksoppervlakte 89m2
  • Inhoud 326m3
  • Aantal kamers 4
  • Aantal slaapkamers 2
  • Aantal woonlagen 2 woonlagen

Energie & installatie

  • Energielabel C
  • Isolatie Dakisolatie, dubbel glas, hr glas
  • Verwarming Cv ketel
  • Warm water Cv ketel
  • C.v.-ketel type GAS
  • C.v.-ketel bouwjaar 2025
  • Energie einddatum 12-05-2032

Bergruimte

  • Schuur / berging Vrijstaand hout
  • Voorzieningen Voorzien van elektra

Parkeergelegenheid

  • Parkeerfaciliteiten Betaald parkeren, parkeervergunningen
  • Garage Geen garage

Dak

  • Soort dak Zadeldak

Overig

  • Onderhoud binnen Goed
  • Onderhoud buiten Redelijk tot goed
  • Bijzonderheden Gedeeltelijk gestoffeerd
  • Permanente bewoning Ja
  • Huidig gebruik Woonruimte
  • Huidige bestemming Woonruimte

Voorzieningen

  • Voorzieningen Tv kabel, natuurlijke ventilatie

Kadastrale gegevens

  • Perceelnummer 6061
Meer kenmerken
Ontdek online wat jouw huis waard is

Met de online waardecheck ontdek je in een paar minuten de geschatte waarde van jouw huis!

Gratis waardecheck

In de buurt

Geïnteresseerd?

Bel met WoonSchuijt Makelaars

shape

Stuur een bericht

* Maximaal 255 tekens
privacyverklaring