Chat with us, powered by LiveChat Willems Fopsstraat 2, 3222 CT HELLEVOETSLUIS - WoonSchuijt Makelaars

Hellevoetsluis

Willems Fopsstraat 2

€ 375.000,- k.k.

Omschrijving

INSTAPKLAAR HOEKHUIS MET AANBOUW EN VOLWAARDIGE TWEEDE VERDIEPING Aan de Willems Fopsstraat 2 in Hellevoetsluis staat dit verrassend ruime en instapklare huis klaar voor een nieuw hoofdstuk. Ideaal voor starters of jonge gezinnen die op zoek zijn naar nét wat meer leefruimte en comfort. Deze keurig en moderne hoekwoning heeft onder andere een royale woonkamer met cinewall…

INSTAPKLAAR HOEKHUIS MET AANBOUW EN VOLWAARDIGE TWEEDE VERDIEPING
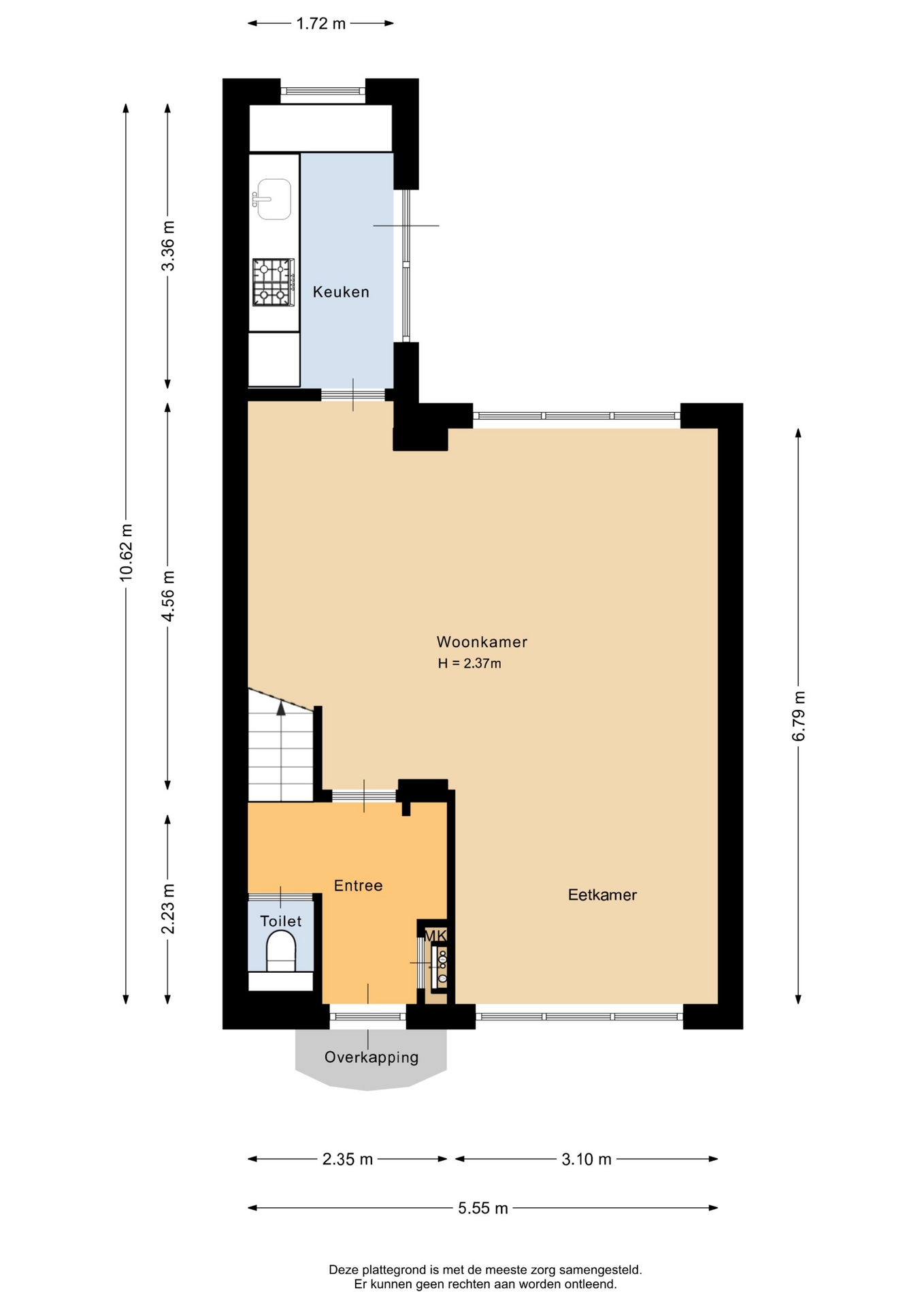
Aan de Willems Fopsstraat 2 in Hellevoetsluis staat dit verrassend ruime en instapklare huis klaar voor een nieuw hoofdstuk. Ideaal voor starters of jonge gezinnen die op zoek zijn naar nét wat meer leefruimte en comfort. Deze keurig en moderne hoekwoning heeft onder andere een royale woonkamer met cinewall en elektrische haard, een uitbouw aan de achterzijde met keuken, een moderne badkamer en maar liefst vier slaapkamers verdeeld over drie verdiepingen. Dankzij de nokverhoging op de tweede verdieping is hier een volwaardige extra etage gerealiseerd – perfect als master bedroom, werkruimte of hobbykamer. De tuin ligt op het westen, dus volop middag- en avondzon. En dat allemaal op loopafstand van scholen, winkels en openbaar vervoer. Kortom: een huis dat klopt van boven tot onder.

SFEERVOLLE LIVING MET CINEWALL EN ELEKTRISCHE HAARD
Bij binnenkomst valt meteen op hoe strak en verzorgd alles is afgewerkt. Op de begane grond ligt een moderne visgraat PVC-vloer – een stijlvolle en onderhoudsvriendelijke basis. De woonkamer is met z’n 32m² ruim opgezet en voorzien van een gezellige cinewall met elektrische haard, wat zorgt voor een knusse sfeer én een strak geheel. Door de grote ramen aan de voorzijde komt er veel natuurlijk licht binnen. Aan de achterzijde is het huis uitgebouwd; hier vind je de de keuken met directe toegang tot de tuin via een loopdeur. Alles voelt licht, ruim en eigentijds aan.

UITBOUW MET KEUKEN EN EEN MODERNE BADKAMER
De keurig en moderne keuken is netjes en praktisch ingericht en is voorzien van van een koelkast, vriezer, vaatwasser, gascomfort, afzuigkap en spoelbak. Hier is voldoende ruimte om te koken én te tafelen. De badkamer is in 2019 volledig gemoderniseerd en is voorzien van een inloopdouche met glazen wand, stijlvol tegelwerk, een wastafelmeubel en een spiegel met verlichting. Daarnaast is er een apart en modern toilet met hangend closet aanwezig op de begane grond.

VIER SLAAPKAMERS EN EEN ROYALE TWEEDE VERDIEPING
Op de eerste verdieping zijn drie slaapkamers te vinden: twee ruime kamers aan de voor- en achterzijde, plus een derde kamer die goed dienstdoet als kinder- of werkkamer. Dankzij de rechte gevels is hier weinig ruimteverlies. Dan de verrassing: de tweede verdieping is uitgebreid met een nokverhoging, waardoor een riante vierde slaapkamer is ontstaan. Deze kamer beslaat de volledige verdieping en is voorzien van een speels open plafond tot in de nok. De kamer is momenteel ingericht als master bedroom met werkplek, maar biedt volop mogelijkheden – van studio tot gamekamer. Ook is hier de was-/stookruimte met opstelling cv combiketel.

ZONNIGE TUIN EN EEN FIJNE LIGGING
De achtertuin ligt op het westen en is grotendeels bestraat, wat het onderhoud lekker makkelijk maakt. Een grote poort aan de achterzijde biedt toegang tot de achterom – ideaal voor fietsen of een motor. Achterin de tuin staat een stenen berging met elektra. Dankzij de ligging op het westen geniet je hier vanaf de middag tot in de avond van de zon. Verder is het een rustige straat in een fijne woonwijk, met in de directe omgeving meerdere speeltuinen, basisscholen, supermarkten en openbaar vervoer. Binnen een paar minuten zit je op de N57 of rijd je richting het winkelcentrum.

OVER HELLEVOETSLUIS
Hellevoetsluis is al jaren een populaire plek voor gezinnen en jonge stellen die op zoek zijn naar ruimte, rust én bereikbaarheid. De stad ligt direct aan het Haringvliet en heeft daardoor een fijne combinatie van wonen aan het water en een compleet voorzieningenaanbod. De historische vesting is een geliefde plek om te wandelen of op een terras neer te strijken, terwijl winkelcentrum De Struytse Hoeck alles biedt voor je dagelijkse boodschappen. Met goede basisscholen, kinderdagverblijven en sportclubs in de buurt is het hier prettig opgroeien voor kinderen. Bovendien zijn de natuurgebieden rondom Voorne-Putten ideaal voor een rondje fietsen of wandelen in het weekend. Rotterdam is binnen 35 minuten bereikbaar, wat Hellevoetsluis ook voor forenzen een interessante woonplek maakt.

BELANGRIJKSTE KENMERKEN OP EEN RIJ:
- Woonoppervlakte: 108 m²
- Perceeloppervlakte: 149 m²
- Bouwjaar: 1960
- Royale living met 32m2 met gave cinewall
- Moderne visgraat pvc vloer
- Keurig en modern uitgevoerde hoekwoning
- Nokverhoging op tweede verdieping
- 4 slaapkamers
- Heerlijk zonnige tuin op het Westen
- Energielabel: E (oud label)
- Oplevering: in overleg (richtlijn maart 2026)

Kenmerken

Basiskenmerken

  • Status Beschikbaar
  • Koopsom € 375.000 k.k.
  • Woonoppervlakte ca. 108 m2
  • Aantal slaapkamers 4
  • Bouwjaar 1960

Overdracht

  • Aanvaarding In overleg

Bouwvorm & onderhoud

  • Soort object Hoekwoning
  • Soort woning Eengezinswoning
  • Bouwjaar 1960
  • Soort bouw woonhuis
  • Ligging Aan rustige weg, in woonwijk, open ligging

Oppervlakte & inhoud

  • Gebruiksoppervlakte 108m2
  • Perceeloppervlakte 149m2
  • Inhoud 374m3
  • Aantal kamers 5
  • Aantal slaapkamers 4
  • Aantal woonlagen 3 woonlagen

Energie & installatie

  • Energielabel E
  • Isolatie Dakisolatie, muurisolatie, grotendeels dubbelglas
  • Verwarming Cv ketel
  • Warm water Cv ketel
  • C.v.-ketel type GAS
  • C.v.-ketel bouwjaar 2010
  • Energie einddatum 2027-07-04

Bergruimte

  • Schuur / berging Vrijstaand steen
  • Voorzieningen Voorzien van elektra

Parkeergelegenheid

  • Parkeerfaciliteiten Openbaar parkeren
  • Garage Geen garage

Dak

  • Soort dak Zadeldak

Overig

  • Onderhoud binnen Goed
  • Onderhoud buiten Goed
  • Bijzonderheden Gedeeltelijk gestoffeerd
  • Permanente bewoning Ja
  • Huidig gebruik Woonruimte
  • Huidige bestemming Woonruimte

Voorzieningen

  • Voorzieningen Tv kabel, buitenzonwering, glasvezel kabel, natuurlijke ventilatie

Buitenruimte

  • Hoofdtuin ACHTERTUIN
  • Oppervlakte hoofdtuin 55m2
  • Ligging hoofdtuin NOORDWEST
  • Kwaliteit tuin Verzorgd

Kadastrale gegevens

  • Perceelnummer 1638
  • Perceeloppervlakte 149
Meer kenmerken

Ontdek online wat jouw huis waard is

Met de online waardecheck ontdek je in een paar minuten de geschatte waarde van jouw huis!

Gratis waardecheck

In de buurt

Geïnteresseerd?

Bel met WoonSchuijt Makelaars

shape

Stuur een bericht

* Maximaal 255 tekens
privacyverklaring