Chat with us, powered by LiveChat Vuurland 29, 2548 WH DEN HAAG - WoonSchuijt Makelaars

Den Haag

Vuurland  29

€ 695.000,- k.k.

Omschrijving

WONEN AAN HET WATER OP EEN VAN DE MOOIE EN KARAKTERISTIEKE EILANDEN IN HET WATERINGSE VELD! Deze riante, lichte en ruime 5-kamer eengezinswoning is o.a. voorzien van een serre, zonnige voor- en achtertuin/terras met aanlegsteiger én een eigen parkeerplaats aan de voorzijde van de woning. Zonneterrassen aan de voor- en achterzijde op de 2e verdieping. LIGGING: De locatie…

WONEN AAN HET WATER OP EEN VAN DE MOOIE EN KARAKTERISTIEKE EILANDEN IN HET WATERINGSE VELD!

Deze riante, lichte en ruime 5-kamer eengezinswoning is o.a. voorzien van een serre, zonnige voor- en achtertuin/terras met aanlegsteiger én een eigen parkeerplaats aan de voorzijde van de woning. Zonneterrassen aan de voor- en achterzijde op de 2e verdieping.

LIGGING:
De locatie van deze woning is ideaal: kindvriendelijk, een rustige straat aan de voorkant, water aan de achterkant. Je kunt vanaf je eigen steiger gaan varen, kanoën of suppen. Winkels, scholen en openbaar vervoer zijn op loopafstand. Je kunt op de fiets naar het strand, Wateringen, Delft of Den Haag. Binnen een paar autominuten zit je op de A-4 en de A-13. En in een kwartier ben je in het centrum van Den Haag of Delft, op het strand of in de duinen. Gratis parkeren in de straat/wijk.

INDELING:
Parterre:
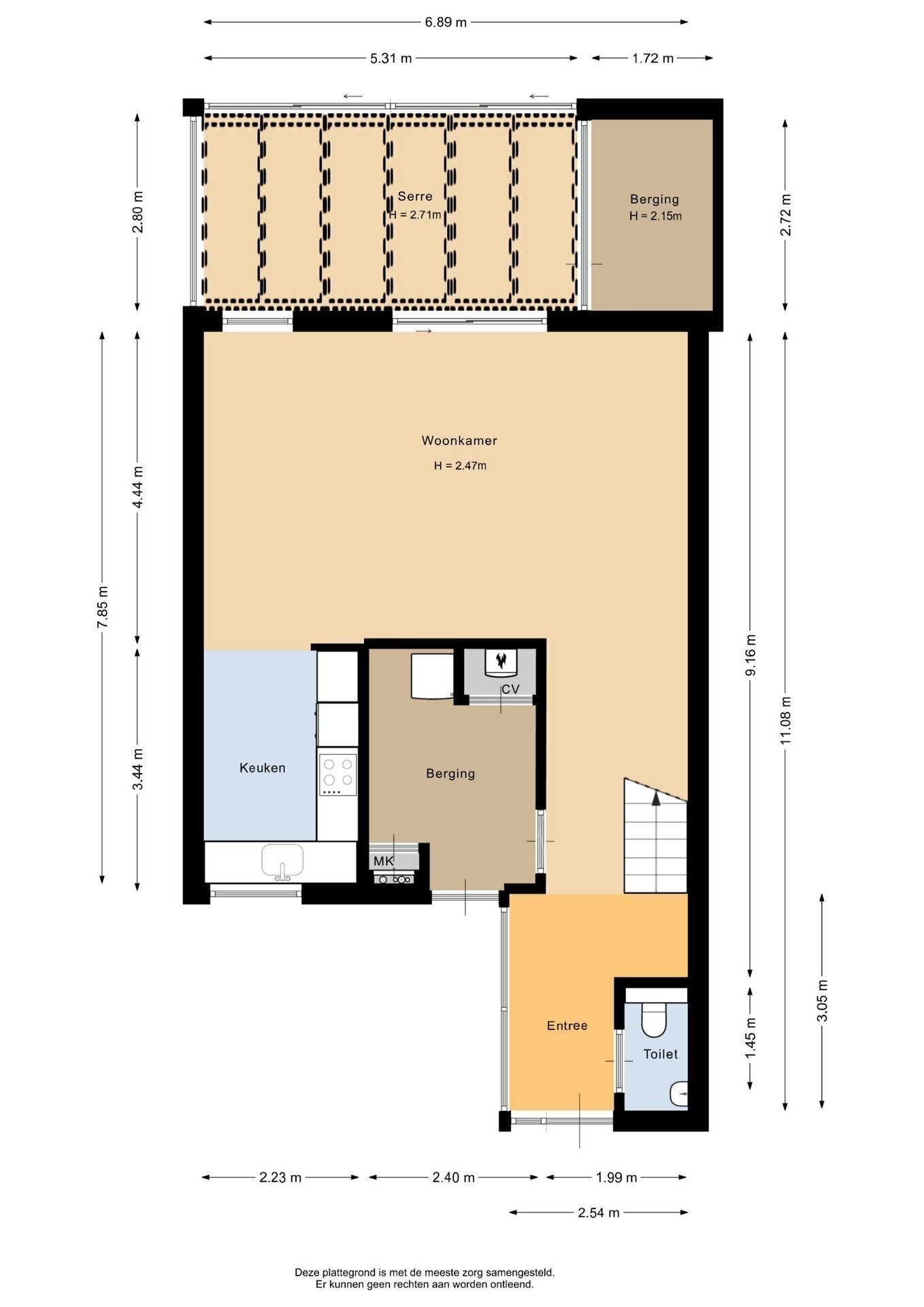
Voortuin met eigen parkeerplaats. Entree van de woning via de hal met toegang naar het toilet en de ruime berging met opstelplaats combi-ketel, meterkast, mechanische ventilatie en aansluiting wasmachine. De berging heeft vloerverwarming en is zowel van binnenuit als van buitenaf bereikbaar, handig voor de fietsen.
De lichte woon-/eetkamer is voorzien van een natuurstenen verwarmde vloer en een grote schuifpui naar de serre en een tweede berging.
De serre (met infrarood verwarming) heeft een glazen schuifpui naar de zonnige achtertuin/terras, over de volle breedte van de woning en gelegen op het zuidwesten, met een trap naar de lager gelegen vlonder/steiger aan het water, waar u een bootje kunt aanleggen. De vloer van de serre loopt door naar buiten, met vloerverlichting, de tuin is voorzien van een hardhouten vlonder.
De half open keuken ligt aan de voorzijde van de woning en is voorzien van een granieten aanrechtblad, inductie kookplaat, afzuigkap + mechanische ventilatie, combi-oven, vaatwasser en koel-/vriescombinatie.

Eerste etage:
Ruime overloop met vide, waardoor veel lichtinval. Slaapkamer 1 aan de voorzijde, slaapkamer 2 en slaapkamer 3 aan de achterzijde van de woning. Alle vloeren voorzien van licht parket. Badkamer aan de voorzijde, voorzien van ligbad, douche, wastafelmeubel en 2e toilet, mechanische ventilatie, vloerverwarming en handdoeken-radiator.

Tweede etage:
Overloop met vide en 2e opstelplaats voor wasmachine en droger, omvormer van de zonnepanelen. Zeer ruime en lichte 4e slaapkamer over de volle breedte, voorzien van kastenwand, airco en toegang naar riante zonneterrassen aan de voor- en achterzijde (buitenkraan), met veel privacy en schitterend vrij uitzicht op het groen en water. De vloer is voorzien van licht parket. Onder de wasmachine-opstelling betegeld.

BIJZONDERHEDEN:
- Gelegen op erfpachtgrond, de canon en beheerkosten zijn eeuwigdurend afgekocht;
- Energielabel A, geldig tot 01-07-2025;
- 4 zonnepanelen in eigendom;
- Volledig geïsoleerd, dubbelglas;
- Remeha HR c.v.-combiketel (2023);
- Diverse basalt-, keramische en parketvloeren;
- Mooie serre met isolatieglas, infrarood verwarming en dimbare verlichting;
- Daikin split-airconditioning ( 2024 ) op de 2e etage;
- Eigen parkeerplaats;
- Eigen aanlegplaats voor bootje;
- rustig gelegen met alle voorzieningen in de buurt;
- Perceeloppervlak 178 m2;
- Ouderdoms- en materialenclausule van toepassing.

VERKOPER AAN HET WOORD:
Wonen op een eiland, dat sprak ons wel aan, en ook de bijzondere architectuur, ik was meteen verliefd op het huis. Het huis is licht, ruim en ligt met de achtertuin aan het water, we hebben daar later de serre laten aanbouwen, waar je bij de eerste zonnestralen in het voorjaar al kunt zitten, heerlijk.

De Eilanden is een hele rustige wijk, er is nauwelijks verkeer, kinderen kunnen er lekker buiten spelen. Je kunt hier lopend of met de fiets boodschappen doen, maar je bent ook zó in het centrum van Den Haag of Delft.

Nu de kinderen uit huis zijn wordt het tijd voor een kleinere woning, maar ik zal het huis en de buurt zeker missen.

INTERESSE? MAAK DAN SNEL EEN AFSPRAAK!
Ons advies is om bij het kopen van uw nieuwe woning uw eigen NVM makelaar mee te nemen.

TOELICHTINGSCLAUSULE NEN2580
De Meetinstructie is gebaseerd op de NEN2580. De Meetinstructie is bedoeld om een meer eenduidige manier van meten toe te passen voor het geven van een indicatie van de gebruiksoppervlakte. De Meetinstructie sluit verschillen in meetuitkomsten niet volledig uit, door bijvoorbeeld interpretatieverschillen, afrondingen of beperkingen bij het uitvoeren van de meting.

KOOPOVEREENKOMST PAS RECHTSGELDIG NA ONDERTEKENING
Een mondelinge overeenstemming tussen de particuliere verkoper en de particuliere koper is niet rechtsgeldig. Met andere woorden: er is geen koop. Er is pas sprake van een rechtsgeldige koop als de particuliere verkoper en de particuliere koper de koopovereenkomst hebben ondertekend. Dit vloeit voort uit artikel 7:2 Burgerlijk Wetboek. Een bevestiging van de mondelinge overeenstemming per e-mail of een toegestuurd concept van de koopovereenkomst wordt overigens niet gezien als een 'ondertekende koopovereenkomst'

“Deze informatie is door ons met de nodige zorgvuldigheid samengesteld. Onzerzijds wordt echter geen enkele aansprakelijkheid aanvaard voor enige onvolledigheid, onjuistheid of anderszins, dan wel de gevolgen daarvan. Alle opgegeven maten en oppervlakten zijn indicatief.”

Kenmerken

Basiskenmerken

  • Status Beschikbaar
  • Koopsom € 695.000 k.k.
  • Woonoppervlakte ca. 158 m2
  • Aantal slaapkamers 4
  • Bouwjaar 2001

Overdracht

  • Aanvaarding In overleg

Bouwvorm & onderhoud

  • Soort object Tussenwoning
  • Soort woning Eengezinswoning
  • Bouwjaar 2001
  • Soort bouw woonhuis

Oppervlakte & inhoud

  • Gebruiksoppervlakte 158m2
  • Perceeloppervlakte 178m2
  • Inhoud 584m3
  • Aantal kamers 5
  • Aantal slaapkamers 4
  • Aantal woonlagen 3 woonlagen
  • Overige inpandige ruimte 5m2

Energie & installatie

  • Energielabel A
  • Isolatie Volledig geisoleerd
  • Verwarming Cv ketel, vloerverwarming gedeeltelijk
  • Warm water Cv ketel
  • C.v.-ketel type GAS
  • C.v.-ketel bouwjaar 2023
  • Energie einddatum 01-07-2035

Parkeergelegenheid

  • Garage Parkeerplaats

Overig

  • Onderhoud binnen Goed
  • Onderhoud buiten Goed
  • Bijzonderheden Gedeeltelijk gestoffeerd
  • Permanente bewoning Ja
  • Huidig gebruik Woonruimte
  • Huidige bestemming Woonruimte

Voorzieningen

  • Voorzieningen Tv kabel, airconditioning, schuifpui, zonnepanelen

Buitenruimte

  • Hoofdtuin ACHTERTUIN
  • Oppervlakte hoofdtuin 75m2
  • Ligging hoofdtuin NOORDWEST
  • Kwaliteit tuin Fraai aangelegd

Kadastrale gegevens

  • Perceelnummer 4362
  • Perceeloppervlakte 178 m2
Meer kenmerken
Ontdek online wat jouw huis waard is

Met de online waardecheck ontdek je in een paar minuten de geschatte waarde van jouw huis!

Gratis waardecheck

In de buurt

Geïnteresseerd?

Bel met WoonSchuijt Makelaars

shape

Stuur een bericht

* Maximaal 255 tekens
privacyverklaring