Chat with us, powered by LiveChat Veerweg 7, 3224 AW HELLEVOETSLUIS - WoonSchuijt Makelaars

Hellevoetsluis

Veerweg  7

€ 925.000,- k.k.

Omschrijving

WERKEN EN WONEN OP EEN UNIEKE PLEK AAN HET HARINGVLIET Aan de rand van de haven van Hellevoetsluis staat dit vrijstaande huis met bedrijfsruimte op een plek die je zelden tegenkomt. Hier combineer je wonen en werken op een manier die zowel praktisch als inspirerend is. Vanuit het huis en het royale dakterras kijk je uit over het Haringvliet en de haven. De ligging is…

WERKEN EN WONEN OP EEN UNIEKE PLEK AAN HET HARINGVLIET
Aan de rand van de haven van Hellevoetsluis staat dit vrijstaande huis met bedrijfsruimte op een plek die je zelden tegenkomt. Hier combineer je wonen en werken op een manier die zowel praktisch als inspirerend is. Vanuit het huis en het royale dakterras kijk je uit over het Haringvliet en de haven. De ligging is open, rustig en tegelijkertijd uitstekend bereikbaar.

Het pand biedt een bijzonder veelzijdige indeling met een ruime bedrijfsruimte op de begane grond en een comfortabel woonniveau op de eerste verdieping. Daarmee is dit een ideale plek voor ondernemers die hun bedrijf/kantoor graag dichtbij huis hebben, maar ook waarde hechten aan een fijne woonomgeving met uitzicht op het water.

Daarnaast bestaat de mogelijkheid om het pand gedeeltelijk zakelijk en gedeeltelijk privé aan te kopen, wat fiscaal interessant kan zijn voor ondernemers.

ROYALE BEDRIJFSRUIMTE MET VEEL MOGELIJKHEDEN
Op de begane grond bevindt zich een multifunctionele bedrijfsruimte van circa 125 m². Deze ruimte is momenteel ingericht als werkplaats/showroom, een magazijn en een kantoorruimte, maar is multifunctioneel te gebruiken. Dankzij de open indeling en goede hoogte is de ruimte flexibel in te delen voor verschillende bedrijfsactiviteiten. Verder beschikt de bedrijfsruimte op de begane grond over een eigen entree met hal en een toilet.

Aangrenzend bevindt zich een garage/werkplaats van circa 46 m² met een grote elektrische overheaddeur. Hierdoor is de ruimte goed toegankelijk voor voertuigen of grotere materialen. De garage is eveneens voorzien van elektra en verwarming, wat het gebruik extra comfortabel maakt.

Het perceel biedt daarnaast voldoende parkeergelegenheid op eigen terrein, wat ideaal is voor klanten, personeel of het parkeren van bedrijfsvoertuigen.

LICHTE WOONVERDIEPING MET UITZICHT OVER WATER
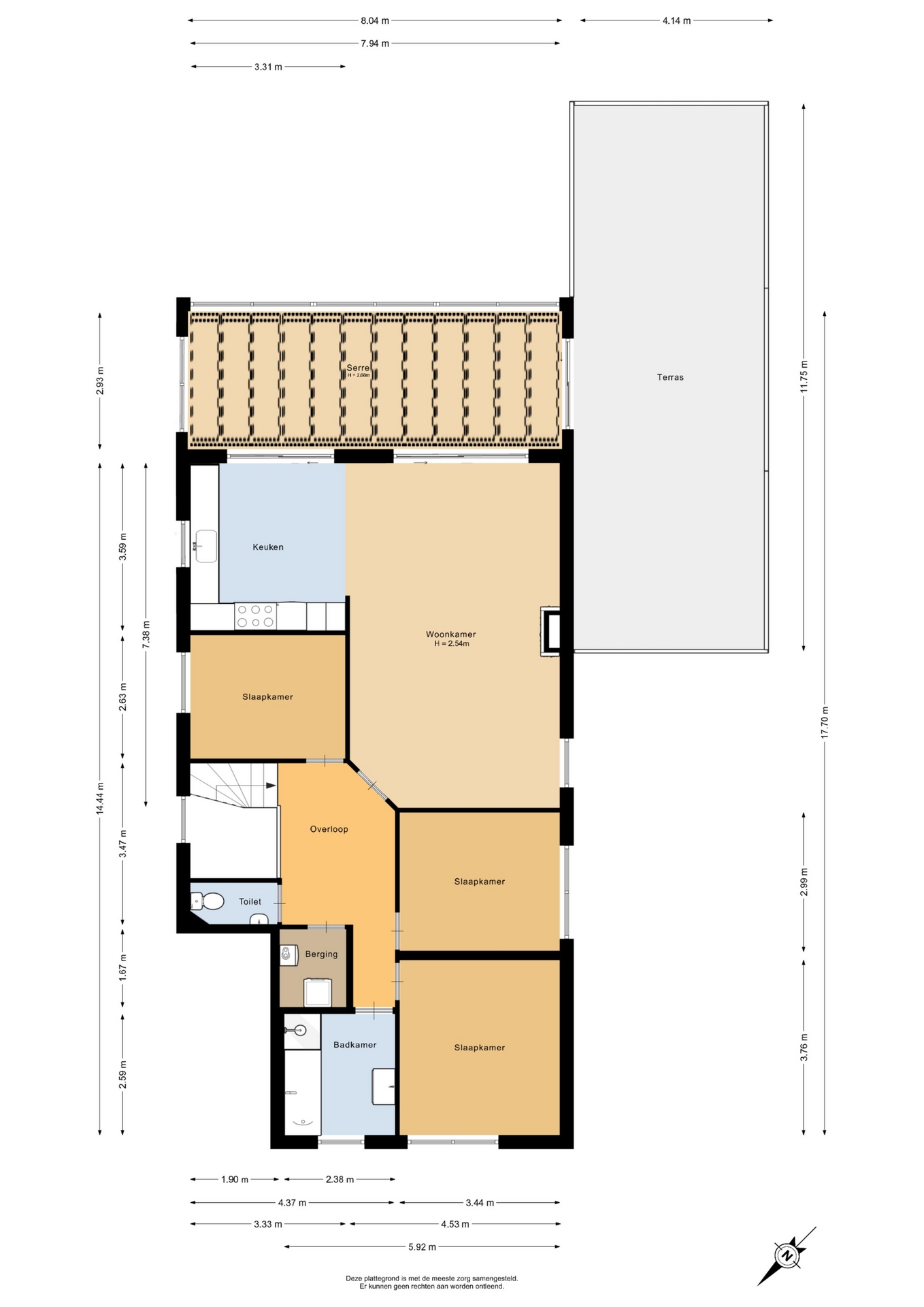
De woonruimte bevindt zich volledig op de eerste verdieping en biedt een woonoppervlakte van circa 136 m². Zodra je hier boven komt valt direct het vele licht en het uitzicht op het water op.

De woonkamer is ruim opgezet en heeft grote raampartijen waardoor het uitzicht op het Haringvliet continu aanwezig is. De open indeling zorgt voor een prettige leefruimte waar de zithoek, eethoek en keuken mooi in elkaar overlopen.

De keuken is praktisch ingericht en biedt voldoende werkruimte en opbergruimte. Vanuit de keuken loop je direct door naar de serre, een fijne plek waar je het hele jaar door kunt genieten van het prachtige uitzicht.

De woning beschikt over drie slaapkamers, waarvan de grootste uitstekend geschikt is als hoofdslaapkamer. De badkamer is compleet uitgerust met een ligbad, douche en wastafel. Daarnaast is er een separaat toilet en een praktische berging met wasruimte en opstelling cv combiketel Vaillant HR 2022 en de verdeelunits vloerverwarming voor de woonverdieping en de begane grond.

GROOT DAKTERRAS MET PANORAMISCH UITZICHT
Een van de absolute blikvangers van dit huis is het royale dakterras van circa 46 m². Hier geniet je van een prachtig vrij uitzicht over het Haringvliet en de haven van Hellevoetsluis.

Dit is een plek waar je op zonnige dagen heerlijk kunt ontspannen, dineren met vrienden of simpelweg genieten van de rust en de pleziervaartuigen die voorbijtrekken. Door de open ligging en de ruimte rondom het huis ervaar je hier een bijzonder gevoel van vrijheid.

WONEN AAN DE VEERWEG (HAVEN) VAN HELLEVOETSLUIS
Veerweg 7 ligt op een bijzondere plek aan de rand van de haven van Hellevoetsluis, direct aan het Haringvliet. Deze locatie combineert rust, ruimte en water met een goede bereikbaarheid en voorzieningen in de buurt.

Hellevoetsluis heeft een rijke maritieme geschiedenis en staat bekend om zijn historische vesting, gezellige jachthavens en levendige watersportcultuur. Vanuit de woning wandel je zo langs het water of richting de haven waar diverse restaurants, terrassen en nautische bedrijven te vinden zijn.

Voor watersportliefhebbers is dit een ideale omgeving. Het Haringvliet biedt volop mogelijkheden voor varen, zeilen en recreatie op het water. Ook natuurliefhebbers komen hier aan hun trekken dankzij de groene dijken en wandelroutes langs het water.

Ondanks de rustige ligging zijn voorzieningen zoals supermarkten, scholen en sportverenigingen op korte afstand bereikbaar.

BESTEMMING:
Het object is bestemd als “Bedrijf - Bedrijfswoning”. De huidige bestemming is daarmee conform het bestemmingsplan.

De voor 'Bedrijf - Bedrijfswoning' aangewezen gronden zijn bestemd voor:
- bedrijfswoningen ten dienste van de watersportgerelateerde bedrijven in het plangebied;
- aan-huis-verbonden bedrijf of beroep;
- kantoren ondergeschikt aan de bedrijfsvoering van het bedrijf waar de bedrijfswoning bij behoort van ten hoogste 100 m² bvo;
- bijbehorende voorzieningen, zoals groen, water, verharding, parkeervoorzieningen;

Voor verdere informatie over de mogelijkheden binnen het bestemmingsplan verzoeken wij u contact met ons op te nemen.

OPPERVLAKTE
Bedrijfsruimte/werkplaats/ showroom/magazijn/kantoor: 125m2
Garage/bedrijfsruimte: 46m2
Woonruimte met serre: 136m2
Dakterras: 46m2

OPLEVERING
In overleg (huidige staat).

VASTE LASTEN:
- Gemeentelijke- en waterschapslasten: € 2.832,51 per jaar

ENERGIELABEL
Het woongedeelte heeft een energielabel C
Het bedrijfsgedeelte op de begane grond heeft een energielabel A+

KOSTEN KOPER
Voor rekening van koper komt de overdrachtsbelasting ten bedrage van 2% van de koopsom voor het woongedeelte en 10,4% van de koopsom voor het zakelijk gedeelte. Alle overige kosten verband houdende met de levering zijn tevens voor rekening van koper.

Toelichtingsclausule NEN2580:
De Meetinstructie is gebaseerd op de NEN2580. De Meetinstructie is bedoeld om een meer eenduidige manier van meten toe te passen voor het geven van een indicatie van de gebruiksoppervlakte. De Meetinstructie sluit verschillen in meetuitkomsten niet volledig uit, door bijvoorbeeld interpretatieverschillen, afrondingen of beperkingen bij het uitvoeren van de meting.

“Deze informatie is door ons met de nodige zorgvuldigheid samengesteld. Onzerzijds wordt echter geen enkele aansprakelijkheid aanvaard voor enige onvolledigheid, onjuistheid of anderszins, dan wel de gevolgen daarvan. Alle opgegeven maten en oppervlakten zijn indicatief.”

Koopovereenkomst pas rechtsgeldig na ondertekening:
Een mondelinge overeenstemming tussen de particuliere verkoper en de particuliere koper is niet rechtsgeldig. Met andere woorden: er is geen koop. Er is pas sprake van een rechtsgeldige koop als de particuliere verkoper en de particuliere koper de koopovereenkomst hebben ondertekend. Dit vloeit voort uit artikel 7:2 Burgerlijk Wetboek. Een bevestiging van de mondelinge overeenstemming per e-mail of een toegestuurd concept van de koopovereenkomst wordt overigens niet gezien als een 'ondertekende koopovereenkomst'.

Kenmerken

Basiskenmerken

  • Status Beschikbaar
  • Koopsom € 925.000 k.k.
  • Woonoppervlakte ca. 260 m2
  • Aantal slaapkamers 3
  • Bouwjaar 1991

Overdracht

  • Aanvaarding In overleg

Bouwvorm & onderhoud

  • Soort object Vrijstaande woning
  • Soort woning Eengezinswoning
  • Bouwjaar 1991
  • Soort bouw woonhuis
  • Ligging Aan water, aan rustige weg, vrij uitzicht, open ligging, aan vaarwater

Oppervlakte & inhoud

  • Gebruiksoppervlakte 260m2
  • Perceeloppervlakte 475m2
  • Inhoud 1210m3
  • Aantal kamers 7
  • Aantal slaapkamers 3
  • Aantal woonlagen 2 woonlagen
  • Overige inpandige ruimte 46m2

Energie & installatie

  • Energielabel C
  • Isolatie Dakisolatie, muurisolatie, hr glas
  • Verwarming Cv ketel, open haard, vloerverwarming gedeeltelijk
  • Warm water Cv ketel
  • C.v.-ketel type GAS
  • C.v.-ketel bouwjaar 2022
  • Energie einddatum 24-02-2036

Parkeergelegenheid

  • Parkeerfaciliteiten Openbaar parkeren, op eigen terrein
  • Garage Inpandig

Dak

  • Soort dak Plat dak

Overig

  • Onderhoud binnen Goed
  • Onderhoud buiten Goed
  • Bijzonderheden Gedeeltelijk gestoffeerd
  • Permanente bewoning Ja
  • Huidig gebruik Woonruimte
  • Huidige bestemming Woonruimte

Voorzieningen

  • Voorzieningen Mechanische ventilatie, tv kabel, airconditioning, schuifpui, glasvezel kabel, natuurlijke ventilatie

Buitenruimte

  • Hoofdtuin TUIN_RONDOM
  • Kwaliteit tuin Verzorgd

Kadastrale gegevens

  • Perceelnummer 2286
  • Perceeloppervlakte 475 m2
Meer kenmerken
Ontdek online wat jouw huis waard is

Met de online waardecheck ontdek je in een paar minuten de geschatte waarde van jouw huis!

Gratis waardecheck

In de buurt

Geïnteresseerd?

Bel met WoonSchuijt Makelaars

shape

Stuur een bericht

* Maximaal 255 tekens
privacyverklaring