Chat with us, powered by LiveChat Rotterdamsedijk 51, 3112 AA SCHIEDAM - WoonSchuijt Makelaars

Schiedam

Rotterdamsedijk 51

€ 225.000,- k.k.

Omschrijving

Licht 2- (voorheen 3) kamerappartement met uitzicht op de haven Ben je op zoek naar een licht appartement met karakter én uitzicht over de haven van Rotterdam? Dan is dit appartement aan de Rotterdamsedijk 51 zeker een kijkje waard. Dit 2-kamerappartement op de vierde verdieping combineert licht, rust en een centrale ligging. Ideaal voor starters of een stel dat…

Licht 2- (voorheen 3) kamerappartement met uitzicht op de haven

Ben je op zoek naar een licht appartement met karakter én uitzicht over de haven van Rotterdam? Dan is dit appartement aan de Rotterdamsedijk 51 zeker een kijkje waard. Dit 2-kamerappartement op de vierde verdieping combineert licht, rust en een centrale ligging. Ideaal voor starters of een stel dat comfortabel wil wonen vlak bij het centrum. Vanuit de woonkamer en het balkon kijk je uit over het water en de skyline, een uitzicht waar je niet snel op uitgekeken raakt.
Hier woon je net buiten de drukte, maar met de stad letterlijk om de hoek. Alles bij de hand, maar tóch je eigen plek.

FIJNE WOONKAMER MET NATUURLIJK LICHT
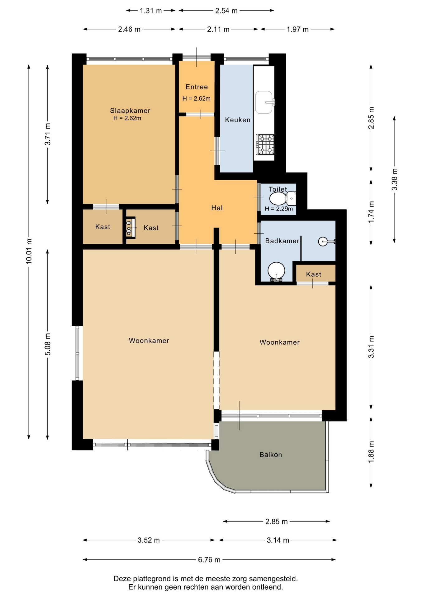
De woonkamer is een fijne ruimte met grote ramen aan de voorzijde. Hierdoor valt het daglicht royaal naar binnen en kijk je uit over de levendige haven. Er is ruimte voor een gezellige zithoek én een fijne eethoek. Aangrenzend vind je de gesloten keuken, functioneel ingericht en voorzien van de nodige basisapparatuur. Vanuit hier heb je toegang tot het balkon, dat op het oosten ligt, ideaal voor een koffietje in de ochtendzon.
De woning beschikt over één slaapkamer, met de mogelijkheid voor een tweede slaapkamer/kantoor. De slaapkamer biedt voldoende ruimte voor een tweepersoonsbed en kledingkast. De (mogelijke) tweede slaapkamer is perfect als werkplek, logeerkamer of kleedkamer. De badkamer is voorzien van een douche, wastafel en aansluiting voor de wasmachine. Het toilet is apart en bereikbaar vanuit de hal.

COMFORTABEL WONEN OP DE VIERDE VERDIEPING
Het appartement ligt op de vierde verdieping van een verzorgd appartementencomplex en is zowel per trap als met de lift bereikbaar. Dankzij de ligging op hoogte en het ontbreken van directe bovenburen woon je hier heerlijk rustig. De woning is voorzien van dubbele beglazing en wordt verwarmd met een eigen cv-ketel. Met een woonoppervlakte van ca. 66 M² voelt de woning compact maar efficiënt aan, ideaal als eerste stap op de woningmarkt.

LEVEN IN HET KARAKTERVOLLE NIEUWE WEST
Rotterdamsedijk ligt in het stadsdeel Delfshaven, aan de rand van de wijk Bospolder-Tussendijken. Een wijk waar oud en nieuw elkaar ontmoeten, met de charme van de oude haven, historische panden en volop nieuwe ontwikkelingen. In de directe omgeving vind je diverse supermarkten, buurtwinkels, horeca en ov-verbindingen.
Het historische Delfshaven ligt op loopafstand en het centrum van Rotterdam bereik je binnen tien minuten met de fiets of metro. Voor een ommetje of hardloopronde zijn Park 1943 en de kades langs de Coolhaven en de Schie fijne plekken.
Kortom: een heerlijk appartement met uitzicht, licht, en een fijne ligging. Een mooie kans voor wie dichtbij de stad wil wonen zonder in de drukte te zitten.

KENMERKEN
- Bouwjaar 1952
- Ligging aan de Rotterdamsedijk met uitzicht op de haven
- Fijn balkon in het oosten
- Woonoppervlakte ca. 66 m²
- Verwarming en warm water middels blokverwarming
- Actieve VvE, bijdrage: € 262,63 per maand
- Energielabel E
- Projectnotaris van toepassing
- Ouderdomsclausule en niet-zelfbewoningsclausule van toepassing
- Oplevering in overleg, kan snel

INTERESSE? MAAK DAN SNEL EEN AFSPRAAK!
Ons advies is om bij het kopen van jouw nieuwe woning jpouw eigen NVM makelaar mee te nemen.

TOELICHTINGSCLAUSULE NEN2580
De Meetinstructie is gebaseerd op de NEN2580. De Meetinstructie is bedoeld om een meer eenduidige manier van meten toe te passen voor het geven van een indicatie van de gebruiksoppervlakte. De Meetinstructie sluit verschillen in meetuitkomsten niet volledig uit, door bijvoorbeeld interpretatieverschillen, afrondingen of beperkingen bij het uitvoeren van de meting.

KOOPOVEREENKOMST PAS RECHTSGELDIG NA ONDERTEKENING
Een mondelinge overeenstemming tussen de particuliere verkoper en de particuliere koper is niet rechtsgeldig. Met andere woorden: er is geen koop. Er is pas sprake van een rechtsgeldige koop als de particuliere verkoper en de particuliere koper de koopovereenkomst hebben ondertekend. Dit vloeit voort uit artikel 7:2 Burgerlijk Wetboek. Een bevestiging van de mondelinge overeenstemming per e-mail of een toegestuurd concept van de koopovereenkomst wordt overigens niet gezien als een 'ondertekende koopovereenkomst'

“Deze informatie is door ons met de nodige zorgvuldigheid samengesteld. Onzerzijds wordt echter geen enkele aansprakelijkheid aanvaard voor enige onvolledigheid, onjuistheid of anderszins, dan wel de gevolgen daarvan. Alle opgegeven maten en oppervlakten zijn indicatief.”

Kenmerken

Basiskenmerken

  • Status Verkocht onder voorbehoud
  • Koopsom € 225.000 k.k.
  • Woonoppervlakte ca. 66 m2
  • Aantal slaapkamers 1
  • Bouwjaar 1952

Overdracht

  • Aanvaarding In overleg

Bouwvorm & onderhoud

  • Bouwjaar 1952
  • Soort bouw woonhuis
  • Ligging Aan rustige weg, vrij uitzicht, open ligging, aan vaarwater

Oppervlakte & inhoud

  • Gebruiksoppervlakte 66m2
  • Inhoud 207m3
  • Aantal kamers 2
  • Aantal slaapkamers 1
  • Aantal woonlagen 1 woonlagen

Energie & installatie

  • Energielabel E
  • Isolatie Dubbel glas
  • Verwarming Blokverwarming
  • Warm water Elektrische boiler eigendom
  • Energie einddatum 2035-01-31

Bergruimte

  • Schuur / berging Box
  • Voorzieningen Voorzien van elektra

Parkeergelegenheid

  • Parkeerfaciliteiten Betaald parkeren, parkeervergunningen
  • Garage Geen garage

Dak

  • Soort dak Plat dak

Overig

  • Onderhoud binnen Redelijk tot goed
  • Onderhoud buiten Redelijk tot goed
  • Bijzonderheden Gedeeltelijk gestoffeerd
  • Permanente bewoning Ja
  • Huidig gebruik Woonruimte
  • Huidige bestemming Woonruimte

Voorzieningen

  • Voorzieningen Tv kabel, natuurlijke ventilatie

Kadastrale gegevens

  • Perceelnummer 3321
Meer kenmerken

Ontdek online wat jouw huis waard is

Met de online waardecheck ontdek je in een paar minuten de geschatte waarde van jouw huis!

Gratis waardecheck

In de buurt