Chat with us, powered by LiveChat Ridder van Catsweg 180, 2805 BB GOUDA - WoonSchuijt Makelaars

Gouda

Ridder van Catsweg  180

€ 350.000,- k.k.

Omschrijving

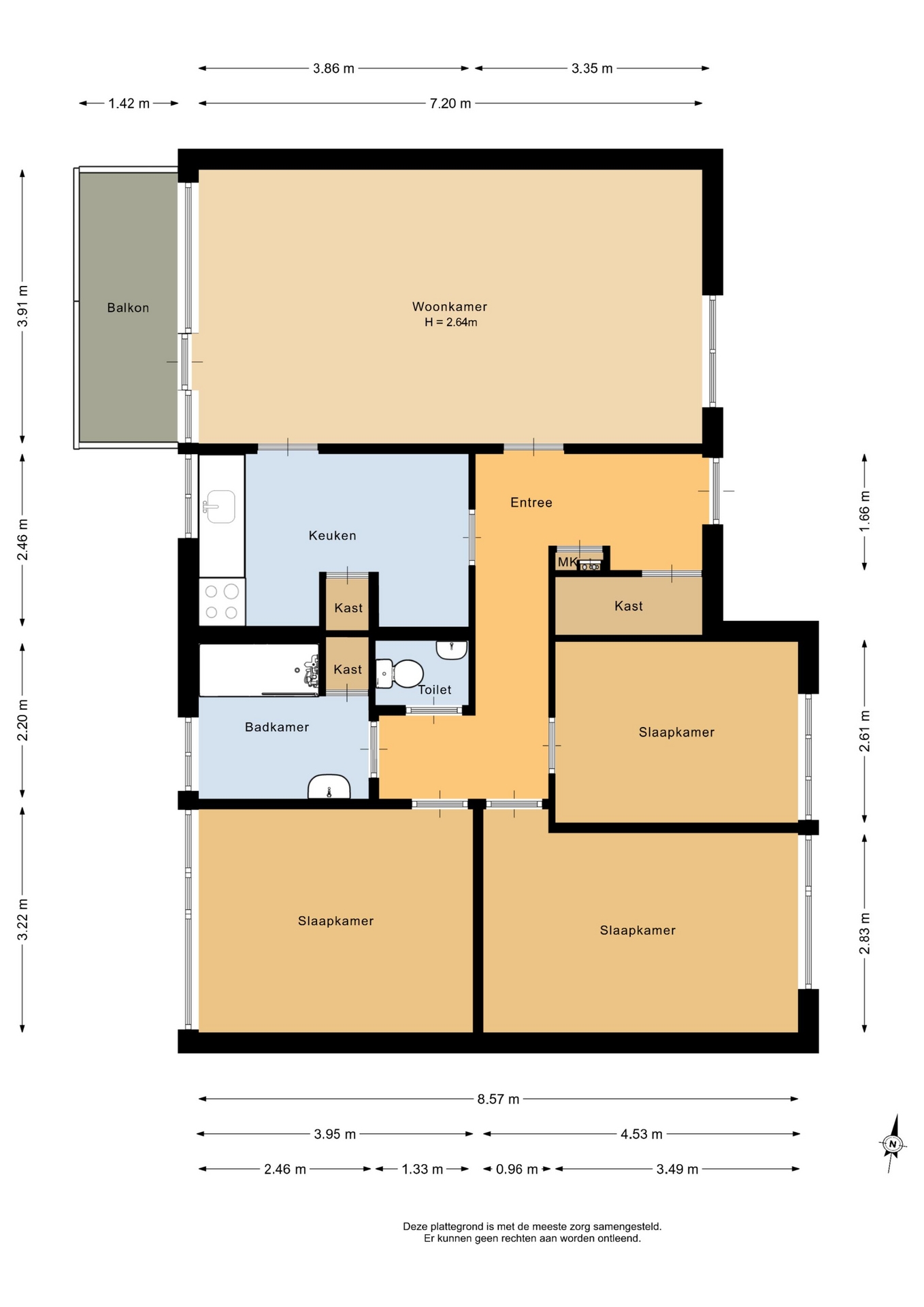
RUIM STARTERSAPPARTEMENT MET DRIE SLAAPKAMERS Ben jij starter en op zoek naar een ruim appartement waar je écht meters krijgt? Dan is Ridder van Catsweg 180 precies wat je zoekt. Met maar liefst 97 m² woonoppervlakte, drie slaapkamers, een zonnig balkon op het zuiden én een ligging op loopafstand van het centrum en het station, heb je hier een ideale basis om jouw eigen…

RUIM STARTERSAPPARTEMENT MET DRIE SLAAPKAMERS
Ben jij starter en op zoek naar een ruim appartement waar je écht meters krijgt? Dan is Ridder van Catsweg 180 precies wat je zoekt. Met maar liefst 97 m² woonoppervlakte, drie slaapkamers, een zonnig balkon op het zuiden én een ligging op loopafstand van het centrum en het station, heb je hier een ideale basis om jouw eigen plek te creëren. Dit appartement is netjes onderhouden, maar biedt tegelijkertijd alle ruimte om het naar eigen smaak af te werken. Een mooie kans voor wie niet bang is om de handen uit de mouwen te steken en zijn eigen woonwensen wil realiseren.

GOEDE INDELING EN VEEL RUIMTE
De lichte doorzon woonkamer heeft een prettige sfeer en biedt voldoende ruimte. Vanuit de woonkamer stap je zo het zonnige balkon op, dat ideaal op het zuiden ligt. De keuken bevindt zich naast de woonkamer, een beetje afgescheiden maar toch fijn contact met de woonkamer. In de keuken is een handige bergkast aanwezig met daarin de opstelplaats van de boiler. Een echt pluspunt is de aanwezigheid van drie slaapkamers, allemaal van een goed formaat. De badkamer is half betegeld en functioneel ingedeeld met een bad met douchegelegenheid en een wastafel. Daarnaast is er een separaat toilet. Op de begane grond is een eigen berging aanwezig, handig voor het stallen van fietsen of het opbergen van extra spullen.

DE PERFECTE LIGGING
Het NS-treinstation Gouda Centraal en allerlei andere voorzieningen liggen op loopafstand. Ook de gezellige binnenstad van Gouda is in enkele minuten fietsen (of lopend) te bereiken, waar je veel winkels hebt, maar natuurlijk ook gezellig een drankje kunt drinken op het plein! Wil je graag even ontspannen of wandelen, dan kun je naar het Goudse Hout of de Reeuwijkse Plassen.

BIJZONDERHEDEN
- Perfecte ligging;
- Bijna volledig dubbel glas (met uitzondering van de voordeur);
- Spouwmuurisolatie aangebracht in 2024;
- Energielabel D;
- Blokverwarming;
- Elektrische boiler voor warm water;
- Balkon op het zuiden;
- Glasvezel aansluiting aanwezig;
- Eigen berging in de onderbouw;
- Gratis parkeren voor het complex;
- VvE in oprichting, bijdrage ca. € 245,- per maand exclusief ca. € 115,- voorschot stookkosten;
- In de koopovereenkomst wordt o.a. een niet-zelfbewoningsclausule opgenomen;
- Oplevering in overleg, kan snel.

INTERESSE? MAAK DAN SNEL EEN AFSPRAAK!
Ons advies is om bij het kopen van je nieuwe huis je eigen NVM-makelaar mee te nemen.

TOELICHTINGSCLAUSULE NEN2580
De Meetinstructie is gebaseerd op de NEN2580. De Meetinstructie is bedoeld om een meer eenduidige manier van meten toe te passen voor het geven van een indicatie van de gebruiksoppervlakte. De Meetinstructie sluit verschillen in meetuitkomsten niet volledig uit, door bijvoorbeeld interpretatieverschillen, afrondingen of beperkingen bij het uitvoeren van de meting.

“Deze informatie is door ons met de nodige zorgvuldigheid samengesteld. Onzerzijds wordt echter geen enkele aansprakelijkheid aanvaard voor enige onvolledigheid, onjuistheid of anderszins, dan wel de gevolgen daarvan. Alle opgegeven maten en oppervlakten zijn indicatief.”

KOOPOVEREENKOMST PAS RECHTSGELDIG NA ONDERTEKENING
Een mondelinge overeenstemming tussen de particuliere verkoper en de particuliere koper is niet rechtsgeldig. Met andere woorden: er is geen koop. Er is pas sprake van een rechtsgeldige koop als de particuliere verkoper en de particuliere koper de koopovereenkomst hebben ondertekend. Dit vloeit voort uit artikel 7:2 Burgerlijk Wetboek. Een bevestiging van de mondelinge overeenstemming per e-mail of een toegestuurd concept van de koopovereenkomst wordt overigens niet gezien als een 'ondertekende koopovereenkomst'.

Kenmerken

Basiskenmerken

  • Status Beschikbaar
  • Koopsom € 350.000 k.k.
  • Woonoppervlakte ca. 97 m2
  • Aantal slaapkamers 3
  • Bouwjaar 1974

Overdracht

  • Aanvaarding In overleg

Bouwvorm & onderhoud

  • Bouwjaar 1974
  • Soort bouw woonhuis
  • Ligging In woonwijk

Oppervlakte & inhoud

  • Gebruiksoppervlakte 97m2
  • Inhoud 318m3
  • Aantal kamers 4
  • Aantal slaapkamers 3
  • Aantal woonlagen 1 woonlagen

Energie & installatie

  • Energielabel D
  • Isolatie Muurisolatie, grotendeels dubbelglas
  • Verwarming Blokverwarming
  • Warm water Elektrische boiler eigendom
  • Energie einddatum 25-07-2029

Bergruimte

  • Voorzieningen Voorzien van elektra

Parkeergelegenheid

  • Parkeerfaciliteiten Openbaar parkeren
  • Garage Geen garage

Overig

  • Onderhoud binnen Redelijk tot goed
  • Onderhoud buiten Redelijk tot goed
  • Bijzonderheden Gedeeltelijk gestoffeerd
  • Permanente bewoning Ja
  • Huidig gebruik Woonruimte
  • Huidige bestemming Woonruimte

Voorzieningen

  • Voorzieningen Mechanische ventilatie, tv kabel, glasvezel kabel, natuurlijke ventilatie

Kadastrale gegevens

  • Perceelnummer 3026
Meer kenmerken
Ontdek online wat jouw huis waard is

Met de online waardecheck ontdek je in een paar minuten de geschatte waarde van jouw huis!

Gratis waardecheck

In de buurt

Geïnteresseerd?

Bel met WoonSchuijt Makelaars

shape

Stuur een bericht

* Maximaal 255 tekens
privacyverklaring