Chat with us, powered by LiveChat Klaas Klinkertweg 8, 2905 LA CAPELLE AAN DEN IJSSEL - WoonSchuijt Makelaars

Capelle Aan Den Ijssel

Klaas Klinkertweg 8

€ 575.000,- k.k.

Omschrijving

*** NU IN VERKOOP *** EEN 2-ONDER-1 KAP WONING OP EEN UNIEKE LOCATIE MET SCHITTERENDE UITZICHT OVER DE LANDERIJEN. DEZE WONING DATEERT UIT 1931 EN BIEDT EEN UNIEKE KANS OM GEHEEL NAAR EIGEN SMAAK EEN 'DROOMHUIS OP HET PLATTELAND' TE CREEEREN: EN DAT AAN DE RAND VAN HET BRUISENDE CAPELLE AAN DEN IJSSEL. LOCATIE: De Klaas Klinkertweg is een landelijk weggetje die de…

*** NU IN VERKOOP ***
EEN 2-ONDER-1 KAP WONING OP EEN UNIEKE LOCATIE MET SCHITTERENDE UITZICHT OVER DE LANDERIJEN.
DEZE WONING DATEERT UIT 1931 EN BIEDT EEN UNIEKE KANS OM GEHEEL NAAR EIGEN SMAAK EEN 'DROOMHUIS OP HET PLATTELAND' TE CREEEREN: EN DAT AAN DE RAND VAN HET BRUISENDE CAPELLE AAN DEN IJSSEL.

LOCATIE:
De Klaas Klinkertweg is een landelijk weggetje die de Bermweg en 's-Gravenweg met elkaar verbindt, met aan de linkerzijde Golfclub Capelle en aan de rechterzijde landerijen die zich tot aan Nieuwerkerk aan den IJssel uitstrekken.
Deze weg vormt min of meer de grens van Capelle aan den IJssel.
Toch zit je hier zeker niet achteraf gelegen, want op loopafstand tref je vrijwel alle dagelijks benodigde voorzieningen.
En voor een uitgebreider winkel aanbod pak je de fiets of auto en sta je binnen 5 minuten op de Koperwiek: een groot overdekt winkelcentrum met bus & metro station, theater, horeca etc.
Ook woon je hier heel centraal als het gaat om de bereikbaarheid richting, scholen, dagopvang, medische voorzieningen, sport accommodaties en horeca.
Kortom een vrij unieke, landelijke stek op een centrale locatie.

DE WONING:
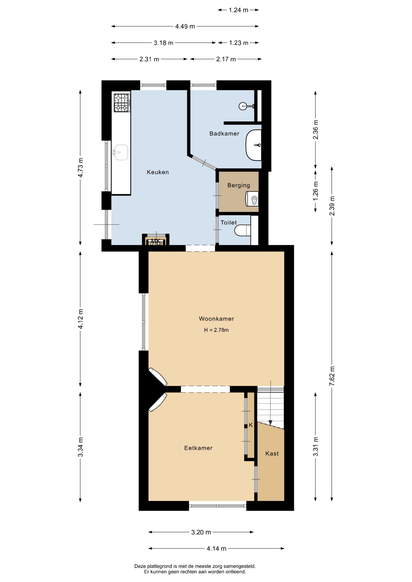
De verkoper van dit huis heeft al enige verbouwingswerkzaamheden voor zijn rekening genomen, maar de rest is aan u om naar eigen wens in te vullen. Het woonoppervlak bedraagt 84m².
Dit is thans opgedeeld in een dichte keuken met zij entree, badkamer, toilet, woonkamer met aangrenzende voorkamer, ruime overloop, 2 slaapkamers en een vlizo zolder.
Aangezien één en ander nog open ligt, is het relatief eenvoudig om het huis geheel naar eigen idee aan te passen. Buiten is er in de voortuin plaats voor 2 auto's en achter het huis staat nog een vrijstaande, houten (15m²) schuur.
Zowel aan de achterzijde, als aan de zij kant grenst het perceel van 425m² aan het water.
Aangezien dit adres valt binnen landinrichtingsproject HITLAND, ben je hier blijvend verzekerd van een vrij uitzicht.

SPECIFICATIES:
-Bouwjaar: circa 1931
-Perceel eigen grond: 425m²
-Woonoppervlakte: 84m²
-Overig inpandige ruimte: 6m²
-Externe bergruimte: 19m²
-Inhoud: 425m³
-Isolatie: dak isolatie / vloerisolatie (broodjesvloer op begane grond), deels dubbel glas en voorzetramen.
-Verwarming & warm water: C.V. ketel d.d. 2006/2008 "Vaillant"
-Energielabel E
-Airconditioning op beide slaapkamers
-Aansluitpunt voor kachel met rookkanaal in woonkamer en voorkamer
-Rookkanaal laatst gereinigd in 2024
-Verfwerk aan deuren en kozijnen laatst uitgevoerd in 2023
-Oplevering in overleg

INTERESSE? MAAK DAN SNEL EEN AFSPRAAK!
Ons advies is om bij het kopen van je nieuwe huis je eigen NVM-makelaar mee te nemen.

TOELICHTINGSCLAUSULE NEN2580
De Meetinstructie is gebaseerd op de NEN2580. De Meetinstructie is bedoeld om een meer eenduidige manier van meten toe te passen voor het geven van een indicatie van de gebruiksoppervlakte. De Meetinstructie sluit verschillen in meetuitkomsten niet volledig uit, door bijvoorbeeld interpretatieverschillen, afrondingen of beperkingen bij het uitvoeren van de meting.

KOOPOVEREENKOMST PAS RECHTSGELDIG NA ONDERTEKENING
Een mondelinge overeenstemming tussen de particuliere verkoper en de particuliere koper is niet rechtsgeldig. Met andere woorden: er is geen koop. Er is pas sprake van een rechtsgeldige koop als de particuliere verkoper en de particuliere koper de koopovereenkomst hebben ondertekend. Dit vloeit voort uit artikel 7:2 Burgerlijk Wetboek. Een bevestiging van de mondelinge overeenstemming per e-mail of een toegestuurd concept van de koopovereenkomst wordt overigens niet gezien als een 'ondertekende koopovereenkomst'

“Deze informatie is door ons met de nodige zorgvuldigheid samengesteld. Onzerzijds wordt echter geen enkele aansprakelijkheid aanvaard voor enige onvolledigheid, onjuistheid of anderszins, dan wel de gevolgen daarvan. Alle opgegeven maten en oppervlakten zijn indicatief.”

Kenmerken

Basiskenmerken

  • Status Beschikbaar
  • Koopsom € 575.000 k.k.
  • Woonoppervlakte ca. 84 m2
  • Aantal slaapkamers 2
  • Bouwjaar 1931

Overdracht

  • Aanvaarding In overleg

Bouwvorm & onderhoud

  • Soort object Twee onder een kapwoning
  • Soort woning Eengezinswoning
  • Bouwjaar 1931
  • Soort bouw woonhuis
  • Ligging Aan water, aan rustige weg, vrij uitzicht, landelijk gelegen

Oppervlakte & inhoud

  • Gebruiksoppervlakte 84m2
  • Perceeloppervlakte 425m2
  • Inhoud 346m3
  • Aantal kamers 4
  • Aantal slaapkamers 2
  • Aantal woonlagen 3 woonlagen
  • Overige inpandige ruimte 6m2

Energie & installatie

  • Energielabel E
  • Isolatie Dakisolatie, vloerisolatie, gedeeltelijk dubbel glas, voorzetramen
  • Verwarming Cv ketel
  • Warm water Cv ketel
  • C.v.-ketel type GAS
  • C.v.-ketel bouwjaar 2007
  • Energie einddatum 2035-10-31

Bergruimte

  • Schuur / berging Vrijstaand hout
  • Voorzieningen Voorzien van elektra

Parkeergelegenheid

  • Parkeerfaciliteiten Openbaar parkeren, op eigen terrein
  • Garage Geen garage

Dak

  • Soort dak Zadeldak

Overig

  • Onderhoud binnen Matig tot redelijk
  • Onderhoud buiten Redelijk
  • Permanente bewoning Ja
  • Huidig gebruik Woonruimte
  • Huidige bestemming Woonruimte

Voorzieningen

  • Voorzieningen Buitenzonwering, airconditioning, rookkanaal

Buitenruimte

  • Hoofdtuin ACHTERTUIN
  • Oppervlakte hoofdtuin 86m2
  • Ligging hoofdtuin NOORDOOST
  • Kwaliteit tuin Normaal

Kadastrale gegevens

  • Perceelnummer 6500
  • Perceeloppervlakte 425
Meer kenmerken

Ontdek online wat jouw huis waard is

Met de online waardecheck ontdek je in een paar minuten de geschatte waarde van jouw huis!

Gratis waardecheck

In de buurt

Geïnteresseerd?

Bel met WoonSchuijt Makelaars

shape

Stuur een bericht

* Maximaal 255 tekens
privacyverklaring