Chat with us, powered by LiveChat Bachstraat 73, 2901 JX CAPELLE AAN DEN IJSSEL - WoonSchuijt Makelaars

Capelle Aan Den Ijssel

Bachstraat  73

€ 569.000,- k.k.

Omschrijving

- NIEUW IN DE VERKOOP - OP EEN WAANZINNIGE LOCATIE IN DE POPULAIRE WOONWIJK 'S-GRAVENLAND IS DEZE HOEKWONING GELEGEN. DE WONING BESCHIKT OVER 100 M², 3 SLAAPKAMERS, EEN OPEN ZOLDER EN EEN FRAAIE ACHTERTUIN AAN HET WATER. HIER KAN JE OPTIMAAL GENIETEN VAN ALLE RUST EN PRIVACY! LAAT DEZE KANS NIET LOPEN EN NEEM CONTACT OP VOOR HET MAKEN VAN EEN AFSPRAAK. HEERLIJK…

- NIEUW IN DE VERKOOP -
OP EEN WAANZINNIGE LOCATIE IN DE POPULAIRE WOONWIJK 'S-GRAVENLAND IS DEZE HOEKWONING GELEGEN. DE WONING BESCHIKT OVER 100 M², 3 SLAAPKAMERS, EEN OPEN ZOLDER EN EEN FRAAIE ACHTERTUIN AAN HET WATER. HIER KAN JE OPTIMAAL GENIETEN VAN ALLE RUST EN PRIVACY! LAAT DEZE KANS NIET LOPEN EN NEEM CONTACT OP VOOR HET MAKEN VAN EEN AFSPRAAK.

HEERLIJK FAMILIEHUIS:
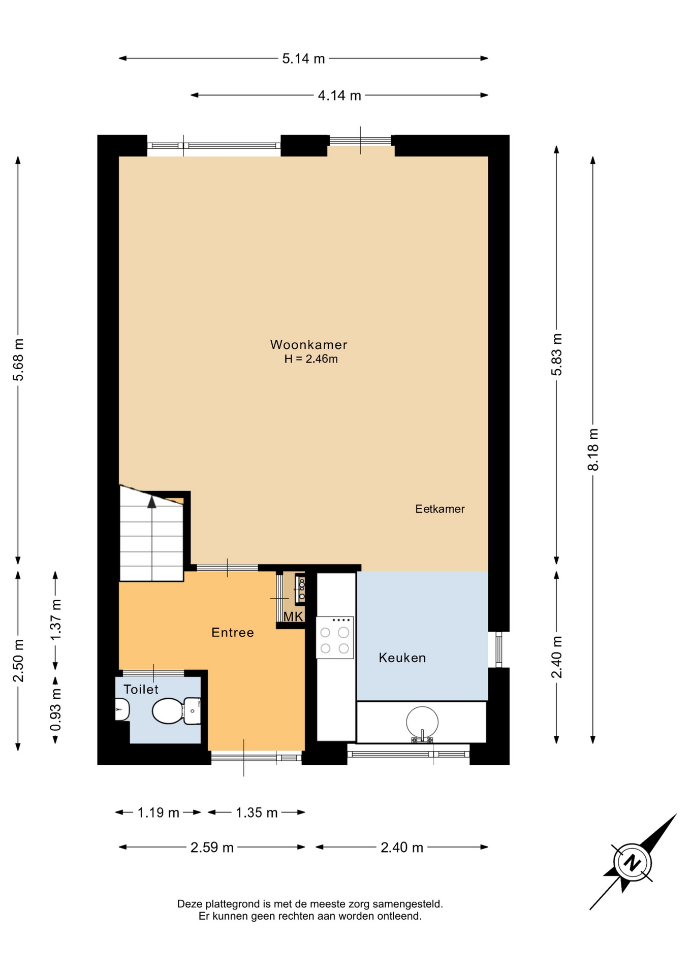
De woning beschikt over 100 m² woonoppervlakte wat verdeeld is over 3 woonlagen. Op de begane grond is een ruime entree met het toilet, de meterkast en de trapopgang naar de eerste verdieping. Lichte tuingerichte woonkamer aan de achterzijde van de woning die door de raampartijen een fraai zicht over de tuin biedt. De open keuken is gelegen aan de voorzijde en beschikt over de benodigde inbouwapparatuur.

Middels de trap vanuit de hal is er toegang tot de eerste verdieping. Hier zijn 3 slaapkamers en de moderne badkamer. Op de 2e verdieping is nog een open ruimte te vinden. Optioneel is het mogelijk om hier een extra slaapkamer te realiseren. Hier is tevens de aansluitingen voor de wasmachine, droger en de cv-ketel te vinden.

PARKEREN OP EIGEN TERREIN:
Het zoeken naar een parkeerplaats is bij deze woning verleden tijd. Aan de voorzijde van de woning is een ruime oprit aanwezig waar de auto geparkeerd kan worden. Ideaal voor het eventueel opladen van de elektrische auto. Achter de woning is een heerlijke tuin te vinden. Deze is gelegen op het Noordwesten en biedt dus tot laat de zon. Door de diepte van de tuin kan er vroeg in de middag ook heerlijk van de zon genoten worden. Verder beschikt de tuin over een berging, buitenkraan en een achterom.

FIJNE LIGGING IN ’S-GRAVENLAND:
Rustige woonstraat met alles in de buurt. De Bachstraat is een rustige straat midden in de wijk ’s-Gravenland, een van de populairste woonwijken van Capelle aan den IJssel. De straat is ruim opgezet met veel groen, een speeltuintje en goede voorzieningen in de directe omgeving. Op loopafstand vind je winkels, basisscholen, kinderopvang en sportverenigingen. Ook metrostation Capelsebrug is snel bereikbaar maar 5 minuten lopen, waardoor je met het openbaar vervoer binnen een kwartier in hartje Rotterdam bent. Met de auto zit je zo op de A16 of A20. Parkeren kan gratis in de straat.

BIJZONDERHEDEN:
- Gelegen in de kindvriendelijke woonwijk 's-Gravenland;
- Bouwjaar 1994;
- 100 m² woonoppervlakte;
- Ruime hoekwoning op een perceel van 258 m²;
- Er ligt vloerverwarming als bijverwarming in de woonkamer;
- 3 slaapkamers op de eerste verdieping;
- Open zolder welke nog mogelijkheden biedt;
- Fraaie zij- en achtertuin gelegen aan het water;
- Berging in de voor- en achtertuin aanwezig;
- Parkeren op eigen terrein;
- Verwarming en warm water middels cv-ketel (2010);
- Energielabel B, welke geldig is tot 21-01-2036;
- Let op, er wordt en ouderdoms-, asbest- en niet-zelfbewoningsclausule opgenomen in de koopovereenkomst;
- Oplevering: in overleg.

INTERESSE? MAAK DAN SNEL EEN AFSPRAAK!
Ons advies is om bij het kopen van je nieuwe huis je eigen NVM-makelaar mee te nemen.

TOELICHTINGSCLAUSULE NEN2580
De Meetinstructie is gebaseerd op de NEN2580. De Meetinstructie is bedoeld om een meer eenduidige manier van meten toe te passen voor het geven van een indicatie van de gebruiksoppervlakte. De Meetinstructie sluit verschillen in meetuitkomsten niet volledig uit, door bijvoorbeeld interpretatieverschillen, afrondingen of beperkingen bij het uitvoeren van de meting.

KOOPOVEREENKOMST PAS RECHTSGELDIG NA ONDERTEKENING
Een mondelinge overeenstemming tussen de particuliere verkoper en de particuliere koper is niet rechtsgeldig. Met andere woorden: er is geen koop. Er is pas sprake van een rechtsgeldige koop als de particuliere verkoper en de particuliere koper de koopovereenkomst hebben ondertekend. Dit vloeit voort uit artikel 7:2 Burgerlijk Wetboek. Een bevestiging van de mondelinge overeenstemming per e-mail of een toegestuurd concept van de koopovereenkomst wordt overigens niet gezien als een 'ondertekende koopovereenkomst'

“Deze informatie is door ons met de nodige zorgvuldigheid samengesteld. Onzerzijds wordt echter geen enkele aansprakelijkheid aanvaard voor enige onvolledigheid, onjuistheid of anderszins, dan wel de gevolgen daarvan. Alle opgegeven maten en oppervlakten zijn indicatief.”

Kenmerken

Basiskenmerken

  • Status Beschikbaar
  • Koopsom € 569.000 k.k.
  • Woonoppervlakte ca. 100 m2
  • Aantal slaapkamers 4
  • Bouwjaar 1994

Overdracht

  • Aanvaarding In overleg

Bouwvorm & onderhoud

  • Soort object Hoekwoning
  • Soort woning Eengezinswoning
  • Bouwjaar 1994
  • Soort bouw woonhuis
  • Ligging Aan water, aan rustige weg, in woonwijk

Oppervlakte & inhoud

  • Gebruiksoppervlakte 100m2
  • Perceeloppervlakte 258m2
  • Inhoud 355m3
  • Aantal kamers 5
  • Aantal slaapkamers 4
  • Aantal woonlagen 3 woonlagen

Energie & installatie

  • Energielabel B
  • Isolatie Dakisolatie, muurisolatie, vloerisolatie, dubbel glas
  • Verwarming Cv ketel, vloerverwarming gedeeltelijk
  • Warm water Cv ketel
  • C.v.-ketel type GAS
  • C.v.-ketel bouwjaar 2010
  • Energie einddatum 21-01-2036

Bergruimte

  • Schuur / berging Aangebouwd steen
  • Voorzieningen Voorzien van elektra

Parkeergelegenheid

  • Parkeerfaciliteiten Openbaar parkeren, op eigen terrein
  • Garage Geen garage

Dak

  • Soort dak Zadeldak

Overig

  • Onderhoud binnen Goed
  • Onderhoud buiten Goed
  • Bijzonderheden Gedeeltelijk gestoffeerd
  • Permanente bewoning Ja
  • Huidig gebruik Woonruimte
  • Huidige bestemming Woonruimte

Voorzieningen

  • Voorzieningen Mechanische ventilatie, tv kabel, buitenzonwering, dakraam, glasvezel kabel, natuurlijke ventilatie

Buitenruimte

  • Kwaliteit tuin Normaal

Kadastrale gegevens

  • Perceelnummer 1285
  • Perceeloppervlakte 258 m2
Meer kenmerken
Ontdek online wat jouw huis waard is

Met de online waardecheck ontdek je in een paar minuten de geschatte waarde van jouw huis!

Gratis waardecheck

In de buurt

Geïnteresseerd?

Bel met WoonSchuijt Makelaars

shape

Stuur een bericht

* Maximaal 255 tekens
privacyverklaring