Chat with us, powered by LiveChat Aarhuispad 83, 3067 PR ROTTERDAM - WoonSchuijt Makelaars

Rotterdam

Aarhuispad  83

€ 350.000,- k.k.

Omschrijving

Instapklaar wonen met ruimte, licht en een fijne ligging in Prins Alexander Ben je op zoek naar een woning waar je zó in kunt? Dan is deze verrassend ruime 4-kamer maisonnette (2e en 3e verdieping) precies wat je zoekt. Met een lichte woonkamer, een royale eetkeuken, drie volwaardige slaapkamers én een zonnig balkon biedt deze woning alles voor comfortabel wonen. De…

Instapklaar wonen met ruimte, licht en een fijne ligging in Prins Alexander

Ben je op zoek naar een woning waar je zó in kunt? Dan is deze verrassend ruime 4-kamer maisonnette (2e en 3e verdieping) precies wat je zoekt. Met een lichte woonkamer, een royale eetkeuken, drie volwaardige slaapkamers én een zonnig balkon biedt deze woning alles voor comfortabel wonen.

De woning is netjes onderhouden en heeft een praktische indeling, waardoor je hier direct kunt genieten zonder te hoeven klussen. Gelegen in een rustige, groene en kindvriendelijke woonomgeving met alle voorzieningen binnen handbereik.

Indeling

Begane grond
Verzorgd portiek met brievenbussen en toegang tot het trappenhuis.

Tweede verdieping
Via de entree kom je in de hal met toegang tot de woonkamer, een slaapkamer, het toilet en de trap naar boven.
De lichte woonkamer heeft een prettige sfeer en geeft toegang tot het balkon — een fijne plek om buiten te zitten.

De ruime eetkeuken is praktisch ingericht en voorzien van diverse inbouwapparatuur en volop kastruimte. Hier is voldoende plek voor een gezellige eethoek.

Aan de voorzijde bevindt zich de eerste slaapkamer, ideaal als werk-, logeer- of kinderkamer. Het toilet is volledig betegeld en netjes uitgevoerd.

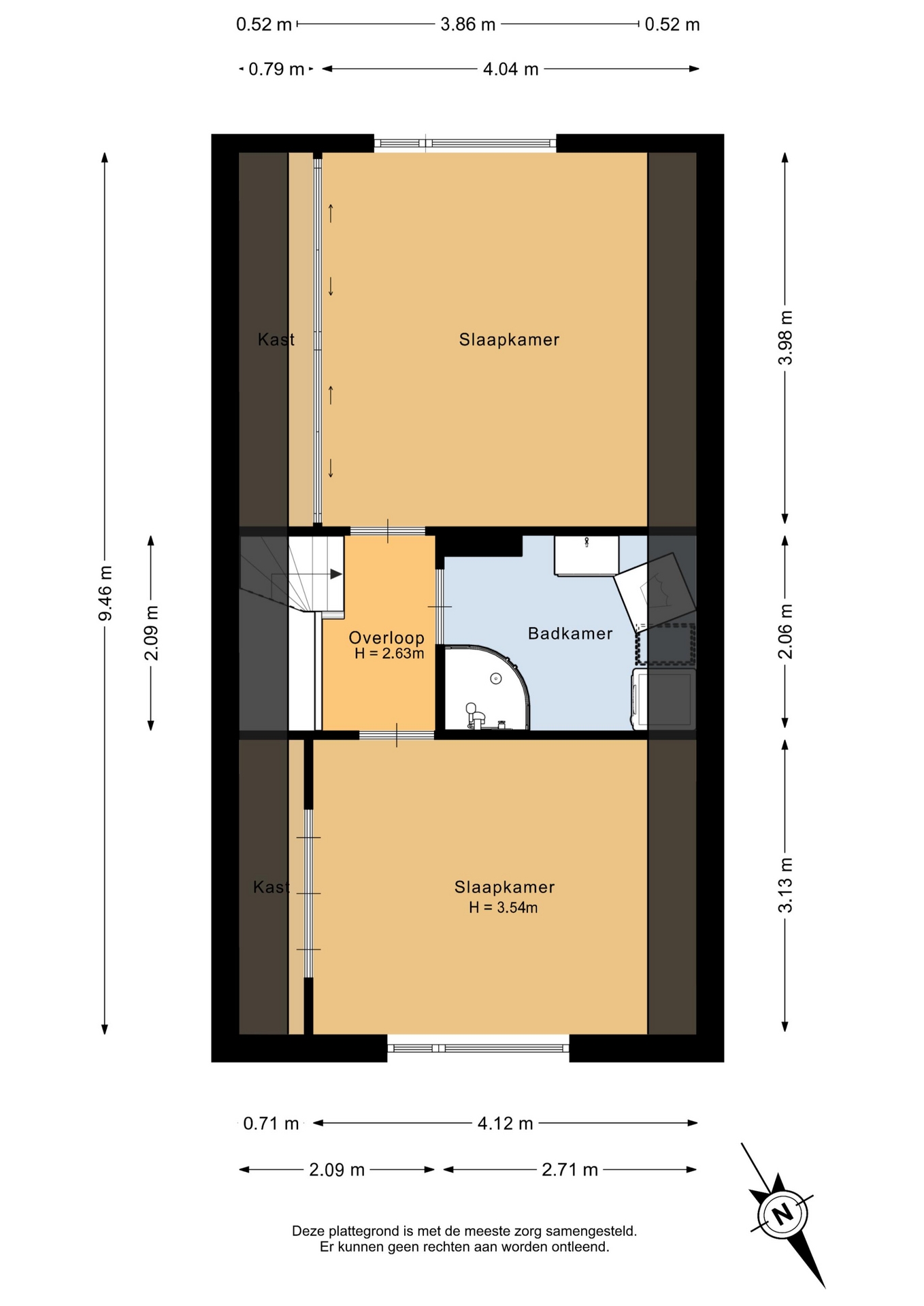
Derde verdieping
De overloop geeft toegang tot twee ruime slaapkamers en de badkamer.
Beide slaapkamers zijn goed van formaat en voorzien van handige vaste kastruimte onder het schuine dak.

De badkamer is compleet uitgevoerd met een douche (voorzien van rainshower), wastafelmeubel, wasmachine- en drogeraansluiting en een dakraam voor natuurlijk licht en ventilatie.

Buitenruimte
Het balkon biedt een prettig uitzicht en is een fijne plek om even tot rust te komen.

Omgeving
De ligging is ideaal: rustig wonen met alle voorzieningen dichtbij. Op loopafstand vind je winkelcentrum Alexandrium, openbaar vervoer (trein, metro en bus), het Schollebos en diverse sportvoorzieningen. Ook de uitvalswegen (A16 en A20) zijn snel bereikbaar.

Bijzonderheden

Woonoppervlakte ca. 98 m²
Drie volwaardige slaapkamers
Ruime eetkeuken
Balkon
Externe berging in de onderbouw
Actieve VvE, bijdrage ca. €160,- per maand
Verwarming en warm water via stadsverwarming
Energielabel C
Bouwjaar ca. 1981
Erfpacht t/m 30-03-2055 (canon afgekocht t/m 31-03-2030)
Voldoende (gratis) parkeergelegenheid voor de deur

INTERESSE? MAAK DAN SNEL EEN AFSPRAAK!
Ons advies is om bij het kopen van je nieuwe huis je eigen NVM-makelaar mee te nemen.

TOELICHTINGSCLAUSULE NEN2580:
De Meetinstructie is gebaseerd op de NEN2580. De Meetinstructie is bedoeld om een meer eenduidige manier van meten toe te passen voor het geven van een indicatie van de gebruiksoppervlakte. De Meetinstructie sluit verschillen in meetuitkomsten niet volledig uit, door bijvoorbeeld interpretatieverschillen, afrondingen of beperkingen bij het uitvoeren van de meting.

“Deze informatie is door ons met de nodige zorgvuldigheid samengesteld. Onzerzijds wordt echter geen enkele aansprakelijkheid aanvaard voor enige onvolledigheid, onjuistheid of anderszins, dan wel de gevolgen daarvan. Alle opgegeven maten en oppervlakten zijn indicatief.”

KOOPOVEREENKOMST PAS RECHTSGELDIG NA ONDERTEKENING:
Een mondelinge overeenstemming tussen de particuliere verkoper en de particuliere koper is niet rechtsgeldig. Met andere woorden: er is geen koop. Er is pas sprake van een rechtsgeldige koop als de particuliere verkoper en de particuliere koper de koopovereenkomst hebben ondertekend. Dit vloeit voort uit artikel 7:2 Burgerlijk Wetboek. Een bevestiging van de mondelinge overeenstemming per e-mail of een toegestuurd concept van de koopovereenkomst wordt overigens niet gezien als een 'ondertekende koopovereenkomst'.

Kenmerken

Basiskenmerken

  • Status Beschikbaar
  • Koopsom € 350.000 k.k.
  • Woonoppervlakte ca. 95 m2
  • Aantal slaapkamers 3
  • Bouwjaar 1981

Overdracht

  • Aanvaarding In overleg

Bouwvorm & onderhoud

  • Bouwjaar 1981
  • Soort bouw woonhuis
  • Ligging Aan rustige weg, in woonwijk

Oppervlakte & inhoud

  • Gebruiksoppervlakte 95m2
  • Inhoud 318m3
  • Aantal kamers 3
  • Aantal slaapkamers 3
  • Aantal woonlagen 2 woonlagen

Energie & installatie

  • Energielabel C
  • Isolatie Dubbel glas
  • Verwarming Stadsverwarming
  • Warm water Stadsverwarming
  • Energie einddatum 16-12-2030

Bergruimte

  • Schuur / berging Box

Parkeergelegenheid

  • Parkeerfaciliteiten Openbaar parkeren
  • Garage Geen garage

Dak

  • Soort dak Zadeldak

Overig

  • Onderhoud binnen Goed
  • Onderhoud buiten Goed
  • Bijzonderheden Gedeeltelijk gestoffeerd
  • Permanente bewoning Ja
  • Huidig gebruik Woonruimte
  • Huidige bestemming Woonruimte

Voorzieningen

  • Voorzieningen Mechanische ventilatie

Kadastrale gegevens

  • Perceelnummer 6550
Meer kenmerken
Ontdek online wat jouw huis waard is

Met de online waardecheck ontdek je in een paar minuten de geschatte waarde van jouw huis!

Gratis waardecheck

In de buurt

Geïnteresseerd?

Bel met WoonSchuijt Makelaars

shape

Stuur een bericht

* Maximaal 255 tekens
privacyverklaring