Chat with us, powered by LiveChat Van Utrechtweg 124, 2921 LN Krimpen Aan Den IJssel WoonSchuijt Makelaars

Krimpen Aan Den Ijssel

Van Utrechtweg  124

€ 1.500,- p/m

Omschrijving

LICHTE BEDRIJFSHAL 90 M² MET INFRAROOD WARMTEPANELEN (autobedrijven zijn hier NIET toegestaan) De klimaatbeheersing in deze bedrijfsruimte is uitstekend op orde. De ruimte is voorzien van meerdere infraroodpanelen, wat zorgt voor een comfortabele en efficiënte verwarming. Daarnaast is een systeemplafond aangebracht, hetgeen bijdraagt aan een nette uitstraling en een…

LICHTE BEDRIJFSHAL 90 M² MET INFRAROOD WARMTEPANELEN (autobedrijven zijn hier NIET toegestaan)

De klimaatbeheersing in deze bedrijfsruimte is uitstekend op orde. De ruimte is voorzien van meerdere infraroodpanelen, wat zorgt voor een comfortabele en efficiënte verwarming. Daarnaast is een systeemplafond aangebracht, hetgeen bijdraagt aan een nette uitstraling en een prettige akoestiek.

Kortom: een aangename en comfortabele werkplek waar u het hele jaar door prettig kunt ondernemen.

De bedrijfsruimte beschikt bovendien over vier (4) eigen parkeerplaatsen op eigen terrein, wat zorgt voor optimaal gebruiksgemak voor u en uw bezoekers.

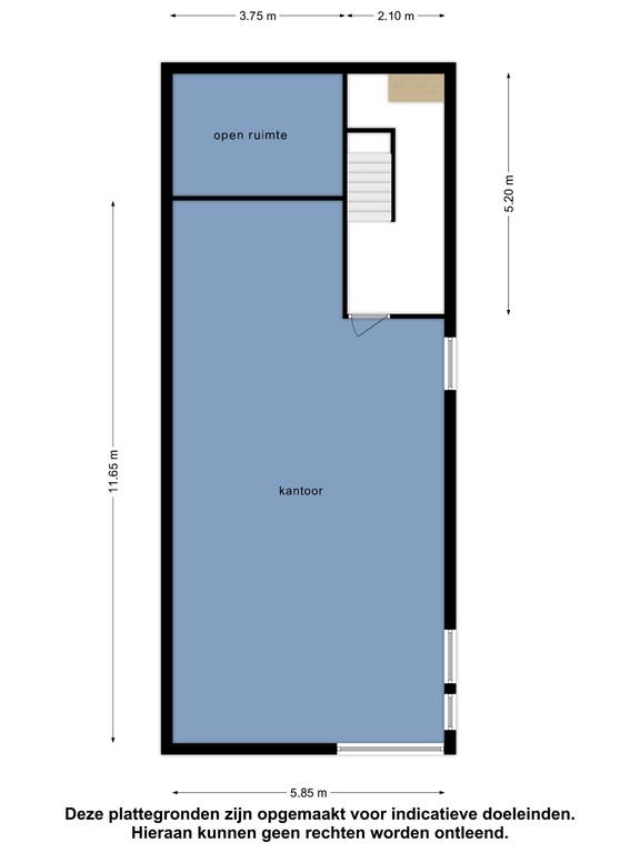
RIANT EN LICHT KANTOOR VAN 75 M² MET AIRCO EN KEUKEN.
Deze kantoorruimte biedt genoeg plaats om 8 werkplekken te realiseren. Ook is er een kleine keuken met kookplaat, koelkast etc. Aan drie zijden zijn er ramen, er is airco en mechanische ventilatie, naast een traditionele CV installatie. Een fijne werkplek met veel lichtinval.

ZONNEENERGIE.
Op het dak liggen 8 zonnepanelen, hiermee kunnen de airco en zonnepanelen worden gevoed op zonnige dagen.

BEREIKBAARHEID
Net over de Algrabrug en langs de N210 bevind zich het industriegebied "de Stormpolder". Op deze locatie vind u van het grote Hollandia en IHC tot aan de middenstand uit de bouw en industrie." Het industriegebied is prima te bereiken via een goede busverbinding naar metro Capelsebrug en Gouda, de waterbus richting de Drechtsteden en Rotterdam alsook met de auto via de N210.

OPLEVERING
- Elektrische overheaddeur met transparante panelen; ca. 3m breed x 4m hoog
- Volledig zonnescherm. Ook om zicht naar binnen te beperken.
- Glasvezel internetaansluiting aanwezig
- Zonnepanelen 8 stuks ca. 2710 KWH
- betonvloer ca. 1.500 kg per m² maximale vloerbelasting
- Gedeeltelijk infrarood verwarming beneden
- CV verwarming boven
- Airco boven
- toilet beneden
- keuken boven
- 4 parkeerplekken op eigen terrein.

SERVICEKOSTEN
- Onderhoud brandblussers
- Onderhoud CV
- Onderhoud Overheaddeur
- Gebruik zonnepanelen
Servicekosten € 150,- per maand, exclusief BTW

VOORWAARDEN
Huurprijs: € 1.500,- per maand, exclusief BTW.

Het gehuurde beschikt over eigen meters t.b.v. nutsvoorzieningen, huurder zal derhalve zelf overeenkomsten sluiten met de desbetreffende leveranciers.

Huurprijsaanpassing: jaarlijks zal de huurprijs worden herzien op basis van de wijziging van het maandprijsindexcijfer volgens de consumentenprijsindex (CPI) Alle Huishoudens (2015=100), gepubliceerd door het Centraal Bureau voor de Statistiek (CBS), mits dit geen verlaging tot gevolg heeft.

Huurbetaling: per maand vooruit.

Huurtermijn: een huurtermijn van 5 jaar geniet de voorkeur, korter is bespreekbaar.

Oplevering: in overleg.

Zekerheid: huurder dient binnen 1 week na ondertekening van de huurovereenkomst, maar uiterlijk een dag voor de datum van ingebruikname, aan verhuurder een bankgarantie c.q. waarborgsom te voldoen voor een betalingstermijn van 3 maanden, inclusief omzetbelasting.

B.T.W. status: verhuurder wenst alleen te verhuren aan bedrijven waarbij minimaal over 90% van de omzet BTW wordt betaald.

Huurovereenkomst: huurovereenkomst conform het standaard model van de Raad voor Onroerende Zaken (ROZ), zoals gehanteerd door de Nederlandse Vereniging voor Makelaars (NVM).

Voorbehoud: elke transactie behoeft de nadrukkelijke goedkeuring van eigenaar.

Algemeen: al het bovenstaande betreft informatie omtrent de verhuur van de Van Utrechtweg 124, 2921 LN KRIMPEN AAN DEN IJSSEL. Deze informatie is met zorg samengesteld, maar voor de juistheid ervan kan door Van Herk Bedrijfsmakelaars geen aansprakelijkheid worden aanvaard, noch aan de vermelde gegevens enig recht worden ontleend. Nadrukkelijk is vermeld dat deze informatieverstrekking niet als een aanbieding of offerte mag worden beschouwd.

Kenmerken

Basiskenmerken

  • Status Beschikbaar
  • Huurprijs € 1.500,- p/m
  • Servicekosten -
  • Aanvaarding In overleg

Bouwvorm & onderhoud

  • Hoofdfunctie Bedrijfsruimte
  • Soort bouw Bestaande bouw
  • Bouwjaar 1995

Oppervlakte & inhoud

  • Oppervlakte bedrijfshal 165 m2

Parkeergelegenheid

  • Parkeerfaciliteiten De bedrijfsruimte beschikt over vier (4) eigen parkeerplaatsen op eigen terrein, wat zorgt voor optimaal gebruiksgemak voor u en uw bezoekers.

Overig

  • Onderhoud binnen Uitstekend
  • Onderhoud buiten Uitstekend
Meer kenmerken

Media

In de buurt

Geïnteresseerd?

Bel met WoonSchuijt Makelaars

shape

Stuur een bericht

* Maximaal 255 tekens
privacyverklaring