Chat with us, powered by LiveChat Twijnstraweg 30, 2941 BW Lekkerkerk WoonSchuijt Makelaars

Lekkerkerk

Twijnstraweg 30

€ 100,- p/m

Omschrijving

Een eigen kantoorunit voor slechts €450,- per maand. Beschikbaar vanaf 21 m² Ben je op zoek naar een nette, betaalbare werkplek waar je direct aan de slag kunt? In dit verzorgde kantoorpand, dat in 2015 is gerenoveerd, zijn diverse kantoorunits beschikbaar vanaf 21 m². De ruimtes zijn netjes gestoffeerd, volledig gemeubileerd en klaar voor gebruik. Dat maakt deze units…

Een eigen kantoorunit voor slechts €450,- per maand. Beschikbaar vanaf 21 m²

Ben je op zoek naar een nette, betaalbare werkplek waar je direct aan de slag kunt? In dit verzorgde kantoorpand, dat in 2015 is gerenoveerd, zijn diverse kantoorunits beschikbaar vanaf 21 m². De ruimtes zijn netjes gestoffeerd, volledig gemeubileerd en klaar voor gebruik. Dat maakt deze units ideaal voor ondernemers of zzp’ers die op zoek zijn naar een praktische en representatieve werkplek zonder gedoe.

Naast de eigen kantoorruimte kun je gebruikmaken van een gezamenlijke spreekkamer, handig voor overleg of een klantgesprek. Voor de deur zijn enkele gemeenschappelijke parkeerplaatsen aanwezig, en mocht je extra ruimte nodig hebben, dan is er de mogelijkheid om een berging bij te huren.

Voor een scherpe prijs beschik je hier over een compleet en verzorgd kantoor, waar je professioneel kunt werken in een rustige, toegankelijke omgeving.

Huurprijzen per maand zijn incl. servicekosten excl. BTW
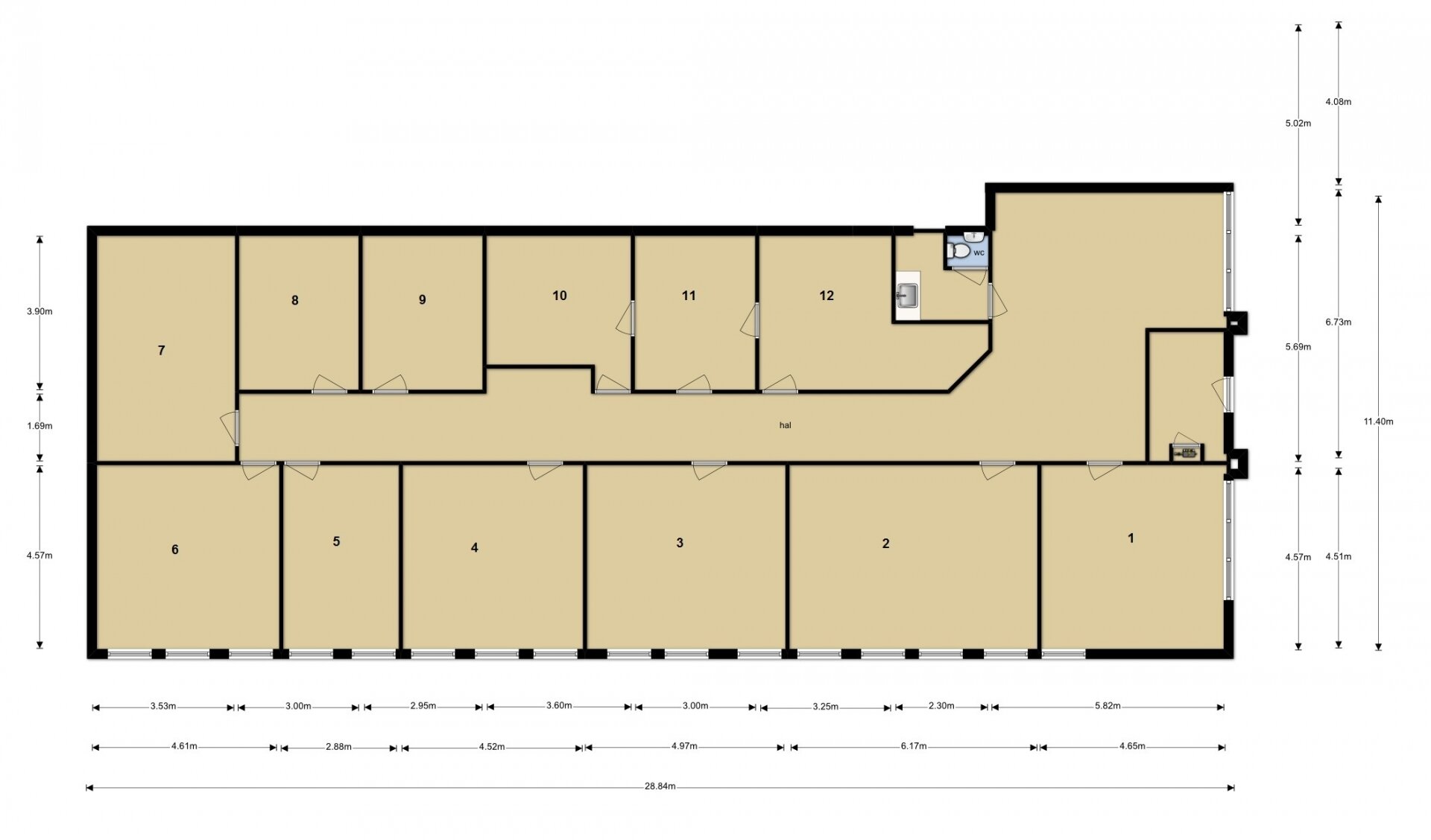
Kantoor 1 opp. 21,25 m²: VERHUURD
Kantoor 2 opp. 28,20 m²: VERHUURD
Kantoor 3 opp. 22,71 m²: VERHUURD
Kantoor 4 opp. 20,66 m²: € 450,00
Kantoor 5 opp. 13,16 m²: VERHUURD
Kantoor 6 opp. 21,07 m²: € 450,00

Berging 7 opp. 19,73 m²: VERHUURD
Berging 8 opp. 11,70 m²: VERHUURD
Berging 9 opp. 11,50 m²: VERHUURD
Berging 10 opp. 10,94 m²: € 100,00
Berging 11 opp. 11,70 m²: VERHUURD

In de huur is inbegrepen:
- onderhoud van installaties, zoals verwarming, mechanische ventilatie, brandbeveiliging, brandmelding;
- energieverbruik van de onder hierboven bedoelde installaties, meterhuur en meteropname;
- elektriciteitsverbruik in de gemeenschappelijke ruimten, waaronder begrepen vernieuwing van lampen, buizen en meterhuur;
- elektriciteits- en gasverbruik inclusief vastrecht in het gehuurde;
- schoonhouden van de gemeenschappelijke ruimten;
- brandmeldsysteem;
- wassen van de beglazing, kozijnen en afwasbare puien aan de buitenzijde van het gebouw, alsmede de beglazing van de entree en overige gemeenschappelijke ruimten;
- gemeenschappelijk waterverbruik;
- milieuheffing op afvalwater;
- onderhoud en reparatie hang- en sluitwerk buitendeuren; en groenvoorziening;
- gemeenschappelijke parkeerplaatsen voor de deur;
- verzorging huisvuil, containerhuur en dergelijke;
- assurantiepremie buitenbeglazing;
- andere voorzieningen en diensten, de redelijkerwijze geacht moeten worden in het belang van de huurders te zijn getroffen respectievelijk te worden verleend;
- administratiekosten van de bovengenoemde voorzieningen en diensten à 5 % van deze kosten;
- overige: optioneel is schoonmaken van het gehuurde tegen een meerprijs mogelijk.

Energielabel: E

Oplevering: gestoffeerd, 2 bureaus met stoelen en staande kast

Internet: in overleg

Bestemming: kantoor, geen detailhandel

Huurprijsaanpassing: De huurprijs wordt jaarlijks herzien op basis van de consumentenprijsindex (CPI) Alle Huishoudens (2015=100), gepubliceerd door het Centraal Bureau voor de Statistiek (CBS), mits dit geen verlaging tot gevolg heeft.

Huurbetaling: de betaling van de huurprijs, servicekosten (voorschot) en eventuele BTW geschiedt steeds per maand bij vooruitbetaling.

Huurtermijn: de huurovereenkomst wordt aangegaan voor een termijn van tenminste 1 jaar, met verlengingsperioden van telkens 1 jaar. In overleg zijn afwijkende termijnen bespreekbaar.

Zekerheid: huurder dient voor huuringangsdatum, maar uiterlijk een dag voor de datum van ingebruikname, aan verhuurder een waarborgsom te voldoen voor een betalingstermijn van 3 maanden huur, inclusief servicevoorschot en omzetbelasting.

BTW-status: verhuurder wenst te opteren voor BTW-belaste huur en verhuur. Ingeval huurder de BTW niet kan verrekenen, zal de huurprijs in overleg met huurder worden verhoogd ter compensatie van de gevolgen van het vervallen van de mogelijkheid om te opteren voor BTW-belaste verhuur.

Huurovereenkomst: huurovereenkomst wordt opgesteld conform het standaard model van de Raad voor Onroerende Zaken (ROZ), model 2015, zoals gehanteerd door de Nederlandse Vereniging voor Makelaars (NVM), aangevuld met locatie specifieke- en verhuurdersbepalingen.

Voorbehoud: elke transactie behoeft de nadrukkelijke goedkeuring van eigenaar.

Algemeen: al het bovenstaande betreft informatie omtrent de verhuur van de Twijnstraweg 30, Lekkerkerk. Deze informatie is met zorg samengesteld, maar voor de juistheid ervan kan door Van Herk Bedrijfsmakelaars geen aansprakelijkheid worden aanvaard, noch aan de vermelde gegevens enig recht worden ontleend. Nadrukkelijk is vermeld dat deze informatieverstrekking niet als een aanbieding of offerte mag worden beschouwd.

Kenmerken

Basiskenmerken

  • Status Beschikbaar
  • Huurprijs € 100,- p/m
  • Servicekosten -
  • Aanvaarding In overleg

Bouwvorm & onderhoud

  • Hoofdfunctie Kantoorruimte
  • Soort bouw Bestaande bouw
  • Bouwjaar 1972

Oppervlakte & inhoud

  • Oppervlakte kantoor ca. 21 m2
  • Oppervlakte kantoor ca. 21 m2

Parkeergelegenheid

  • Parkeerfaciliteiten aan voorzijde

Overig

  • Onderhoud binnen Goed tot uitstekend
  • Onderhoud buiten Goed tot uitstekend
Meer kenmerken

Media

In de buurt

Geïnteresseerd?

Bel met WoonSchuijt Makelaars

shape

Stuur een bericht

* Maximaal 255 tekens
privacyverklaring