Chat with us, powered by LiveChat 's-Gravenweg 178, 2902 LG Capelle Aan Den IJssel WoonSchuijt Makelaars

Capelle Aan Den Ijssel

's-Gravenweg 178

€ 1.795.000,- k.k.

Omschrijving

ONDERNEMEN AAN DE 'S GRAVENWEG.... WIE DROOMT ER NIET VAN?! WELLICHT IS DIT UW KANS OM IN DIT PRACHTIGE HISTORISCHE PAND UW WENSEN TE VERWEZELIJKEN. OP EEN KAVEL VAN MAAR LIEFST 3.600 M², MET EEN MAXIMAAL TE BENUTTEN BEGANE GROND EN EERSTE VERDIEPING IS EEN VLOEROPPERVLAK CA. 460 M² REALISEERBAAR! DAARNAAST BIEDT DEZE UNIEKE LOCATIE NOG VEEL MEER: NAAST DE BOERDERIJ /…

ONDERNEMEN AAN DE 'S GRAVENWEG.... WIE DROOMT ER NIET VAN?!

WELLICHT IS DIT UW KANS OM IN DIT PRACHTIGE HISTORISCHE PAND UW WENSEN TE VERWEZELIJKEN.
OP EEN KAVEL VAN MAAR LIEFST 3.600 M², MET EEN MAXIMAAL TE BENUTTEN BEGANE GROND EN EERSTE VERDIEPING IS EEN VLOEROPPERVLAK CA. 460 M² REALISEERBAAR!

DAARNAAST BIEDT DEZE UNIEKE LOCATIE NOG VEEL MEER:
NAAST DE BOERDERIJ / HET HOOFDGEBOUW, BIEDT HET VOORMALIGE KOETSHUIS NOG EENS EEN EXTRA RUIMTE VAN CA. 155 M², WELKE NAAR EIGEN IDEE KAN WORDEN INGEVULD.
DIT ALLES BEVINDT ZICH OP EEN LANDELIJKE, DOCH CENTRALE LOCATIE.

'S-GRAVENWEG 178:
Menigeen is wel bekend met dit adres, beter bekend als het gerenommeerde restaurant 'de Dorsvlegel' van weleer.
Na vele jaren als restaurant in gebruik te zijn geweest, staat deze prachtige boerderij met koetshuis nu te koop.

De kavel van 3.600 m² betreft eigen grond.
De achtergelegen, aangrenzende kavel van ca. 1.200 m² betreft pachtgrond welke wordt aangeboden vanuit de gemeente.
Het kavel is vanaf de 's-Gravenweg bereikbaar via een eigen brug.

De boerderij / het hoofdgebouw / voormalig restaurant meet op de begane grond een vloeroppervlak van ca. 212 m², een zij entree van ca. 16 m² en een aangrenzend, dichte keuken van ca. 55 m² (inclusief bijkeuken en provisieruimte).
Middels openslaande deuren is er vanuit de boerderij toegang tot het riante terras, plus naastgelegen parkeer terrein aan de achterzijde.

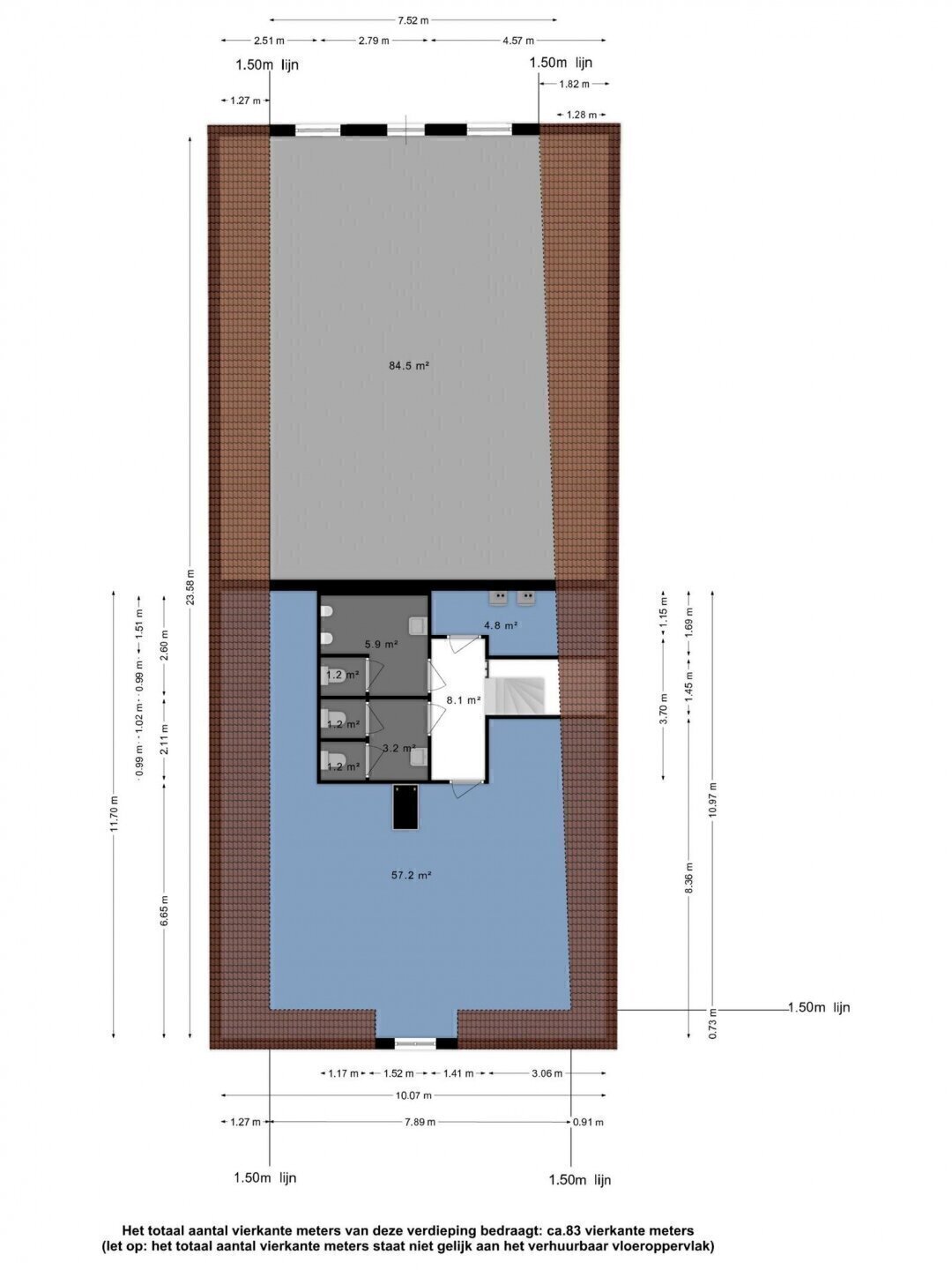
Vanuit de voormalige opkamer, gelegen aan de voorzijde van de boerderij, is er middels een trap toegang tot de kelder van ca. 24 m².

De bovengelegen etage is vanuit de hal bereikbaar.
Boven aangekomen treffen we een ruime hal / overloop (ca. 8 m²) met toegang tot diverse sanitaire voorzieningen, een stookruimte en een gehele open etage van ca. 57 m².
Naast deze enorme ruimte op de eerste etage, is er aan de achterzijde via een buiten luik nog een extra ruimte van ca. 95 m² te vinden. Deze eenvoudig ingerichte ruimte kan na herindeling bij de het overige vloeroppervlak van de eerste etage getrokken worden, waardoor er nóg meer vloeroppervlak gecreëerd kan worden.

Het voormalige koetshuis, officieel niet meegerekend in het aantal vierkante meters vloeroppervlak, is voor diverse doeleinden in te richten (ca. 155 m²).
Boven dit koetshuis bevindt zich een voormalige zolder, welke in de loop der jaren als opslagruimte dienst deed.

Overall biedt deze locatie veel parkeerruimte (ca. 69 parkeerplaatsen) aan zowel voor- als achterzijde en een riant terras plus heerlijke achtertuin op het zuiden.

Kortom een unieke buitenkans om, met behoud van originele details, deze boerderij om te toveren tot een schitterende parel aan de 's-Gravenweg!

BELANGRIJK OM TE WETEN:
Deze statige boerderij betreft een beeld bepalend object binnen de gemeente Capelle aan den IJssel.
Dit betekent dat de voorgevel van de boerderij in de huidige staat behouden dient te blijven.
Dit adres draagt het energielabel A.
Warm water en verwarming geschiedt middels een C.V. installatie.
Voor het gebruik van de circa 1.200 m² gemeente grond wordt thans € 710,60 per jaar betaald

TOELICHTINGSCLAUSULE NEN2580
De Meetinstructie is gebaseerd op de NEN2580. De Meetinstructie is bedoeld om een meer eenduidige manier van meten toe te passen voor het geven van een indicatie van de gebruiksoppervlakte. De Meetinstructie sluit verschillen in meetuitkomsten niet volledig uit, door bijvoorbeeld interpretatieverschillen, afrondingen of beperkingen bij het uitvoeren van de meting.

“Deze informatie is door ons met de nodige zorgvuldigheid samengesteld. Onzerzijds wordt echter geen enkele aansprakelijkheid aanvaard voor enige onvolledigheid, onjuistheid of anderszins, dan wel de gevolgen daarvan. Alle opgegeven maten en oppervlakten zijn indicatief.”

Kenmerken

Basiskenmerken

  • Status Beschikbaar
  • Koopprijs € 1.795.000,- k.k.
  • Servicekosten -
  • Aanvaarding Direct

Bouwvorm & onderhoud

  • Hoofdfunctie Horeca
  • Soort bouw Bestaande bouw
  • Bouwjaar 1900

Parkeergelegenheid

  • Parkeerfaciliteiten Er is genoeg ruimte om 50 auto's te parkeren op eigen terrein.

Overig

  • Onderhoud binnen Goed
  • Onderhoud buiten Goed
Meer kenmerken

In de buurt

Geïnteresseerd?

Bel met WoonSchuijt Makelaars

shape

Stuur een bericht

* Maximaal 255 tekens
privacyverklaring