Chat with us, powered by LiveChat Noordhaven 60, 4761 DB ZEVENBERGEN WoonSchuijt Makelaars

Zevenbergen

Noordhaven  60

€ 310.000,- k.k.

Omschrijving

WINKELRUIMTE MET MOGELIJKHEDEN AAN DE HAVEN Aan de levendige en karakteristieke Noordhaven, midden in het centrum van Zevenbergen, ligt deze winkelruimte met volop mogelijkheden. Met een frontbreedte van bijna 4 meter, een netto winkelvloer van circa 62 m² én meerdere verdiepingen voor opslag, kantoor of andere invullingen, is dit pand geschikt voor allerlei ondernemers.…

WINKELRUIMTE MET MOGELIJKHEDEN AAN DE HAVEN
Aan de levendige en karakteristieke Noordhaven, midden in het centrum van Zevenbergen, ligt deze winkelruimte met volop mogelijkheden. Met een frontbreedte van bijna 4 meter, een netto winkelvloer van circa 62 m² én meerdere verdiepingen voor opslag, kantoor of andere invullingen, is dit pand geschikt voor allerlei ondernemers. De ligging aan de winkelstraat met uitzicht op de haven zorgt voor veel zichtbaarheid en een prettige looproute. Een veelzijdige plek voor detailhandel, dienstverlening of kleinschalige horeca (categorie 1a en 1b) – toegestaan binnen het actuele bestemmingsplan.

FUNCTIONELE INDELING MET MEERDERE VERDIEPINGEN
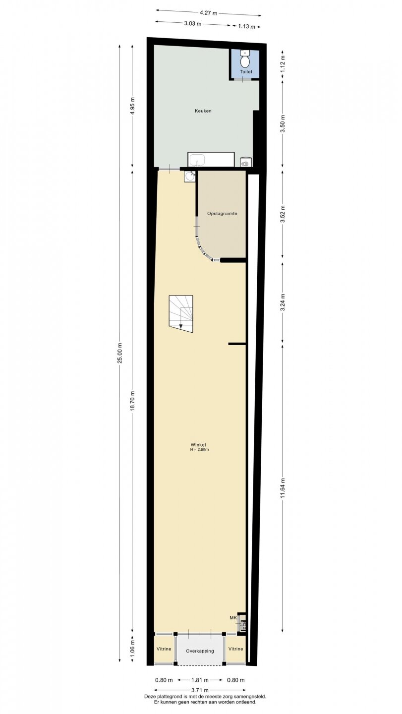
De winkelruimte op de begane grond is diep (ca. 18 meter) en praktisch ingedeeld met systeemplafond, tegelvloer, airco-unit en een brede entree met dubbele glazen deuren en vitrines. Achter in het pand bevindt zich een pantry/keuken, toilet en extra opslagruimte. Een vaste spiltrap leidt naar de eerste verdieping. Hier vind je een royale ruimte van ca. 40 m², ideaal als kantoor, opslag of magazijn, met toegang tot een groot dakterras van ruim 40 m², een verrassende extra. Op de tweede verdieping bevindt zich een zolderruimte met stahoogte (2,00 m in de nok), wat extra opslagmogelijkheden biedt. De totale netto gebruiksoppervlakte van het object bedraagt circa 156 m².

ZICHTLOCATIE IN BRUISEND HART VAN ZEVENBERGEN
De ligging aan de Noordhaven is absoluut een pluspunt. Deze straat is recent heringericht en vormt een sfeervolle verbinding tussen horeca, winkels en het waterrijke centrum van Zevenbergen. Recht voor de deur ligt het terras van een populair restaurant en op steenworp afstand zijn onder meer speciaalzaken, een supermarkt, cafés en andere winkels te vinden. De locatie van het pand is centraal gelegen t.o.v. overige voorzieningen en aantrekkelijk voor voetgangers, wat zorgt voor een constante stroom aan passanten. De bereikbaarheid is goed; parkeren kan in de straat (blauwe zone max. 2 uur) en de locatie is eenvoudig bereikbaar vanaf de randweg rond Zevenbergen.

BESTEMMING:
Conform het vigerende bestemmingsplan luidt de bestemming centrumfunctie en derhalve te gebruiken voor:
a. indien het functies betreft die worden uitgeoefend op de begane grondlaag van gebouwen:
- detailhandel;
- dienstverlening;
- horecabedrijven van categorie 1a en 1b van de Staat van Horeca-activiteiten en overige bestaande horeca;
- maatschappelijke voorzieingen;
- culturele voorzieningen;
- opslag ten behoeve van bovengenoemde functies;
b. indien het functies betreft die worden uitgeoefend op de verdiepingen van gebouwen:
- kantoren;
- opslag en/of sanitaire voorzieningen ten dienste van en in directe relatie met de onder a genoemde functies;

KENMERKEN OP EEN RIJ
Vraagprijs: € 310.000,- k.k.
Ligging: Noordhaven, centrum Zevenbergen
Oriëntatie voorzijde: west (middag- en avondzon)
Verhuurbaar vloeroppervlak totaal: ca. 154 m²
Begane grond: ca. 89 m² (waarvan winkelruimte ca. 62 m²)
Eerste verdieping: ca. 52 m²
Zolder: ca. 13 m² opslag
Perceeloppervlak: ca. 133 m²
Aantal verdiepingen: 3
Extra’s: dakterras van ca. 40 m², airco-unit, pantry en toilet

PARKEERVOORZIENINGEN:
In de Noordhaven en directe omgeving is ruim voldoende parkeergelegenheid aanwezig, met een parkeerzone van maximaal 2 uur. Daarnaast zijn op loopafstand meerdere gratis parkeermogelijkheden, o.a. bij de Kasteeltuin.

LOCATIE/BEREIKBAARHEID:
De winkelruimte ligt op een uitstekende zicht- en passantlocatie aan de drukbezochte haven van Zevenbergen. Dit winkelgebied wordt benut door een gevarieerde mix van landelijke en lokale retailers, waaronder Albert Heijn, Kruidvat, Bruna, Gall & Gall, Primera en diverse horecagelegenheden. Zevenbergen is de grootste plaats binnen de gemeente Moerdijk, heeft ruim 15.000 inwoners en is goed bereikbaar via de nabijgelegen A16/A17, NS-station en busverbindingen.

Voorbehoud:
Elke transactie behoeft de nadrukkelijke goedkeuring van de verkoper.

Algemeen:
Al het bovenstaande betreft informatie omtrent de verkoop van Noordhaven 60 te Zevenbergen. Deze informatie is met zorg samengesteld, maar voor de juistheid ervan kan door WoonSchuijt Makelaars geen aansprakelijkheid worden aanvaard, noch aan de vermelde gegevens enig recht worden ontleend. Nadrukkelijk is vermeld dat deze informatieverstrekking niet als een aanbieding of offerte mag worden beschouwd.

Kenmerken

Basiskenmerken

  • Status Beschikbaar
  • Koopprijs € 310.000,- k.k.
  • Servicekosten -

Bouwvorm & onderhoud

  • Hoofdfunctie Winkelruimte
  • Soort bouw Bestaande bouw
  • Bouwjaar 1946

Oppervlakte & inhoud

  • Oppervlakte winkel ca. 156 m2

Parkeergelegenheid

  • Parkeerfaciliteiten Openbaar parkeren blauwe zone

Overig

  • Onderhoud binnen Redelijk tot goed
  • Onderhoud buiten Redelijk tot goed
Meer kenmerken

In de buurt

Geïnteresseerd?

Bel met Woonschuijt Makelaars te Zevenbergen

shape

Stuur een bericht

* Maximaal 255 tekens
privacyverklaring