Chat with us, powered by LiveChat Hoofdstraat 69 a, 4765 CB ZEVENBERGSCHEN HOEK WoonSchuijt Makelaars

Zevenbergschen Hoek

Hoofdstraat  69 a

€ 150.000,- k.k.

Omschrijving

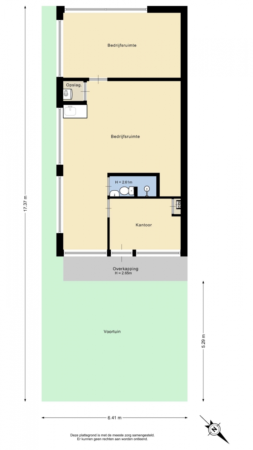
PRAKTISCHE BEDRIJFSRUIMTE MET FLEXIBELE INDELING Aan de Hoofdstraat in Zevenbergschen Hoek vind je deze praktische bedrijfsruimte van circa 51 m² met een maatschappelijke bestemming. Een ideale plek voor bijvoorbeeld een praktijkruimte, zorgverlener, kantoor aan huis of kleinschalige dienstverlening. De ligging aan een doorgaande weg zorgt voor een goede zichtbaarheid,…

PRAKTISCHE BEDRIJFSRUIMTE MET FLEXIBELE INDELING

Aan de Hoofdstraat in Zevenbergschen Hoek vind je deze praktische bedrijfsruimte van circa 51 m² met een maatschappelijke bestemming. Een ideale plek voor bijvoorbeeld een praktijkruimte, zorgverlener, kantoor aan huis of kleinschalige dienstverlening. De ligging aan een doorgaande weg zorgt voor een goede zichtbaarheid, terwijl er in de directe omgeving parkeermogelijkheden aanwezig zijn.

De ruimte is overzichtelijk ingedeeld en biedt meerdere vertrekken, waardoor je hier eenvoudig verschillende functies kunt combineren. Denk aan een ontvangstruimte, behandelkamer en aparte werk- of kantoorruimte. Dankzij de aanwezige raampartijen aan de voorzijde komt er prettig daglicht binnen, wat zorgt voor een fijne werkomgeving.

MEERDERE RUIMTES MET FUNCTIONELE INDELING
Binnen tref je een praktische opzet met meerdere afzonderlijke ruimtes. De grootste ruimte aan de voorzijde leent zich uitstekend als ontvangstruimte of hoofdwerkruimte. Aansluitend zijn er nog één of meerdere aparte kamers die ideaal zijn als behandelruimte, spreekkamer of kantoor.

Daarnaast is er een pantry aanwezig en beschikt het object over sanitaire voorzieningen. De indeling maakt het geheel geschikt voor diverse maatschappelijke functies, waarbij privacy en functionaliteit goed samenkomen.

NETTE STAAT MET BASISVOORZIENINGEN AANWEZIG
De bedrijfsruimte is netjes onderhouden en direct te gebruiken. In één van de ruimtes is airconditioning aanwezig, wat zorgt voor extra comfort tijdens het werken. De afwerking is eenvoudig maar functioneel, waardoor je het naar eigen wens verder kunt inrichten of aanpassen aan jouw gebruik.

De grote raampartijen aan de voorzijde geven het object niet alleen een open uitstraling, maar zorgen ook voor goede zichtbaarheid vanaf de straat — ideaal voor een praktijk of dienstverlening waarbij herkenbaarheid belangrijk is.

GOED BEREIKBARE LOCATIE IN HET DORP
Gelegen in Zevenbergschen Hoek, een dorp met een centrale ligging ten opzichte van grotere plaatsen zoals Breda, Dordrecht en Moerdijk. De bereikbaarheid is goed, mede door de nabijheid van uitvalswegen richting de A16 en A17.

De locatie aan de Hoofdstraat zorgt voor een herkenbare plek binnen het dorp, met dagelijkse passanten en een gemengd karakter van wonen en werken. Dit maakt het een geschikte plek voor ondernemers die lokaal zichtbaar willen zijn en tegelijkertijd goed bereikbaar willen blijven voor cliënten en bezoekers.

Bestemmingsplan:
Volgens het configurerende bestemmingsplan is het pand bestemd voor 'maatschappelijk' gebruik, eventuele wijzigingen van de bestemmingsplannen voor transformatie o.i.d. zijn voor rekening en risico van koper. De voor 'Maatschappelijk' aangewezen gronden zijn bestemd voor:
a - voorzieningen inzake bibliotheken, jeugd- en kinderopvang, onderwijs, openbare dienstverlening en verenigingsleven;
b - voorzieningen inzake gezondheidszorg;
c - zorgwoningen, ter plaatse van de aanduiding 'zorgwoning';
d - ter plaatse van de aanduiding 'religie': een faciliteit voor levensbeschouwelijke activiteiten en/of religieuze bijeenkomsten;
e - bij deze voorzieningen behorende ondergeschikte horeca;
f - wonen in een dienstwoning, met dien verstande dat:
1. het aantal wooneenheden mag niet meer bedragen dan het bestaande aantal;
2. de vloeroppervlakte bij onzelfstandige woonruimte ten minste 15 m² en bij zelfstandige woonruimte ten minste 60 m² bedraagt, of de bestaande oppervlakte op het tijdstip van inwerkingtreding van dit plan;
g - bij deze bestemming behorende voorzieningen, zoals (ontsluitings)wegen, groen, water, nutsvoorzieningen en parkeervoorzieningen.

KENMERKEN:
- Gelegen aan de Hoofdstraat in Zevenbergschen Hoek
- Maatschappelijke bestemming
- Gebruiksoppervlakte ca. 51 m²
- Indeling met meerdere ruimtes
- Airconditioning aanwezig in één ruimte
- Pantry en sanitaire voorzieningen aanwezig
- Ligging aan doorgaande weg
- Beperkte parkeergelegenheid in directe omgeving
- Bouwjaar ca. 1980
- Oplevering in overleg, kan snel

Voorbehoud:
Elke transactie behoeft de nadrukkelijke goedkeuring van de verkoper.

Algemeen:
Al het bovenstaande betreft informatie omtrent de verkoop van Hoofdstraat 69a te Zevenbergschen Hoek. Deze informatie is met zorg samengesteld, maar voor de juistheid ervan kan door WoonSchuijt Makelaars geen aansprakelijkheid worden aanvaard, noch aan de vermelde gegevens enig recht worden ontleend. Nadrukkelijk is vermeld dat deze informatieverstrekking niet als een aanbieding of offerte mag worden beschouwd.

Kenmerken

Basiskenmerken

  • Status Beschikbaar
  • Koopprijs € 150.000,- k.k.
  • Servicekosten -

Bouwvorm & onderhoud

  • Hoofdfunctie Bedrijfsruimte
  • Soort bouw Bestaande bouw
  • Bouwjaar 1980

Oppervlakte & inhoud

  • Oppervlakte bedrijfshal 51 m2

Overig

  • Onderhoud binnen Redelijk tot goed
  • Onderhoud buiten Redelijk tot goed
Meer kenmerken

Media

In de buurt

Geïnteresseerd?

Bel met Woonschuijt Makelaars te Zevenbergen

shape

Stuur een bericht

* Maximaal 255 tekens
privacyverklaring