Chat with us, powered by LiveChat Benno Premselastraat 72 en 74 0 ong, 3059 LJ ROTTERDAM WoonSchuijt Makelaars

Rotterdam

Benno Premselastraat 72 en 74 0 ong

€ 1.050,- p/m

Omschrijving

Te huur: bedrijfs-/kantoorruimte in nieuwbouwproject Zwart-Wit In het eerste kwartaal van 2025 wordt op bedrijvenpark Rotterdam-Nesselande het hoogwaardige nieuwbouwproject Zwart-Wit opgeleverd. Dit moderne en duurzame bedrijfsverzamelgebouw is ontworpen door architect Tjeerd de Jong en bevindt zich in een groene omgeving, nabij het Oude Dorp van Nieuwerkerk aan den…

Te huur: bedrijfs-/kantoorruimte in nieuwbouwproject Zwart-Wit
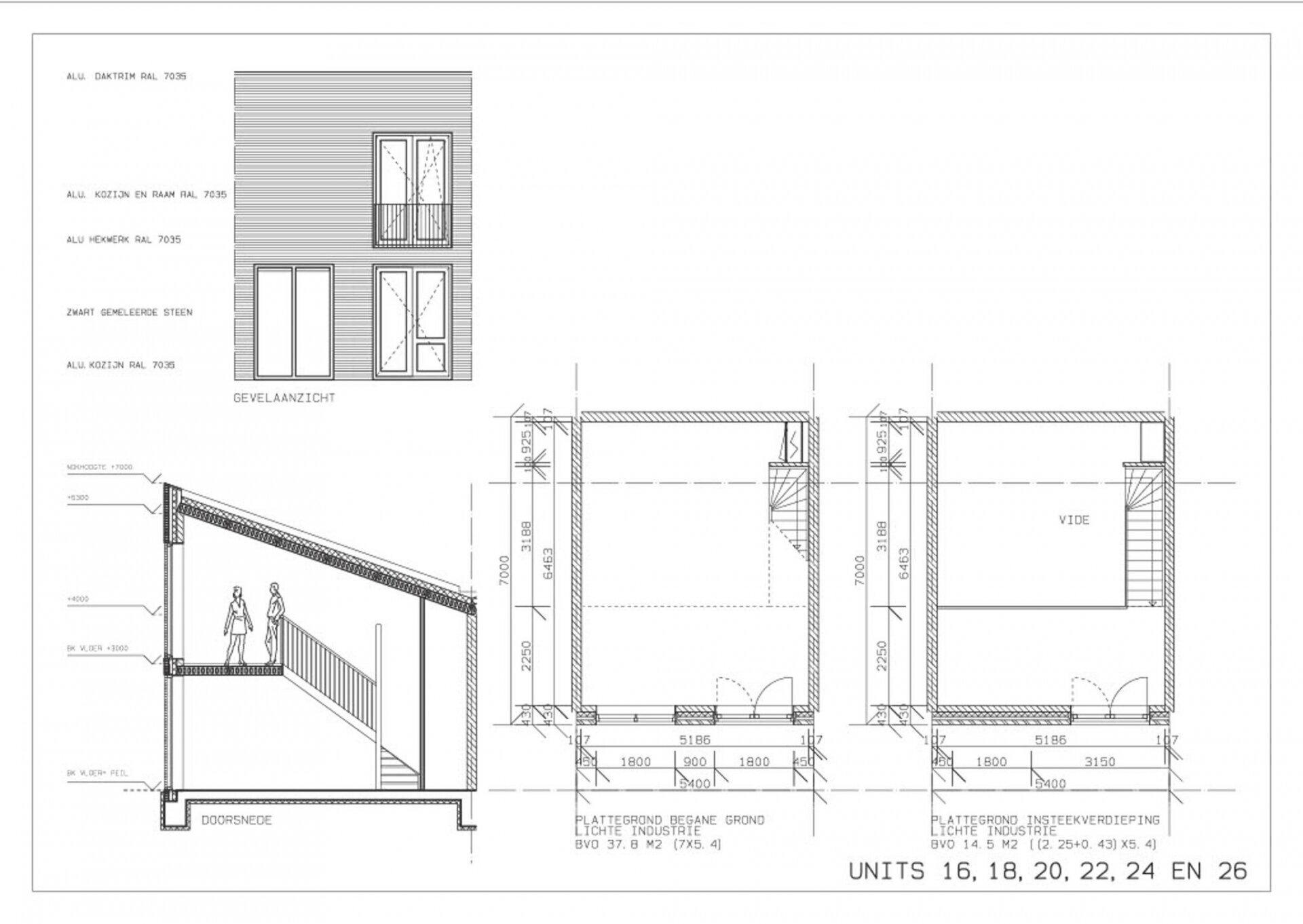
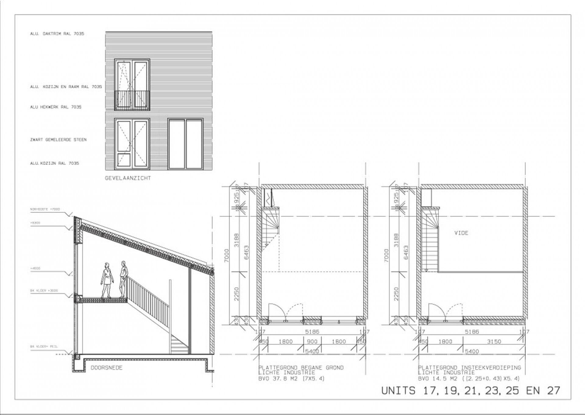
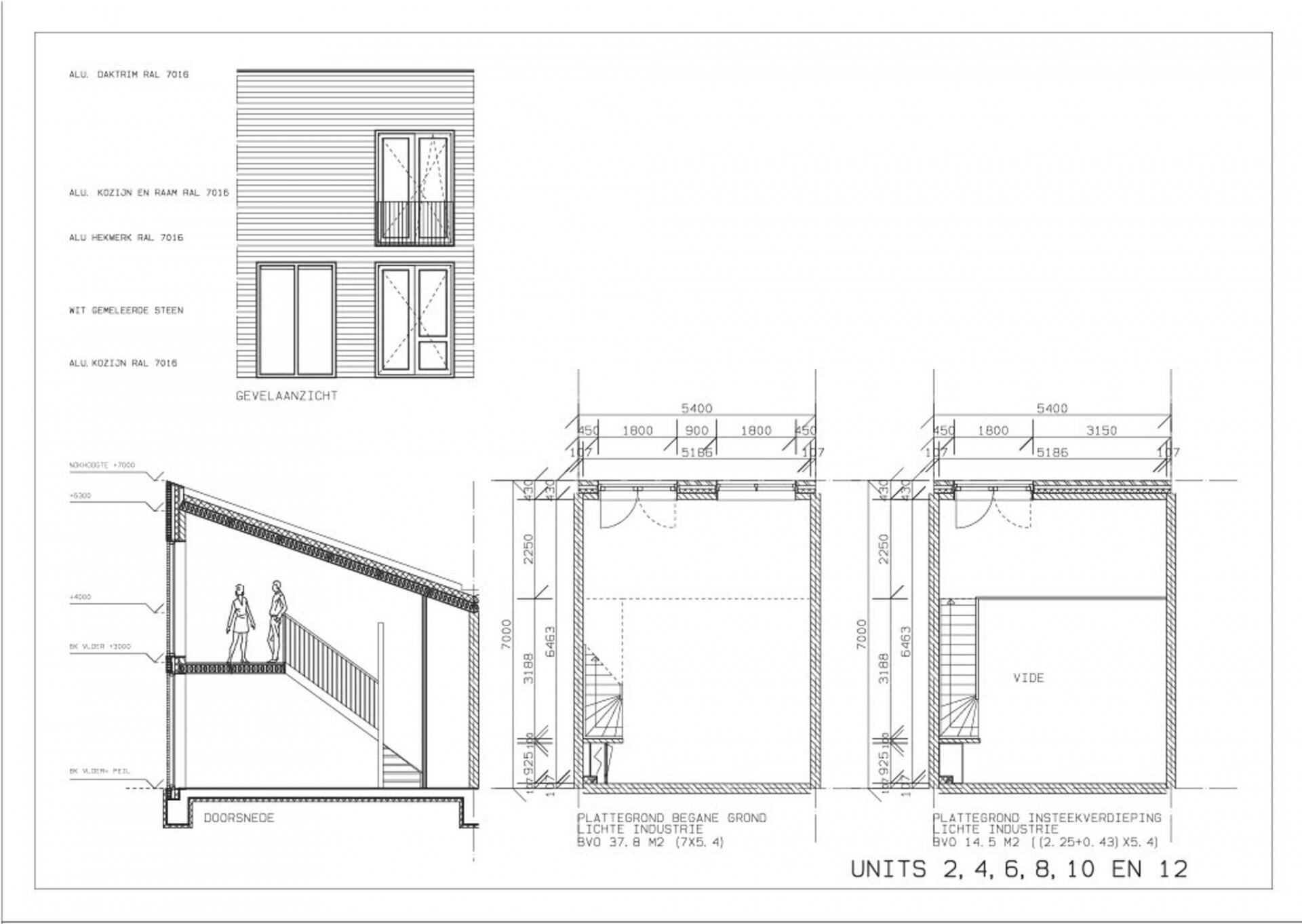
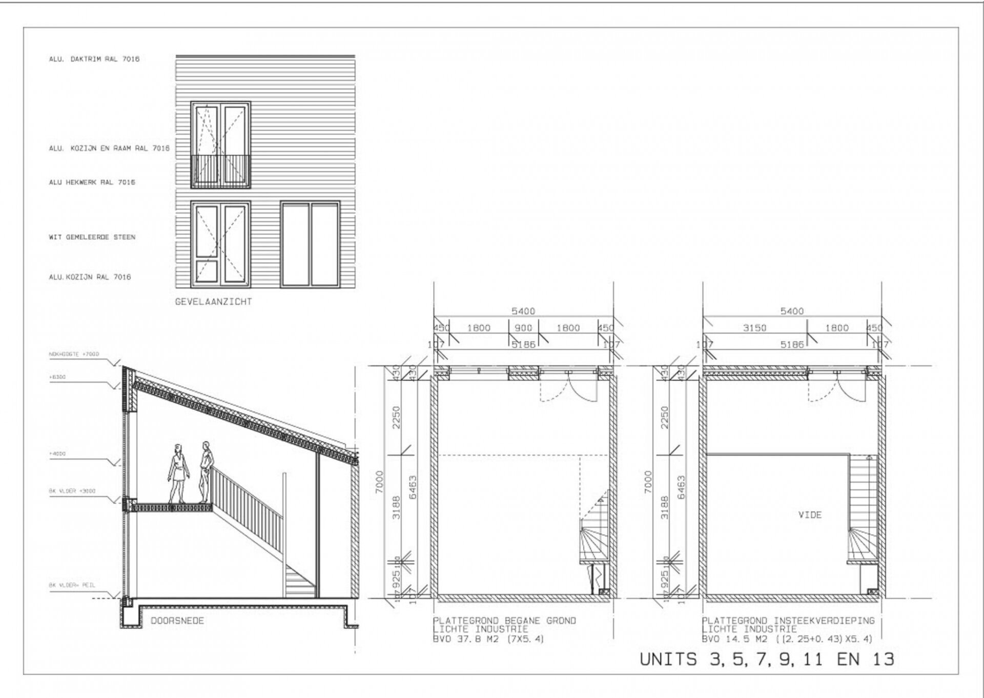
In het eerste kwartaal van 2025 wordt op bedrijvenpark Rotterdam-Nesselande het hoogwaardige nieuwbouwproject Zwart-Wit opgeleverd. Dit moderne en duurzame bedrijfsverzamelgebouw is ontworpen door architect Tjeerd de Jong en bevindt zich in een groene omgeving, nabij het Oude Dorp van Nieuwerkerk aan den IJssel. Het complex is ruim opgezet en ligt aan de Benno Premselastraat, met aan de achterzijde groen en water.

Beschikbare units & huurprijzen
Er zijn 2 huurmogelijkheden, afhankelijk van de gewenste oppervlakte:

Optie 1:

Oppervlakte: 46 m² (incl. 12 m² vide)
Afmetingen: 6,46 m diep x 5,20 m breed
Huurprijs: € 950,- per maand (excl. BTW en servicekosten)

Optie 2:

Oppervlakte: 92 m² (incl. twee vides van elk 12 m²)
Afmetingen: 6,46 m diep x 10,60 m breed
Huurprijs: € 2.100,- per maand (excl. BTW en servicekosten)
Alle afmetingen zijn netto verhuurbaar vloeroppervlak (VVO).

Opleveringsniveau (casco)
De units worden casco opgeleverd, inclusief:

Vloerbelasting: Begane grond tot 1.000 kg/m², verdiepingsvloer tot 500 kg/m²
Scheidingswanden: Kalkzandsteen (214 mm)
Toegang: Aluminium kozijnen en deuren met isolerende beglazing
Dak: Geïsoleerd betonnen dak met bitumineuze dakbedekking
Aansluitingen: Meterkast met water, elektra en glasvezelvoorziening
Voorzieningen: Toiletaansluiting onder de trap
Plafondhoogte: Minimaal 2,60 meter op zowel begane grond als verdieping
De units kunnen in overleg turn-key worden opgeleverd, inclusief vloer- en wandafwerking, toilet, keuken en verwarming.

Locatie & bereikbaarheid
Het bedrijvenpark Rotterdam-Nesselande is een duurzaam en modern opgezet terrein met hoogwaardige buitenruimte. Het complex ligt op loopafstand van sport- en winkelvoorzieningen bij de Zevenhuizerplas en biedt een prettige werkomgeving met veel groen en water. Het Oude Dorp van Nieuwerkerk met diverse horecagelegenheden is dichtbij, ideaal voor zakelijke lunches of een drankje na werktijd.

Huurvoorwaarden
Huurtermijn: In overleg
Servicekosten: ca. € 100,- per maand excl. BTW per unit (nader vast te stellen)
Parkeren: Elke unit beschikt over een eigen parkeerplaats + extra openbare parkeergelegenheid
Huurgarantie: Bankgarantie of waarborgsom ter hoogte van drie maanden huur incl. BTW en servicekosten
Jaarlijkse indexering: Op basis van consumentenprijsindex (CPI, 2015 = 100)
Bestemming: Bedrijven t/m categorie 2; maximaal 50% van de ruimte mag als kantoor worden gebruikt
Omzetbelasting: Huurder dient het gehuurde voor minimaal 90% te gebruiken voor met BTW belaste prestaties
Beschikbaarheid & oplevering: De verwachte oplevering is begin juni 2025, in overleg.

Meer informatie & bezichtiging
Bent u geïnteresseerd in een van de units of wilt u meer informatie? Neem contact met ons op.

Kenmerken

Basiskenmerken

  • Status Beschikbaar
  • Huurprijs € 1.050,- p/m
  • Servicekosten -
  • Aanvaarding In overleg

Bouwvorm & onderhoud

  • Hoofdfunctie Bedrijfsruimte
  • Soort bouw Bestaande bouw
  • Bouwjaar 2024

Oppervlakte & inhoud

  • Oppervlakte bedrijfshal 46 m2

Overig

  • Onderhoud binnen Uitstekend
  • Onderhoud buiten Uitstekend
Meer kenmerken

In de buurt

Geïnteresseerd?

Bel met WoonSchuijt Makelaars

shape

Stuur een bericht

* Maximaal 255 tekens
privacyverklaring